篠原南町|六甲駅から徒歩9分|神戸市灘区(兵庫県)の空き家・中古住宅・中古一戸建て

外観

外観

5,980万円

月々の支払い目安:--

ローン詳細

\ 人気物件は決まるのが早い!まずはお問合せを /

メールアイコン 物件の資料をもらう 3項目のみ入力すればOK 無料

掲載終了まであと13

所在地・交通

兵庫県神戸市灘区篠原南町4丁目

阪急電鉄神戸線 六甲駅/徒歩9分

地図を見る

POINT

◆駐車2台可 ◆前面道路幅員8mですっきり

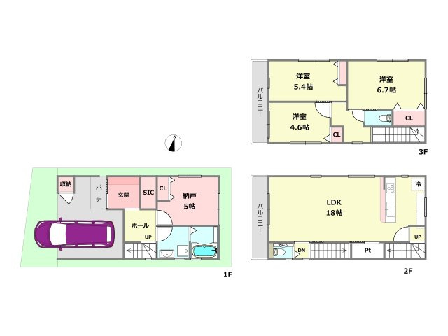
間取り
4LDK
建物面積
102.13 ㎡ (内法)
築年月
2024 年12 月(築2 年)
土地権利
所有権
駐車場
空有 (2 台) 無料
現況
空家
実際に見学したい

朝日住宅株式会社 神戸店

朝日住宅は昭和46年創業の不動産売買仲介専門会社です。「親切・丁寧・しっかりした仕事」がモットーに創業50年以上の信頼と実績がございます。経験豊富なスタッフがお客様を第一に誠心誠意サポートさせて頂きま

会社情報

この物件について

この物件は阪急電鉄神戸線を六甲駅で下車し、徒歩9分の場所に位置しています。お手入れ・掃除がしやすいだけでなく、収納スペースなどが一体となったシステムキッチンが備わっており、見知らぬ訪問者への対応も安心なモニター付きドアホンが付いております。また、浴室には乾燥機が付いているので雨の日に洗濯物を干せるだけでなく入浴後の浴室の乾燥にも使えます。周辺299m圏内(徒歩4分)にはスーパーもあります。

※「この物件について」に記載の情報は、登録情報をもとに当サイトが掲載するものであり、不動産物件情報を掲載している不動産事業者が掲載するものではありません。

内観・外観

間取り図

間取り 拡大

4LDK

建物面積
102.13 ㎡ (内法)
土地面積
71.53 ㎡ (公簿)
建物構造
木造 / 3 階建

写真

\ 人気物件は決まるのが早い!まずはお問合せを /

メールアイコン 物件の資料をもらう 3項目のみ入力すればOK 無料

掲載終了まであと13

この物件を共有・保存する

設備

設備画像

主な設備

キッチン
  • システムキッチン

    システム
    キッチン

  • カウンターキッチン

    カウンター
    キッチン

  • IHコンロ

    IHコンロ

  • ガスコンロ

    ガスコンロ

バス・トイレ
  • 追い焚き

    追い焚き

  • 浴室乾燥機

    浴室乾燥機

  • シャワー付洗面化粧台

    シャワー付
    洗面化粧台

  • 洗浄便座

    洗浄便座

室内設備
  • ウォークインクローゼット

    ウォークイン
    クローゼット

  • 全居室収納

    全居室収納

  • TVモニタ付ドアホン

    TVモニタ付
    ドアホン

  • 床暖房

    床暖房

特徴
  • オール電化

    オール電化

  • バリアフリー

    バリアフリー

  • 南向き

    南向き

  • 駐車場付

    駐車場付

その他設備

公営水道、都市ガス、下水、システムキッチン、シャワー付洗面化粧台、ウォークインクローゼット、床暖房、TVドアホン、温水洗浄便座、浴室乾燥機、食器洗い乾燥機、全居室収納、クローゼット、下駄箱、シューズインクローゼット、パントリー、トイレ2ヶ所以上、タンクレストイレ、ミストサウナ、浴室暖房、全室フローリング

設備情報について質問する

\ 人気物件は決まるのが早い!まずはお問合せを /

メールアイコン 物件の資料をもらう 3項目のみ入力すればOK 無料

掲載終了まであと13

この物件を共有・保存する

周辺情報

周辺の生活情報

ハザード情報

物件周辺の土砂、浸水、津波、
地震の情報を地図で確認できます。

ハザードマップを確認する

※周辺情報は「 出典一覧(施設情報) 」のデータを元に当サイトが独自の方法で抽出し掲載しているものです。不動産物件情報を提供している不動産事業者が掲載するものでありません。
※周辺情報は移転や閉鎖等により情報が最新ではない、正しくない場合があります。詳しくは不動産会社にお問い合わせのうえ、ご確認をお願い致します。

\ 人気物件は決まるのが早い!まずはお問合せを /

メールアイコン 物件の資料をもらう 3項目のみ入力すればOK 無料

掲載終了まであと13

この物件を共有・保存する

物件概要

価格
5,980 万円

--

ローン詳細
間取り
4LDK
建物面積
102.13 ㎡ (内法)
土地面積
71.53 ㎡ (公簿)
駐車場
空有 (2 台) 無料
築年月
2024 年 12 月(築 2 年)
住所
兵庫県神戸市灘区篠原南町4丁目 地図を見る
交通

阪急電鉄神戸線 六甲駅/徒歩9分

--

--

総戸数
--
主要採光面
--
建物構造
木造 / 3 階建
接道状況
一方 ( 南東 8.0m 公道 )
セットバック
私道負担面積
--
都市計画
市街化区域
地目
宅地
用途地域
第一種住居地域
地勢
平坦
建ぺい率
60%
容積率
200%
土地権利
所有権
国土法届出
不要
借地料
--
借地期間
--
引渡し
即時
取引態様
仲介
その他費用
--
その他条件
駐車場2台以上可
備考
◆お客様ごとのシームレスな物件提案
お客様ごとに専用サイトを設けて、オンラインで物件提案
ログイン不要でアクセスするだけでどこでも物件を検討、比較できます
「見やすくて楽になった」
「施設やハザードマップも同時に見られて検討しやすい」
と好評いただいております。
未掲載物件でもサイトに複数反映させて条件に合う物件にて内覧ご検討いただけます。
周辺施設
【小学校】神戸市立六甲小学校 446m
【中学校】神戸市立長峰中学校 1,317m
【コンビニ】コンビニ 750m
【スーパー】スーパー 299m
【総合病院】総合病院 316m
【ドラッグストア】ドラッグストア 752m
【銀行】銀行 437m
【商店街】商店街 653m
【その他】コーナン灘大石川店 916m
物件番号
328000537265
自社管理番号
1252600013050
建築確認番号
--
登録日
2025/10/03
有効期限
2026/05/11

※情報提供元:LIFULL HOME'S

会社情報

取り扱い不動産会社

朝日住宅株式会社 神戸店
住所
兵庫県神戸市中央区東川崎町1丁目2-2 ハウジングデザインセンター神戸3F 
営業時間など
営業時間/10:00~19:00
定休日/火曜日・水曜日 年末年始 夏季休暇
免許番号
国土交通大臣免許(05)第6185号
所属団体
(公社)首都圏不動産公正取引協議会、(一社)全国住宅産業協会、(一社)不動産流通経営協会
保証協会
営業保証金供託済

物件に関するお問い合わせ

必須
必須
必須

※携帯電話でドメイン指定受信を利用している場合は、「chintaistyle.jp」「asahi-jutaku.co.jp」を解除してください。

あなたにぴったりの物件情報などをお届けします。

確認ページへ進む

最近見た物件と比較

閲覧中
外観:328000537265

篠原南町

5,980万円

4LDK

建物
102.13㎡ (内法)

土地
71.53㎡ (公簿)

築2年

神戸市灘区篠原南町4丁目

阪急電鉄神戸線 六甲駅/徒歩9分

資料請求する

外観:325000119448

大津市松本1丁目 2階建 40.68㎡

590万円

1LDK

建物
40.68㎡

土地
50.64㎡ (公簿)

築60年

大津市松本1丁目

京阪電気鉄道石坂線 石場駅/徒歩4分

詳細を見る

外観:334000208803

安佐北区可部南1丁目 土地建物

2,180万円

4SLDK

建物
97.20㎡

土地
132.78㎡ (公簿)

築13年

広島市安佐北区可部南1丁目

可部線 中島駅/徒歩11分

詳細を見る

外観:314002661661

相模原市上鶴間三丁目中古戸建

2,780万円

3LDK

建物
69.96㎡ (壁芯)

土地
80.05㎡ (公簿)

築31年

相模原市南区上鶴間3丁目

小田急電鉄江ノ島線 東林間駅/徒歩12分

詳細を見る

外観:301000094143

網走郡美幌町字東二条北1丁目 戸建て

749万円

5SLDK

建物
172.92㎡

土地
169.74㎡ (公簿)

築39年

網走郡美幌町字東二条北1丁目

石北本線 美幌駅/バス 睦橋 徒歩1分

詳細を見る

外観:314002638292

横浜市鶴見区駒岡4丁目 中古一戸建て

4,588.3万円

3LDK

建物
99.36㎡

土地
102.80㎡ (公簿)

築2年

横浜市鶴見区駒岡4丁目

東急東横線 綱島駅/バス 14分/駒岡八幡神社前 徒歩5分

詳細を見る

外観:325000115435

大津市滋賀里2丁目戸建

4,280万円

5DK

建物
123.33㎡ (壁芯)

土地
506.77㎡ (公簿)

築44年

大津市滋賀里2丁目

湖西線 唐崎駅/徒歩20分

詳細を見る

外観:328000609285

尼崎市南武庫之荘8丁目中古戸建

2,880万円

4LDK

建物
85.05㎡ (壁芯)

土地
78.32㎡ (公簿)

築22年

尼崎市南武庫之荘8丁目

阪急電鉄神戸線 武庫之荘駅/徒歩16分

詳細を見る

外観:328000628379

神戸市北区有野町二郎 中古戸建

1,480万円

4LDK

建物
89.42㎡

土地
101.71㎡ (公簿)

築29年

神戸市北区有野町二郎

神戸電鉄三田線 田尾寺駅/徒歩12分

詳細を見る

外観:317000011193

七尾市田鶴浜町 戸建て

1,549万円

5LDK

建物
166.41㎡

土地
161.19㎡ (公簿)

築29年

七尾市田鶴浜町

のと鉄道・七尾線 田鶴浜駅/徒歩7分

詳細を見る

外観:334000240257

福山市能島2丁目 2階建 110.00㎡

3,690万円

3SLDK

建物
110.00㎡

土地
209.28㎡ (公簿)

築5年

福山市能島2丁目

山陽本線 東福山駅/徒歩45分

詳細を見る

近くの類似おすすめ物件

兵庫県神戸市灘区の新着物件情報

現在00件保存されています。

残り00件追加することができます。

お気に入り物件一覧を見る

間隔を空けてお試しください。