篠原南町4丁目新築戸建|六甲駅から徒歩11分|神戸市灘区(兵庫県)の空き家・中古住宅・中古一戸建て

外観

外観

5,980万円

月々の支払い目安:--

ローン詳細

\ 人気物件は決まるのが早い!まずはお問合せを /

メールアイコン 物件の資料をもらう 3項目のみ入力すればOK 無料

掲載終了まであと11

所在地・交通

兵庫県神戸市灘区篠原南町4丁目A号地 5番6-1

阪急電鉄神戸線 六甲駅/徒歩11分

地図を見る

POINT

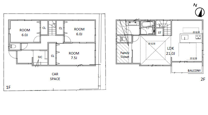
間取り
4SLDK
建物面積
102.13 ㎡ (内法)
築年月
2024 年12 月(築2 年)
土地権利
所有権
駐車場
--
現況
空家
実際に見学したい

株式会社日住サービス 六甲店

不動産売却をサポートする各種メニューを取り揃え、京阪神全店直営のネットワークで迅速に対応いたします。ウェルブ六甲道2番街の地下に駐車場有。駐車券をお持ちのお客様へパーキングチケットをお渡ししています。

会社情報

この物件について

こちらの物件は阪急電鉄神戸線を六甲駅で下車し、徒歩11分の場所に位置しています。家族とコミュニケーションを取ったり子供の様子を見ながら料理ができるカウンターキッチンが備わっており、見知らぬ訪問者への対応も安心なモニター付きドアホンが付いております。また、浴室には乾燥機が付いているので雨の日に洗濯物を干せるだけでなく入浴後の浴室の乾燥にも使えます。周辺533m圏内(徒歩7分)には神戸市立六甲小学校もあります。

※「この物件について」に記載の情報は、登録情報をもとに当サイトが掲載するものであり、不動産物件情報を掲載している不動産事業者が掲載するものではありません。

内観・外観

間取り図

間取り 拡大

4SLDK

建物面積
102.13 ㎡ (内法)
土地面積
71.53 ㎡ (公簿)
建物構造
木造 / 3 階建

写真

\ 人気物件は決まるのが早い!まずはお問合せを /

メールアイコン 物件の資料をもらう 3項目のみ入力すればOK 無料

掲載終了まであと11

この物件を共有・保存する

設備

設備画像

主な設備

キッチン
  • システムキッチン

    システム
    キッチン

  • カウンターキッチン

    カウンター
    キッチン

  • IHコンロ

    IHコンロ

  • ガスコンロ

    ガスコンロ

バス・トイレ
  • 追い焚き

    追い焚き

  • 浴室乾燥機

    浴室乾燥機

  • シャワー付洗面化粧台

    シャワー付
    洗面化粧台

  • 洗浄便座

    洗浄便座

室内設備
  • ウォークインクローゼット

    ウォークイン
    クローゼット

  • 全居室収納

    全居室収納

  • TVモニタ付ドアホン

    TVモニタ付
    ドアホン

  • 床暖房

    床暖房

特徴
  • オール電化

    オール電化

  • バリアフリー

    バリアフリー

  • 南向き

    南向き

  • 駐車場付

    駐車場付

その他設備

公営水道、都市ガス、下水、システムキッチン、床下収納、ウォークインクローゼット、宅配ボックス、床暖房、TVドアホン、温水洗浄便座、カウンターキッチン、浴室乾燥機、食器洗い乾燥機、オートバス

設備情報について質問する

\ 人気物件は決まるのが早い!まずはお問合せを /

メールアイコン 物件の資料をもらう 3項目のみ入力すればOK 無料

掲載終了まであと11

この物件を共有・保存する

周辺情報

周辺の歯医者

読込中

周辺の医療機関

読込中

周辺の駅

読込中

周辺の銀行

読込中

周辺のパン屋

読込中

その他の周辺施設を探す
学区や周辺について質問したい

周辺の生活情報

ハザード情報

物件周辺の土砂、浸水、津波、
地震の情報を地図で確認できます。

ハザードマップを確認する

※周辺情報は「 出典一覧(施設情報) 」のデータを元に当サイトが独自の方法で抽出し掲載しているものです。不動産物件情報を提供している不動産事業者が掲載するものでありません。
※周辺情報は移転や閉鎖等により情報が最新ではない、正しくない場合があります。詳しくは不動産会社にお問い合わせのうえ、ご確認をお願い致します。

\ 人気物件は決まるのが早い!まずはお問合せを /

メールアイコン 物件の資料をもらう 3項目のみ入力すればOK 無料

掲載終了まであと11

この物件を共有・保存する

物件概要

価格
5,980 万円

--

ローン詳細
間取り
4SLDK
建物面積
102.13 ㎡ (内法)
土地面積
71.53 ㎡ (公簿)
駐車場
--
築年月
2024 年 12 月(築 2 年)
住所
兵庫県神戸市灘区篠原南町4丁目A号地 5番6-1 地図を見る
交通

阪急電鉄神戸線 六甲駅/徒歩11分

--

--

総戸数
--
主要採光面
建物構造
木造 / 3 階建
接道状況
一方 ( 南 8.0m 公道 間口2.7m )
セットバック
私道負担面積
--
都市計画
市街化区域
地目
宅地
用途地域
第一種住居地域
地勢
平坦
建ぺい率
60%
容積率
200%
土地権利
所有権
国土法届出
不要
借地料
--
借地期間
--
引渡し
即時
取引態様
仲介
その他費用
--
その他条件
南向き
備考
宅配ボックスがあるのでリモートワークでも直接受け取る必要がなく仕事に集中することができます。令和6年12月完成、まだまだ新しい築浅物件。素敵な6 180万円の物件です。駅から徒歩11分に位置する物件です。4SLDK物件のサービスルームは使い勝手も良く魅力的です。これからの新生活での暮らしを一新するために、新築戸建てはいかがでしょうか。
周辺施設
【小学校】神戸市立六甲小学校 533m
【コンビニ】コンビニ 653m
【スーパー】スーパー 757m
【公園】公園 887m
【銀行】銀行 647m
【商店街】商店街 863m
【その他】六甲幼稚園 701m
物件番号
328000632972
自社管理番号
1453150000607
建築確認番号
第J24-20220号
登録日
2026/04/25
有効期限
2026/05/09

※情報提供元:LIFULL HOME'S

会社情報

取り扱い不動産会社

株式会社日住サービス 六甲店
住所
兵庫県神戸市灘区深田町4丁目1-1-202 ウェルブ六甲道2番街 
営業時間など
営業時間/10:00~18:00
定休日/毎週火曜日・水曜日
免許番号
国土交通大臣(13)第2287号
所属団体
(公社)近畿圏不動産流通機構
保証協会
営業保証金供託済

物件に関するお問い合わせ

必須
必須
必須

※携帯電話でドメイン指定受信を利用している場合は、「chintaistyle.jp」「nichiju.co.jp」を解除してください。

あなたにぴったりの物件情報などをお届けします。

確認ページへ進む

最近見た物件と比較

閲覧中
外観:328000632972

篠原南町4丁目新築戸建

5,980万円

4SLDK

建物
102.13㎡ (内法)

土地
71.53㎡ (公簿)

築2年

神戸市灘区篠原南町4丁目

阪急電鉄神戸線 六甲駅/徒歩11分

資料請求する

NO IMAGE

堺市西区浜寺石津町中3丁 3階建 101.74㎡

1,980万円

4DK

建物
101.74㎡

土地
78.11㎡ (公簿)

築27年

堺市西区浜寺石津町中3丁

南海電鉄南海本線 石津川駅/徒歩3分

詳細を見る

外観:327002289146

門真市野里町

1,480万円

4LDK

建物
81.90㎡

土地
35.23㎡ (公簿)

築28年

門真市野里町

京阪電気鉄道京阪線 大和田駅/徒歩5分

詳細を見る

外観:326000245564

伏見区羽束師菱川町

2,880万円

2SLDK

建物
90.46㎡

土地
85.80㎡ (公簿)

築4年

京都市伏見区羽束師菱川町

東海道本線 長岡京駅/バス 5分/菱川 徒歩10分

詳細を見る

外観:311002367031

狭山市大字上奥富 戸建て

1,999万円

4LDK

建物
98.01㎡

土地
121.74㎡ (公簿)

築22年

狭山市大字上奥富

西武鉄道新宿線 新狭山駅/バス 上奥富堂元バス停 徒歩13分

詳細を見る

NO IMAGE

枚方市池之宮1丁目

1,480万円

4LDK

建物
100.36㎡

土地
50.47㎡

築31年

枚方市池之宮1丁目

京阪電気鉄道京阪線 枚方市駅/バス 13分/池之宮 徒歩2分

詳細を見る

外観:311002365177

児玉郡上里町大字金久保 2階建 255.46㎡

4,681万円

7SLDK

建物
255.46㎡

土地
933.87㎡ (公簿)

築22年

児玉郡上里町大字金久保

バス 駅/バス 上里北中学校 徒歩2分

詳細を見る

外観:327002310419

松原市天美東1丁目 2階建 46.75㎡

440万円

1LDK

建物
46.75㎡

土地
48.47㎡ (公簿)

築59年

松原市天美東1丁目

近鉄南大阪線 河内天美駅/徒歩9分

詳細を見る

外観:311002371926

狭山市入間川 中古戸建

1,480万円

2LDK

建物
134.92㎡

土地
178.51㎡ (公簿)

築47年

狭山市入間川

西武鉄道新宿線 狭山市駅/徒歩20分

詳細を見る

外観:327002269488

枚方市北山1丁目 2階建 124.69㎡

3,180万円

4LDK

建物
124.69㎡

土地
182.68㎡ (公簿)

築29年

枚方市北山1丁目

片町線 長尾駅/バス 14分/北山中央 徒歩4分

詳細を見る

外観:312001135416

戸建 船橋市金杉7丁目

3,490万円

4LDK

建物
227.10㎡ (壁芯)

土地
358.42㎡ (公簿)

築63年

船橋市金杉7丁目

総武本線 船橋駅/バス 33分/桜ヶ丘 徒歩3分

詳細を見る

外観:313004710641

江戸川区船堀7丁目 中古一戸建て

6,980万円

4LDK

建物
115.93㎡

土地
83.70㎡ (公簿)

築18年

江戸川区船堀7丁目

都営 新宿線 船堀駅/徒歩12分

詳細を見る

外観:313004694293

成城9丁目 中古戸建

13,000万円

4LDK

建物
138.24㎡

土地
182.83㎡ (公簿)

築32年

世田谷区成城9丁目

小田急電鉄小田原線 成城学園前駅/徒歩19分

詳細を見る

外観:327002305312

豊浦町 中古一戸建て

2,180万円

4DK

建物
73.97㎡

土地
53.42㎡ (公簿)

築29年

東大阪市豊浦町

近鉄難波・奈良線 枚岡駅/徒歩6分

詳細を見る

NO IMAGE

八尾市美園町4丁目 戸建

1,680万円

5LDK

建物
42.66㎡ (内法)

土地
78.99㎡ (公簿)

築34年

八尾市美園町4丁目

近鉄大阪線 久宝寺口駅/徒歩11分

詳細を見る

外観:327002293506

守口市八雲北町1丁目

785万円

3SLDK

建物
89.63㎡

土地
65.49㎡

築54年

守口市八雲北町1丁目

Osaka Metro谷町線 守口駅/徒歩18分

詳細を見る

近くの類似おすすめ物件

兵庫県神戸市灘区の新着物件情報

現在00件保存されています。

残り00件追加することができます。

お気に入り物件一覧を見る

間隔を空けてお試しください。