甲子園網引町|甲子園駅から徒歩9分|西宮市(兵庫県)の空き家・中古住宅・中古一戸建て

阪神本線「甲子園駅」徒歩9分!令和7年12月リフォーム済みの一邸が登場しました!

阪神本線「甲子園駅」徒歩9分!令和7年12月リフォーム済みの一邸が登場しました!

3,880万円

月々の支払い目安:--

ローン詳細

\ 人気物件は決まるのが早い!まずはお問合せを /

メールアイコン 物件の資料をもらう 3項目のみ入力すればOK 無料

掲載終了まであと6

所在地・交通

兵庫県西宮市甲子園網引町

阪神電鉄本線 甲子園駅/徒歩9分

地図を見る

POINT

リフォーム済|「甲子園駅」徒歩9分|カースペース完備|食洗機システムキッチン|南甲子園小学校まで徒歩8分

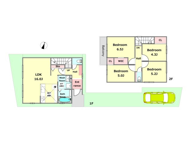
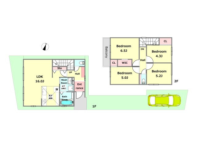
間取り
4LDK
建物面積
85.59 ㎡
築年月
1986 年12 月(築40 年)
土地権利
所有権
駐車場
空有 無料
現況
空家
実際に見学したい

株式会社アルク不動産 武庫之荘駅前本店

当社は阪急武庫之荘駅より北側徒歩2分の立地に店舗を構えております。店舗では掲載中の物件に限らず阪神間エリアを中心に様々な物件を取り扱っております。まずは相談だけというお客様も、お気軽にご相談ください。

会社情報

この物件について

この物件は阪神電鉄本線を甲子園駅で下車し、徒歩9分の場所に位置しています。見知らぬ訪問者への対応も安心なモニター付きドアホンが付いており、お手入れ・掃除がしやすいだけでなく、収納スペースなどが一体となったシステムキッチンが備わっております。また、料金が比較的安く環境にやさしい都市ガス利用の物件です。周辺639m圏内(徒歩8分)には西宮市立南甲子園小学校もあります。

※「この物件について」に記載の情報は、登録情報をもとに当サイトが掲載するものであり、不動産物件情報を掲載している不動産事業者が掲載するものではありません。

内観・外観

間取り図

間取 拡大

4LDK

建物面積
85.59 ㎡
土地面積
76.45 ㎡ (公簿)
建物構造
木造 / 2 階建

写真

リフォーム・リノベーション

水回り

2025年12月実施

  • キッチン
内装

2025年12月実施

  • 壁、天井(クロス、塗装等)
  • 床(フローリング等)

洗面化粧台

\ 人気物件は決まるのが早い!まずはお問合せを /

メールアイコン 物件の資料をもらう 3項目のみ入力すればOK 無料

掲載終了まであと6

この物件を共有・保存する

設備

設備画像

主な設備

キッチン
  • システムキッチン

    システム
    キッチン

  • カウンターキッチン

    カウンター
    キッチン

  • IHコンロ

    IHコンロ

  • ガスコンロ

    ガスコンロ

バス・トイレ
  • 追い焚き

    追い焚き

  • 浴室乾燥機

    浴室乾燥機

  • シャワー付洗面化粧台

    シャワー付
    洗面化粧台

  • 洗浄便座

    洗浄便座

室内設備
  • ウォークインクローゼット

    ウォークイン
    クローゼット

  • 全居室収納

    全居室収納

  • TVモニタ付ドアホン

    TVモニタ付
    ドアホン

  • 床暖房

    床暖房

特徴
  • オール電化

    オール電化

  • バリアフリー

    バリアフリー

  • 南向き

    南向き

  • 駐車場付

    駐車場付

その他設備

公営水道、都市ガス、下水、バス・トイレ別、システムキッチン、給湯、フローリング、TVドアホン、洗面所独立、食器洗い乾燥機、全居室収納、クローゼット、下駄箱

設備情報について質問する

\ 人気物件は決まるのが早い!まずはお問合せを /

メールアイコン 物件の資料をもらう 3項目のみ入力すればOK 無料

掲載終了まであと6

この物件を共有・保存する

周辺情報

周辺の歯医者

読込中

周辺の医療機関

読込中

周辺の駅

読込中

周辺の銀行

読込中

周辺のパン屋

読込中

その他の周辺施設を探す
学区や周辺について質問したい

周辺の生活情報

ハザード情報

物件周辺の土砂、浸水、津波、
地震の情報を地図で確認できます。

ハザードマップを確認する

※周辺情報は「 出典一覧(施設情報) 」のデータを元に当サイトが独自の方法で抽出し掲載しているものです。不動産物件情報を提供している不動産事業者が掲載するものでありません。
※周辺情報は移転や閉鎖等により情報が最新ではない、正しくない場合があります。詳しくは不動産会社にお問い合わせのうえ、ご確認をお願い致します。

\ 人気物件は決まるのが早い!まずはお問合せを /

メールアイコン 物件の資料をもらう 3項目のみ入力すればOK 無料

掲載終了まであと6

この物件を共有・保存する

物件概要

価格
3,880 万円

--

ローン詳細
間取り
4LDK
建物面積
85.59 ㎡
土地面積
76.45 ㎡ (公簿)
駐車場
空有 無料
築年月
1986 年 12 月(築 40 年)
住所
兵庫県西宮市甲子園網引町 地図を見る
交通

阪神電鉄本線 甲子園駅/徒歩9分

--

--

総戸数
--
主要採光面
--
建物構造
木造 / 2 階建
接道状況
--
セットバック
私道負担面積
--
都市計画
--
地目
--
用途地域
第一種住居地域
地勢
--
建ぺい率
60%
容積率
200%
土地権利
所有権
国土法届出
不要
借地料
--
借地期間
--
引渡し
即時
取引態様
仲介
その他費用
--
その他条件
--
備考
--
周辺施設
【小学校】西宮市立南甲子園小学校 639m
【中学校】西宮市立真砂中学校 1,045m
【スーパー】スーパー 863m
【公園】公園 1,088m
【その他】光明幼稚園 1,053m
物件番号
328000623989
自社管理番号
1550240000479
建築確認番号
--
登録日
2026/02/07
有効期限
2026/05/04

※情報提供元:LIFULL HOME'S

会社情報

取り扱い不動産会社

株式会社アルク不動産 武庫之荘駅前本店
住所
兵庫県尼崎市武庫之荘1丁目2-15 
営業時間など
営業時間/10:00~19:00
定休日/毎週火曜日・水曜日 年末年始
免許番号
兵庫県知事(02)第204389号
所属団体
(公社)近畿地区不動産公正取引協議会、(一社)兵庫県宅地建物取引業協会、(公社)近畿圏不動産流通機構
保証協会
-

物件に関するお問い合わせ

必須
必須
必須

※携帯電話でドメイン指定受信を利用している場合は、「chintaistyle.jp」「aruku-fudosan.com」を解除してください。

あなたにぴったりの物件情報などをお届けします。

確認ページへ進む

最近見た物件と比較

閲覧中
外観:328000623989

甲子園網引町

3,880万円

4LDK

建物
85.59㎡

土地
76.45㎡ (公簿)

築40年

西宮市甲子園網引町

阪神電鉄本線 甲子園駅/徒歩9分

資料請求する

外観:325000117349

大津市京町2丁目 3階建 129.58㎡

6,900万円

5DK

建物
129.58㎡

土地
76.99㎡ (公簿)

築33年

大津市京町2丁目

東海道本線 大津駅/徒歩7分

詳細を見る

外観:328000614505

神戸市垂水区西舞子8丁目 2階建 169.26㎡

3,980万円

5LDK

建物
169.26㎡

土地
526.64㎡ (公簿)

築53年

神戸市垂水区西舞子8丁目

山陽本線 朝霧駅/徒歩14分

詳細を見る

外観:301000100950

清田5条1丁目

1,699万円

4LDK

建物
129.02㎡

土地
195.92㎡ (公簿)

築36年

札幌市清田区清田五条1丁目

中央バス「清田西公園」下車 徒歩9分

詳細を見る

外観:328000611539

網干区津市場 中古戸建

590万円

8SDK

建物
215.82㎡ (壁芯)

土地
304.97㎡ (公簿)

築67年

姫路市網干区津市場

山陽電気鉄道網干線 山陽網干駅/徒歩18分

詳細を見る

近くの類似おすすめ物件

兵庫県西宮市の新着物件情報

現在00件保存されています。

残り00件追加することができます。

お気に入り物件一覧を見る

間隔を空けてお試しください。