八王子市北野台3丁目|八王子市(東京都)の空き家・中古住宅・中古一戸建て

【2026年02月撮影】

【2026年02月撮影】

3,399万円

月々の支払い目安:--

ローン詳細

\ 人気物件は決まるのが早い!まずはお問合せを /

メールアイコン 物件の資料をもらう 3項目のみ入力すればOK 無料

掲載終了まであと3

所在地・交通

東京都八王子市北野台3丁目

京王電鉄京王線 北野駅/バス 12分/北野台3丁目 徒歩3分

地図を見る

POINT

★約58坪の敷地が叶える、のびのび生活 ★広さが叶える、ストレスのない暮らし。和室のついた4LDKです♪ ★上質なデザインが心を奪う、内外装リフォーム物件の芸術。 ★地区計画内、緑に守られた住環境

間取り
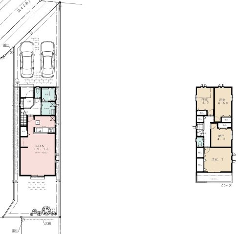
4LDK
建物面積
106.93 ㎡
築年月
1982 年3 月(築45 年)
土地権利
所有権
駐車場
--
現況
空家
実際に見学したい

朝日土地建物株式会社 八王子支店 営業2課

八王子市・日野市・多摩市の不動産は朝日土地建物八王子店にお任せください!創業42周年の安心と信頼。豊富な物件情報が自慢です!WEB未公開物件も多数!お気軽にお問合せください。

会社情報

この物件について

こちらの物件は京王電鉄京王線を北野駅で下車し、バスに12分乗車し、北野台3丁目から徒歩3分の場所に位置しています。見知らぬ訪問者への対応も安心なモニター付きドアホンが付いており、浴室には乾燥機が付いているので雨の日に洗濯物を干せるだけでなく入浴後の浴室の乾燥にも使えます。また、お手入れ・掃除がしやすいだけでなく、収納スペースなどが一体となったシステムキッチンが備わっております。周辺497m圏内(徒歩7分)には公園もあります。

※「この物件について」に記載の情報は、登録情報をもとに当サイトが掲載するものであり、不動産物件情報を掲載している不動産事業者が掲載するものではありません。

内観・外観

間取り図

ゆとりある18帖以上のリビングで、心地よい時間を過ごそう。 拡大

4LDK

建物面積
106.93 ㎡
土地面積
192.11 ㎡ (公簿)
建物構造
木造 / 2 階建

写真

パノラマ

\ 人気物件は決まるのが早い!まずはお問合せを /

メールアイコン 物件の資料をもらう 3項目のみ入力すればOK 無料

掲載終了まであと3

電話アイコン 電話で問い合わせ 無料

この物件を共有・保存する

設備

設備画像

主な設備

キッチン
  • システムキッチン

    システム
    キッチン

  • カウンターキッチン

    カウンター
    キッチン

  • IHコンロ

    IHコンロ

  • ガスコンロ

    ガスコンロ

バス・トイレ
  • 追い焚き

    追い焚き

  • 浴室乾燥機

    浴室乾燥機

  • シャワー付洗面化粧台

    シャワー付
    洗面化粧台

  • 洗浄便座

    洗浄便座

室内設備
  • ウォークインクローゼット

    ウォークイン
    クローゼット

  • 全居室収納

    全居室収納

  • TVモニタ付ドアホン

    TVモニタ付
    ドアホン

  • 床暖房

    床暖房

特徴
  • オール電化

    オール電化

  • バリアフリー

    バリアフリー

  • 南向き

    南向き

  • 駐車場付

    駐車場付

その他設備

公営水道、都市ガス、下水、シャワー、ガスコンロ、三口コンロ、システムキッチン、追焚機能、フローリング、TVドアホン、温水洗浄便座、浴室乾燥機、洗面所独立、浴室サイズ1坪以上(1.6×1.6m相当)、整形地、トイレ2ヶ所以上、浴室暖房、10㎡以上の庭

設備情報について質問する

\ 人気物件は決まるのが早い!まずはお問合せを /

メールアイコン 物件の資料をもらう 3項目のみ入力すればOK 無料

掲載終了まであと3

電話アイコン 電話で問い合わせ 無料

この物件を共有・保存する

周辺情報

周辺の歯医者

読込中

周辺の医療機関

読込中

周辺の駅

読込中

周辺の銀行

読込中

周辺のパン屋

読込中

その他の周辺施設を探す
学区や周辺について質問したい

周辺の生活情報

ハザード情報

物件周辺の土砂、浸水、津波、
地震の情報を地図で確認できます。

ハザードマップを確認する

※周辺情報は「 出典一覧(施設情報) 」のデータを元に当サイトが独自の方法で抽出し掲載しているものです。不動産物件情報を提供している不動産事業者が掲載するものでありません。
※周辺情報は移転や閉鎖等により情報が最新ではない、正しくない場合があります。詳しくは不動産会社にお問い合わせのうえ、ご確認をお願い致します。

\ 人気物件は決まるのが早い!まずはお問合せを /

メールアイコン 物件の資料をもらう 3項目のみ入力すればOK 無料

掲載終了まであと3

電話アイコン 電話で問い合わせ 無料

この物件を共有・保存する

物件概要

価格
3,399 万円

--

ローン詳細
間取り
4LDK
建物面積
106.93 ㎡
土地面積
192.11 ㎡ (公簿)
駐車場
--
築年月
1982 年 3 月(築 45 年)
住所
東京都八王子市北野台3丁目 地図を見る
交通

京王電鉄京王線 北野駅/バス 12分/北野台3丁目 徒歩3分

--

--

総戸数
1 戸
主要採光面
南東
建物構造
木造 / 2 階建
接道状況
一方 ( 北西 5.7m 公道 間口11.9m )
セットバック
私道負担面積
--
都市計画
--
地目
宅地
用途地域
第一種低層住居専用地域
地勢
平坦
建ぺい率
40%
容積率
80%
土地権利
所有権
国土法届出
--
借地料
--
借地期間
--
引渡し
相談
取引態様
仲介
その他費用
--
その他条件
--
備考
宅地造成工事規制区域、日影制限有、航空法、景観法、高度地区、高さ限度有、法第22条区域、北野台地区地区計画区域
約58坪のゆとりある敷地に建つ、開放感のある住まいです。敷地の広さを活かし、周囲との距離感にも余裕があるため、のびのびとした生活をお楽しみいただけます。建物は和室を備えた4LDKの間取りで、ご家族それぞれのライフスタイルに合わせた使い方が可能です。来客時やお子さまの遊び場、将来の寝室など、和室があることで暮らしの幅が広がります。
本物件はリフォーム再生住宅のため、室内はきれいに整えられており、購入後すぐに新生活をスタートできる点も魅力です。また、地区計画内の緑豊かな住環境に位置しており、街並みが整い、落ち着いた雰囲気の中で安心してお住まいいただけます。広さ・住環境・住み心地のバランスが取れた、長く暮らしたい方におすすめの物件です。
周辺施設
【小学校】八王子市立中山小学校 733m
【中学校】八王子市立中山中学校 762m
【コンビニ】コンビニ 1,233m
【スーパー】スーパー 1,225m
【総合病院】総合病院 1,606m
【公園】公園 497m
【商店街】商店街 2,817m
物件番号
313004647774
自社管理番号
1231700006586
建築確認番号
--
登録日
2026/02/07
有効期限
2026/03/30

※情報提供元:LIFULL HOME'S

会社情報

取り扱い不動産会社

朝日土地建物株式会社 八王子支店 営業2課
住所
東京都八王子市旭町10番3号 
営業時間など
営業時間/ 9:30~21:00
定休日/毎週水曜日 隔週火曜日 夏季休暇 年末年始
免許番号
国土交通大臣(9)第3744号
所属団体
(公社)首都圏不動産公正取引協議会、(公社)東京都宅地建物取引業協会
保証協会
(公社)全国宅地建物取引業保証協会

※光IP 電話、及びIP 電話からはご利用になれません
※情報元の「LIFULL HOME'S」掲載店舗に連絡されます
※不動産会社がお電話に出られなかった場合、株式会社LIFULLは電話会社が提供するサービスを介してお客様の発信者番号を受領後、折り返し専用の電話番号を発番してお問合せの不動産会社に通知します(お客様の発信者番号がお問合せの不動産会社に通知されることはございません)

物件に関するお問い合わせ

必須
必須
必須

※携帯電話でドメイン指定受信を利用している場合は、「chintaistyle.jp」「asahi-t-t.co.jp」を解除してください。

あなたにぴったりの物件情報などをお届けします。

確認ページへ進む

最近見た物件と比較

閲覧中
外観:313004647774

八王子市北野台3丁目

3,399万円

4LDK

建物
106.93㎡

土地
192.11㎡ (公簿)

築45年

八王子市北野台3丁目

京王電鉄京王線 北野駅/バス 12分/北野台3丁目 徒歩3分

資料請求する

外観:327002170348

新築戸建 千里山西3丁目

6,980万円

4LDK

建物
99.36㎡

土地
199.78㎡

築3年

吹田市千里山西3丁目

北大阪急行南北線 緑地公園駅/徒歩10分

詳細を見る

NO IMAGE

世田谷区上祖師谷2丁目 中古建て

11,000万円

3LDK

建物
103.68㎡

土地
175.68㎡ (公簿)

築46年

世田谷区上祖師谷2丁目

京王電鉄京王線 千歳烏山駅/徒歩11分

詳細を見る

外観:313004634010

日野市大字日野 2階建 68.50㎡

2,800万円

3LDK

建物
68.50㎡

土地
86.06㎡ (実測)

築23年

日野市大字日野

多摩モノレール 甲州街道駅/徒歩8分

詳細を見る

NO IMAGE

文京区目白台2丁目

20,000万円

4LDK

建物
169.89㎡ (壁芯)

土地
106.80㎡

築38年

文京区目白台2丁目

東京メトロ有楽町線 護国寺駅/徒歩8分

詳細を見る

外観:313004650156

小平市学園東町 2階建 92.74㎡

4,480万円

4LDK

建物
92.74㎡ (壁芯)

土地
117.26㎡ (公簿)

築12年

小平市学園東町

西武鉄道多摩湖線 一橋学園駅/徒歩18分

詳細を見る

外観:313004658557

練馬区貫井5丁目戸建

3,580万円

1LDK

建物
39.66㎡

土地
34.89㎡

築59年

練馬区貫井5丁目

西武池袋・豊島線 富士見台駅/徒歩13分

詳細を見る

外観:321000079130

本巣市政田 店舗付き中古戸建

1,780万円

2LDK

建物
112.45㎡

土地
333.50㎡ (公簿)

築49年

本巣市政田

岐阜バス「政田」下車 徒歩3分

詳細を見る

外観:313004646437

青梅市柚木町3丁目 中古戸建

2,286.35万円

3SLDK

建物
103.68㎡

土地
185.21㎡

築4年

青梅市柚木町3丁目

青梅線 軍畑駅/徒歩11分

詳細を見る

外観:313004574346

杉並区今川4丁目戸建

18,800万円

4SLDK

建物
183.96㎡ (壁芯)

土地
204.72㎡ (公簿)

築18年

杉並区今川4丁目

西武鉄道新宿線 上井草駅/徒歩15分

詳細を見る

外観:313004652706

練馬区貫井5丁目

3,580万円

1LDK

建物
39.66㎡

土地
34.89㎡ (公簿)

築59年

練馬区貫井5丁目

西武池袋・豊島線 中村橋駅/徒歩12分

詳細を見る

外観:313004634372

稲城市坂浜中古戸建

3,980万円

4LDK

建物
101.85㎡

土地
150.41㎡ (公簿)

築8年

稲城市坂浜

京王電鉄相模原線 若葉台駅/徒歩21分

詳細を見る

NO IMAGE

世田谷区桜1丁目 戸建て

9,280万円

3LDK

建物
81.24㎡

土地
58.08㎡ (公簿)

築24年

世田谷区桜1丁目

小田急電鉄小田原線 経堂駅/徒歩10分

詳細を見る

外観:313004601611

杉並区今川4丁目 中古戸建

18,800万円

4SLDK

建物
183.96㎡

土地
204.72㎡ (公簿)

築18年

杉並区今川4丁目

西武鉄道新宿線 上井草駅/徒歩16分

詳細を見る

外観:313004650084

LDK16帖「矢口Selection」

5,480万円

2LDK

建物
92.77㎡

土地
68.84㎡ (公簿)

築13年

大田区矢口3丁目

東急多摩川線 矢口渡駅/徒歩11分

詳細を見る

外観:313004625640

八王子市川口町 中古戸建

2,999万円

5LDK

建物
109.30㎡

土地
199.00㎡ (公簿)

築48年

八王子市川口町

中央本線 八王子駅/バス 26分/新川口 徒歩7分

詳細を見る

近くの類似おすすめ物件

東京都八王子市の新着物件情報

現在00件保存されています。

残り00件追加することができます。

お気に入り物件一覧を見る

間隔を空けてお試しください。

メールアイコン 資料請求 無料 電話アイコン 電話する 無料