北野駅(東京都)周辺の空き家・中古住宅・中古一戸建て・一軒家の購入情報

北野駅(東京都)周辺の空き家・中古住宅・中古一戸建て・一軒家の購入情報をご覧いただけます。

60

↓ チェックした物件をまとめてお問い合わせ

外観:313004652650
中古戸建て

北野駅まで約2255m

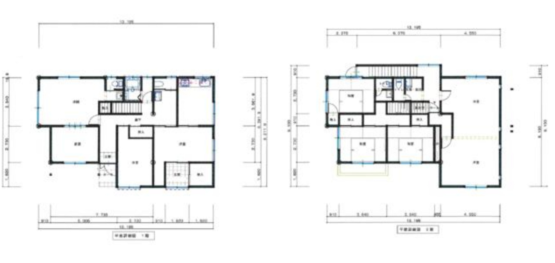
間取り:313004652650
  • 4,280万円
  • 東京都八王子市南陽台3丁目
  • 京王電鉄京王線 北野駅 バス16分 南陽台中央下車 徒歩3分
  • 4SLDK/築4 年
  • 103.67㎡(建物)
  • 138.75㎡(土地)

◇京王線「長沼」駅徒歩約22分! ◇築4年未満の綺麗な築浅物件♪ ◇4SLDKの収納力と使い勝手を兼ね備えた間取! ◇リビングにはお洒落な折上げ天井を採用♪ ◇駐車場には雨の日に役立つカーポート付き!

  • 駐車場有
  • システム
    キッチン
  • 追焚機能
  • 所有権
  • 低層住宅地
  • 南向き
  • 小学校
    800m以内
  • スーパー
    800m以内
朝日土地建物株式会社 八王子支店 営業5課

その他の情報

外観:313004595173
中古戸建て 空家

【近い!】 北野駅まで約986m

間取り:313004595173
  • 4,480万円
  • 東京都八王子市絹ケ丘2丁目
  • 京王電鉄京王線 北野駅 徒歩15分
  • 3SLDK/築6 年
  • 98.53㎡(建物)
  • 118.01㎡(土地)
  • 駐車場有
  • システム
    キッチン
  • 追焚機能
  • 所有権
  • 低層住宅地
  • 南向き
  • 小学校
    800m以内
  • スーパー
    800m以内
株式会社東宝ハウス調布

不動産の購入と売却のご相談はお気軽に東宝ハウス調布までお問い合わせください。ただ家を売るだけでなく、アフターサービスも充実した東宝ハウスグループで安心、安全の不動産購入と売却を。

その他の情報

外観:313004516343
中古戸建て 空家

北野駅まで約1109m

間取り:313004516343
  • 4,480万円
  • 東京都八王子市絹ケ丘2丁目
  • 京王電鉄京王線 北野駅 徒歩15分
  • 3SLDK/築6 年
  • 98.53㎡(建物)
  • 118.01㎡(土地)

◆2020年築、環境と家計に優しいオール電化3SLDK住宅。 ◆屋根裏収納や小屋裏収納、パントリーなど多彩な収納スペースでゆとりある生活を♪ ◆駐車スペース2台可能、前面道路8m幅で車の出し入れも楽々

  • 駐車場有
  • システム
    キッチン
  • 追焚機能
  • 所有権
  • 低層住宅地
  • 南向き
  • 小学校
    800m以内
  • スーパー
    800m以内
朝日土地建物株式会社 八王子支店 営業3課

八王子市・日野市・多摩市の不動産は朝日土地建物八王子店にお任せください!創業42周年の安心と信頼。豊富な物件情報が自慢です!WEB未公開物件も多数!お気軽にお問合せください。

その他の情報

外観:313004448277
中古戸建て 空家

北野駅まで約1108m

間取り:313004448277
  • 4,480万円
  • 東京都八王子市絹ケ丘2丁目
  • 京王電鉄京王線 北野駅 徒歩15分
  • 3SLDK/築6 年
  • 98.53㎡(建物)
  • 118.01㎡(土地)

3LDK+サービスルーム(クローゼット付き) カースペース2台有り(車種による) 宅配BOX付き

  • 駐車場有
  • システム
    キッチン
  • 追焚機能
  • 所有権
  • 低層住宅地
  • 南向き
  • 小学校
    800m以内
  • スーパー
    800m以内
朝日土地建物株式会社 橋本支店 営業5課

地域密着41年。相模原・町田・八王子は弊社にお任せください。

その他の情報

外観:313004605336
中古戸建て 空家

北野駅まで約1110m

間取り:313004605336
  • 4,480万円
  • 東京都八王子市絹ケ丘2丁目
  • 京王電鉄京王線 北野駅 徒歩15分
  • 3SLDK/築6 年
  • 98.53㎡(建物)
  • 118.01㎡(土地)

◆長期優良住宅認定!ミサワホーム施工 ◆工夫した収納スペースのある片付け上手な住まい ◆解放感のある吹抜けのリビングダイニング ◆オール電化!電動シャッター付 ◆前面道路8m幅で車の出し入れも楽々

  • 駐車場有
  • システム
    キッチン
  • 追焚機能
  • 所有権
  • 低層住宅地
  • 南向き
  • 小学校
    800m以内
  • スーパー
    800m以内
朝日土地建物株式会社 八王子支店 営業5課

その他の情報

外観:313004646361
中古戸建て 空家
間取り:313004646361
  • 4,980万円
  • 東京都八王子市長沼町
  • 京王電鉄京王線 北野駅 徒歩16分
  • 4SLDK/築2 年
  • 105.98㎡(建物)
  • 134.48㎡(土地)

駐車スペース2台可(車種による) 制震ダンパー搭載 Low-Eペアガラス ノンワックスフローリング グルニエ(小屋裏収納)付き 室内一部アクセントクロス施工 浴室乾燥機付きバスルーム

  • 駐車場有
  • システム
    キッチン
  • 追焚機能
  • 所有権
  • 低層住宅地
  • 南向き
  • 小学校
    800m以内
  • スーパー
    800m以内
株式会社 東宝ハウス町田

新宿、渋谷から30分のマイホーム探しをお手伝いします。町田を中心に小田急、横浜、田園都市線と幅広く取り扱っています。是非当社のホームページも是非ご覧ください!

その他の情報

NO IMAGE
中古戸建て 空家
間取り:313003955183
  • 4,480万円
  • 東京都八王子市絹ケ丘2丁目
  • 京王電鉄高尾線 北野駅 徒歩15分
  • 3SLDK/築6 年
  • 98.53㎡(建物)
  • 118.01㎡(土地)
  • 駐車場有
  • システム
    キッチン
  • 追焚機能
  • 所有権
  • 低層住宅地
  • 南向き
  • 小学校
    800m以内
  • スーパー
    800m以内
株式会社住まいの広場TOWNS

物件公開常時3千件以上!プラス未公開情報で、他社と比べても多くの物件をご紹介可能です。また、FP資格者によるライフプランのご提案が可能です。目指すは顧客満足度No.1、「出会えてよかった」を提供します。

その他の情報

外観:313004600372
中古戸建て 空家
間取り:313004600372
  • 4,480万円
  • 東京都八王子市絹ケ丘2丁目
  • 京王電鉄京王線 北野駅 徒歩15分
  • 3SLDK/築6 年
  • 98.53㎡(建物)
  • 118.01㎡(土地)

駐車スペース2台可(車種による) オール電化住宅 空室につき内覧可能 居室としても使える広さのサービスルームあり 食洗機・浄水器一体型システムキッチン 浴室乾燥機付きバスルーム

  • 駐車場有
  • システム
    キッチン
  • 追焚機能
  • 所有権
  • 低層住宅地
  • 南向き
  • 小学校
    800m以内
  • スーパー
    800m以内
株式会社 東宝ハウス町田

新宿、渋谷から30分のマイホーム探しをお手伝いします。町田を中心に小田急、横浜、田園都市線と幅広く取り扱っています。是非当社のホームページも是非ご覧ください!

その他の情報

外観:313004637153
中古戸建て 空家

北野駅まで約1110m

間取り:313004637153
  • 4,480万円
  • 東京都八王子市絹ケ丘2丁目
  • 京王電鉄京王線 北野駅 徒歩15分
  • 3SLDK/築6 年
  • 98.53㎡(建物)
  • 118.01㎡(土地)

2020年8月築の築浅物件 ミサワホーム施工 忙しいご家族にうれしい宅配ボックス 開放感のある吹抜けリビングダイニング 収納豊富で広々とした住空間 充実設備で快適な暮らし お気軽にお問い合わせ下さい

  • 駐車場有
  • システム
    キッチン
  • 追焚機能
  • 所有権
  • 低層住宅地
  • 南向き
  • 小学校
    800m以内
  • スーパー
    800m以内
株式会社東宝ハウス立川

東京多摩地区の売買情報ならお任せ下さい。一戸建て、マンション、土地の情報量が自慢です。

その他の情報

外観:313004602407
中古戸建て 空家

北野駅まで約1108m

間取り:313004602407
  • 4,480万円
  • 東京都八王子市絹ケ丘2丁目
  • 京王電鉄京王線 北野駅 徒歩15分
  • 3SLDK/築6 年
  • 98.53㎡(建物)
  • 118.01㎡(土地)

《2020年8月築!ミサワホーム施工》○ミサワホーム施工の中古戸建!洋室としても利用可能なサービスルームあり!○南東向き陽当たり良好○京王線「北野」駅徒歩15分○カースペース2台駐車可能!

  • 駐車場有
  • システム
    キッチン
  • 追焚機能
  • 所有権
  • 低層住宅地
  • 南向き
  • 小学校
    800m以内
  • スーパー
    800m以内
株式会社クリップ クリップハウジング 八王子支店

【売主物件多数有り】クリップハウジングでは八王子市・多摩エリアを中心に、新築・中古戸建、土地、マンションなど、豊富な物件情報を取り扱っております。お気軽にご相談ください!

その他の情報

NO IMAGE
中古戸建て 空家

北野駅まで約1110m

間取り:313004508267
  • 4,480万円
  • 東京都八王子市絹ケ丘2丁目
  • 京王電鉄京王線 北野駅 徒歩15分
  • 3SLDK/築6 年
  • 98.53㎡(建物)
  • 118.01㎡(土地)

☆ミサワホーム(株)施工『蔵のある家』☆3LDK+サービスルーム(クローゼット付)☆駐車2台可☆

  • 駐車場有
  • システム
    キッチン
  • 追焚機能
  • 所有権
  • 低層住宅地
  • 南向き
  • 小学校
    800m以内
  • スーパー
    800m以内
株式会社Mスタイルプランニング

お住まい探しの期待と不安に寄り添い、お客様の良き相談相手となれるよう精一杯ご案内いたします。皆様からご相談いただける日を社員一同楽しみにお待ちしております。

その他の情報

外観:313004643407
中古戸建て 空家

北野駅まで約1110m

間取り:313004643407
  • 4,480万円
  • 東京都八王子市絹ケ丘2丁目
  • 京王電鉄京王線 北野駅 徒歩15分
  • 3SLDK/築6 年
  • 98.53㎡(建物)
  • 118.01㎡(土地)
  • 駐車場有
  • システム
    キッチン
  • 追焚機能
  • 所有権
  • 低層住宅地
  • 南向き
  • 小学校
    800m以内
  • スーパー
    800m以内
株式会社藤和ハウス インターネットお問い合わせセンター

藤和ハウスは創業1975年の信頼と実績!東京・埼玉エリアを中心に全19店舗のネットワーク。不動産(一戸建て・土地・マンション)なら藤和ハウスインターネットお問合せセンターまでお気軽にお問合せください!

その他の情報

外観:313004647587
中古戸建て 空家

北野駅まで約2311m

間取り:313004647587
  • 2,980万円
  • 東京都八王子市南陽台2丁目
  • 京王電鉄京王線 北野駅 バス11分 南陽台商店街下車 徒歩3分
  • 4LDK/築40 年
  • 131.66㎡(建物)
  • 170.88㎡(土地)

☆フルリフォーム。美しく蘇る住まい ☆南道路、高台につき明るい陽光を取り込みます ☆美しい景色と共に、2階LDK。 ☆約50坪のゆとりある敷地 ☆約39坪の広々と使える建物

  • 駐車場有
  • システム
    キッチン
  • 追焚機能
  • 所有権
  • 低層住宅地
  • 南向き
  • 小学校
    800m以内
  • スーパー
    800m以内
朝日土地建物株式会社 八王子支店 営業2課

八王子市・日野市・多摩市の不動産は朝日土地建物八王子店にお任せください!創業42周年の安心と信頼。豊富な物件情報が自慢です!WEB未公開物件も多数!お気軽にお問合せください。

その他の情報

NO IMAGE
中古戸建て

【近い!】 北野駅まで約824m

間取り:313004668280
  • 3,680万円
  • 東京都八王子市絹ケ丘1丁目
  • 京王電鉄京王線 北野駅 徒歩15分
  • 3LDK/築31 年
  • 105.78㎡(建物)
  • 144.47㎡(土地)

◆北野駅徒歩約10分は貴重です ◆トヨタホーム設計・軽量鉄骨造の中古戸建 ◆3LDKのリフォーム済み物件が絹ケ丘1丁目に登場 ◆全室2面以上採光が設けられており、日当たり、風通しに期待ができる

  • 駐車場有
  • システム
    キッチン
  • 追焚機能
  • 所有権
  • 低層住宅地
  • 南向き
  • 小学校
    800m以内
  • スーパー
    800m以内
朝日土地建物株式会社 八王子支店

八王子市・日野市・多摩市の不動産は 朝日土地建物八王子店にお任せください!創業42周年の安心と信頼。豊富な物件情報が自慢です!WEB未公開物件も多数!お気軽にお問い合わせください。

その他の情報

外観:313004402240
中古戸建て 空家
間取り:313004402240
  • 2,799万円
  • 東京都八王子市北野台1丁目
  • 京王電鉄高尾線 北野駅 徒歩20分
  • 4LDK/築49 年
  • 96.88㎡(建物)
  • 204.57㎡(土地)
  • 駐車場有
  • システム
    キッチン
  • 追焚機能
  • 所有権
  • 低層住宅地
  • 南向き
  • 小学校
    800m以内
  • スーパー
    800m以内
株式会社住まいの広場TOWNS

物件公開常時3千件以上!プラス未公開情報で、他社と比べても多くの物件をご紹介可能です。また、FP資格者によるライフプランのご提案が可能です。目指すは顧客満足度No.1、「出会えてよかった」を提供します。

その他の情報

外観:313004490186
中古戸建て 空家
間取り:313004490186
  • 3,597万円
  • 東京都八王子市南陽台1丁目
  • 京王電鉄高尾線 北野駅 バス11分 南陽台商店街下車 徒歩5分
  • 6LDK/築31 年
  • 151.04㎡(建物)
  • 217.40㎡(土地)
  • 駐車場有
  • システム
    キッチン
  • 追焚機能
  • 所有権
  • 低層住宅地
  • 南向き
  • 小学校
    800m以内
  • スーパー
    800m以内
株式会社住まいの広場TOWNS

物件公開常時3千件以上!プラス未公開情報で、他社と比べても多くの物件をご紹介可能です。また、FP資格者によるライフプランのご提案が可能です。目指すは顧客満足度No.1、「出会えてよかった」を提供します。

その他の情報

外観:313004601638
中古戸建て

北野駅まで約1208m

間取り:313004601638
  • 2,480万円
  • 東京都八王子市大和田町1丁目
  • 京王電鉄高尾線 北野駅 徒歩25分
  • 4LDK/築12 年
  • 99.36㎡(建物)
  • 161.79㎡(土地)

【室内状態良好!H26年9月築】【2部屋にウォークインクローゼット付!収納豊富】○LDK15帖陽当り良好○2部屋に渡るワイドバルコニー○随時ご内覧ご予約受付中!お気軽にお問い合わせください

  • 駐車場有
  • システム
    キッチン
  • 追焚機能
  • 所有権
  • 低層住宅地
  • 南向き
  • 小学校
    800m以内
  • スーパー
    800m以内
株式会社クリップ クリップハウジング 八王子支店

【売主物件多数有り】クリップハウジングでは八王子市・多摩エリアを中心に、新築・中古戸建、土地、マンションなど、豊富な物件情報を取り扱っております。お気軽にご相談ください!

その他の情報

外観:313004229087
中古戸建て 空家

北野駅まで約1379m

間取り:313004229087
  • 2,799万円
  • 東京都八王子市北野台1丁目
  • 京王電鉄京王線 北野駅 バス10分 北野台一丁目下車 徒歩3分
  • 4LDK/築49 年
  • 96.88㎡(建物)
  • 204.57㎡(土地)

■京王線「北野駅」まで徒歩20分、バス10分、バス停迄徒歩3分 ■魅力ある内外装リフォーム物件。新しい生活の始まりを。 ■バルコニーは南向き!日当たり良好 ■LDKは17帖以上の大空間を提供

  • 駐車場有
  • システム
    キッチン
  • 追焚機能
  • 所有権
  • 低層住宅地
  • 南向き
  • 小学校
    800m以内
  • スーパー
    800m以内
朝日土地建物株式会社 八王子支店

八王子市・日野市・多摩市の不動産は 朝日土地建物八王子店にお任せください!創業42周年の安心と信頼。豊富な物件情報が自慢です!WEB未公開物件も多数!お気軽にお問い合わせください。

その他の情報

NO IMAGE
中古戸建て
間取り:313004486332
  • 9,200万円
  • 東京都八王子市七国1丁目
  • 京王電鉄京王線 北野駅 バス22分 八王子みなみ野駅下車 徒歩10分
  • 4LDK/築18 年
  • 177.11㎡(建物)
  • 286.86㎡(土地)
  • 駐車場有
  • システム
    キッチン
  • 追焚機能
  • 所有権
  • 低層住宅地
  • 南向き
  • 小学校
    800m以内
  • スーパー
    800m以内
株式会社住まいの広場TOWNS

物件公開常時3千件以上!プラス未公開情報で、他社と比べても多くの物件をご紹介可能です。また、FP資格者によるライフプランのご提案が可能です。目指すは顧客満足度No.1、「出会えてよかった」を提供します。

その他の情報

外観:313004284585
中古戸建て 空家
間取り:313004284585
  • 2,850万円
  • 東京都八王子市南陽台2丁目
  • 京王電鉄高尾線 北野駅 バス19分 ヒルサイドテラス前下車 徒歩14分
  • 7SDK/築48 年
  • 144.14㎡(建物)
  • 226.95㎡(土地)
  • 駐車場有
  • システム
    キッチン
  • 追焚機能
  • 所有権
  • 低層住宅地
  • 南向き
  • 小学校
    800m以内
  • スーパー
    800m以内
株式会社住まいの広場TOWNS

物件公開常時3千件以上!プラス未公開情報で、他社と比べても多くの物件をご紹介可能です。また、FP資格者によるライフプランのご提案が可能です。目指すは顧客満足度No.1、「出会えてよかった」を提供します。

その他の情報

外観:313004497907
中古戸建て 空家
間取り:313004497907
  • 2,280万円
  • 東京都八王子市大和田町1丁目
  • 京王電鉄高尾線 北野駅 徒歩24分
  • 4LDK/築36 年
  • 144.39㎡(建物)
  • 168.51㎡(土地)
  • 駐車場有
  • システム
    キッチン
  • 追焚機能
  • 所有権
  • 低層住宅地
  • 南向き
  • 小学校
    800m以内
  • スーパー
    800m以内
株式会社住まいの広場TOWNS

物件公開常時3千件以上!プラス未公開情報で、他社と比べても多くの物件をご紹介可能です。また、FP資格者によるライフプランのご提案が可能です。目指すは顧客満足度No.1、「出会えてよかった」を提供します。

その他の情報

NO IMAGE
中古戸建て 空家

北野駅まで約2914m

間取り:313004562515
  • 5,597万円
  • 東京都八王子市兵衛1丁目
  • 京王電鉄京王線 北野駅 バス17分 みなみの大橋下車 徒歩10分
  • 3SLDK/築30 年
  • 105.90㎡(建物)
  • 266.50㎡(土地)

【仲介50キャンペーン対象物件】手数料半額+保険付売買は安心の全国732店舗展開中ハウスドゥ立川北

  • 駐車場有
  • システム
    キッチン
  • 追焚機能
  • 所有権
  • 低層住宅地
  • 南向き
  • 小学校
    800m以内
  • スーパー
    800m以内
ハウスドゥ 立川北 株式会社シティリノベーション

新築!仲介手数料無料!のゼロキャンペーン実施中のハウスドゥ立川北です。新築建売住宅を買うならハウスドゥ立川北で!中古住宅でも仲介手数料半額キャンペーンを同時開催中!

その他の情報

NO IMAGE
中古戸建て 空家

北野駅まで約1521m

NO IMAGE
  • 3,800万円
  • 東京都八王子市片倉町
  • 京王電鉄京王線 北野駅 バス9分 片倉台下車 徒歩3分
  • 2SLDK/築27 年
  • 96.77㎡(建物)
  • 161.74㎡(土地)

積水ハウス施工のご物件! 閑静な住宅街、陽当たり良好! 1階掃き出し開口部とリビング西側窓に電動シャッター設置! 都市ガス◎

  • 駐車場有
  • システム
    キッチン
  • 追焚機能
  • 所有権
  • 低層住宅地
  • 南向き
  • 小学校
    800m以内
  • スーパー
    800m以内
朝日土地建物株式会社 橋本支店 営業2課

その他の情報

外観:313004647774
中古戸建て 空家

北野駅まで約2205m

間取り:313004647774
  • 3,399万円
  • 東京都八王子市北野台3丁目
  • 京王電鉄京王線 北野駅 バス12分 北野台3丁目下車 徒歩3分
  • 4LDK/築45 年
  • 106.93㎡(建物)
  • 192.11㎡(土地)

★約58坪の敷地が叶える、のびのび生活 ★広さが叶える、ストレスのない暮らし。和室のついた4LDKです♪ ★上質なデザインが心を奪う、内外装リフォーム物件の芸術。 ★地区計画内、緑に守られた住環境

  • 駐車場有
  • システム
    キッチン
  • 追焚機能
  • 所有権
  • 低層住宅地
  • 南向き
  • 小学校
    800m以内
  • スーパー
    800m以内
朝日土地建物株式会社 八王子支店 営業2課

八王子市・日野市・多摩市の不動産は朝日土地建物八王子店にお任せください!創業42周年の安心と信頼。豊富な物件情報が自慢です!WEB未公開物件も多数!お気軽にお問合せください。

その他の情報

外観:313004558975
中古戸建て

北野駅まで約1354m

間取り:313004558975
  • 1,660万円
  • 東京都八王子市絹ケ丘3丁目
  • 京王電鉄京王線 北野駅 徒歩21分
  • 3SLDK/築29 年
  • 68.80㎡(建物)
  • 70.39㎡(土地)

■晴れた日には富士山が一望できます。■北野駅徒歩22分閑静な住宅地。■北西角地の戸建、明るく開放的で眺望。■駐車スペースあり。雨の日も安心のお出かけを。■室内大変キレイにお使いです。

  • 駐車場有
  • システム
    キッチン
  • 追焚機能
  • 所有権
  • 低層住宅地
  • 南向き
  • 小学校
    800m以内
  • スーパー
    800m以内
有限会社住地ハウジング

お客様と住まいの結び役として、住まい探しのベストパートナーであり続けます!

その他の情報

NO IMAGE
中古戸建て 空家

【近い!】 北野駅まで約825m

間取り:313004668629
  • 3,680万円
  • 東京都八王子市絹ケ丘1丁目
  • 京王電鉄京王線 北野駅 徒歩15分
  • 3LDK/築31 年
  • 105.78㎡(建物)
  • 144.47㎡(土地)
  • 駐車場有
  • システム
    キッチン
  • 追焚機能
  • 所有権
  • 低層住宅地
  • 南向き
  • 小学校
    800m以内
  • スーパー
    800m以内
株式会社藤和ハウス インターネットお問い合わせセンター

藤和ハウスは創業1975年の信頼と実績!東京・埼玉エリアを中心に全19店舗のネットワーク。不動産(一戸建て・土地・マンション)なら藤和ハウスインターネットお問合せセンターまでお気軽にお問合せください!

その他の情報

外観:313004655459
中古戸建て 空家

北野駅まで約1378m

間取り:313004655459
  • 2,799万円
  • 東京都八王子市北野台1丁目
  • 京王電鉄京王線 北野駅 徒歩20分
  • 4LDK/築49 年
  • 96.88㎡(建物)
  • 204.57㎡(土地)

高台に立地、区画整理地内立地です。2沿線以上利用可で通勤通学に便利です。床下収納付でスッキリ暮らせます。オープンキッチンで使いやすいです。浴室に窓付でバスタイムを快適に過ごせます。

  • 駐車場有
  • システム
    キッチン
  • 追焚機能
  • 所有権
  • 低層住宅地
  • 南向き
  • 小学校
    800m以内
  • スーパー
    800m以内
住宅情報館株式会社 八王子店

八王子エリア、近隣エリアの新築・中古一戸建・マンション・土地の購入・売却~注文建築・リフォームまで、住まいの事なら「住宅情報館」にお任せ下さい。

その他の情報

外観:313004603595
中古戸建て 空家

北野駅まで約1378m

間取り:313004603595
  • 2,799万円
  • 東京都八王子市北野台1丁目
  • 京王電鉄高尾線 北野駅 徒歩21分
  • 4LDK/築49 年
  • 96.88㎡(建物)
  • 204.57㎡(土地)

《新規リフォーム予定・全居室南向きの間取り設計》○南向き陽当り良好!〇カースペースあり♪○経済的な都市ガスエリア!

  • 駐車場有
  • システム
    キッチン
  • 追焚機能
  • 所有権
  • 低層住宅地
  • 南向き
  • 小学校
    800m以内
  • スーパー
    800m以内
株式会社クリップ クリップハウジング 八王子支店

【売主物件多数有り】クリップハウジングでは八王子市・多摩エリアを中心に、新築・中古戸建、土地、マンションなど、豊富な物件情報を取り扱っております。お気軽にご相談ください!

その他の情報

外観:313004646991
中古戸建て 空家

北野駅まで約2205m

間取り:313004646991
  • 3,399万円
  • 東京都八王子市北野台3丁目
  • 京王電鉄京王線 北野駅 バス12分 北野台三丁目下車 徒歩3分
  • 4LDK/築45 年
  • 106.93㎡(建物)
  • 192.11㎡(土地)

南東向きバルコニーの明るい住まい 収納豊富で広々とした住空間 内外装リフォームの為気持ちよくお使いいただけます 閑静な住宅地で住環境良好です

  • 駐車場有
  • システム
    キッチン
  • 追焚機能
  • 所有権
  • 低層住宅地
  • 南向き
  • 小学校
    800m以内
  • スーパー
    800m以内
株式会社東宝ハウス立川

東京多摩地区の売買情報ならお任せ下さい。一戸建て、マンション、土地の情報量が自慢です。

その他の情報

外観:313004636166
中古戸建て 空家

北野駅まで約1379m

間取り:313004636166
  • 2,799万円
  • 東京都八王子市北野台1丁目
  • 京王電鉄京王線 北野駅 バス10分 北野台一丁目下車 徒歩3分
  • 4LDK/築49 年
  • 96.88㎡(建物)
  • 204.57㎡(土地)

新規リフォーム物件 採光、通風に恵まれた全室南向き リビングに隣接されたくつろぎの和室 綺麗なお部屋で気持ち良くお過ごしいただけます お気軽にお問い合わせ下さい

  • 駐車場有
  • システム
    キッチン
  • 追焚機能
  • 所有権
  • 低層住宅地
  • 南向き
  • 小学校
    800m以内
  • スーパー
    800m以内
株式会社東宝ハウス立川

東京多摩地区の売買情報ならお任せ下さい。一戸建て、マンション、土地の情報量が自慢です。

その他の情報

1ページ目(2ページ中) 次へ
この条件で新着メールを受取る
この検索条件を保存する

※北野駅までの直線距離を表示しています。道路距離ではありませんのでご了承ください。

追加が完了しました。

現在00件保存されています。(最大5件)

保存した条件一覧を見る

現在00件保存されています。

残り00件追加することができます。

お気に入り物件一覧を見る

間隔を空けてお試しください。

問合せが未完了の物件

駅を変更 条件を変更
チェックした物件をまとめて 資料請求(無料) お気に入りに追加