八王子市絹ヶ丘2丁目|北野駅から徒歩15分|八王子市(東京都)の空き家・中古住宅・中古一戸建て

充実した設備とプライベート感がたっぷりの邸宅。

充実した設備とプライベート感がたっぷりの邸宅。

4,480万円

月々の支払い目安:--

ローン詳細

\ 人気物件は決まるのが早い!まずはお問合せを /

メールアイコン 物件の資料をもらう 3項目のみ入力すればOK 無料

掲載終了まであと11

所在地・交通

東京都八王子市絹ケ丘2丁目

京王電鉄京王線 北野駅/徒歩15分

地図を見る

POINT

3LDK+サービスルーム(クローゼット付き) カースペース2台有り(車種による) 宅配BOX付き

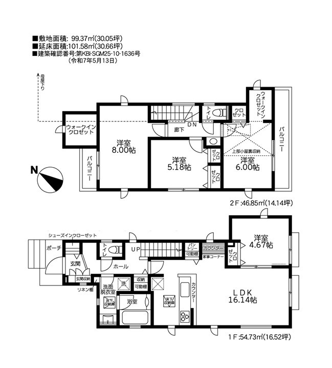
間取り
3SLDK
建物面積
98.53 ㎡
築年月
2020 年8 月(築6 年)
土地権利
所有権
駐車場
空有 (2 台) 無料
現況
空家
実際に見学したい

朝日土地建物株式会社 橋本支店 営業5課

地域密着41年。相模原・町田・八王子は弊社にお任せください。

会社情報

この物件について

この物件は京王電鉄京王線を北野駅で下車し、徒歩15分の場所に位置しています。駐車場が2台以上あるので家族用としてだけでなく来客時も安心して車が停められ、浴室には追い焚き機能が付いているので、いつでも温かいお風呂に入れ家族が多くても安心です。また、浴室には乾燥機が付いているので雨の日に洗濯物を干せるだけでなく入浴後の浴室の乾燥にも使えます。周辺225m圏内(徒歩3分)には公園もあります。

※「この物件について」に記載の情報は、登録情報をもとに当サイトが掲載するものであり、不動産物件情報を掲載している不動産事業者が掲載するものではありません。

内観・外観

間取り図

絹ヶ丘 間取り図 拡大

3SLDK

建物面積
98.53 ㎡
土地面積
118.01 ㎡
建物構造
木造 / 2 階建

写真

\ 人気物件は決まるのが早い!まずはお問合せを /

メールアイコン 物件の資料をもらう 3項目のみ入力すればOK 無料

掲載終了まであと11

電話アイコン 電話で問い合わせ 無料

この物件を共有・保存する

設備

設備画像

主な設備

キッチン
  • システムキッチン

    システム
    キッチン

  • カウンターキッチン

    カウンター
    キッチン

  • IHコンロ

    IHコンロ

  • ガスコンロ

    ガスコンロ

バス・トイレ
  • 追い焚き

    追い焚き

  • 浴室乾燥機

    浴室乾燥機

  • シャワー付洗面化粧台

    シャワー付
    洗面化粧台

  • 洗浄便座

    洗浄便座

室内設備
  • ウォークインクローゼット

    ウォークイン
    クローゼット

  • 全居室収納

    全居室収納

  • TVモニタ付ドアホン

    TVモニタ付
    ドアホン

  • 床暖房

    床暖房

特徴
  • オール電化

    オール電化

  • バリアフリー

    バリアフリー

  • 南向き

    南向き

  • 駐車場付

    駐車場付

その他設備

公営水道、下水、バス・トイレ別、シャワー、システムキッチン、追焚機能、シャワー付洗面化粧台、温水洗浄便座、オール電化、カウンターキッチン、浴室乾燥機、食器洗い乾燥機、オートバス、浄水器・活水器、トイレ2ヶ所以上、浴室暖房、電動シャッター、平面駐車場

設備情報について質問する

\ 人気物件は決まるのが早い!まずはお問合せを /

メールアイコン 物件の資料をもらう 3項目のみ入力すればOK 無料

掲載終了まであと11

電話アイコン 電話で問い合わせ 無料

この物件を共有・保存する

周辺情報

周辺の歯医者

読込中

周辺の医療機関

読込中

周辺の駅

読込中

周辺の銀行

読込中

周辺のパン屋

読込中

その他の周辺施設を探す
学区や周辺について質問したい

周辺の生活情報

ハザード情報

物件周辺の土砂、浸水、津波、
地震の情報を地図で確認できます。

ハザードマップを確認する

※周辺情報は「 出典一覧(施設情報) 」のデータを元に当サイトが独自の方法で抽出し掲載しているものです。不動産物件情報を提供している不動産事業者が掲載するものでありません。
※周辺情報は移転や閉鎖等により情報が最新ではない、正しくない場合があります。詳しくは不動産会社にお問い合わせのうえ、ご確認をお願い致します。

\ 人気物件は決まるのが早い!まずはお問合せを /

メールアイコン 物件の資料をもらう 3項目のみ入力すればOK 無料

掲載終了まであと11

電話アイコン 電話で問い合わせ 無料

この物件を共有・保存する

物件概要

価格
4,480 万円

--

ローン詳細
間取り
3SLDK
建物面積
98.53 ㎡
土地面積
118.01 ㎡
駐車場
空有 (2 台) 無料
築年月
2020 年 8 月(築 6 年)
住所
東京都八王子市絹ケ丘2丁目 地図を見る
交通

京王電鉄京王線 北野駅/徒歩15分

--

--

総戸数
1 戸
主要採光面
--
建物構造
木造 / 2 階建
接道状況
一方 ( 北西 8.0m 公道 )
私道負担面積
--
都市計画
市街化区域
地目
宅地
用途地域
第一種低層住居専用地域
地勢
平坦
建ぺい率
40%
容積率
60%
土地権利
所有権
国土法届出
--
借地料
--
借地期間
--
引渡し
相談
取引態様
仲介
その他費用
--
その他条件
駐車場2台以上可
備考
景観法 高度地区 航空法 高さ限度有 宅地造成工事規制区域 敷地面積最低限度有 日影制限有 壁面後退有
【創業41周年の実績】
この地域に特化して41年間の実績があるからこその、物件情報があります。
スタッフ30名でお客様がご覧になったことのない情報を多数ご用意しております。
周辺施設
【小学校】八王子市立長沼小学校 1,267m
【中学校】八王子市立中山中学校 1,907m
【コンビニ】コンビニ 407m
【スーパー】スーパー 964m
【総合病院】総合病院 623m
【公園】公園 225m
【商店街】商店街 1,258m
物件番号
313004448277
自社管理番号
1244560008047
建築確認番号
--
登録日
2025/10/11
有効期限
2026/04/06

※情報提供元:LIFULL HOME'S

会社情報

取り扱い不動産会社

朝日土地建物株式会社 橋本支店 営業5課
住所
神奈川県相模原市緑区橋本6丁目4番15号 
営業時間など
営業時間/ 9:30~21:00
免許番号
国土交通大臣(9)第3744号
所属団体
(公財)東日本不動産流通機構
保証協会
(公社)全国宅地建物取引業保証協会

※光IP 電話、及びIP 電話からはご利用になれません
※情報元の「LIFULL HOME'S」掲載店舗に連絡されます
※不動産会社がお電話に出られなかった場合、株式会社LIFULLは電話会社が提供するサービスを介してお客様の発信者番号を受領後、折り返し専用の電話番号を発番してお問合せの不動産会社に通知します(お客様の発信者番号がお問合せの不動産会社に通知されることはございません)

物件に関するお問い合わせ

必須
必須
必須

※携帯電話でドメイン指定受信を利用している場合は、「chintaistyle.jp」「asahi-t-t.co.jp」を解除してください。

あなたにぴったりの物件情報などをお届けします。

確認ページへ進む

最近見た物件と比較

閲覧中
外観:313004448277

八王子市絹ヶ丘2丁目

4,480万円

3SLDK

建物
98.53㎡

土地
118.01㎡

築6年

八王子市絹ケ丘2丁目

京王電鉄京王線 北野駅/徒歩15分

資料請求する

外観:313004291291

町田市成瀬1丁目 新築戸建

7,480万円

3LDK

建物
119.17㎡

土地
215.67㎡ (実測)

築2年

町田市成瀬1丁目

横浜線 成瀬駅/徒歩23分

詳細を見る

NO IMAGE

岐阜市領下 中古戸建 細畑駅 歩12分

1,397万円

10DK

建物
78.01㎡

土地
288.55㎡ (公簿)

築61年

岐阜市領下

名鉄各務原線 細畑駅/徒歩12分

詳細を見る

外観:313004337892

三宿2丁目 中古戸建

9,498万円

2SLDK

建物
87.48㎡

土地
67.64㎡ (公簿)

築17年

世田谷区三宿2丁目

東急田園都市線 池尻大橋駅/徒歩15分

詳細を見る

近くの類似おすすめ物件

東京都八王子市の新着物件情報

現在00件保存されています。

残り00件追加することができます。

お気に入り物件一覧を見る

間隔を空けてお試しください。

検討した人が1人います
メールアイコン 資料請求 無料 電話アイコン 電話する 無料