加古川市東神吉町神吉|加古川市(兵庫県)の空き家・中古住宅・中古一戸建て

間取り

間取り

980万円

月々の支払い目安:--

ローン詳細

\ 人気物件は決まるのが早い!まずはお問合せを /

メールアイコン 物件の資料をもらう 3項目のみ入力すればOK 無料

掲載終了まであと7

所在地・交通

兵庫県加古川市東神吉町神吉

山陽本線 加古川駅/バス 22分/東神吉小学校東 徒歩5分

地図を見る

POINT

間取り
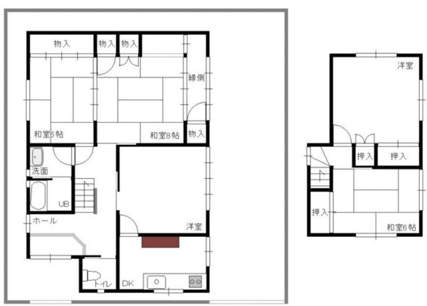
6LDK
建物面積
112.61 ㎡ (壁芯)
築年月
1965 年5 月(築61 年)
土地権利
所有権
駐車場
空有 無料
現況
居住中
実際に見学したい

有限会社スローライフ 北はりま店

古民家、新築、注文住宅、別荘、賃貸☆不動産のことなら有限会社スローライフ!北播磨地域を中心としたお住まいのお手伝いをさせて頂きます。

会社情報

この物件について

こちらの物件はJR山陽本線を加古川駅で下車し、バスに22分乗車し、東神吉小学校東から徒歩5分の場所に位置しています。化粧やヘアメイクをするのにとても便利な独立洗面台が備わっており、洗濯機を室内に置けるスペースがあるので、洗濯機が長持ちしやすくなります。また、強い火力でお風呂や調理の時短になり災害時の復旧も早いプロパンガス利用の物件です。周辺280m圏内(徒歩4分)には東神吉小学校もあります。

※「この物件について」に記載の情報は、登録情報をもとに当サイトが掲載するものであり、不動産物件情報を掲載している不動産事業者が掲載するものではありません。

内観・外観

間取り図

間取り 拡大

6LDK

建物面積
112.61 ㎡ (壁芯)
土地面積
356.58 ㎡ (公簿)
建物構造
木造 / 1 階建

\ 人気物件は決まるのが早い!まずはお問合せを /

メールアイコン 物件の資料をもらう 3項目のみ入力すればOK 無料

掲載終了まであと7

この物件を共有・保存する

設備

主な設備

キッチン
  • システムキッチン

    システム
    キッチン

  • カウンターキッチン

    カウンター
    キッチン

  • IHコンロ

    IHコンロ

  • ガスコンロ

    ガスコンロ

バス・トイレ
  • 追い焚き

    追い焚き

  • 浴室乾燥機

    浴室乾燥機

  • シャワー付洗面化粧台

    シャワー付
    洗面化粧台

  • 洗浄便座

    洗浄便座

室内設備
  • ウォークインクローゼット

    ウォークイン
    クローゼット

  • 全居室収納

    全居室収納

  • TVモニタ付ドアホン

    TVモニタ付
    ドアホン

  • 床暖房

    床暖房

特徴
  • オール電化

    オール電化

  • バリアフリー

    バリアフリー

  • 南向き

    南向き

  • 駐車場付

    駐車場付

その他設備

公営水道、プロパンガス、汲取、専用バス、専用トイレ、バス・トイレ別、室内洗濯機置場、専用庭、洗面所独立

設備情報について質問する

\ 人気物件は決まるのが早い!まずはお問合せを /

メールアイコン 物件の資料をもらう 3項目のみ入力すればOK 無料

掲載終了まであと7

この物件を共有・保存する

周辺情報

周辺の歯医者

読込中

周辺の医療機関

読込中

周辺の駅

読込中

周辺の銀行

読込中

周辺のパン屋

読込中

その他の周辺施設を探す
学区や周辺について質問したい

周辺の生活情報

ハザード情報

物件周辺の土砂、浸水、津波、
地震の情報を地図で確認できます。

ハザードマップを確認する

※周辺情報は「 出典一覧(施設情報) 」のデータを元に当サイトが独自の方法で抽出し掲載しているものです。不動産物件情報を提供している不動産事業者が掲載するものでありません。
※周辺情報は移転や閉鎖等により情報が最新ではない、正しくない場合があります。詳しくは不動産会社にお問い合わせのうえ、ご確認をお願い致します。

\ 人気物件は決まるのが早い!まずはお問合せを /

メールアイコン 物件の資料をもらう 3項目のみ入力すればOK 無料

掲載終了まであと7

この物件を共有・保存する

物件概要

価格
980 万円

--

ローン詳細
間取り
6LDK
建物面積
112.61 ㎡ (壁芯)
土地面積
356.58 ㎡ (公簿)
駐車場
空有 無料
築年月
1965 年 5 月(築 61 年)
住所
兵庫県加古川市東神吉町神吉 地図を見る
交通

山陽本線 加古川駅/バス 22分/東神吉小学校東 徒歩5分

--

--

総戸数
--
主要採光面
--
建物構造
木造 / 1 階建
接道状況
一方 ( 南 5.0m 公道 間口2.3m )
セットバック
私道負担面積
--
都市計画
市街化調整区域
地目
宅地
用途地域
無指定
地勢
--
建ぺい率
60%
容積率
200%
土地権利
所有権
国土法届出
不要
借地料
--
借地期間
--
引渡し
相談
取引態様
仲介
その他費用
--
その他条件
--
備考
・現状有姿渡し、古家付土地売買 ・売主の契約不適合責任免責
周辺施設
【小学校】東神吉小学校 280m
【中学校】神吉中学校 900m
物件番号
328000628330
自社管理番号
1301570001259
建築確認番号
--
登録日
2026/04/10
有効期限
2026/05/04

※情報提供元:LIFULL HOME'S

会社情報

取り扱い不動産会社

有限会社スローライフ 北はりま店
住所
兵庫県加東市新町267-3 
営業時間など
営業時間/ 9:00~18:00
定休日/毎週水曜日
免許番号
兵庫県知事免許(04)第500217号
所属団体
所属団体未加入
保証協会
-

物件に関するお問い合わせ

必須
必須
必須

※携帯電話でドメイン指定受信を利用している場合は、「chintaistyle.jp」「slowlife1.com」を解除してください。

あなたにぴったりの物件情報などをお届けします。

確認ページへ進む

最近見た物件と比較

閲覧中
NO IMAGE

加古川市東神吉町神吉

980万円

6LDK

建物
112.61㎡ (壁芯)

土地
356.58㎡ (公簿)

築61年

加古川市東神吉町神吉

山陽本線 加古川駅/バス 22分/東神吉小学校東 徒歩5分

資料請求する

NO IMAGE

長浜市末広町築浅中古戸建

3,890万円

3SLDK

建物
104.33㎡

土地
165.41㎡ (公簿)

築5年

長浜市末広町

北陸本線 長浜駅/徒歩13分

詳細を見る

近くの類似おすすめ物件

兵庫県加古川市の新着物件情報

現在00件保存されています。

残り00件追加することができます。

お気に入り物件一覧を見る

間隔を空けてお試しください。

検討した人が2人います