厄神駅(兵庫県)周辺の空き家・中古住宅・中古一戸建て・一軒家の購入情報

厄神駅(兵庫県)周辺の空き家・中古住宅・中古一戸建て・一軒家の購入情報をご覧いただけます。

10

↓ チェックした物件をまとめてお問い合わせ

外観:328000489475
中古戸建て

厄神駅まで約2559m

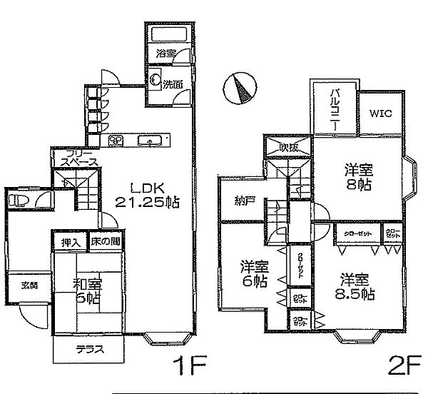
間取り:328000489475
  • 3,280万円
  • 兵庫県加古川市上荘町小野
  • 加古川線 厄神駅 3.1km
  • 4SLDK/築10 年
  • 151.87㎡(建物)
  • 234.00㎡(土地)

◇敷地面積70坪!ハウスメーカー施工物件◇内外装・設備ともにこだわりの注文住宅です!

  • 駐車場有
  • システム
    キッチン
  • 追焚機能
  • 所有権
  • 低層住宅地
  • 南向き
  • 小学校
    800m以内
  • スーパー
    800m以内
センチュリー21不動産流通センター

弊社はセンチュリー21の関西1号店!サービス・スピード対応地域1番を掲げ、お客様の立場にたった提案を心掛けています。いい物件は、センチュリー21不動産流通センターにあります(^^)

その他の情報

外観:328000532782
中古戸建て 空家

厄神駅まで約2643m

間取り:328000532782
  • 2,180万円
  • 兵庫県加古川市上荘町小野
  • 加古川線 厄神駅 3.3km
  • 4LDK/築19 年
  • 123.16㎡(建物)
  • 164.45㎡(土地)

閑静な住宅街にあるオール電化中古物件♪内外装リフォーム済で即入居可能!全居室6帖以上&WIC付きでゆったり生活♪両荘みらい学園まで徒歩2分でお子様の通学も安心☆お車3台駐車可能(車種による)

  • 駐車場有
  • システム
    キッチン
  • 追焚機能
  • 所有権
  • 低層住宅地
  • 南向き
  • 小学校
    800m以内
  • スーパー
    800m以内
株式会社アールエステート

加古川市~姫路市を中心に新築・中古戸建、マンション、土地をお探しの方はご連絡下さい。地元密着型会社の他社様にはない物件情報量が自慢です。又、住宅ローンでお悩みの方もご連絡下さい。ローン審査に自信あり!

その他の情報

外観:328000568202
中古戸建て

厄神駅まで約3790m

間取り:328000568202
  • 4,180万円
  • 兵庫県加古郡稲美町加古
  • 加古川線 厄神駅 5.3km
  • 3SLDK/築4 年
  • 116.34㎡(建物)
  • 201.33㎡(土地)

・駐車場並列4台可 ・カーポート ・前面道路6m ・収納豊富 ・テラス ・加古小学校・稲美北中学校

  • 駐車場有
  • システム
    キッチン
  • 追焚機能
  • 所有権
  • 低層住宅地
  • 南向き
  • 小学校
    800m以内
  • スーパー
    800m以内
有限会社輝広

有限会社輝広(きこう)は加古川市を中心に明石市、高砂市、加古郡、姫路市のエリアで新築戸建・中古戸建・中古マンション・土地の売買・仲介・リフォーム・自社買取・売却を主な業務としている地元密着の会社です。

その他の情報

外観:328000558215
中古戸建て 空家

厄神駅まで約1961m

間取り:328000558215
  • 1,680万円
  • 兵庫県加古川市上荘町都台2丁目
  • 加古川線 厄神駅 徒歩35分
  • 6SLDK/築31 年
  • 296.39㎡(建物)
  • 558.21㎡(土地)

◆敷地広々168坪に、89坪のお家♪◆収納スペースもたっぷり♪◆マルアイ八幡店まで徒歩約38分♪◆子供も大人もペットも楽しめる「みとろの丘/見土呂フルーツパーク」まで徒歩約13分♪◆…

  • 駐車場有
  • システム
    キッチン
  • 追焚機能
  • 所有権
  • 低層住宅地
  • 南向き
  • 小学校
    800m以内
  • スーパー
    800m以内
ハウスドゥ 東加古川駅南 有限会社藤川組

私共ハウスドゥ東加古川駅南店は加古川市を中心に、高砂市、加古郡のエリアで新築戸建・中古戸建・中古マンション・土地の売買・仲介・リフォーム提案・自社買取・売却を主な業務としている地元密着の会社です。

その他の情報

NO IMAGE
中古戸建て

【近い!】 厄神駅まで約113m

間取り:328000458768
  • 780万円
  • 兵庫県加古川市八幡町船町
  • 加古川線 厄神駅 徒歩4分
  • 4LDK/築33 年
  • 126.46㎡(建物)
  • 136.59㎡(土地)

JR厄神駅徒歩4分の収益物件 オール電化 納戸やWICなど収納スペースたっぷり 21帖の広々LDK

  • 駐車場有
  • システム
    キッチン
  • 追焚機能
  • 所有権
  • 低層住宅地
  • 南向き
  • 小学校
    800m以内
  • スーパー
    800m以内
株式会社みなと住建 加古川本店

当社は加古川から明石・神戸を中心に不動産の売買と注文建築を主な業務として活動しています。豊富な情報力でお客様にぴったりの情報をお届けできるように日々心掛けています。なんでもお気軽にご相談ください。

その他の情報

外観:328000426344
中古戸建て 空家

厄神駅まで約2307m

間取り:328000426344
  • 980万円
  • 兵庫県加古川市上荘町都台1丁目
  • 加古川線 厄神駅 徒歩36分
  • 5DK/築53 年
  • 112.34㎡(建物)
  • 230.01㎡(土地)

閑静な住宅街です♪お車3分の場所にフルーツパーク!陽当たり・通風良好♪カーポート付でお車2台駐車可能です!

  • 駐車場有
  • システム
    キッチン
  • 追焚機能
  • 所有権
  • 低層住宅地
  • 南向き
  • 小学校
    800m以内
  • スーパー
    800m以内
株式会社アールエステート

加古川市~姫路市を中心に新築・中古戸建、マンション、土地をお探しの方はご連絡下さい。地元密着型会社の他社様にはない物件情報量が自慢です。又、住宅ローンでお悩みの方もご連絡下さい。ローン審査に自信あり!

その他の情報

外観:328000568904
中古戸建て

厄神駅まで約2057m

間取り:328000568904
  • 1,780万円
  • 兵庫県加古川市上荘町都台2丁目
  • 加古川線 厄神駅 3.1km
  • 6K/築51 年
  • 192.60㎡(建物)
  • 806.54㎡(土地)

部屋数豊富な6K♪各居室8帖以上と広々としています♪汎用性のある和室が2部屋有り♪敷地内には広い庭がございます♪ご家族との憩いの場としてもご利用いただけます♪駐車場スペース4台有り♪

  • 駐車場有
  • システム
    キッチン
  • 追焚機能
  • 所有権
  • 低層住宅地
  • 南向き
  • 小学校
    800m以内
  • スーパー
    800m以内
株式会社ランドアークハウジング

『お客様と不動産を繋げる架け橋になりたい!!』全力で「売りたい」「買いたい」をサポート致します。北播磨地域の不動産情報はランドアークハウジングにお任せ下さい!!

その他の情報

外観:328000488203
中古戸建て 空家
間取り:328000488203
  • 980万円
  • 兵庫県加古川市上荘町都台1丁目
  • 加古川線 厄神駅 徒歩37分
  • 5LDK/築36 年
  • 142.93㎡(建物)
  • 414.86㎡(土地)

敷地約125坪と広々!家庭菜園やDIYで自分好みのお庭を造るのはいかがでしょうか。 1F2間続きの和室には広縁があり、家族や友人との集まりの場や、日常のリラクゼーションスペースとしてお使い頂けます。

  • 駐車場有
  • システム
    キッチン
  • 追焚機能
  • 所有権
  • 低層住宅地
  • 南向き
  • 小学校
    800m以内
  • スーパー
    800m以内
株式会社福屋不動産販売 加古川店

【不動産の売買】【買取】は、JR加古川駅徒歩8分・国道2号線沿い平野交差点へ西側の【FUKUYA加古川店】へお気軽お問い合わせください。

その他の情報

外観:328000537352
中古戸建て
間取り:328000537352
  • 980万円
  • 兵庫県加古川市八幡町下村
  • 加古川線 厄神駅 徒歩23分
  • 3LDK/築29 年
  • 83.63㎡(建物)
  • 119.99㎡(土地)

JR厄神駅約23分 2021年5月リフォーム済み(給湯器交換、外壁塗装) 3LDK 八幡小約1700m マルアイ約2700m 是非一度ご覧ください

  • 駐車場有
  • システム
    キッチン
  • 追焚機能
  • 所有権
  • 低層住宅地
  • 南向き
  • 小学校
    800m以内
  • スーパー
    800m以内
株式会社福屋不動産販売 東加古川店

イオン加古川店の東側、丸亀製麺さんのお向かいの緑色看板が目印です。高砂市・加古川市・稲美町・播磨町・明石市を中心に物件の取り扱いをしております。キッズコーナー完備しています。お気軽にご相談下さい。

その他の情報

外観:328000570888
中古戸建て 空家

厄神駅まで約1085m

間取り:328000570888
  • 590万円
  • 兵庫県加古川市上荘町都染
  • 加古川線 厄神駅 徒歩18分
  • 9SLDK/築94 年
  • 194.04㎡(建物)
  • 395.36㎡(土地)

■敷地約119坪♪築93年の古民家!■コンビニまで徒歩1分■部屋数が多く様々な用途で使用できます♪

  • 駐車場有
  • システム
    キッチン
  • 追焚機能
  • 所有権
  • 低層住宅地
  • 南向き
  • 小学校
    800m以内
  • スーパー
    800m以内
センチュリー21スマイシア不動産販売加古川店

センチュリ-21 スマイシア不動産販売 加古川店が新規OPEN!加古川市を中心に東播磨地域を熟知した営業スタッフが不動産に関する全てのお手伝いを致します。お気軽にお問合せください。

その他の情報

1ページ目(1ページ中)
この条件で新着メールを受取る
この検索条件を保存する

※厄神駅までの直線距離を表示しています。道路距離ではありませんのでご了承ください。

追加が完了しました。

現在00件保存されています。(最大5件)

保存した条件一覧を見る

現在00件保存されています。

残り00件追加することができます。

お気に入り物件一覧を見る

間隔を空けてお試しください。

問合せが未完了の物件

駅を変更 条件を変更
チェックした物件をまとめて 資料請求(無料) お気に入りに追加