八王子市 石川町 中古戸建て|小宮駅から徒歩11分|八王子市(東京都)の空き家・中古住宅・中古一戸建て

~小宮駅徒歩11分 戸建ての建ち並ぶ、落ち着きのある住宅地内~

~小宮駅徒歩11分 戸建ての建ち並ぶ、落ち着きのある住宅地内~

1,980万円

月々の支払い目安:--

ローン詳細

\ 人気物件は決まるのが早い!まずはお問合せを /

メールアイコン 物件の資料をもらう 3項目のみ入力すればOK 無料

掲載終了まであと11

所在地・交通

東京都八王子市石川町1012-10

八高線 小宮駅/徒歩11分

地図を見る

POINT

~\\ゼロ円仲介//★弊社なら諸費用大幅DOWN★詳細は備考欄にて~

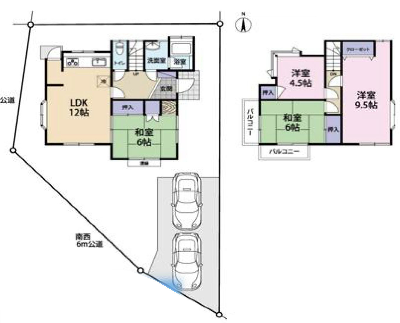
間取り
4LDK
建物面積
85.65 ㎡ (壁芯)
築年月
1997 年12 月(築29 年)
土地権利
所有権
駐車場
空有 (1 台) 無料
現況
空家
実際に見学したい

浅川不動産株式会社

\\仲介手数料無料//~弊社は仲介手数料無料でご紹介が可能です~八王子に特化!初期費用を大幅に削減可能!クチコミが自慢の会社です。しつこい営業もありませんので是非お気軽にご相談下さい。

会社情報

この物件について

この物件はJR八高線を小宮駅で下車し、徒歩11分の場所に位置しています。浴室には追い焚き機能が付いているので、いつでも温かいお風呂に入れ家族が多くても安心で、見知らぬ訪問者への対応も安心なモニター付きドアホンが付いております。また、お手入れ・掃除がしやすいだけでなく、収納スペースなどが一体となったシステムキッチンが備わっております。周辺266m圏内(徒歩4分)にはひなた保育園もあります。

※「この物件について」に記載の情報は、登録情報をもとに当サイトが掲載するものであり、不動産物件情報を掲載している不動産事業者が掲載するものではありません。

内観・外観

間取り図

~南西向き4LDK 陽当たりの良いお住まいです~ 拡大

4LDK

建物面積
85.65 ㎡ (壁芯)
土地面積
126.68 ㎡ (公簿)
建物構造
木造 / 2 階建

写真

パノラマ

リフォーム・リノベーション

内装

2026年02月実施

給湯器交換、洗面化粧台交換、ハウスクリーニング

\ 人気物件は決まるのが早い!まずはお問合せを /

メールアイコン 物件の資料をもらう 3項目のみ入力すればOK 無料

掲載終了まであと11

電話アイコン 電話で問い合わせ 無料

この物件を共有・保存する

設備

設備画像

主な設備

キッチン
  • システムキッチン

    システム
    キッチン

  • カウンターキッチン

    カウンター
    キッチン

  • IHコンロ

    IHコンロ

  • ガスコンロ

    ガスコンロ

バス・トイレ
  • 追い焚き

    追い焚き

  • 浴室乾燥機

    浴室乾燥機

  • シャワー付洗面化粧台

    シャワー付
    洗面化粧台

  • 洗浄便座

    洗浄便座

室内設備
  • ウォークインクローゼット

    ウォークイン
    クローゼット

  • 全居室収納

    全居室収納

  • TVモニタ付ドアホン

    TVモニタ付
    ドアホン

  • 床暖房

    床暖房

特徴
  • オール電化

    オール電化

  • バリアフリー

    バリアフリー

  • 南向き

    南向き

  • 駐車場付

    駐車場付

その他設備

公営水道、プロパンガス、下水、バス・トイレ別、シャワー、システムキッチン、給湯、追焚機能、シャワー付洗面化粧台、バルコニー、フローリング、TVドアホン、温水洗浄便座、カウンターキッチン、全居室収納、クローゼット、下駄箱、オートバス

設備情報について質問する

\ 人気物件は決まるのが早い!まずはお問合せを /

メールアイコン 物件の資料をもらう 3項目のみ入力すればOK 無料

掲載終了まであと11

電話アイコン 電話で問い合わせ 無料

この物件を共有・保存する

周辺情報

周辺の歯医者

読込中

周辺の医療機関

読込中

周辺の駅

読込中

周辺の銀行

読込中

周辺のパン屋

読込中

その他の周辺施設を探す
学区や周辺について質問したい

周辺の生活情報

ハザード情報

物件周辺の土砂、浸水、津波、
地震の情報を地図で確認できます。

ハザードマップを確認する

※周辺情報は「 出典一覧(施設情報) 」のデータを元に当サイトが独自の方法で抽出し掲載しているものです。不動産物件情報を提供している不動産事業者が掲載するものでありません。
※周辺情報は移転や閉鎖等により情報が最新ではない、正しくない場合があります。詳しくは不動産会社にお問い合わせのうえ、ご確認をお願い致します。

\ 人気物件は決まるのが早い!まずはお問合せを /

メールアイコン 物件の資料をもらう 3項目のみ入力すればOK 無料

掲載終了まであと11

電話アイコン 電話で問い合わせ 無料

この物件を共有・保存する

物件概要

価格
1,980 万円

--

ローン詳細
間取り
4LDK
建物面積
85.65 ㎡ (壁芯)
土地面積
126.68 ㎡ (公簿)
駐車場
空有 (1 台) 無料
築年月
1997 年 12 月(築 29 年)
住所
東京都八王子市石川町1012-10 地図を見る
交通

八高線 小宮駅/徒歩11分

--

--

総戸数
1 戸
主要採光面
南西
建物構造
木造 / 2 階建
接道状況
一方 ( 北東 5.0m 公道 )
セットバック
私道負担面積
--
都市計画
市街化区域
地目
宅地
用途地域
第一種低層住居専用地域
地勢
--
建ぺい率
40%
容積率
80%
土地権利
所有権
国土法届出
不要
借地料
--
借地期間
--
引渡し
即時
取引態様
仲介
その他費用
--
その他条件
--
備考
~~弊社でならこちらの物件は仲介料無料でご紹介可能(通常3000万円の物件の場合は105万円の仲介料がかかります※物件価格の3%プラス6万円、別途消費税)~~ 小宮町徒歩11分、閑静で落ち着きのある住宅地内の中古戸建て。ウッドデッキ付き、4LDKのお住まいです。給湯器交換済のためメンテナンス安心、洗面化粧台新規交換済、ハウスクリーニングも完了しているためすぐにお住まいいただけます。
周辺施設
【小学校】小宮小学校 808m
【中学校】石川中学校 2,251m
【コンビニ】コンビニ 617m
【スーパー】スーパー 1,765m
【公園】公園 552m
【ドラッグストア】ドラッグストア 780m
【商店街】商店街 1,886m
【その他】ひなた保育園 266m
物件番号
313004650981
自社管理番号
1368970005563
建築確認番号
--
登録日
2026/03/06
有効期限
2026/04/06

※情報提供元:LIFULL HOME'S

会社情報

取り扱い不動産会社

浅川不動産株式会社
住所
東京都八王子市小門町8-37 
営業時間など
営業時間/ 9:00~20:00
定休日/年末年始
免許番号
東京都知事免許(03)第97187号
所属団体
(公社)首都圏不動産公正取引協議会、(公社)全日本不動産協会東京都本部
保証協会
(公社)不動産保証協会

※光IP 電話、及びIP 電話からはご利用になれません
※情報元の「LIFULL HOME'S」掲載店舗に連絡されます
※不動産会社がお電話に出られなかった場合、株式会社LIFULLは電話会社が提供するサービスを介してお客様の発信者番号を受領後、折り返し専用の電話番号を発番してお問合せの不動産会社に通知します(お客様の発信者番号がお問合せの不動産会社に通知されることはございません)

物件に関するお問い合わせ

必須
必須
必須

※携帯電話でドメイン指定受信を利用している場合は、「chintaistyle.jp」「asakawa-f.co.jp」を解除してください。

あなたにぴったりの物件情報などをお届けします。

確認ページへ進む

最近見た物件と比較

閲覧中
外観:313004650981

八王子市 石川町 中古戸建て

1,980万円

4LDK

建物
85.65㎡ (壁芯)

土地
126.68㎡ (公簿)

築29年

八王子市石川町

八高線 小宮駅/徒歩11分

資料請求する

外観:313004619681

桜1丁目 中古戸建

9,280万円

3LDK

建物
81.24㎡

土地
58.08㎡ (公簿)

築24年

世田谷区桜1丁目

小田急電鉄小田原線 経堂駅/徒歩10分

詳細を見る

外観:312001140945

市原市瀬又 中古戸建

1,480万円

5K

建物
90.99㎡

土地
166.95㎡

築24年

市原市瀬又

外房線 誉田駅/徒歩10分

詳細を見る

外観:313004621684

八王子市大谷町 2階建 99.22㎡

2,598万円

4LDK

建物
99.22㎡ (壁芯)

土地
149.03㎡ (公簿)

築20年

八王子市大谷町

横浜線 八王子駅/徒歩23分

詳細を見る

外観:313004518830

八王子市中野山王2丁目

1,050万円

3K

建物
55.47㎡

土地
57.61㎡ (公簿)

築41年

八王子市中野山王2丁目

中央本線 西八王子駅/バス 21分/中野北小 徒歩5分

詳細を見る

外観:313004490186

八王子市南陽台1丁目 2階建 151.04㎡

3,597万円

6LDK

建物
151.04㎡ (壁芯)

土地
217.40㎡ (公簿)

築31年

八王子市南陽台1丁目

京王電鉄京王線 長沼駅/徒歩19分

詳細を見る

外観:313004634543

世田谷区深沢6丁目 中古戸建

26,800万円

3LDK

建物
178.35㎡ (壁芯)

土地
120.80㎡ (公簿)

築12年

世田谷区深沢6丁目

東急田園都市線 桜新町駅/徒歩18分

詳細を見る

外観:313004652657

品川区西品川1丁目 戸建て

9,780万円

2SLDK

建物
79.69㎡

土地
52.50㎡ (公簿)

築11年

品川区西品川1丁目

東急大井町線 下神明駅/徒歩6分

詳細を見る

外観:313004637497

八王子市散田町2丁目 2階建 78.97㎡

2,170万円

4LDK

建物
78.97㎡

土地
100.44㎡ (実測)

築22年

八王子市散田町2丁目

京王電鉄高尾線 めじろ台駅/徒歩18分

詳細を見る

近くの類似おすすめ物件

東京都八王子市の新着物件情報

現在00件保存されています。

残り00件追加することができます。

お気に入り物件一覧を見る

間隔を空けてお試しください。

メールアイコン 資料請求 無料 電話アイコン 電話する 無料