八王子市 本町 新築未入居戸建て|八王子駅から徒歩14分|八王子市(東京都)の空き家・中古住宅・中古一戸建て

~八王子駅徒歩14分 ZEH水準省エネ住宅 住環境も良好~

~八王子駅徒歩14分 ZEH水準省エネ住宅 住環境も良好~

4,490万円

月々の支払い目安:--

ローン詳細

\ 人気物件は決まるのが早い!まずはお問合せを /

メールアイコン 物件の資料をもらう 3項目のみ入力すればOK 無料

掲載終了まであと10

所在地・交通

東京都八王子市本町22-11

中央本線 八王子駅/徒歩14分

地図を見る

POINT

~\\ゼロ円仲介//★弊社なら諸費用大幅DOWN★詳細は備考欄にて~

間取り
2SLDK
建物面積
104.53 ㎡ (壁芯)
築年月
2024 年4 月(築2 年)
土地権利
所有権
駐車場
空有 (1 台) 無料
現況
空家
実際に見学したい

浅川不動産株式会社

\\仲介手数料無料//~弊社は仲介手数料無料でご紹介が可能です~八王子に特化!初期費用を大幅に削減可能!クチコミが自慢の会社です。しつこい営業もありませんので是非お気軽にご相談下さい。

会社情報

この物件について

この物件はJR中央本線を八王子駅で下車し、徒歩14分の場所に位置しています。お手入れ・掃除がしやすいだけでなく、収納スペースなどが一体となったシステムキッチンが備わっており、浴室には乾燥機が付いているので雨の日に洗濯物を干せるだけでなく入浴後の浴室の乾燥にも使えます。また、浴室には追い焚き機能が付いているので、いつでも温かいお風呂に入れ家族が多くても安心です。周辺198m圏内(徒歩3分)にはスーパーもあります。

※「この物件について」に記載の情報は、登録情報をもとに当サイトが掲載するものであり、不動産物件情報を掲載している不動産事業者が掲載するものではありません。

内観・外観

間取り図

~南向き2SLDK プライバシー性の高い2階にLDKがある間取り~ 拡大

2SLDK

建物面積
104.53 ㎡ (壁芯)
土地面積
69.81 ㎡ (公簿)
建物構造
木造 / 2 階建

写真

パノラマ

\ 人気物件は決まるのが早い!まずはお問合せを /

メールアイコン 物件の資料をもらう 3項目のみ入力すればOK 無料

掲載終了まであと10

電話アイコン 電話で問い合わせ 無料

この物件を共有・保存する

設備

設備画像

主な設備

キッチン
  • システムキッチン

    システム
    キッチン

  • カウンターキッチン

    カウンター
    キッチン

  • IHコンロ

    IHコンロ

  • ガスコンロ

    ガスコンロ

バス・トイレ
  • 追い焚き

    追い焚き

  • 浴室乾燥機

    浴室乾燥機

  • シャワー付洗面化粧台

    シャワー付
    洗面化粧台

  • 洗浄便座

    洗浄便座

室内設備
  • ウォークインクローゼット

    ウォークイン
    クローゼット

  • 全居室収納

    全居室収納

  • TVモニタ付ドアホン

    TVモニタ付
    ドアホン

  • 床暖房

    床暖房

特徴
  • オール電化

    オール電化

  • バリアフリー

    バリアフリー

  • 南向き

    南向き

  • 駐車場付

    駐車場付

その他設備

公営水道、都市ガス、下水、バス・トイレ別、シャワー、システムキッチン、給湯、追焚機能、シャワー付洗面化粧台、床下収納、バルコニー、フローリング、TVドアホン、住宅性能保証制度証明書、温水洗浄便座、カウンターキッチン、浴室乾燥機、耐震構造(新耐震基準適合)、洗面所独立、食器洗い乾燥機、全居室収納、クローゼット、下駄箱、オートバス、設計住宅性能評価付、フラット35適合証明書、建設住宅性能評価書(既存住宅)

設備情報について質問する

\ 人気物件は決まるのが早い!まずはお問合せを /

メールアイコン 物件の資料をもらう 3項目のみ入力すればOK 無料

掲載終了まであと10

電話アイコン 電話で問い合わせ 無料

この物件を共有・保存する

周辺情報

周辺の歯医者

読込中

周辺の医療機関

読込中

周辺の駅

読込中

周辺の銀行

読込中

周辺のパン屋

読込中

その他の周辺施設を探す
学区や周辺について質問したい

周辺の生活情報

ハザード情報

物件周辺の土砂、浸水、津波、
地震の情報を地図で確認できます。

ハザードマップを確認する

※周辺情報は「 出典一覧(施設情報) 」のデータを元に当サイトが独自の方法で抽出し掲載しているものです。不動産物件情報を提供している不動産事業者が掲載するものでありません。
※周辺情報は移転や閉鎖等により情報が最新ではない、正しくない場合があります。詳しくは不動産会社にお問い合わせのうえ、ご確認をお願い致します。

\ 人気物件は決まるのが早い!まずはお問合せを /

メールアイコン 物件の資料をもらう 3項目のみ入力すればOK 無料

掲載終了まであと10

電話アイコン 電話で問い合わせ 無料

この物件を共有・保存する

物件概要

価格
4,490 万円

--

ローン詳細
間取り
2SLDK
建物面積
104.53 ㎡ (壁芯)
土地面積
69.81 ㎡ (公簿)
駐車場
空有 (1 台) 無料
築年月
2024 年 4 月(築 2 年)
住所
東京都八王子市本町22-11 地図を見る
交通

中央本線 八王子駅/徒歩14分

--

--

総戸数
1 戸
主要採光面
建物構造
木造 / 2 階建
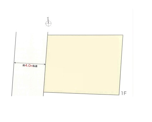
接道状況
一方 ( 西 4.0m 私道 )
セットバック
私道負担面積
14.05㎡
都市計画
市街化区域
地目
宅地
用途地域
準工業地域
地勢
平坦
建ぺい率
60%
容積率
200%
土地権利
所有権
国土法届出
不要
借地料
--
借地期間
--
引渡し
即時
取引態様
仲介
その他費用
--
その他条件
南向き
備考
~~弊社でならこちらの物件は仲介料無料でご紹介可能(通常3000万円の物件の場合は105万円の仲介料がかかります※物件価格の3%プラス6万円、別途消費税)~~ 八王子駅徒歩14分、通勤・通学に大変便利な立地。安心のZEH水準省エネ住宅。幼稚園徒歩3分・小学校徒歩7分と子育てのしやすい住環境、スーパーやコンビニも近く生活しやすい立地です。
周辺施設
【小学校】第一小学校 642m
【中学校】第五中学校 1,454m
【コンビニ】コンビニ 328m
【スーパー】スーパー 198m
【公園】公園 538m
【ドラッグストア】ドラッグストア 319m
【商店街】商店街 783m
【その他】静教保育園 481m
物件番号
313004630509
自社管理番号
1368970004038
建築確認番号
第23UDI1W建05121号
登録日
2025/10/21
有効期限
2026/04/06

※情報提供元:LIFULL HOME'S

会社情報

取り扱い不動産会社

浅川不動産株式会社
住所
東京都八王子市小門町8-37 
営業時間など
営業時間/ 9:00~20:00
定休日/年末年始
免許番号
東京都知事免許(03)第97187号
所属団体
(公社)首都圏不動産公正取引協議会、(公社)全日本不動産協会東京都本部
保証協会
(公社)不動産保証協会

※光IP 電話、及びIP 電話からはご利用になれません
※情報元の「LIFULL HOME'S」掲載店舗に連絡されます
※不動産会社がお電話に出られなかった場合、株式会社LIFULLは電話会社が提供するサービスを介してお客様の発信者番号を受領後、折り返し専用の電話番号を発番してお問合せの不動産会社に通知します(お客様の発信者番号がお問合せの不動産会社に通知されることはございません)

物件に関するお問い合わせ

必須
必須
必須

※携帯電話でドメイン指定受信を利用している場合は、「chintaistyle.jp」「asakawa-f.co.jp」を解除してください。

あなたにぴったりの物件情報などをお届けします。

確認ページへ進む

最近見た物件と比較

閲覧中
外観:313004630509

八王子市 本町 新築未入居戸建て

4,490万円

2SLDK

建物
104.53㎡ (壁芯)

土地
69.81㎡ (公簿)

築2年

八王子市本町

中央本線 八王子駅/徒歩14分

資料請求する

外観:314002592399

秦野市東田原 中古戸建

880万円

4DK

建物
82.74㎡

土地
116.53㎡ (公簿)

築46年

秦野市東田原

小田急電鉄小田原線 秦野駅/徒歩24分

詳細を見る

近くの類似おすすめ物件

東京都八王子市の新着物件情報

現在00件保存されています。

残り00件追加することができます。

お気に入り物件一覧を見る

間隔を空けてお試しください。

検討した人が1人います
メールアイコン 資料請求 無料 電話アイコン 電話する 無料