佐伯区美の里1丁目 新築戸建て|楽々園駅から徒歩15分|広島市佐伯区(広島県)の新築住宅・新築一戸建て・建売

美の里1丁目13- 新築No.2 完成外観

美の里1丁目13- 新築No.2 完成外観

3,180万円

月々の支払い目安:--

ローン詳細

\ 人気物件は決まるのが早い!まずはお問合せを /

メールアイコン 物件の資料をもらう 3項目のみ入力すればOK 無料

掲載終了まであと10

所在地・交通

広島県広島市佐伯区美の里1丁目13

広島電鉄宮島線 楽々園駅/徒歩15分

地図を見る

POINT

【ご見学可能♪】設計・建設性能評価取得、耐震等級3☆ファミリータイプの3LDK+S☆充実した設備が標準仕様♪♪対面式キッチンで居心地の良い住空間♪駐車2台可(車種による)♪

間取り
3SLDK
建物面積
125.05 ㎡
築年月
2025 年12 月(築1 年)
土地権利
所有権
駐車場
空有 (2 台) 無料
現況
空家
実際に見学したい

住むりえ株式会社

不動産情報館「住むりえ」を運営しております。お客様のニーズに最適な戸建、マンション、土地、不動産情報をご提供致します。マイホームにこだわる方や低予算の方、お気軽にご相談ください。

会社情報

この物件について

こちらの物件は広島電鉄宮島線を楽々園駅で下車し、徒歩15分の場所に位置しています。見知らぬ訪問者への対応も安心なモニター付きドアホンが付いており、お手入れ・掃除がしやすいだけでなく、収納スペースなどが一体となったシステムキッチンが備わっております。また、家族とコミュニケーションを取ったり子供の様子を見ながら料理ができるカウンターキッチンが備わっております。5部屋で構成されており、物件内で一番広いお部屋はリビングダイニングキッチンで17.00帖です。周辺530m圏内(徒歩7分)にはコンビニもあります。

※「この物件について」に記載の情報は、登録情報をもとに当サイトが掲載するものであり、不動産物件情報を掲載している不動産事業者が掲載するものではありません。

内観・外観

間取り図

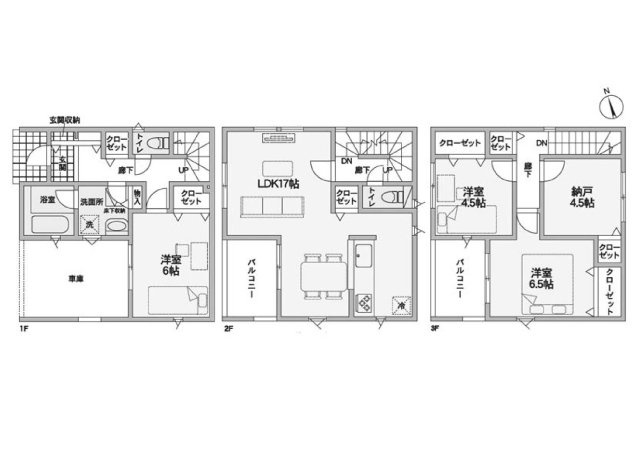
間取り図※図面現況優先 拡大

3SLDK

( 収納 6.5帖(1階) リビングダイニングキッチン 17帖(2階) 和室 3.5帖(2階) 洋室 6.7帖(3階) 洋室 6.2帖(3階) )

建物面積
125.05 ㎡
土地面積
85.14 ㎡
建物構造
木造 / 3 階建

写真

\ 人気物件は決まるのが早い!まずはお問合せを /

メールアイコン 物件の資料をもらう 3項目のみ入力すればOK 無料

掲載終了まであと10

この物件を共有・保存する

設備

設備画像

主な設備

キッチン
  • システムキッチン

    システム
    キッチン

  • カウンターキッチン

    カウンター
    キッチン

  • IHコンロ

    IHコンロ

  • ガスコンロ

    ガスコンロ

バス・トイレ
  • 追い焚き

    追い焚き

  • 浴室乾燥機

    浴室乾燥機

  • シャワー付洗面化粧台

    シャワー付
    洗面化粧台

  • 洗浄便座

    洗浄便座

室内設備
  • ウォークインクローゼット

    ウォークイン
    クローゼット

  • 全居室収納

    全居室収納

  • TVモニタ付ドアホン

    TVモニタ付
    ドアホン

  • 床暖房

    床暖房

特徴
  • オール電化

    オール電化

  • バリアフリー

    バリアフリー

  • 南向き

    南向き

  • 駐車場付

    駐車場付

その他設備

公営水道、都市ガス、下水、専用バス、専用トイレ、ガスコンロ、三口コンロ、システムキッチン、追焚機能、シャワー付洗面化粧台、エアコン、床下収納、ウォークインクローゼット、室内洗濯機置場、バルコニー、TVドアホン、温水洗浄便座、カウンターキッチン、浴室乾燥機、耐震構造(新耐震基準適合)、洗面所独立、浴室サイズ1坪以上(1.6×1.6m相当)、全居室収納、クローゼット、下駄箱、オートバス、設計住宅性能評価付、建設住宅性能評価書(新築時)、パントリー、浄水器・活水器、トイレ2ヶ所以上、浴室暖房、省エネ給湯器、複層ガラス・複層サッシ、全室フローリング

設備情報について質問する

\ 人気物件は決まるのが早い!まずはお問合せを /

メールアイコン 物件の資料をもらう 3項目のみ入力すればOK 無料

掲載終了まであと10

この物件を共有・保存する

周辺情報

周辺の歯医者

読込中

周辺の医療機関

読込中

周辺の駅

読込中

周辺の銀行

読込中

周辺のパン屋

読込中

その他の周辺施設を探す
学区や周辺について質問したい

周辺の生活情報

ハザード情報

物件周辺の土砂、浸水、津波、
地震の情報を地図で確認できます。

ハザードマップを確認する

※周辺情報は「 出典一覧(施設情報) 」のデータを元に当サイトが独自の方法で抽出し掲載しているものです。不動産物件情報を提供している不動産事業者が掲載するものでありません。
※周辺情報は移転や閉鎖等により情報が最新ではない、正しくない場合があります。詳しくは不動産会社にお問い合わせのうえ、ご確認をお願い致します。

\ 人気物件は決まるのが早い!まずはお問合せを /

メールアイコン 物件の資料をもらう 3項目のみ入力すればOK 無料

掲載終了まであと10

この物件を共有・保存する

物件概要

価格
3,180 万円

--

ローン詳細
間取り
3SLDK
( 収納 6.5帖(1階) リビングダイニングキッチン 17帖(2階) 和室 3.5帖(2階) 洋室 6.7帖(3階) 洋室 6.2帖(3階) )
建物面積
125.05 ㎡
土地面積
85.14 ㎡
駐車場
空有 (2 台) 無料
築年月
2025 年 12 月(築 1 年)
住所
広島県広島市佐伯区美の里1丁目13 地図を見る
交通

広島電鉄宮島線 楽々園駅/徒歩15分

--

--

総戸数
--
主要採光面
建物構造
木造 / 3 階建
接道状況
一方 ( 東 4.0m 公道 )
私道負担面積
--
都市計画
市街化区域
地目
宅地
用途地域
第二種中高層住居専用地域
地勢
平坦
建ぺい率
60%
容積率
200%
土地権利
所有権
国土法届出
--
借地料
--
借地期間
--
引渡し
即時
取引態様
仲介
その他費用
--
その他条件
駐車場2台以上可
備考
公園が近く子育て世代にも適す♪
「イオンタウン楽々園」徒歩圏内☆
≪ご見学できます♪お気軽にお問い合わせください♪≫
周辺施設
【小学校】広島市立楽々園小学校 910m
【中学校】広島市立五日市南中学校 1,420m
【コンビニ】コンビニ 530m
【スーパー】スーパー 1,340m
【公園】公園 980m
【ドラッグストア】ドラッグストア 1,060m
【銀行】銀行 1,090m
物件番号
334000213984
自社管理番号
1480840000914
建築確認番号
R07SHC115345
登録日
2025/11/22
有効期限
2026/05/02

※情報提供元:LIFULL HOME'S

会社情報

取り扱い不動産会社

住むりえ株式会社
住所
広島県広島市佐伯区楽々園2丁目1-18 
営業時間など
営業時間/ 9:30~19:00
定休日/年末年始
免許番号
広島県知事(01)第11200号
所属団体
中国地区不動産公正取引協議会、(公社)全日本不動産協会広島県本部、(公社)西日本不動産流通機構
保証協会
(公社)不動産保証協会

物件に関するお問い合わせ

必須
必須
必須

※携帯電話でドメイン指定受信を利用している場合は、「chintaistyle.jp」「email.plala.or.jp」を解除してください。

あなたにぴったりの物件情報などをお届けします。

確認ページへ進む

近くの類似おすすめ物件

広島県広島市佐伯区の新着物件情報

現在00件保存されています。

残り00件追加することができます。

お気に入り物件一覧を見る

間隔を空けてお試しください。