月々の支払い目安:--
この物件について
こちらの物件はJR中央本線を高尾駅で下車し、バスに13分乗車し、出羽橋から徒歩2分の場所に位置しています。お手入れ・掃除がしやすいだけでなく、収納スペースなどが一体となったシステムキッチンが備わっており、家族とコミュニケーションを取ったり子供の様子を見ながら料理ができるカウンターキッチンが備わっております。また、見知らぬ訪問者への対応も安心なモニター付きドアホンが付いております。周辺690m圏内(徒歩9分)には八王子市立城山小学校もあります。
※「この物件について」に記載の情報は、登録情報をもとに当サイトが掲載するものであり、不動産物件情報を掲載している不動産事業者が掲載するものではありません。
内観・外観
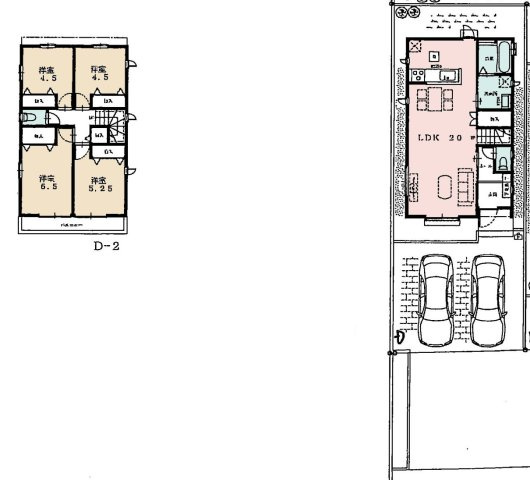
間取り図
4LDK
- 建物面積
- 101.04 ㎡
- 土地面積
- 113.45 ㎡ (実測)
- 建物構造
- 木造 / 2 階建
設備
主な設備
- キッチン
-
システム
キッチン -
カウンター
キッチン -
IHコンロ
-
ガスコンロ
-
- バス・トイレ
-
追い焚き
-
浴室乾燥機
-
シャワー付
洗面化粧台 -
洗浄便座
-
- 室内設備
-
ウォークイン
クローゼット -
全居室収納
-
TVモニタ付
ドアホン -
床暖房
-
- 特徴
-
オール電化
-
バリアフリー
-
南向き
-
駐車場付
-
その他設備
プロパンガス、下水、システムキッチン、シャワー付洗面化粧台、床下収納、ウォークインクローゼット、バルコニー、フローリング、TVドアホン、温水洗浄便座、カウンターキッチン、浴室乾燥機、全居室収納、照明器具付き、設計住宅性能評価付、浄水器・活水器、トイレ2ヶ所以上、複層ガラス・複層サッシ
周辺情報
- 周辺の歯医者
読込中
- 周辺の医療機関
読込中
- 周辺の駅
読込中
- 周辺の銀行
読込中
- 周辺のパン屋
読込中
- その他の周辺施設を探す
周辺の生活情報
ハザード情報
物件周辺の土砂、浸水、津波、
地震の情報を地図で確認できます。
※周辺情報は「
出典一覧(施設情報)
」のデータを元に当サイトが独自の方法で抽出し掲載しているものです。不動産物件情報を提供している不動産事業者が掲載するものでありません。
※周辺情報は移転や閉鎖等により情報が最新ではない、正しくない場合があります。詳しくは不動産会社にお問い合わせのうえ、ご確認をお願い致します。
物件概要
- 価格
- 3,480
万円
--
ローン詳細 - 間取り
- 4LDK
- 建物面積
- 101.04 ㎡
- 土地面積
- 113.45 ㎡ (実測)
- 駐車場
- 空有 無料
- 築年月
- 2026 年 6 月(築 0 年)
- 住所
- 東京都八王子市元八王子町2丁目 地図を見る
- 交通
中央本線 高尾駅/バス 13分/出羽橋 徒歩2分
--
--
- 総戸数
- 1 戸
- 主要採光面
- --
- 建物構造
- 木造 / 2 階建
- 接道状況
- 一方 ( 北西 4.5m 私道 )
- セットバック
- 無
- 私道負担面積
- 111.25㎡ 私道負担割合1/8
- 都市計画
- 市街化区域
- 地目
- 宅地
- 用途地域
- 第一種中高層住居専用地域
- 地勢
- --
- 建ぺい率
- 60%
- 容積率
- 180%
- 土地権利
- 所有権
- 国土法届出
- 不要
- 借地料
- --
- 借地期間
- --
- 現況
- 未完成 実際に見学したい
- 引渡し
- 2026年06月 下旬
- 取引態様
- 仲介
- その他費用
- --
- その他条件
- --
- 備考
- --
- 周辺施設
- 【小学校】八王子市立城山小学校 690m
【中学校】八王子市立城山中学校 1,670m - 物件番号
- 313004670466
- 自社管理番号
- 1009480120664
- 建築確認番号
- 第25UDI1W建10665号
- 登録日
- 2026/03/25
- 有効期限
- 2026/04/06
※情報提供元:LIFULL HOME'S
会社情報
取り扱い不動産会社
- 住所
- 東京都立川市錦町2丁目6-2 ステラNKビル1F
- 営業時間など
- 営業時間/ 9:00~21:00
定休日/年中無休 - 免許番号
- 東京都知事(5)第82486号
- 所属団体
- (公社)首都圏不動産公正取引協議会、(公社)東京都宅地建物取引業協会、(公財)東日本不動産流通機構
- 保証協会
- (公社)全国宅地建物取引業保証協会
電話で問合せ( 無料 )
0037-634-04056お問い合わせ番号「88092-3099」
※光IP 電話、及びIP 電話からはご利用になれません
※情報元の「LIFULL HOME'S」掲載店舗に連絡されます
※不動産会社がお電話に出られなかった場合、株式会社LIFULLは電話会社が提供するサービスを介してお客様の発信者番号を受領後、折り返し専用の電話番号を発番してお問合せの不動産会社に通知します(お客様の発信者番号がお問合せの不動産会社に通知されることはございません)
物件に関するお問い合わせ
最近見た物件と比較
近くの類似おすすめ物件
-

八王子市弐分方町
3,250万円4LDK|築0年
中央本線 西八王子駅/バス 15分/慈根寺 徒歩9分
掲載写真がより多い
-

八王子市弐分方町
3,250万円4LDK|築0年
中央本線 西八王子駅/バス 15分/慈根寺 徒歩9分
掲載写真がより多い
-

八王子市弐分方町
3,250万円4LDK|築0年
中央本線 西八王子駅/バス 15分/滝原新橋 徒歩8分
掲載写真がより多い
-

八王子市弐分方町
3,250万円4LDK|築0年
中央本線 西八王子駅/バス 15分/滝原新橋 徒歩8分
掲載写真がより多い
-

八王子市弐分方町
3,250万円4LDK|築0年
中央本線 西八王子駅/徒歩39分
掲載写真がより多い
東京都八王子市の新着物件情報
-
八王子市宮下町 2階建 96.38㎡
中央本線 八王子駅/バス 19分/加住小学校 徒歩4分
物件の詳細を見る
2,980万円- 間取り:
- 3SLDK
- 築年数:
- 築0年
- 建物面積:
- 96.38㎡
- 土地面積:
- 135.05㎡
-
八王子市七国1丁目 2階建 111.99㎡
横浜線 八王子みなみ野駅/徒歩11分
物件の詳細を見る
6,999万円- 間取り:
- 4LDK
- 築年数:
- 築0年
- 建物面積:
- 111.99㎡
- 土地面積:
- 165.06㎡
-
八王子市川口町 2階建 99.63㎡
中央本線 八王子駅/バス 27分/川口事務所 徒歩4分
物件の詳細を見る
2,880万円- 間取り:
- 4LDK
- 築年数:
- 築1年
- 建物面積:
- 99.63㎡
- 土地面積:
- 165.00㎡