東京都立川市上砂町3丁目|武蔵砂川駅から徒歩17分|立川市(東京都)の新築住宅・新築一戸建て・建売

現地全景

現地全景

4,280万円

月々の支払い目安:--

ローン詳細

\ 人気物件は決まるのが早い!まずはお問合せを /

メールアイコン 物件の資料をもらう 3項目のみ入力すればOK 無料

掲載終了まであと11

所在地・交通

東京都立川市上砂町3丁目

西武鉄道拝島線 武蔵砂川駅/徒歩17分

地図を見る

POINT

LDK約15.25帖の対面キッチンで開放感・通風良好 /カースペース並列2台(車種による)/全居室フローリング

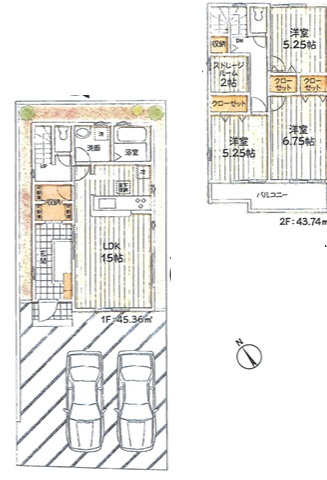
間取り
2SLDK
建物面積
81.00 ㎡
築年月
2026 年2 月(築1 年)
土地権利
所有権
駐車場
空有 (2 台) 無料
現況
--
実際に見学したい

株式会社西武開発 立川店

地元のために、お客様のために。私たちの情熱が、地元の皆様の夢をかたちにします。

会社情報

この物件について

この物件は西武鉄道拝島線を武蔵砂川駅で下車し、徒歩17分の場所に位置しています。浴室には追い焚き機能が付いているので、いつでも温かいお風呂に入れ家族が多くても安心で、浴室には乾燥機が付いているので雨の日に洗濯物を干せるだけでなく入浴後の浴室の乾燥にも使えます。また、お手入れ・掃除がしやすいだけでなく、収納スペースなどが一体となったシステムキッチンが備わっております。周辺350m圏内(徒歩5分)には立川第五中学校もあります。

※「この物件について」に記載の情報は、登録情報をもとに当サイトが掲載するものであり、不動産物件情報を掲載している不動産事業者が掲載するものではありません。

内観・外観

間取り図

間取り 拡大

2SLDK

建物面積
81.00 ㎡
土地面積
102.44 ㎡ (公簿)
建物構造
木造 / 2 階建

写真

\ 人気物件は決まるのが早い!まずはお問合せを /

メールアイコン 物件の資料をもらう 3項目のみ入力すればOK 無料

掲載終了まであと11

電話アイコン 電話で問い合わせ 無料

この物件を共有・保存する

設備

設備画像

主な設備

キッチン
  • システムキッチン

    システム
    キッチン

  • カウンターキッチン

    カウンター
    キッチン

  • IHコンロ

    IHコンロ

  • ガスコンロ

    ガスコンロ

バス・トイレ
  • 追い焚き

    追い焚き

  • 浴室乾燥機

    浴室乾燥機

  • シャワー付洗面化粧台

    シャワー付
    洗面化粧台

  • 洗浄便座

    洗浄便座

室内設備
  • ウォークインクローゼット

    ウォークイン
    クローゼット

  • 全居室収納

    全居室収納

  • TVモニタ付ドアホン

    TVモニタ付
    ドアホン

  • 床暖房

    床暖房

特徴
  • オール電化

    オール電化

  • バリアフリー

    バリアフリー

  • 南向き

    南向き

  • 駐車場付

    駐車場付

その他設備

公営水道、都市ガス、下水、システムキッチン、追焚機能、シャワー付洗面化粧台、床下収納、ウォークインクローゼット、フローリング、住宅性能保証制度証明書、バリアフリー、温水洗浄便座、カウンターキッチン、浴室乾燥機、設計住宅性能評価付、フラット35適合証明書

設備情報について質問する

\ 人気物件は決まるのが早い!まずはお問合せを /

メールアイコン 物件の資料をもらう 3項目のみ入力すればOK 無料

掲載終了まであと11

電話アイコン 電話で問い合わせ 無料

この物件を共有・保存する

周辺情報

周辺の生活情報

ハザード情報

物件周辺の土砂、浸水、津波、
地震の情報を地図で確認できます。

ハザードマップを確認する

※周辺情報は「 出典一覧(施設情報) 」のデータを元に当サイトが独自の方法で抽出し掲載しているものです。不動産物件情報を提供している不動産事業者が掲載するものでありません。
※周辺情報は移転や閉鎖等により情報が最新ではない、正しくない場合があります。詳しくは不動産会社にお問い合わせのうえ、ご確認をお願い致します。

\ 人気物件は決まるのが早い!まずはお問合せを /

メールアイコン 物件の資料をもらう 3項目のみ入力すればOK 無料

掲載終了まであと11

電話アイコン 電話で問い合わせ 無料

この物件を共有・保存する

物件概要

価格
4,280 万円

--

ローン詳細
間取り
2SLDK
建物面積
81.00 ㎡
土地面積
102.44 ㎡ (公簿)
駐車場
空有 (2 台) 無料
築年月
2026 年 2 月(築 1 年)
住所
東京都立川市上砂町3丁目 地図を見る
交通

西武鉄道拝島線 武蔵砂川駅/徒歩17分

--

--

総戸数
--
主要採光面
--
建物構造
木造 / 2 階建
接道状況
一方 ( 南西 4.0m 公道 )
セットバック
私道負担面積
--
都市計画
市街化区域
地目
宅地
用途地域
第一種低層住居専用地域
地勢
--
建ぺい率
40%
容積率
80%
土地権利
所有権
国土法届出
不要
借地料
--
借地期間
--
引渡し
相談
取引態様
仲介
その他費用
--
その他条件
駐車場2台以上可
備考
フラット35ご利用の際は適合証明書取得費用が必要です/セットバック持分1.08m2有
周辺施設
【小学校】大山小学校 600m
【中学校】立川第五中学校 350m
物件番号
313004440225
自社管理番号
1332500006227
建築確認番号
--
登録日
2025/10/03
有効期限
2026/04/06

※情報提供元:LIFULL HOME'S

会社情報

取り扱い不動産会社

株式会社西武開発 立川店
住所
東京都立川市柴崎町4丁目6-34 
営業時間など
営業時間/ 9:30~18:30
定休日/年中無休(年末年始除く)
免許番号
国土交通大臣免許(05)第6323号
所属団体
(公社)首都圏不動産公正取引協議会、(一社)全国住宅産業協会、(公社)全日本不動産協会埼玉県本部、(公財)東日本不動産流通機構
保証協会
(公社)不動産保証協会

※光IP 電話、及びIP 電話からはご利用になれません
※情報元の「LIFULL HOME'S」掲載店舗に連絡されます
※不動産会社がお電話に出られなかった場合、株式会社LIFULLは電話会社が提供するサービスを介してお客様の発信者番号を受領後、折り返し専用の電話番号を発番してお問合せの不動産会社に通知します(お客様の発信者番号がお問合せの不動産会社に通知されることはございません)

物件に関するお問い合わせ

必須
必須
必須

※携帯電話でドメイン指定受信を利用している場合は、「chintaistyle.jp」「seibu-k.co.jp」を解除してください。

あなたにぴったりの物件情報などをお届けします。

確認ページへ進む

最近見た物件と比較

閲覧中
外観:313004440225

立川市上砂町3丁目 2階建 81.00㎡

4,280万円

2SLDK

建物
81.00㎡

土地
102.44㎡ (公簿)

築1年

立川市上砂町3丁目

西武鉄道拝島線 武蔵砂川駅/徒歩17分

資料請求する

外観:313004610147

世田谷区粕谷3丁目 新築戸建

5,780万円

2LDK

建物
64.95㎡

土地
56.67㎡ (公簿)

築1年

世田谷区粕谷3丁目

京王電鉄京王線 千歳烏山駅/徒歩14分

詳細を見る

NO IMAGE

リーブルガーデン青梅柚木町第11全7棟7号棟

3,480万円

3LDK

建物
95.23㎡

土地
251.03㎡ (実測)

築0年

青梅市柚木町3丁目

青梅線 軍畑駅/徒歩8分

詳細を見る

外観:313004660943

稲城市平尾4丁目 新築分譲住宅全2棟 2号棟

5,799万円

4LDK

建物
105.16㎡ (壁芯)

土地
141.30㎡ (実測)

築1年

稲城市平尾4丁目

小田急電鉄多摩線 栗平駅/徒歩18分

詳細を見る

外観:313004632733

府中市日新町3丁目3 新築戸建 全16棟 M号棟

5,550万円

4LDK

建物
90.25㎡

土地
100.02㎡

築0年

府中市日新町3丁目

南武線 西府駅/徒歩12分

詳細を見る

外観:313004568370

北区志茂3丁目 期 全3棟

8,380万円

4LDK

建物
102.68㎡

土地
83.26㎡ (実測)

築1年

北区志茂3丁目

東京メトロ南北線 志茂駅/徒歩4分

詳細を見る

外観:313004640408

中野区江古田4期(全2棟)1号棟

10,499万円

3SLDK

建物
129.92㎡

土地
78.81㎡ (実測)

築1年

中野区江古田1丁目

都営 大江戸線 新江古田駅/徒歩11分

詳細を見る

近くの類似おすすめ物件

東京都立川市の新着物件情報

現在00件保存されています。

残り00件追加することができます。

お気に入り物件一覧を見る

間隔を空けてお試しください。

メールアイコン 資料請求 無料 電話アイコン 電話する 無料