フォレオ広島東(広島市東区)近くの中古住宅・中古一戸建ての購入情報

フォレオ広島東(広島市東区)近くの中古住宅・中古一戸建ての購入情報をご覧いただけます。

10

↓ チェックした物件をまとめてお問い合わせ

外観:334000219048
中古戸建て 空家

【近い!】 フォレオ広島東まで約729m

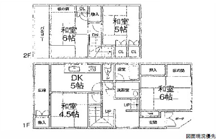
間取り:334000219048
  • 2,980万円
  • 広島県広島市東区中山鏡が丘
  • 芸備線 矢賀駅/徒歩26分
  • 3LDK/築2 年
  • 95.22㎡(建物)
  • 116.36㎡(土地)

閑静な住宅街にある、スタイリッシュな新築住宅!間取りは人気の3LDK!広~い19帖のLDKが魅力的!WIC等収納面も充実!JR矢賀駅や各商業施設も利用可能な立地も◎!

  • 駐車場有
  • システム
    キッチン
  • 追焚機能
  • 所有権
  • 低層住宅地
  • 南向き
  • 小学校
    800m以内
  • スーパー
    800m以内
トータテ住宅販売株式会社 東営業所

掲載は一部です!約9000件の新鮮な物件情報からお客様のご希望の物件を選んでいただけます!年間約1200件の売買実績をもとに各提携機関の特別金利や割引制度にアフターフォローまでお任せください。

その他の情報

外観:334000156941
中古戸建て 空家

【近い!】 フォレオ広島東まで約642m

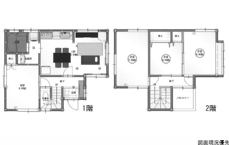
間取り:334000156941
  • 2,080万円
  • 広島県広島市東区温品3丁目
  • 山陽本線 広島駅/バス 24分/温品四丁目 徒歩3分
  • 4LDK/築41 年
  • 85.04㎡(建物)
  • 102.54㎡(土地)

R5年3月:内装フルリノベーション済 周辺は落ち着きのある閑静な住宅街

  • 駐車場有
  • システム
    キッチン
  • 追焚機能
  • 所有権
  • 低層住宅地
  • 南向き
  • 小学校
    800m以内
  • スーパー
    800m以内
株式会社日東リバティ

(株)日東リバティは住まいを通じた出逢いを大切にします。

その他の情報

外観:334000213322
中古戸建て 空家

【近い!】 フォレオ広島東まで約645m

間取り:334000213322
  • 1,480万円
  • 広島県広島市東区温品4丁目
  • 芸備線 矢賀駅/徒歩27分
  • 4DK/築52 年
  • 81.97㎡(建物)
  • 132.16㎡(土地)

閑静な住宅街の2階建て住宅です! バス停からも近く、利便性の良い場所です。 小学校・中学校も近くにあり、子育て世帯にもおすすめです。

  • 駐車場有
  • システム
    キッチン
  • 追焚機能
  • 所有権
  • 低層住宅地
  • 南向き
  • 小学校
    800m以内
  • スーパー
    800m以内
株式会社日東リバティ

(株)日東リバティは住まいを通じた出逢いを大切にします。

その他の情報

NO IMAGE
中古戸建て

【近い!】 フォレオ広島東まで約972m

NO IMAGE
  • 2,580万円
  • 広島県安芸郡府中町みくまり3丁目
  • 芸備線 矢賀駅/徒歩28分
  • 4LDK/築20 年
  • 107.51㎡(建物)
  • 137.45㎡(土地)
  • 駐車場有
  • システム
    キッチン
  • 追焚機能
  • 所有権
  • 低層住宅地
  • 南向き
  • 小学校
    800m以内
  • スーパー
    800m以内
近鉄不動産株式会社 広島駅北営業所

約264社からなります近鉄グループの不動産会社です。広島6営業所ネットワークでご対応いたします。広島駅北営業所では、東区・安芸区・安芸郡・呉市を中心に幅広い地域へもご対応しております。

その他の情報

外観:334000230547
中古戸建て 空家

【近い!】 フォレオ広島東まで約456m

間取り:334000230547
  • 2,530万円
  • 広島県広島市東区中山東1丁目
  • 芸備線 矢賀駅/徒歩18分
  • 7LDK/築30 年
  • 187.14㎡(建物)
  • 115.50㎡(土地)

周辺は生活施設の充実した暮らしやすい町♪ 小学校・保育園近く、子育て家族にもぴったりの住環境です。 事務所兼用住宅使用です。

  • 駐車場有
  • システム
    キッチン
  • 追焚機能
  • 所有権
  • 低層住宅地
  • 南向き
  • 小学校
    800m以内
  • スーパー
    800m以内
株式会社日東リバティ

(株)日東リバティは住まいを通じた出逢いを大切にします。

その他の情報

外観:334000226791
中古戸建て 空家

【近い!】 フォレオ広島東まで約457m

間取り:334000226791
  • 2,530万円
  • 広島県広島市東区中山東1丁目
  • 芸備線 矢賀駅/徒歩20分
  • 6SLDK/築30 年
  • 187.14㎡(建物)
  • 115.50㎡(土地)

平坦地の閑静な住宅街にある中古住宅!2世帯や大家族にも対応可能な間取り!リノベーションベースとして最適な物件!JR矢賀駅や各商業施設が利用可能なのも◎!内覧も可能ですお気軽にお問い合わせください!

  • 駐車場有
  • システム
    キッチン
  • 追焚機能
  • 所有権
  • 低層住宅地
  • 南向き
  • 小学校
    800m以内
  • スーパー
    800m以内
トータテ住宅販売株式会社 東営業所

掲載は一部です!約9000件の新鮮な物件情報からお客様のご希望の物件を選んでいただけます!年間約1200件の売買実績をもとに各提携機関の特別金利や割引制度にアフターフォローまでお任せください。

その他の情報

外観:334000181154
中古戸建て 空家

【近い!】 フォレオ広島東まで約642m

間取り:334000181154
  • 2,080万円
  • 広島県広島市東区温品3丁目
  • 芸備線 矢賀駅/徒歩23分
  • 4LDK/築41 年
  • 85.04㎡(建物)
  • 102.54㎡(土地)

お気軽にお問い合わせください!

  • 駐車場有
  • システム
    キッチン
  • 追焚機能
  • 所有権
  • 低層住宅地
  • 南向き
  • 小学校
    800m以内
  • スーパー
    800m以内
トータテ住宅販売株式会社 東営業所

掲載は一部です!約9000件の新鮮な物件情報からお客様のご希望の物件を選んでいただけます!年間約1200件の売買実績をもとに各提携機関の特別金利や割引制度にアフターフォローまでお任せください。

その他の情報

外観:334000223168
中古戸建て 空家

【近い!】 フォレオ広島東まで約801m

間取り:334000223168
  • 2,230万円
  • 広島県安芸郡府中町城ケ丘
  • 芸備線 矢賀駅/徒歩24分
  • 3DK/築68 年
  • 53.65㎡(建物)
  • 267.66㎡(土地)

☆庭付き平屋☆ロフト☆システムキッチン☆リフォーム歴あり ※現状有姿での引き渡し 売主の契約不適合責任免責 ※堀込車庫サイズ要確認 こちらの中古戸建て物件は、子育ての環境としてもうってつけです。

  • 駐車場有
  • システム
    キッチン
  • 追焚機能
  • 所有権
  • 低層住宅地
  • 南向き
  • 小学校
    800m以内
  • スーパー
    800m以内
オールハウス株式会社

物件のご紹介だけでなく「資金計画」「住宅ローンの手続き」「オプション工事」「リフォーム」「建築」「賃貸」「賃貸管理」などのあらゆるサポートをします。

その他の情報

外観:334000227151
中古戸建て 空家

【近い!】 フォレオ広島東まで約814m

間取り:334000227151
  • 2,980万円
  • 広島県安芸郡府中町城ケ丘
  • 山陽本線 天神川駅/バス 10分/天神川駅北 徒歩6分
  • 4SLDK/築32 年
  • 141.14㎡(建物)
  • 209.15㎡(土地)
  • 駐車場有
  • システム
    キッチン
  • 追焚機能
  • 所有権
  • 低層住宅地
  • 南向き
  • 小学校
    800m以内
  • スーパー
    800m以内
近鉄不動産株式会社 広島駅北営業所

約264社からなります近鉄グループの不動産会社です。広島6営業所ネットワークでご対応いたします。広島駅北営業所では、東区・安芸区・安芸郡・呉市を中心に幅広い地域へもご対応しております。

その他の情報

外観:334000234218
中古戸建て 空家

【近い!】 フォレオ広島東まで約945m

間取り:334000234218
  • 980万円
  • 広島県広島市東区中山鏡が丘
  • 芸備線 矢賀駅/徒歩30分
  • 4DK/築51 年
  • 86.16㎡(建物)
  • 100.46㎡(土地)

閑静な住宅街にある、リノベーションベースとして最適な物件!間取りは4人家族にピッタリの4DK!内覧も可能ですので、お気軽にお問い合わせください。

  • 駐車場有
  • システム
    キッチン
  • 追焚機能
  • 所有権
  • 低層住宅地
  • 南向き
  • 小学校
    800m以内
  • スーパー
    800m以内
トータテ住宅販売株式会社 東営業所

掲載は一部です!約9000件の新鮮な物件情報からお客様のご希望の物件を選んでいただけます!年間約1200件の売買実績をもとに各提携機関の特別金利や割引制度にアフターフォローまでお任せください。

その他の情報

1ページ目(1ページ中)
この条件で新着メールを受取る
この検索条件を保存する

広島市東区の物件も見てみませんか?

現在のページで希望の物件が見つからなければエリアから探してみてもいいかもしれません。

広島市東区の物件を見る

※フォレオ広島東までの直線距離を表示しています。道路距離ではありませんのでご了承ください。

追加が完了しました。

現在00件保存されています。(最大5件)

保存した条件一覧を見る

現在00件保存されています。

残り00件追加することができます。

お気に入り物件一覧を見る

間隔を空けてお試しください。

問合せが未完了の物件

条件を変更
チェックした物件をまとめて 資料請求(無料) お気に入りに追加