寿学園(あわら市)近くの中古住宅・中古一戸建ての購入情報

寿学園(あわら市)近くの中古住宅・中古一戸建ての購入情報をご覧いただけます。

3

↓ チェックした物件をまとめてお問い合わせ

外観:318000004502
中古戸建て

寿学園まで約1796m

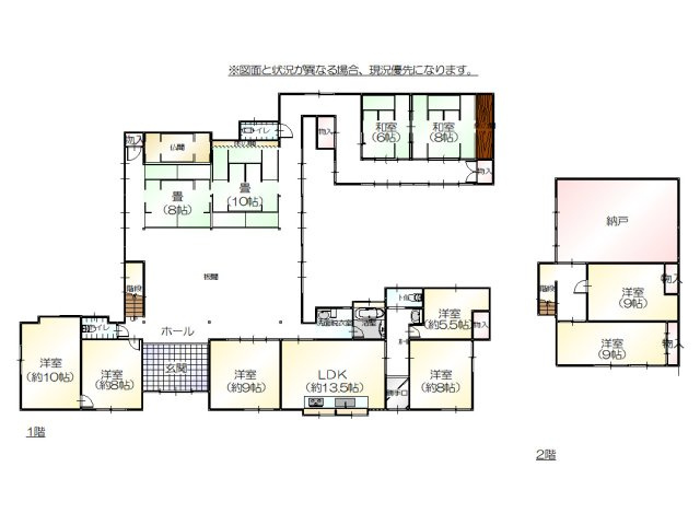
間取り:318000004502
  • 1,980万円
  • 福井県あわら市井江葭
  • えちぜん鉄道三国線 あわら湯のまち駅/徒歩25分
  • 9SLDK/築67 年
  • 348.08㎡(建物)
  • 992.29㎡(土地)

あわら温泉街近く!ファミリーマートまで徒歩8分! オール電化仕様!柱に「欅」、離れでは「檜」使用! 土地も広く建物も大きいため活用方法も幅広いです♪

  • 駐車場有
  • システム
    キッチン
  • 追焚機能
  • 所有権
  • 低層住宅地
  • 南向き
  • 小学校
    800m以内
  • スーパー
    800m以内
株式会社さくらホーム 福井支店

福井市内、福井市近郊の不動産のことなら、さくらホーム福井支店にお任せください。

その他の情報

外観:318000005735
中古戸建て 空家

【近い!】 寿学園まで約270m

間取り:318000005735
  • 2,790万円
  • 福井県あわら市舟津
  • えちぜん鉄道三国線 あわら湯のまち駅/徒歩10分
  • 4LDK/築79 年
  • 137.18㎡(建物)
  • 614.63㎡(土地)

海あり!山あり!温泉あり!ゴルフ場あり!あわら温泉街に立地する改装済古民家!!

  • 駐車場有
  • システム
    キッチン
  • 追焚機能
  • 所有権
  • 低層住宅地
  • 南向き
  • 小学校
    800m以内
  • スーパー
    800m以内
株式会社ホームエース

(株)ホームエースは不動産の売却に関するご相談、相続、お荷物処分や建物解体、税務相談、管理など「不動産売却のコンシェルジュ」としてご対応させて頂きます。お客様にご負担がないよう遠方へのご訪問も可能です。

その他の情報

外観:318000005674
中古戸建て 空家

寿学園まで約1362m

間取り:318000005674
  • 1,399万円
  • 福井県あわら市番田
  • えちぜん鉄道三国線 あわら湯のまち駅/徒歩13分
  • 3LDK/築36 年
  • 84.11㎡(建物)
  • 169.77㎡(土地)

【見学会開催】【リフォーム中】 【住宅ローン控除適用物件】 駐車並列2台可能での3LDKの住宅になります。

  • 駐車場有
  • システム
    キッチン
  • 追焚機能
  • 所有権
  • 低層住宅地
  • 南向き
  • 小学校
    800m以内
  • スーパー
    800m以内
株式会社カチタス 福井店

当社はニトリと業務・資本提携を結ぶ、東証プライム上場企業です。物件を知り尽くしたプロが中古物件を買い取り、細部までチェックし、自社規格に沿って丁寧にリフォームしているので、ご購入後も安心が続きます。

その他の情報

1ページ目(1ページ中)
この条件で新着メールを受取る
この検索条件を保存する

あわら市の物件も見てみませんか?

現在のページで希望の物件が見つからなければエリアから探してみてもいいかもしれません。

あわら市の物件を見る

※寿学園までの直線距離を表示しています。道路距離ではありませんのでご了承ください。

追加が完了しました。

現在00件保存されています。(最大5件)

保存した条件一覧を見る

現在00件保存されています。

残り00件追加することができます。

お気に入り物件一覧を見る

間隔を空けてお試しください。

問合せが未完了の物件

条件を変更
チェックした物件をまとめて 資料請求(無料) お気に入りに追加