あいお(山口市)近くの中古住宅・中古一戸建ての購入情報

あいお(山口市)近くの中古住宅・中古一戸建ての購入情報をご覧いただけます。

2

↓ チェックした物件をまとめてお問い合わせ

外観:335000028692
中古戸建て 空家

あいおまで約1672m

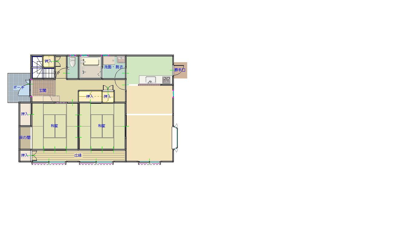
間取り:335000028692
  • 1,050万円
  • 山口県山口市秋穂東日地
  • 山陽本線 大道駅/徒歩77分
  • 5LDK/築29 年
  • 167.20㎡(建物)
  • 1148.70㎡(土地)

家族で住むなら寝室10帖以上の間取りはいかがでしょうか。家族仲良く寝る事もできて魅力的です。こちらは中古の戸建てです。家族におすすめな5LDK。設備も充実しています。冬でも家中があったかいオール電化住

  • 駐車場有
  • システム
    キッチン
  • 追焚機能
  • 所有権
  • 低層住宅地
  • 南向き
  • 小学校
    800m以内
  • スーパー
    800m以内
U2JAPAN株式会社

不動産の事ならU2JAPAN株式会社にお任せください!県内最大級の売り場面積を誇る不動産会社です。売買、金融、保険、リフォーム、相続全てワンストップでご対応いたします。

その他の情報

外観:335000031621
中古戸建て 空家

【近い!】 あいおまで約671m

NO IMAGE
  • 995万円
  • 山口県山口市秋穂東
  • 山陽本線 大道駅/徒歩61分
  • 5LDK/築29 年
  • 193.93㎡(建物)
  • 291.06㎡(土地)

\お問合せはエミアス/スローライフをご希望の方、釣り好きの方にお勧めです♪

  • 駐車場有
  • システム
    キッチン
  • 追焚機能
  • 所有権
  • 低層住宅地
  • 南向き
  • 小学校
    800m以内
  • スーパー
    800m以内
株式会社エミアス 山口支店

当社は山口県内4店舗のネットワークを展開しており、幅広いエリアでお客様の不動産探しや相談を適切に親身にサポートいたします。山口支店公式ライン、インスタグラムからもお問合せ可能です♪

その他の情報

1ページ目(1ページ中)
この条件で新着メールを受取る
この検索条件を保存する

山口市の物件も見てみませんか?

現在のページで希望の物件が見つからなければエリアから探してみてもいいかもしれません。

山口市の物件を見る

※あいおまでの直線距離を表示しています。道路距離ではありませんのでご了承ください。

追加が完了しました。

現在00件保存されています。(最大5件)

保存した条件一覧を見る

現在00件保存されています。

残り00件追加することができます。

お気に入り物件一覧を見る

間隔を空けてお試しください。

問合せが未完了の物件

条件を変更
チェックした物件をまとめて 資料請求(無料) お気に入りに追加