FUTSAL POINT 朝霞台(朝霞市)近くの中古住宅・中古一戸建ての購入情報

FUTSAL POINT 朝霞台(朝霞市)近くの中古住宅・中古一戸建ての購入情報をご覧いただけます。

85

↓ チェックした物件をまとめてお問い合わせ

外観:311002099001
中古戸建て

FUTSAL POINT 朝霞台まで約1178m

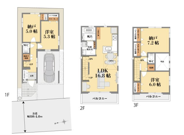
間取り:311002099001
  • 2,890万円
  • 埼玉県新座市東1丁目
  • 東武鉄道東上線 朝霞台駅/徒歩20分
  • 2SLDK/築5 年
  • 73.00㎡(建物)
  • 44.10㎡(土地)

■3駅利用可能な好立地 ■2021年4月築の中古一戸建住宅 ■商業施設が徒歩圏内に充実したエリア ■陽射しをたっぷり感じる2階リビング ■全室3面採光の明るい邸宅

  • 駐車場有
  • システム
    キッチン
  • 追焚機能
  • 所有権
  • 低層住宅地
  • 南向き
  • 小学校
    800m以内
  • スーパー
    800m以内
株式会社マイタウン 志木本店

地域に密着し、志木市から西東京市まで幅広く対応。東武東上線やJR武蔵野線など複数路線の物件情報を一度にご提案し、お客様のご希望に寄り添いながら安心して住まい探しができるよう丁寧にサポートいたします。

その他の情報

外観:311001816392
中古戸建て

FUTSAL POINT 朝霞台まで約1177m

間取り:311001816392
  • 2,890万円
  • 埼玉県新座市東1丁目
  • 東武鉄道東上線 志木駅/徒歩20分
  • 2SLDK/築5 年
  • 73.00㎡(建物)
  • 51.41㎡(土地)

2LDK・全室3面採光・2階LDK・納戸・フローリング・L字キッチン・トイレ2か所・バルコニー・収納

  • 駐車場有
  • システム
    キッチン
  • 追焚機能
  • 所有権
  • 低層住宅地
  • 南向き
  • 小学校
    800m以内
  • スーパー
    800m以内
住宅情報館株式会社 川越店

川越エリア、近隣エリアの新築・中古一戸建・マンション・土地の購入・売却~注文建築・リフォームまで、住まいの事なら「住宅情報館」にお任せ下さい。

その他の情報

外観:311002245657
中古戸建て

FUTSAL POINT 朝霞台まで約1173m

間取り:311002245657
  • 2,890万円
  • 埼玉県新座市東1丁目
  • 東武鉄道東上線 志木駅/徒歩20分
  • 2SLDK/築5 年
  • 73.00㎡(建物)
  • 51.41㎡(土地)

【築浅物件!全室3面採光の2SLDK!】●生活施設充実!子育て世代も安心!●急行停車駅「志木」駅徒歩20分~都心へのアクセス良好な閑静な住宅街!

  • 駐車場有
  • システム
    キッチン
  • 追焚機能
  • 所有権
  • 低層住宅地
  • 南向き
  • 小学校
    800m以内
  • スーパー
    800m以内
おうちの仲介+ 東所沢営業所 株式会社アークレスト 東所沢営業所

不動産売買ならおうちの仲介+(株)アークレスト東所沢営業所にお任せください。お客様に沿ったご提案をさせて頂きます。是非一度お問い合わせくださいませ。

その他の情報

外観:311002135702
中古戸建て

FUTSAL POINT 朝霞台まで約1180m

間取り:311002135702
  • 2,890万円
  • 埼玉県新座市東1丁目
  • 東武鉄道東上線 朝霞台駅/徒歩20分
  • 2SLDK/築5 年
  • 73.00㎡(建物)
  • 51.41㎡(土地)

◆2021年4月築・全室3面採光の2SLDK築浅住宅 ◆日当り・住環境良好 ◆オープンハウス・アーキテクト旧施工 ◆2路線3駅利用可能で交通アクセス便利な立地

  • 駐車場有
  • システム
    キッチン
  • 追焚機能
  • 所有権
  • 低層住宅地
  • 南向き
  • 小学校
    800m以内
  • スーパー
    800m以内
タカラの仲介「MUSUBU」株式会社タカラレーベンリアルネット さいたまセンター

不動産仲介・売買のマンション・一戸建ての事なら[タカラレーベンリアルネット]さいたまセンターへお任せ下さい!東証プライム上場『MIRARTHホールディングス(タカラレーベン)』のグループ会社です。

その他の情報

外観:311002083725
中古戸建て

FUTSAL POINT 朝霞台まで約1177m

間取り:311002083725
  • 2,890万円
  • 埼玉県新座市東1丁目
  • 東武鉄道東上線 朝霞台駅/徒歩20分
  • 2SLDK/築5 年
  • 73.00㎡(建物)
  • 51.41㎡(土地)

FP相談キャッシュフローの作成無料でできます

  • 駐車場有
  • システム
    キッチン
  • 追焚機能
  • 所有権
  • 低層住宅地
  • 南向き
  • 小学校
    800m以内
  • スーパー
    800m以内
ME不動産西東京株式会社

2003年2人で創業し21店舗展開、社員数600人。グループ年間成約数2328件と驚異的な販売実績を有するME Group その実績から提携ローン・金利優遇も多数あり。全国に出店計画中の急成長企業!

その他の情報

外観:311001886349
中古戸建て

FUTSAL POINT 朝霞台まで約1177m

間取り:311001886349
  • 2,890万円
  • 埼玉県新座市東1丁目
  • 東武鉄道東上線 朝霞台駅/徒歩20分
  • 2SLDK/築5 年
  • 73.00㎡(建物)
  • 51.41㎡(土地)

ご自宅のご送迎もお気軽にお申し付け下さい。

  • 駐車場有
  • システム
    キッチン
  • 追焚機能
  • 所有権
  • 低層住宅地
  • 南向き
  • 小学校
    800m以内
  • スーパー
    800m以内
ME不動産城北株式会社

22社、社員数600人。驚異的な販売実績を有するME Group その実績から提携ローン・金利優遇も多数あり。東京23区エリア・埼玉県南部エリアでの売買でしたらME不動産城北までご連絡ください。

その他の情報

外観:311001771396
中古戸建て

FUTSAL POINT 朝霞台まで約1177m

間取り:311001771396
  • 2,890万円
  • 埼玉県新座市東1丁目
  • 東武鉄道東上線 朝霞台駅/徒歩20分
  • 2SLDK/築5 年
  • 73.00㎡(建物)
  • 51.41㎡(土地)

ご来店後にアンケートにお答え頂くと3,000円のQUOカードをプレゼント(1組様1回限り、後日郵送)

  • 駐車場有
  • システム
    キッチン
  • 追焚機能
  • 所有権
  • 低層住宅地
  • 南向き
  • 小学校
    800m以内
  • スーパー
    800m以内
ME不動産埼京株式会社

2003年2人で創業し現在6事業21店舗展開。2024年はグループ成約数2416件と驚異的な販売実績を有するME Group その実績から提携ローン・金利優遇も多数あり。全国に出店計画中の急成長企業!

その他の情報

NO IMAGE
中古戸建て 空家

FUTSAL POINT 朝霞台まで約1166m

間取り:311002283234
  • 5,700万円
  • 埼玉県朝霞市三原4丁目
  • 東武鉄道東上線 志木駅/徒歩11分
  • 2LDK/築5 年
  • 101.84㎡(建物)
  • 115.34㎡(土地)

■2021年10月築の中古一戸建住宅 ■2路線3駅利用可能な好立地 ■商業施設が徒歩圏内に充実したエリア ■子育て便利な住環境 ■LDK約19.7帖のゆとりある空間 ■WICやパントリーなど収納豊富

  • 駐車場有
  • システム
    キッチン
  • 追焚機能
  • 所有権
  • 低層住宅地
  • 南向き
  • 小学校
    800m以内
  • スーパー
    800m以内
株式会社マイタウン 志木本店

地域に密着し、志木市から西東京市まで幅広く対応。東武東上線やJR武蔵野線など複数路線の物件情報を一度にご提案し、お客様のご希望に寄り添いながら安心して住まい探しができるよう丁寧にサポートいたします。

その他の情報

外観:311002290866
中古戸建て 空家
間取り:311002290866
  • 2,999万円
  • 埼玉県新座市畑中3丁目
  • 西武池袋・豊島線 ひばりヶ丘駅/バス 19分/榎木 徒歩2分
  • 4LDK/築15 年
  • 92.74㎡(建物)
  • 100.79㎡(土地)

R8年1月リフォーム完了・4LDK・太陽光発電・全居室2面採光+収納完備・対面式システムキッチン・床下収納・浴室乾燥機など設備充実・徒歩10分圏内にコンビニ・スーパーなど

  • 駐車場有
  • システム
    キッチン
  • 追焚機能
  • 所有権
  • 低層住宅地
  • 南向き
  • 小学校
    800m以内
  • スーパー
    800m以内
株式会社マイタウン西武

新座・西東京・東久留米・練馬の不動産購入・売却はマイタウン西武へ。大好評!自社設計・自社施工の分譲住宅、注文住宅、リフォーム、売却や下取りもお任せ下さい。売却査定時に簡易建物診断を無料実施中です!

その他の情報

外観:311002264453
中古戸建て 空家

FUTSAL POINT 朝霞台まで約1823m

間取り:311002264453
  • 2,999万円
  • 埼玉県新座市畑中3丁目
  • 武蔵野線 新座駅/徒歩32分
  • 4LDK/築15 年
  • 92.74㎡(建物)
  • 100.79㎡(土地)

・2026年1月リフォーム住戸(トイレ・コンロ新品、クロス張替え、給湯器交換等) ・家事のしやすい水回り2WAY動線 ・全居室2面採光の明るい家

  • 駐車場有
  • システム
    キッチン
  • 追焚機能
  • 所有権
  • 低層住宅地
  • 南向き
  • 小学校
    800m以内
  • スーパー
    800m以内
株式会社エステート白馬 所沢店

ご見学に併せて、無料の外部FP相談をご利用頂けます。マイホーム購入だけでなく、老後の資金計画・お子様の教育資金等のライフシュミレーションを考慮し、無理のない返済計画をご提案させていただきます。

その他の情報

外観:311002085682
中古戸建て
間取り:311002085682
  • 2,890万円
  • 埼玉県新座市東1丁目
  • 東武鉄道東上線 朝霞台駅/徒歩20分
  • 2SLDK/築5 年
  • 73.00㎡(建物)
  • 44.12㎡(土地)

令和3年4月築の邸宅です/LDK13.9帖/2路線3駅利用可/全室3面採光

  • 駐車場有
  • システム
    キッチン
  • 追焚機能
  • 所有権
  • 低層住宅地
  • 南向き
  • 小学校
    800m以内
  • スーパー
    800m以内
株式会社西武開発 志木店

地元のために、お客様のために。私たちの情熱が、地元の皆様の夢をかたちにします。

その他の情報

NO IMAGE
中古戸建て

FUTSAL POINT 朝霞台まで約1214m

間取り:311002315011
  • 3,690万円
  • 埼玉県朝霞市膝折町5丁目
  • 東武鉄道東上線 朝霞駅/徒歩19分
  • 3SLDK/築13 年
  • 107.64㎡(建物)
  • 100.11㎡(土地)

徒歩10分圏内に教育施設や生活利便施設が揃う3(4)LDK+Sの住まい 壁を設置し2部屋に分けられるフレキシブルタイプ洋室 リビング床暖房完備

  • 駐車場有
  • システム
    キッチン
  • 追焚機能
  • 所有権
  • 低層住宅地
  • 南向き
  • 小学校
    800m以内
  • スーパー
    800m以内
株式会社マイタウン 志木本店

地域に密着し、志木市から西東京市まで幅広く対応。東武東上線やJR武蔵野線など複数路線の物件情報を一度にご提案し、お客様のご希望に寄り添いながら安心して住まい探しができるよう丁寧にサポートいたします。

その他の情報

外観:311002099047
中古戸建て

FUTSAL POINT 朝霞台まで約1259m

間取り:311002099047
  • 5,780万円
  • 埼玉県朝霞市三原4丁目
  • 東武鉄道東上線 志木駅/徒歩10分
  • 3SLDK/築4 年
  • 99.37㎡(建物)
  • 70.28㎡(土地)

◆志木駅より徒歩10分!2022年6月築の築浅物件 ◆充実の設備仕様が魅力!住み心地の良いこだわりの注文住宅 ◆床暖房・壁掛けTV付LDK19.1帖 ◆ガス衣類乾燥機・カップボード・WIC2カ所有

  • 駐車場有
  • システム
    キッチン
  • 追焚機能
  • 所有権
  • 低層住宅地
  • 南向き
  • 小学校
    800m以内
  • スーパー
    800m以内
株式会社マイタウン 志木本店

地域に密着し、志木市から西東京市まで幅広く対応。東武東上線やJR武蔵野線など複数路線の物件情報を一度にご提案し、お客様のご希望に寄り添いながら安心して住まい探しができるよう丁寧にサポートいたします。

その他の情報

NO IMAGE
中古戸建て 空家
間取り:311002336338
  • 2,999万円
  • 埼玉県新座市畑中3丁目
  • 武蔵野線 新座駅/徒歩32分
  • 4LDK/築15 年
  • 92.74㎡(建物)
  • 100.79㎡(土地)

■全室2面窓で採光・通風良好 ■災害に強い太陽光発電システム搭載 ■小さなお子様のお昼寝スペースにもおすすめの和室 ■日当たり良好な南西向きのバルコニー ■お片付けしやすくお部屋がすっきり各室収納

  • 駐車場有
  • システム
    キッチン
  • 追焚機能
  • 所有権
  • 低層住宅地
  • 南向き
  • 小学校
    800m以内
  • スーパー
    800m以内
株式会社住協 朝霞台支店

一人一人に丁寧でカスタマーファーストな気持ちを大切にしている不動産会社です。 不動産購入・不動産売却に関する不安点を少しでも軽減していただく為に、皆様のサポートを全力でさせていただきます。

その他の情報

外観:311001445251
中古戸建て

FUTSAL POINT 朝霞台まで約1177m

間取り:311001445251
  • 2,890万円
  • 埼玉県新座市東1丁目
  • 東武鉄道東上線 志木駅/徒歩20分
  • 2SLDK/築5 年
  • 73.00㎡(建物)
  • 51.41㎡(土地)

●おすすめポイント●・全室3面採光につき陽当たり良好・近隣商業施設充実で便利

  • 駐車場有
  • システム
    キッチン
  • 追焚機能
  • 所有権
  • 低層住宅地
  • 南向き
  • 小学校
    800m以内
  • スーパー
    800m以内
ジーアール株式会社

不動産売買、売却、リフォーム・リノベーションまでジーアール株式会社にお任せ下さい。親切・丁寧にご対応させて頂きます。マイホームに関する様々なご相談を承っておりますので、お気軽にお問い合わせください。

その他の情報

外観:311002324619
中古戸建て 空家

FUTSAL POINT 朝霞台まで約1818m

間取り:311002324619
  • 2,999万円
  • 埼玉県新座市畑中3丁目
  • 武蔵野線 新座駅/徒歩35分
  • 4LDK/築15 年
  • 92.74㎡(建物)
  • 100.79㎡(土地)

閑静な住宅地 近隣には生活施設等充実の為住環境良好です 家族のコミュニケーションがとれる対面キッチン 2026年2月新規内装リフォーム、きれいな住まいと充実の設備・仕様をぜひご覧ください

  • 駐車場有
  • システム
    キッチン
  • 追焚機能
  • 所有権
  • 低層住宅地
  • 南向き
  • 小学校
    800m以内
  • スーパー
    800m以内
株式会社東宝ハウス立川

東京多摩地区の売買情報ならお任せ下さい。一戸建て、マンション、土地の情報量が自慢です。

その他の情報

外観:311002223019
中古戸建て

FUTSAL POINT 朝霞台まで約1272m

間取り:311002223019
  • 5,280万円
  • 埼玉県朝霞市三原3丁目
  • 東武鉄道東上線 志木駅/徒歩6分
  • 2SLDK/築5 年
  • 97.89㎡(建物)
  • 65.70㎡(土地)

■「志木」駅より徒歩6分の恵まれた住環境 ■2021年6月築の中古一戸建住宅 ■浴室換気乾燥機や食洗器など充実の設備仕様 ■商業施設が徒歩圏に充実した暮らし便利な住環境 ■ビルトインガレージ

  • 駐車場有
  • システム
    キッチン
  • 追焚機能
  • 所有権
  • 低層住宅地
  • 南向き
  • 小学校
    800m以内
  • スーパー
    800m以内
株式会社マイタウン 志木本店

地域に密着し、志木市から西東京市まで幅広く対応。東武東上線やJR武蔵野線など複数路線の物件情報を一度にご提案し、お客様のご希望に寄り添いながら安心して住まい探しができるよう丁寧にサポートいたします。

その他の情報

外観:311002348552
中古戸建て 空家

FUTSAL POINT 朝霞台まで約1742m

間取り:311002348552
  • 2,999万円
  • 埼玉県新座市畑中3丁目
  • 武蔵野線 新座駅/徒歩32分
  • 4LDK/築15 年
  • 92.74㎡(建物)
  • 100.79㎡(土地)

FP相談キャッシュフローの作成無料でできます

  • 駐車場有
  • システム
    キッチン
  • 追焚機能
  • 所有権
  • 低層住宅地
  • 南向き
  • 小学校
    800m以内
  • スーパー
    800m以内
ME不動産西東京株式会社

2003年2人で創業し21店舗展開、社員数600人。グループ年間成約数2328件と驚異的な販売実績を有するME Group その実績から提携ローン・金利優遇も多数あり。全国に出店計画中の急成長企業!

その他の情報

NO IMAGE
中古戸建て 空家

FUTSAL POINT 朝霞台まで約1818m

間取り:311002282126
  • 2,999万円
  • 埼玉県新座市畑中3丁目
  • 東武鉄道東上線 朝霞駅/徒歩31分
  • 4LDK/築15 年
  • 92.74㎡(建物)
  • 100.79㎡(土地)

●おすすめポイント●・広々約16帖のLDK・コンビニまで約180mでお買い物便利<住宅ロー

  • 駐車場有
  • システム
    キッチン
  • 追焚機能
  • 所有権
  • 低層住宅地
  • 南向き
  • 小学校
    800m以内
  • スーパー
    800m以内
ジーアール株式会社

不動産売買、売却、リフォーム・リノベーションまでジーアール株式会社にお任せ下さい。親切・丁寧にご対応させて頂きます。マイホームに関する様々なご相談を承っておりますので、お気軽にお問い合わせください。

その他の情報

外観:311002156961
中古戸建て 空家

FUTSAL POINT 朝霞台まで約1525m

間取り:311002156961
  • 2,999万円
  • 埼玉県朝霞市幸町1丁目
  • 東武鉄道東上線 朝霞駅/バス 8分/青葉台公園 徒歩4分
  • 3LDK/築28 年
  • 77.63㎡(建物)
  • 63.99㎡(土地)

ご来店後にアンケートにお答え頂くと3,000円のQUOカードをプレゼント(1組様1回限り、後日郵送)

  • 駐車場有
  • システム
    キッチン
  • 追焚機能
  • 所有権
  • 低層住宅地
  • 南向き
  • 小学校
    800m以内
  • スーパー
    800m以内
ME不動産埼京株式会社

2003年2人で創業し現在6事業21店舗展開。2024年はグループ成約数2416件と驚異的な販売実績を有するME Group その実績から提携ローン・金利優遇も多数あり。全国に出店計画中の急成長企業!

その他の情報

外観:311002156874
中古戸建て 空家

FUTSAL POINT 朝霞台まで約1525m

間取り:311002156874
  • 2,999万円
  • 埼玉県朝霞市幸町1丁目
  • 東武鉄道東上線 朝霞駅/バス 8分/青葉台公園 徒歩4分
  • 3LDK/築28 年
  • 77.63㎡(建物)
  • 63.99㎡(土地)

マイホーム探しには、生活費、教育費、老後費、人生の三大支出も加味した、将来の家計を考慮することが大切です。弊社では住宅FPアドバイザーが、お客様の将来設計を見据えたコンサルティングを実施します。

  • 駐車場有
  • システム
    キッチン
  • 追焚機能
  • 所有権
  • 低層住宅地
  • 南向き
  • 小学校
    800m以内
  • スーパー
    800m以内
ME不動産城北株式会社

22社、社員数600人。驚異的な販売実績を有するME Group その実績から提携ローン・金利優遇も多数あり。東京23区エリア・埼玉県南部エリアでの売買でしたらME不動産城北までご連絡ください。

その他の情報

外観:311002156836
中古戸建て 空家

FUTSAL POINT 朝霞台まで約1525m

間取り:311002156836
  • 2,999万円
  • 埼玉県朝霞市幸町1丁目
  • 東武鉄道東上線 朝霞駅/バス 8分/青葉台公園 徒歩4分
  • 3LDK/築28 年
  • 77.63㎡(建物)
  • 63.99㎡(土地)

FP相談キャッシュフローの作成無料でできます

  • 駐車場有
  • システム
    キッチン
  • 追焚機能
  • 所有権
  • 低層住宅地
  • 南向き
  • 小学校
    800m以内
  • スーパー
    800m以内
ME不動産西東京株式会社

2003年2人で創業し21店舗展開、社員数600人。グループ年間成約数2328件と驚異的な販売実績を有するME Group その実績から提携ローン・金利優遇も多数あり。全国に出店計画中の急成長企業!

その他の情報

外観:311002118944
中古戸建て 空家

FUTSAL POINT 朝霞台まで約1524m

間取り:311002118944
  • 2,999万円
  • 埼玉県朝霞市幸町1丁目
  • 東武鉄道東上線 朝霞駅/徒歩17分
  • 3LDK/築28 年
  • 77.63㎡(建物)
  • 63.99㎡(土地)

◇◆オール電化・3階建てのリフォーム戸建◆◇ ■前面道 ■採光の良い2階に3面採光のリビング

  • 駐車場有
  • システム
    キッチン
  • 追焚機能
  • 所有権
  • 低層住宅地
  • 南向き
  • 小学校
    800m以内
  • スーパー
    800m以内
タカラの仲介「MUSUBU」株式会社タカラレーベンリアルネット さいたまセンター

不動産仲介・売買のマンション・一戸建ての事なら[タカラレーベンリアルネット]さいたまセンターへお任せ下さい!東証プライム上場『MIRARTHホールディングス(タカラレーベン)』のグループ会社です。

その他の情報

外観:311002336389
中古戸建て 空家
間取り:311002336389
  • 2,999万円
  • 埼玉県朝霞市幸町1丁目
  • 東武鉄道東上線 朝霞駅/徒歩17分
  • 3LDK/築28 年
  • 77.63㎡(建物)
  • 63.99㎡(土地)

■気持ちよく新生活を送れるよう、リフォーム後のお引渡し ■開放的でプライバシー性の高い2階リビング ■キッチン回りのお手入れがしやすいオール電化住宅 ■お片付けしやすくお部屋がすっきり各室収納

  • 駐車場有
  • システム
    キッチン
  • 追焚機能
  • 所有権
  • 低層住宅地
  • 南向き
  • 小学校
    800m以内
  • スーパー
    800m以内
株式会社住協 朝霞台支店

一人一人に丁寧でカスタマーファーストな気持ちを大切にしている不動産会社です。 不動産購入・不動産売却に関する不安点を少しでも軽減していただく為に、皆様のサポートを全力でさせていただきます。

その他の情報

外観:311002344813
中古戸建て 空家

FUTSAL POINT 朝霞台まで約1091m

間取り:311002344813
  • 4,180万円
  • 埼玉県朝霞市本町1丁目
  • 東武鉄道東上線 朝霞駅/徒歩13分
  • 2SLDK/築17 年
  • 92.11㎡(建物)
  • 65.37㎡(土地)

■オール電化住宅 ■太陽光発電設備あり ■朝霞駅まで徒歩13分 ■ショッピング複合施設まで徒歩5分 ■室内綺麗な平成21年築!

  • 駐車場有
  • システム
    キッチン
  • 追焚機能
  • 所有権
  • 低層住宅地
  • 南向き
  • 小学校
    800m以内
  • スーパー
    800m以内
アルスビレッジ株式会社 朝霞店

弊社は、埼玉県は東武東上線沿線エリアで住宅系建物・土地の不動産売買と売買仲介の専門企業です。得意とするエリアは本社の朝霞市と支店がある富士見市の物件情報は日々情報取集することで豊富に取り扱っております

その他の情報

NO IMAGE
中古戸建て 空家

FUTSAL POINT 朝霞台まで約1759m

間取り:311002347529
  • 3,180万円
  • 埼玉県朝霞市宮戸2丁目
  • 東武鉄道東上線 朝霞台駅/徒歩18分
  • 3LDK/築16 年
  • 89.41㎡(建物)
  • 66.38㎡(土地)

FP相談キャッシュフローの作成無料でできます

  • 駐車場有
  • システム
    キッチン
  • 追焚機能
  • 所有権
  • 低層住宅地
  • 南向き
  • 小学校
    800m以内
  • スーパー
    800m以内
ME不動産西東京株式会社

2003年2人で創業し21店舗展開、社員数600人。グループ年間成約数2328件と驚異的な販売実績を有するME Group その実績から提携ローン・金利優遇も多数あり。全国に出店計画中の急成長企業!

その他の情報

外観:311002182928
中古戸建て 空家

FUTSAL POINT 朝霞台まで約1523m

間取り:311002182928
  • 2,999万円
  • 埼玉県朝霞市幸町1丁目
  • 東武鉄道東上線 朝霞駅/徒歩17分
  • 3LDK/築28 年
  • 77.63㎡(建物)
  • 63.99㎡(土地)

◇エコキュート新規交換 ◇夜間電力で光熱費を抑えるオール電化住宅 ◇陽当たりの良い南西向き3LDK ◇内外装リフォーム済

  • 駐車場有
  • システム
    キッチン
  • 追焚機能
  • 所有権
  • 低層住宅地
  • 南向き
  • 小学校
    800m以内
  • スーパー
    800m以内
株式会社マイタウン 志木本店

地域に密着し、志木市から西東京市まで幅広く対応。東武東上線やJR武蔵野線など複数路線の物件情報を一度にご提案し、お客様のご希望に寄り添いながら安心して住まい探しができるよう丁寧にサポートいたします。

その他の情報

外観:311002117585
中古戸建て 空家
間取り:311002117585
  • 2,999万円
  • 埼玉県朝霞市幸町1丁目
  • 東武鉄道東上線 朝霞駅/徒歩17分
  • 3LDK/築28 年
  • 77.63㎡(建物)
  • 63.99㎡(土地)

幸町1丁目の3階建て邸宅です/カースペース1台可(車種による)/エコキュート新規交換オール電化住宅です

  • 駐車場有
  • システム
    キッチン
  • 追焚機能
  • 所有権
  • 低層住宅地
  • 南向き
  • 小学校
    800m以内
  • スーパー
    800m以内
株式会社西武開発 志木店

地元のために、お客様のために。私たちの情熱が、地元の皆様の夢をかたちにします。

その他の情報

外観:311002341298
中古戸建て 空家
間取り:311002341298
  • 2,090万円
  • 埼玉県朝霞市泉水2丁目
  • 東武鉄道東上線 朝霞台駅/徒歩25分
  • 3SLDK/築42 年
  • 110.64㎡(建物)
  • 104.21㎡(土地)

室内きれいにお使いです/高台日当り良好/初めてのマイホームにいかがですか/空家なのでいつでも見学可!

  • 駐車場有
  • システム
    キッチン
  • 追焚機能
  • 所有権
  • 低層住宅地
  • 南向き
  • 小学校
    800m以内
  • スーパー
    800m以内
株式会社西武開発 浦和店

地元のために、お客様のために。私たちの情熱が、地元の皆様の夢をかたちにします。

その他の情報

NO IMAGE
中古戸建て 空家
間取り:311002337791
  • 5,700万円
  • 埼玉県朝霞市三原4丁目
  • 東武鉄道東上線 志木駅/徒歩11分
  • 2LDK/築5 年
  • 101.84㎡(建物)
  • 115.34㎡(土地)

■東武東上線志木駅まで徒歩11分の利便性が高い立地 ■ホームパーティーも楽しめる広々19.7帖のLDK ■キッチンと水回りが集約した、家事を楽にする動線

  • 駐車場有
  • システム
    キッチン
  • 追焚機能
  • 所有権
  • 低層住宅地
  • 南向き
  • 小学校
    800m以内
  • スーパー
    800m以内
株式会社住協 朝霞台支店

一人一人に丁寧でカスタマーファーストな気持ちを大切にしている不動産会社です。 不動産購入・不動産売却に関する不安点を少しでも軽減していただく為に、皆様のサポートを全力でさせていただきます。

その他の情報

1ページ目(3ページ中) 次へ
この条件で新着メールを受取る
この検索条件を保存する

朝霞市の物件も見てみませんか?

現在のページで希望の物件が見つからなければエリアから探してみてもいいかもしれません。

朝霞市の物件を見る

※FUTSAL POINT 朝霞台までの直線距離を表示しています。道路距離ではありませんのでご了承ください。

追加が完了しました。

現在00件保存されています。(最大5件)

保存した条件一覧を見る

現在00件保存されています。

残り00件追加することができます。

お気に入り物件一覧を見る

間隔を空けてお試しください。

問合せが未完了の物件

条件を変更
チェックした物件をまとめて 資料請求(無料) お気に入りに追加