熊本県立八代清流高等学校(八代市)近くの中古住宅・中古一戸建ての購入情報

熊本県立八代清流高等学校(八代市)近くの中古住宅・中古一戸建ての購入情報をご覧いただけます。

6

↓ チェックした物件をまとめてお問い合わせ

外観:343000089850
中古戸建て 空家

【近い!】 熊本県立八代清流高等学校まで約263m

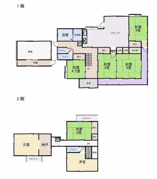
間取り:343000089850
  • 1,099万円
  • 熊本県八代市豊原上町
  • 鹿児島本線 新八代駅/徒歩30分
  • 7DK/築43 年
  • 180.25㎡(建物)
  • 271.80㎡(土地)

【見学会開催】【リフォーム済】 【年内入居可】 ※直接来場も可能です。現地からお電話ください。高田小学校まで約700m。八代第五中学校まで約1100m。7DKで二世帯でお住まいの方にもおすすめです。

  • 駐車場有
  • システム
    キッチン
  • 追焚機能
  • 所有権
  • 低層住宅地
  • 南向き
  • 小学校
    800m以内
  • スーパー
    800m以内
株式会社カチタス 八代店

当社はニトリと業務・資本提携を結ぶ、東証プライム上場企業です。物件を知り尽くしたプロが中古物件を買い取り、細部までチェックし、自社規格に沿って丁寧にリフォームしているので、ご購入後も安心が続きます。

その他の情報

外観:343000070966
中古戸建て 空家

【近い!】 熊本県立八代清流高等学校まで約910m

間取り:343000070966
  • 1,349万円
  • 熊本県八代市古麓町
  • 鹿児島本線 八代駅/バス 宮地中央 徒歩14分
  • 3LDK/築49 年
  • 91.31㎡(建物)
  • 227.00㎡(土地)

【見学会開催】 内外装リフォーム予定/年内入居可/平屋/耐震工事/水回り交換/駐車2台可/宮地小学校徒歩17分/業務スーパー八代宮地店まで車で3分(1.5km)/閑静な住宅地/周辺交通量少なめ/対面

  • 駐車場有
  • システム
    キッチン
  • 追焚機能
  • 所有権
  • 低層住宅地
  • 南向き
  • 小学校
    800m以内
  • スーパー
    800m以内
株式会社カチタス 八代店

当社はニトリと業務・資本提携を結ぶ、東証プライム上場企業です。物件を知り尽くしたプロが中古物件を買い取り、細部までチェックし、自社規格に沿って丁寧にリフォームしているので、ご購入後も安心が続きます。

その他の情報

外観:343000090827
中古戸建て 空家

【近い!】 熊本県立八代清流高等学校まで約560m

間取り:343000090827
  • 1,100万円
  • 熊本県八代市奈良木町
  • 肥薩おれんじ鉄道 肥後高田駅/徒歩31分
  • 6LDK/築24 年
  • 154.61㎡(建物)
  • 413.21㎡(土地)

駐車スペースたっぷり。別棟もあり。室内では繋がっております。部屋数がおおいです。

  • 駐車場有
  • システム
    キッチン
  • 追焚機能
  • 所有権
  • 低層住宅地
  • 南向き
  • 小学校
    800m以内
  • スーパー
    800m以内
株式会社マリーン不動産

その他の情報

外観:343000066847
中古戸建て 空家

【近い!】 熊本県立八代清流高等学校まで約553m

間取り:343000066847
  • 1,100万円
  • 熊本県八代市奈良木町
  • 肥薩おれんじ鉄道 肥後高田駅/徒歩22分
  • 6LDK/築24 年
  • 154.61㎡(建物)
  • 413.21㎡(土地)

■ゆとりのある敷地です!

  • 駐車場有
  • システム
    キッチン
  • 追焚機能
  • 所有権
  • 低層住宅地
  • 南向き
  • 小学校
    800m以内
  • スーパー
    800m以内
Nikkori House株式会社

1.お客様の為に情熱・熱意・笑顔を持って物件をご紹介致します!2.住宅ローンのご紹介が得意です!ご年収が少なめの方(150~)ローン審査で減額回答や承認が下りなかった方等何でもご相談下さい

その他の情報

外観:343000066481
中古戸建て 空家

【近い!】 熊本県立八代清流高等学校まで約300m

間取り:343000066481
  • 599万円
  • 熊本県八代市豊原中町
  • 鹿児島本線 八代駅/バス 八代清流高校前 徒歩4分
  • 4LDK/築43 年
  • 112.91㎡(建物)
  • 138.33㎡(土地)

【見学会開催】 徒歩15分以内に教育施設(高田小学校698m、第五中学校1200m)が揃う、充実の子育て環境。スーパー徒歩11分(822m)、コンビニ徒歩6分(462m)と生活しやすい立地。

  • 駐車場有
  • システム
    キッチン
  • 追焚機能
  • 所有権
  • 低層住宅地
  • 南向き
  • 小学校
    800m以内
  • スーパー
    800m以内
株式会社カチタス 八代店

当社はニトリと業務・資本提携を結ぶ、東証プライム上場企業です。物件を知り尽くしたプロが中古物件を買い取り、細部までチェックし、自社規格に沿って丁寧にリフォームしているので、ご購入後も安心が続きます。

その他の情報

1ページ目(1ページ中)
この条件で新着メールを受取る
この検索条件を保存する

八代市の物件も見てみませんか?

現在のページで希望の物件が見つからなければエリアから探してみてもいいかもしれません。

八代市の物件を見る

※熊本県立八代清流高等学校までの直線距離を表示しています。道路距離ではありませんのでご了承ください。

追加が完了しました。

現在00件保存されています。(最大5件)

保存した条件一覧を見る

現在00件保存されています。

残り00件追加することができます。

お気に入り物件一覧を見る

間隔を空けてお試しください。

問合せが未完了の物件

条件を変更
チェックした物件をまとめて 資料請求(無料) お気に入りに追加