安佐北区落合南4丁目|広島市安佐北区(広島県)の空き家・中古住宅・中古一戸建て

外観

外観

2,900万円

月々の支払い目安:--

ローン詳細

\ 人気物件は決まるのが早い!まずはお問合せを /

メールアイコン 物件の資料をもらう 3項目のみ入力すればOK 無料

掲載終了まであと4

所在地・交通

広島県広島市安佐北区落合南4丁目

芸備線 玖村駅/徒歩24分

地図を見る

POINT

築6年築浅の南向き4LDK+1階にユーティリティルームあり♪ 南向きのため日当りも良好で内外装ともに綺麗な物件です! 各居室のクロス交換も売主サービスにて受付可能です♪(アクセントクロス1面)

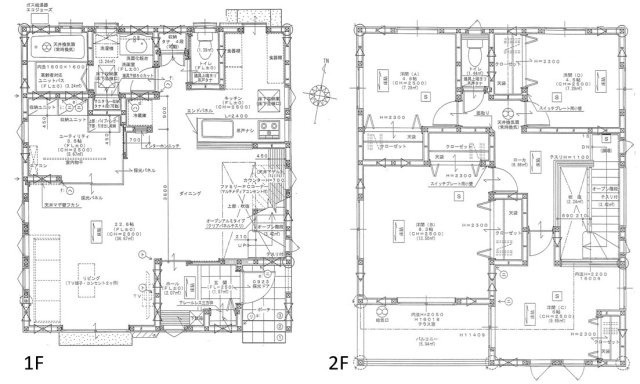
間取り
4LDK
建物面積
109.89 ㎡
築年月
2019 年12 月(築7 年)
土地権利
所有権
駐車場
空有 (3 台) 無料
現況
居住中
実際に見学したい

トータテ住宅販売株式会社 北営業所

掲載は一部です!約9000件の新鮮な物件情報からお客様のご希望の物件を選んでいただけます!年間約1200件の売買実績をもとに各提携機関の特別金利や割引制度にアフターフォローまでお任せください。

会社情報

この物件について

こちらの物件は芸備線を玖村駅で下車し、徒歩24分の場所に位置しています。見知らぬ訪問者への対応も安心なモニター付きドアホンが付いており、浴室には乾燥機が付いているので雨の日に洗濯物を干せるだけでなく入浴後の浴室の乾燥にも使えます。また、駐車場が2台以上あるので家族用としてだけでなく来客時も安心して車が停められます。周辺578m圏内(徒歩8分)には落合東小学校もあります。

※「この物件について」に記載の情報は、登録情報をもとに当サイトが掲載するものであり、不動産物件情報を掲載している不動産事業者が掲載するものではありません。

内観・外観

間取り図

間取り 拡大

4LDK

建物面積
109.89 ㎡
土地面積
133.16 ㎡
建物構造
木造 / 2 階建

写真

\ 人気物件は決まるのが早い!まずはお問合せを /

メールアイコン 物件の資料をもらう 3項目のみ入力すればOK 無料

掲載終了まであと4

この物件を共有・保存する

設備

主な設備

キッチン
  • システムキッチン

    システム
    キッチン

  • カウンターキッチン

    カウンター
    キッチン

  • IHコンロ

    IHコンロ

  • ガスコンロ

    ガスコンロ

バス・トイレ
  • 追い焚き

    追い焚き

  • 浴室乾燥機

    浴室乾燥機

  • シャワー付洗面化粧台

    シャワー付
    洗面化粧台

  • 洗浄便座

    洗浄便座

室内設備
  • ウォークインクローゼット

    ウォークイン
    クローゼット

  • 全居室収納

    全居室収納

  • TVモニタ付ドアホン

    TVモニタ付
    ドアホン

  • 床暖房

    床暖房

特徴
  • オール電化

    オール電化

  • バリアフリー

    バリアフリー

  • 南向き

    南向き

  • 駐車場付

    駐車場付

その他設備

公営水道、都市ガス、下水、バルコニー、フローリング、TVドアホン、バリアフリー、カウンターキッチン、浴室乾燥機、クローゼット、下駄箱

設備情報について質問する

\ 人気物件は決まるのが早い!まずはお問合せを /

メールアイコン 物件の資料をもらう 3項目のみ入力すればOK 無料

掲載終了まであと4

この物件を共有・保存する

周辺情報

周辺の歯医者

読込中

周辺の医療機関

読込中

周辺の駅

読込中

周辺の銀行

読込中

周辺のパン屋

読込中

その他の周辺施設を探す
学区や周辺について質問したい

周辺の生活情報

ハザード情報

物件周辺の土砂、浸水、津波、
地震の情報を地図で確認できます。

ハザードマップを確認する

※周辺情報は「 出典一覧(施設情報) 」のデータを元に当サイトが独自の方法で抽出し掲載しているものです。不動産物件情報を提供している不動産事業者が掲載するものでありません。
※周辺情報は移転や閉鎖等により情報が最新ではない、正しくない場合があります。詳しくは不動産会社にお問い合わせのうえ、ご確認をお願い致します。

\ 人気物件は決まるのが早い!まずはお問合せを /

メールアイコン 物件の資料をもらう 3項目のみ入力すればOK 無料

掲載終了まであと4

この物件を共有・保存する

物件概要

価格
2,900 万円

--

ローン詳細
間取り
4LDK
建物面積
109.89 ㎡
土地面積
133.16 ㎡
駐車場
空有 (3 台) 無料
築年月
2019 年 12 月(築 7 年)
住所
広島県広島市安佐北区落合南4丁目 地図を見る
交通

芸備線 玖村駅/徒歩24分

--

--

総戸数
--
主要採光面
建物構造
木造 / 2 階建
接道状況
--
私道負担面積
--
都市計画
市街化区域
地目
宅地
用途地域
第一種低層住居専用地域
地勢
--
建ぺい率
50%
容積率
100%
土地権利
所有権
国土法届出
不要
借地料
--
借地期間
--
引渡し
相談
取引態様
仲介
その他費用
--
その他条件
南向き、駐車場2台以上可
備考
※カーポート  ※駐車場3台可  ※LAN配線  ※エコジョーズ  ※公園近く  ※陽当り良好で丁寧に使用されている為全体的に綺麗な物件 ※売主負担で各部屋1面のみ、お好みのアクセントクロス貼りできます
周辺施設
【小学校】落合東小学校 578m
【中学校】落合中学校 1,614m
【コンビニ】コンビニ 901m
【スーパー】スーパー 1,490m
【総合病院】総合病院 4,675m
【ドラッグストア】ドラッグストア 727m
【銀行】銀行 1,633m
【商店街】商店街 1,960m
【その他】落合保育園 989m
物件番号
334000240334
自社管理番号
1418950002801
建築確認番号
--
登録日
2026/04/11
有効期限
2026/05/02

※情報提供元:LIFULL HOME'S

会社情報

取り扱い不動産会社

トータテ住宅販売株式会社 北営業所
住所
広島県広島市安佐南区緑井5丁目10-16 
営業時間など
営業時間/ 9:30~20:00
定休日/毎週木曜日 年末年始
免許番号
国土交通大臣免許(08)第4315号
所属団体
中国地区不動産公正取引協議会、(公社)広島県宅地建物取引業協会
保証協会
-

物件に関するお問い合わせ

必須
必須
必須

※携帯電話でドメイン指定受信を利用している場合は、「chintaistyle.jp」「totate.co.jp」を解除してください。

あなたにぴったりの物件情報などをお届けします。

確認ページへ進む

最近見た物件と比較

閲覧中
外観:334000240334

安佐北区落合南4丁目

2,900万円

4LDK

建物
109.89㎡

土地
133.16㎡

築7年

広島市安佐北区落合南4丁目

芸備線 玖村駅/徒歩24分

資料請求する

外観:301000098016

新琴似12条15丁目

3,199万円

4LDK

建物
126.64㎡

土地
194.41㎡ (公簿)

築17年

札幌市北区新琴似十二条15丁目

札沼線 新琴似駅/徒歩37分

詳細を見る

近くの類似おすすめ物件

広島県広島市安佐北区の新着物件情報

現在00件保存されています。

残り00件追加することができます。

お気に入り物件一覧を見る

間隔を空けてお試しください。