西区新庄町|三滝駅から徒歩15分|広島市西区(広島県)の空き家・中古住宅・中古一戸建て

周辺は落ち着きのある閑静な住宅地♪

周辺は落ち着きのある閑静な住宅地♪

3,180万円

月々の支払い目安:--

ローン詳細

\ 人気物件は決まるのが早い!まずはお問合せを /

メールアイコン 物件の資料をもらう 3項目のみ入力すればOK 無料

掲載終了まであと11

所在地・交通

広島県広島市西区新庄町

可部線 三滝駅/徒歩15分

地図を見る

POINT

浴室乾燥機や食洗機など、設備充実!! ウォークインクローゼットやパントリーなど、収納たっぷりの間取り♪ 周辺は落ち着きのある閑静な住宅地です。

間取り
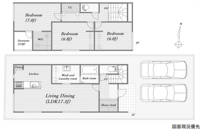
3LDK
建物面積
95.22 ㎡
築年月
2023 年7 月(築3 年)
土地権利
所有権
駐車場
空有 (2 台) 無料
現況
--
実際に見学したい

株式会社日東リバティ

(株)日東リバティは住まいを通じた出逢いを大切にします。

会社情報

この物件について

こちらの物件はJR可部線を三滝駅で下車し、徒歩15分の場所に位置しています。家族とコミュニケーションを取ったり子供の様子を見ながら料理ができるカウンターキッチンが備わっており、浴室には追い焚き機能が付いているので、いつでも温かいお風呂に入れ家族が多くても安心です。また、お手入れ・掃除がしやすいだけでなく、収納スペースなどが一体となったシステムキッチンが備わっております。周辺781m圏内(徒歩10分)にはコンビニもあります。

※「この物件について」に記載の情報は、登録情報をもとに当サイトが掲載するものであり、不動産物件情報を掲載している不動産事業者が掲載するものではありません。

内観・外観

間取り図

間取り 拡大

3LDK

建物面積
95.22 ㎡
土地面積
101.53 ㎡ (公簿)
建物構造
木造 / 2 階建

写真

\ 人気物件は決まるのが早い!まずはお問合せを /

メールアイコン 物件の資料をもらう 3項目のみ入力すればOK 無料

掲載終了まであと11

この物件を共有・保存する

設備

設備画像

主な設備

キッチン
  • システムキッチン

    システム
    キッチン

  • カウンターキッチン

    カウンター
    キッチン

  • IHコンロ

    IHコンロ

  • ガスコンロ

    ガスコンロ

バス・トイレ
  • 追い焚き

    追い焚き

  • 浴室乾燥機

    浴室乾燥機

  • シャワー付洗面化粧台

    シャワー付
    洗面化粧台

  • 洗浄便座

    洗浄便座

室内設備
  • ウォークインクローゼット

    ウォークイン
    クローゼット

  • 全居室収納

    全居室収納

  • TVモニタ付ドアホン

    TVモニタ付
    ドアホン

  • 床暖房

    床暖房

特徴
  • オール電化

    オール電化

  • バリアフリー

    バリアフリー

  • 南向き

    南向き

  • 駐車場付

    駐車場付

その他設備

公営水道、下水、バス・トイレ別、シャワー、システムキッチン、追焚機能、シャワー付洗面化粧台、床下収納、ウォークインクローゼット、フローリング、バイク置き場、TVドアホン、オール電化、カウンターキッチン、浴室乾燥機、洗面所独立、浴室サイズ1坪以上(1.6×1.6m相当)、食器洗い乾燥機、全居室収納、クローゼット、オートバス、建築確認完了検査済証、瑕疵保険(国交省指定)保証付、ディンプルキー、トイレ2ヶ所以上、節水型トイレ、24時間換気システム、省エネ給湯器、複層ガラス・複層サッシ、全室フローリング、平面駐車場

設備情報について質問する

\ 人気物件は決まるのが早い!まずはお問合せを /

メールアイコン 物件の資料をもらう 3項目のみ入力すればOK 無料

掲載終了まであと11

この物件を共有・保存する

周辺情報

周辺の歯医者

読込中

周辺の医療機関

読込中

周辺の駅

読込中

周辺の銀行

読込中

周辺のパン屋

読込中

その他の周辺施設を探す
学区や周辺について質問したい

周辺の生活情報

ハザード情報

物件周辺の土砂、浸水、津波、
地震の情報を地図で確認できます。

ハザードマップを確認する

※周辺情報は「 出典一覧(施設情報) 」のデータを元に当サイトが独自の方法で抽出し掲載しているものです。不動産物件情報を提供している不動産事業者が掲載するものでありません。
※周辺情報は移転や閉鎖等により情報が最新ではない、正しくない場合があります。詳しくは不動産会社にお問い合わせのうえ、ご確認をお願い致します。

\ 人気物件は決まるのが早い!まずはお問合せを /

メールアイコン 物件の資料をもらう 3項目のみ入力すればOK 無料

掲載終了まであと11

この物件を共有・保存する

物件概要

価格
3,180 万円

--

ローン詳細
間取り
3LDK
建物面積
95.22 ㎡
土地面積
101.53 ㎡ (公簿)
駐車場
空有 (2 台) 無料
築年月
2023 年 7 月(築 3 年)
住所
広島県広島市西区新庄町 地図を見る
交通

可部線 三滝駅/徒歩15分

--

--

総戸数
--
主要採光面
--
建物構造
木造 / 2 階建
接道状況
一方 ( 西 6.4m 公道 )
私道負担面積
--
都市計画
--
地目
--
用途地域
第二種中高層住居専用地域
地勢
--
建ぺい率
60%
容積率
200%
土地権利
所有権
国土法届出
不要
借地料
--
借地期間
--
引渡し
即時
取引態様
仲介
その他費用
--
その他条件
駐車場2台以上可
備考
〇広島市立大芝小学校まで 徒歩26分
〇新庄保育園まで 徒歩3分
〇セブンイレブン 広島新庄店まで 徒歩10分
〇フレスタ長束店まで 徒歩18分
〇JR三滝駅まで 徒歩15分
周辺施設
【小学校】広島市立大芝小学校 2,094m
【中学校】広島市立中広中学校 2,747m
【コンビニ】コンビニ 781m
【スーパー】スーパー 1,436m
【公園】公園 2,048m
【商店街】商店街 2,484m
物件番号
334000236226
自社管理番号
1416420012327
建築確認番号
--
登録日
2026/03/20
有効期限
2026/05/08

※情報提供元:LIFULL HOME'S

会社情報

取り扱い不動産会社

株式会社日東リバティ
住所
広島県広島市南区段原日出2丁目2番22号2F 
営業時間など
営業時間/ 9:30~20:00
定休日/年中無休
免許番号
広島県知事免許(8)第7286号
所属団体
中国地区不動産公正取引協議会、(公社)全日本不動産協会広島県本部
保証協会
-

物件に関するお問い合わせ

必須
必須
必須

※携帯電話でドメイン指定受信を利用している場合は、「chintaistyle.jp」「nitto-f.com」を解除してください。

あなたにぴったりの物件情報などをお届けします。

確認ページへ進む

最近見た物件と比較

閲覧中
外観:334000236226

西区新庄町

3,180万円

3LDK

建物
95.22㎡

土地
101.53㎡ (公簿)

築3年

広島市西区新庄町

可部線 三滝駅/徒歩15分

資料請求する

NO IMAGE

横浜市瀬谷区阿久和東1丁目 2階建 83.21㎡

3,980万円

3LDK

建物
83.21㎡

土地
87.82㎡ (公簿)

築4年

横浜市瀬谷区阿久和東1丁目

相模鉄道本線 希望ケ丘駅/徒歩14分

詳細を見る

外観:329000127334

川原城町

2,480万円

2LDK

建物
89.42㎡

土地
81.43㎡ (公簿)

築3年

天理市川原城町

近鉄天理線 天理駅/徒歩8分

詳細を見る

近くの類似おすすめ物件

現在00件保存されています。

残り00件追加することができます。

お気に入り物件一覧を見る

間隔を空けてお試しください。