姫路市宮上町2丁目 中古戸建|京口駅から徒歩11分|姫路市(兵庫県)の空き家・中古住宅・中古一戸建て

外観

外観

750万円

月々の支払い目安:--

ローン詳細

\ 人気物件は決まるのが早い!まずはお問合せを /

メールアイコン 物件の資料をもらう 3項目のみ入力すればOK 無料

掲載終了まであと13

所在地・交通

兵庫県姫路市宮上町2丁目

播但線 京口駅/徒歩11分

地図を見る

POINT

・播但線京口駅11分 ・ガレージ1台(車種制限あり) ・閑静な住宅地 ・東小学校、東光中学校

間取り
4DK
建物面積
90.08 ㎡ (壁芯)
築年月
1979 年10 月(築47 年)
土地権利
所有権
駐車場
空有 (1 台) 無料 車種制限あり。
現況
空家
実際に見学したい

有限会社輝広

有限会社輝広(きこう)は加古川市を中心に明石市、高砂市、加古郡、姫路市のエリアで新築戸建・中古戸建・中古マンション・土地の売買・仲介・リフォーム・自社買取・売却を主な業務としている地元密着の会社です。

会社情報

この物件について

この物件はJR播但線を京口駅で下車し、徒歩11分の場所に位置しています。トイレは洗浄機能付き便座(シャワートイレ・ウォシュレット)なので清潔に保つことができ、洗濯機を室内に置けるスペースがあるので、洗濯機が長持ちしやすくなります。また、駐輪場が付いているので安心して自転車を停めることができます。周辺441m圏内(徒歩6分)にはコンビニもあります。

※「この物件について」に記載の情報は、登録情報をもとに当サイトが掲載するものであり、不動産物件情報を掲載している不動産事業者が掲載するものではありません。

内観・外観

間取り図

4DKです。 拡大

4DK

建物面積
90.08 ㎡ (壁芯)
土地面積
138.94 ㎡ (公簿)
建物構造
木造 / 2 階建

写真

\ 人気物件は決まるのが早い!まずはお問合せを /

メールアイコン 物件の資料をもらう 3項目のみ入力すればOK 無料

掲載終了まであと13

この物件を共有・保存する

設備

設備画像

主な設備

キッチン
  • システムキッチン

    システム
    キッチン

  • カウンターキッチン

    カウンター
    キッチン

  • IHコンロ

    IHコンロ

  • ガスコンロ

    ガスコンロ

バス・トイレ
  • 追い焚き

    追い焚き

  • 浴室乾燥機

    浴室乾燥機

  • シャワー付洗面化粧台

    シャワー付
    洗面化粧台

  • 洗浄便座

    洗浄便座

室内設備
  • ウォークインクローゼット

    ウォークイン
    クローゼット

  • 全居室収納

    全居室収納

  • TVモニタ付ドアホン

    TVモニタ付
    ドアホン

  • 床暖房

    床暖房

特徴
  • オール電化

    オール電化

  • バリアフリー

    バリアフリー

  • 南向き

    南向き

  • 駐車場付

    駐車場付

その他設備

公営水道、下水、専用バス、専用トイレ、バス・トイレ別、室内洗濯機置場、専用庭、出窓、駐輪場、バイク置き場、温水洗浄便座

設備情報について質問する

\ 人気物件は決まるのが早い!まずはお問合せを /

メールアイコン 物件の資料をもらう 3項目のみ入力すればOK 無料

掲載終了まであと13

この物件を共有・保存する

周辺情報

周辺の歯医者

読込中

周辺の医療機関

読込中

周辺の駅

読込中

周辺の銀行

読込中

周辺のパン屋

読込中

その他の周辺施設を探す
学区や周辺について質問したい

周辺の生活情報

ハザード情報

物件周辺の土砂、浸水、津波、
地震の情報を地図で確認できます。

ハザードマップを確認する

※周辺情報は「 出典一覧(施設情報) 」のデータを元に当サイトが独自の方法で抽出し掲載しているものです。不動産物件情報を提供している不動産事業者が掲載するものでありません。
※周辺情報は移転や閉鎖等により情報が最新ではない、正しくない場合があります。詳しくは不動産会社にお問い合わせのうえ、ご確認をお願い致します。

\ 人気物件は決まるのが早い!まずはお問合せを /

メールアイコン 物件の資料をもらう 3項目のみ入力すればOK 無料

掲載終了まであと13

この物件を共有・保存する

物件概要

価格
750 万円

--

ローン詳細
間取り
4DK
建物面積
90.08 ㎡ (壁芯)
土地面積
138.94 ㎡ (公簿)
駐車場
空有 (1 台) 無料 車種制限あり。
築年月
1979 年 10 月(築 47 年)
住所
兵庫県姫路市宮上町2丁目 地図を見る
交通

播但線 京口駅/徒歩11分

--

--

総戸数
--
主要採光面
建物構造
木造 / 2 階建
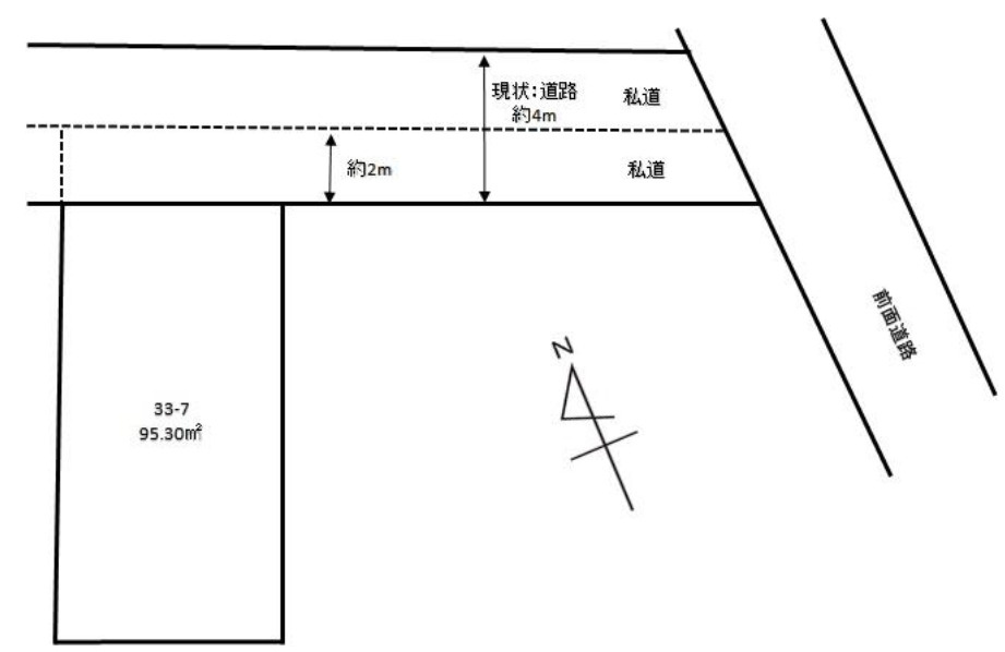
接道状況
一方 ( 東 4.3m 公道 )
私道負担面積
43.64㎡
都市計画
市街化区域
地目
宅地
用途地域
準工業地域
地勢
--
建ぺい率
60%
容積率
200%
土地権利
所有権
国土法届出
不要
借地料
--
借地期間
--
引渡し
即時
取引態様
仲介
その他費用
--
その他条件
--
備考
法22条区域。
播但線京口駅まで徒歩11分です。 マックスバリュー、スギドラッグ、ケーズデンキ、ナフコが近くにあります。 市民センターや郵便局が徒歩圏内。 東小学校まで徒歩15分、東光中学校まで徒歩18分。 ガレージ1台駐車可能です(車種制限あり) 4DKで全室2面採光! お好みのスタイルへのリフォームを考えるのも楽しそうですね。 加古川市 明石市 高砂市 加古郡 姫路市の不動産情報なら きこう にお任せ
周辺施設
【小学校】姫路市立東小学校 1,190m
【中学校】姫路市立東光中学校 1,376m
【コンビニ】コンビニ 441m
【スーパー】スーパー 595m
【ドラッグストア】ドラッグストア 611m
【銀行】銀行 1,916m
【商店街】商店街 1,118m
【その他】京口駅 1,034m
物件番号
328000630817
自社管理番号
1284470009898
建築確認番号
--
登録日
2026/04/17
有効期限
2026/05/11

※情報提供元:LIFULL HOME'S

会社情報

取り扱い不動産会社

有限会社輝広
住所
兵庫県加古川市平岡町土山56番地の1 
営業時間など
営業時間/ 9:30~18:30
定休日/毎週水曜日 GW 夏期休暇 年末年始
免許番号
兵庫県知事(3)第451368号
所属団体
(公社)近畿地区不動産公正取引協議会、(一社)兵庫県宅地建物取引業協会、(公社)近畿圏不動産流通機構
保証協会
(公社)全国宅地建物取引業保証協会

物件に関するお問い合わせ

必須
必須
必須

※携帯電話でドメイン指定受信を利用している場合は、「chintaistyle.jp」「kikou.click」を解除してください。

あなたにぴったりの物件情報などをお届けします。

確認ページへ進む

近くの類似おすすめ物件

兵庫県姫路市の新着物件情報

現在00件保存されています。

残り00件追加することができます。

お気に入り物件一覧を見る

間隔を空けてお試しください。

検討した人が2人います