広畑区西蒲田 中古戸建|姫路市(兵庫県)の空き家・中古住宅・中古一戸建て

前面道路6m。駐車が苦手な方でも安心して駐車できます。

前面道路6m。駐車が苦手な方でも安心して駐車できます。

2,880万円

月々の支払い目安:--

ローン詳細

\ 人気物件は決まるのが早い!まずはお問合せを /

メールアイコン 物件の資料をもらう 3項目のみ入力すればOK 無料

掲載終了まであと2

所在地・交通

兵庫県姫路市広畑区西蒲田

山陽本線 姫路駅/バス 29分/西夢前台7丁目 徒歩5分

地図を見る

POINT

・結城建設施工の戸建! ・家具、家電、照明器具、カーテン、輻射熱エアコン、エアコン、ミラバス付き ・オール電化住宅 ・東側道路 ・八幡小学校まで徒歩8分

間取り
3LDK
建物面積
85.29 ㎡ (壁芯)
築年月
2019 年7 月(築7 年)
土地権利
所有権
駐車場
空有 無料
現況
空家
実際に見学したい

株式会社赤鹿地所

地域に根ざし、姫路市で60余年、「あなたのニーズにお応えします」をモットーに、 安心と実績で不動産買取、売買仲介、賃貸仲介、賃貸管理等、すべての不動産に関するご相談に応じております。

会社情報

この物件について

この物件はJR山陽本線を姫路駅で下車し、バスに29分乗車し、西夢前台7丁目から徒歩5分の場所に位置しています。お手入れ・掃除がしやすいだけでなく、収納スペースなどが一体となったシステムキッチンが備わっており、家族とコミュニケーションを取ったり子供の様子を見ながら料理ができるカウンターキッチンが備わっております。また、オール電化なので調理や給湯にガスを使わないため火災のリスクが減ります。周辺231m圏内(徒歩3分)にはスーパーもあります。

※「この物件について」に記載の情報は、登録情報をもとに当サイトが掲載するものであり、不動産物件情報を掲載している不動産事業者が掲載するものではありません。

内観・外観

間取り図

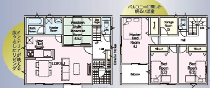
【間取り図】3LDK。収納豊富&動線に配慮した住み心地重視の設計 拡大

3LDK

建物面積
85.29 ㎡ (壁芯)
土地面積
141.64 ㎡ (公簿)
建物構造
木造 / 2 階建

写真

\ 人気物件は決まるのが早い!まずはお問合せを /

メールアイコン 物件の資料をもらう 3項目のみ入力すればOK 無料

掲載終了まであと2

この物件を共有・保存する

設備

設備画像

主な設備

キッチン
  • システムキッチン

    システム
    キッチン

  • カウンターキッチン

    カウンター
    キッチン

  • IHコンロ

    IHコンロ

  • ガスコンロ

    ガスコンロ

バス・トイレ
  • 追い焚き

    追い焚き

  • 浴室乾燥機

    浴室乾燥機

  • シャワー付洗面化粧台

    シャワー付
    洗面化粧台

  • 洗浄便座

    洗浄便座

室内設備
  • ウォークインクローゼット

    ウォークイン
    クローゼット

  • 全居室収納

    全居室収納

  • TVモニタ付ドアホン

    TVモニタ付
    ドアホン

  • 床暖房

    床暖房

特徴
  • オール電化

    オール電化

  • バリアフリー

    バリアフリー

  • 南向き

    南向き

  • 駐車場付

    駐車場付

その他設備

公営水道、下水、専用バス、専用トイレ、バス・トイレ別、システムキッチン、オール電化、カウンターキッチン、洗面所独立、クローゼット

設備情報について質問する

\ 人気物件は決まるのが早い!まずはお問合せを /

メールアイコン 物件の資料をもらう 3項目のみ入力すればOK 無料

掲載終了まであと2

この物件を共有・保存する

周辺情報

周辺の歯医者

読込中

周辺の医療機関

読込中

周辺の駅

読込中

周辺の銀行

読込中

周辺のパン屋

読込中

その他の周辺施設を探す
学区や周辺について質問したい

周辺の生活情報

ハザード情報

物件周辺の土砂、浸水、津波、
地震の情報を地図で確認できます。

ハザードマップを確認する

※周辺情報は「 出典一覧(施設情報) 」のデータを元に当サイトが独自の方法で抽出し掲載しているものです。不動産物件情報を提供している不動産事業者が掲載するものでありません。
※周辺情報は移転や閉鎖等により情報が最新ではない、正しくない場合があります。詳しくは不動産会社にお問い合わせのうえ、ご確認をお願い致します。

\ 人気物件は決まるのが早い!まずはお問合せを /

メールアイコン 物件の資料をもらう 3項目のみ入力すればOK 無料

掲載終了まであと2

この物件を共有・保存する

物件概要

価格
2,880 万円

--

ローン詳細
間取り
3LDK
建物面積
85.29 ㎡ (壁芯)
土地面積
141.64 ㎡ (公簿)
駐車場
空有 無料
築年月
2019 年 7 月(築 7 年)
住所
兵庫県姫路市広畑区西蒲田 地図を見る
交通

山陽本線 姫路駅/バス 29分/西夢前台7丁目 徒歩5分

--

--

総戸数
1 戸
主要採光面
建物構造
木造 / 2 階建
接道状況
一方 ( 東 6.0m 公道 )
セットバック
私道負担面積
--
都市計画
市街化区域
地目
宅地
用途地域
第一種中高層住居専用地域
地勢
平坦
建ぺい率
60%
容積率
200%
土地権利
所有権
国土法届出
不要
借地料
--
借地期間
--
引渡し
相談
取引態様
仲介
その他費用
--
その他条件
南向き
備考
※内覧時は事前予約が必要です。 ※2階12帖の洋室は、お子様の成長に合わせて、6帖2部屋への間仕切りが可能! ◇ご見学随時受付中!当日のご予約はお電話がスムーズです◇ ●住まい探しのご相談 ●資金計画・住宅ローンのご相談 ●リフォームのご相談 など、マイホーム購入のお悩みもお気軽にご相談ください。
周辺施設
【小学校】八幡小学校 632m
【中学校】夢前中学校 854m
【コンビニ】コンビニ 1,718m
【スーパー】スーパー 231m
【総合病院】総合病院 1,752m
【ドラッグストア】ドラッグストア 882m
【銀行】銀行 887m
【その他】ゆめさき保育園 580m
物件番号
328000618125
自社管理番号
1019450002963
建築確認番号
--
登録日
2026/03/06
有効期限
2026/04/30

※情報提供元:LIFULL HOME'S

会社情報

取り扱い不動産会社

株式会社赤鹿地所
住所
兵庫県姫路市辻井1丁目1-23 赤鹿ビル1F 
営業時間など
営業時間/ 9:30~18:00
定休日/毎週火曜日、水曜日
免許番号
兵庫県知事(08)第450660号
所属団体
(公社)近畿地区不動産公正取引協議会、(一社)兵庫県宅地建物取引業協会、(公社)近畿圏不動産流通機構
保証協会
(公社)全国宅地建物取引業保証協会

物件に関するお問い合わせ

必須
必須
必須

※携帯電話でドメイン指定受信を利用している場合は、「chintaistyle.jp」「akashika.com」を解除してください。

あなたにぴったりの物件情報などをお届けします。

確認ページへ進む

近くの類似おすすめ物件

兵庫県姫路市の新着物件情報

現在00件保存されています。

残り00件追加することができます。

お気に入り物件一覧を見る

間隔を空けてお試しください。