兵庫県加古川市尾上町池田|浜の宮駅から徒歩18分|加古川市(兵庫県)の空き家・中古住宅・中古一戸建て

外観

外観

3,580万円

月々の支払い目安:--

ローン詳細

\ 人気物件は決まるのが早い!まずはお問合せを /

メールアイコン 物件の資料をもらう 3項目のみ入力すればOK 無料

掲載終了まであと12

所在地・交通

兵庫県加古川市尾上町池田

山陽電気鉄道本線 浜の宮駅/徒歩18分

地図を見る

POINT

一条工務店施工の注文住宅! 南西角地 外壁はハイドロテクトタイル仕様! 全室床暖房・お部屋の温度を一定にする空調システム付! 熱に強く、傷がつきにくい御影石仕様のアイランドキッチン! 並列駐車3台可能

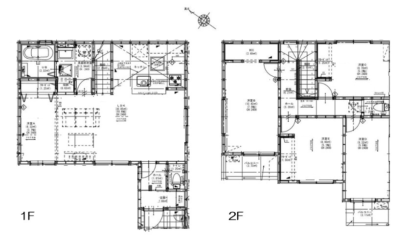
間取り
3LDK
建物面積
100.98 ㎡
築年月
2018 年6 月(築8 年)
土地権利
所有権
駐車場
空有 (3 台) 無料
現況
居住中
実際に見学したい

株式会社福屋不動産販売 加古川店

【不動産の売買】【買取】は、JR加古川駅徒歩8分・国道2号線沿い平野交差点へ西側の【FUKUYA加古川店】へお気軽お問い合わせください。

会社情報

この物件について

こちらの物件は山陽電気鉄道本線を浜の宮駅で下車し、徒歩18分の場所に位置しています。オール電化なので調理や給湯にガスを使わないため火災のリスクが減り、浴室には乾燥機が付いているので雨の日に洗濯物を干せるだけでなく入浴後の浴室の乾燥にも使えます。また、浴室には追い焚き機能が付いているので、いつでも温かいお風呂に入れ家族が多くても安心です。周辺1,100m圏内(徒歩14分)には加古川市立尾上小学校もあります。

※「この物件について」に記載の情報は、登録情報をもとに当サイトが掲載するものであり、不動産物件情報を掲載している不動産事業者が掲載するものではありません。

内観・外観

間取り図

間取り 拡大

3LDK

( +WIC )

建物面積
100.98 ㎡
土地面積
147.99 ㎡ (公簿)
建物構造
木造 / 2 階建

写真

\ 人気物件は決まるのが早い!まずはお問合せを /

メールアイコン 物件の資料をもらう 3項目のみ入力すればOK 無料

掲載終了まであと12

この物件を共有・保存する

設備

設備画像

主な設備

キッチン
  • システムキッチン

    システム
    キッチン

  • カウンターキッチン

    カウンター
    キッチン

  • IHコンロ

    IHコンロ

  • ガスコンロ

    ガスコンロ

バス・トイレ
  • 追い焚き

    追い焚き

  • 浴室乾燥機

    浴室乾燥機

  • シャワー付洗面化粧台

    シャワー付
    洗面化粧台

  • 洗浄便座

    洗浄便座

室内設備
  • ウォークインクローゼット

    ウォークイン
    クローゼット

  • 全居室収納

    全居室収納

  • TVモニタ付ドアホン

    TVモニタ付
    ドアホン

  • 床暖房

    床暖房

特徴
  • オール電化

    オール電化

  • バリアフリー

    バリアフリー

  • 南向き

    南向き

  • 駐車場付

    駐車場付

その他設備

公営水道、下水、IHコンロ、システムキッチン、給湯、追焚機能、シャワー付洗面化粧台、エアコン、ウォークインクローゼット、床暖房、TVドアホン、温水洗浄便座、オール電化、カウンターキッチン、浴室乾燥機

設備情報について質問する

\ 人気物件は決まるのが早い!まずはお問合せを /

メールアイコン 物件の資料をもらう 3項目のみ入力すればOK 無料

掲載終了まであと12

この物件を共有・保存する

周辺情報

周辺の生活情報

ハザード情報

物件周辺の土砂、浸水、津波、
地震の情報を地図で確認できます。

ハザードマップを確認する

※周辺情報は「 出典一覧(施設情報) 」のデータを元に当サイトが独自の方法で抽出し掲載しているものです。不動産物件情報を提供している不動産事業者が掲載するものでありません。
※周辺情報は移転や閉鎖等により情報が最新ではない、正しくない場合があります。詳しくは不動産会社にお問い合わせのうえ、ご確認をお願い致します。

\ 人気物件は決まるのが早い!まずはお問合せを /

メールアイコン 物件の資料をもらう 3項目のみ入力すればOK 無料

掲載終了まであと12

この物件を共有・保存する

物件概要

価格
3,580 万円

--

ローン詳細
間取り
3LDK
( +WIC )
建物面積
100.98 ㎡
土地面積
147.99 ㎡ (公簿)
駐車場
空有 (3 台) 無料
築年月
2018 年 6 月(築 8 年)
住所
兵庫県加古川市尾上町池田 地図を見る
交通

山陽電気鉄道本線 浜の宮駅/徒歩18分

--

--

総戸数
--
主要採光面
--
建物構造
木造 / 2 階建
接道状況
角地 ( 南 6.0m 公道 間口10.1m ) ( 西 5.0m 公道 間口12.5m )
セットバック
私道負担面積
--
都市計画
市街化区域
地目
宅地
用途地域
第一種住居地域
地勢
平坦
建ぺい率
70%
容積率
200%
土地権利
所有権
国土法届出
不要
借地料
--
借地期間
--
引渡し
相談
取引態様
専属専任媒介
その他費用
--
その他条件
駐車場2台以上可
備考
第4種高度地区
一条工務店施工の注文住宅! 南西角地 外壁はハイドロテクトタイル仕様! 長期優良住宅 全室床暖房・お部屋の温度を一定にする空調システム付! 熱に強く、傷がつきにくい御影石仕様のアイランドキッチンです! リビング階段はオープンステアなので開放的な空間となっております。 並列駐車3台可能です。
周辺施設
【小学校】加古川市立尾上小学校 1,100m
【中学校】加古川市立浜の宮中学校 1,300m
物件番号
328000578870
自社管理番号
1014000016573
建築確認番号
--
登録日
2025/06/06
有効期限
2026/05/11

※情報提供元:LIFULL HOME'S

会社情報

取り扱い不動産会社

株式会社福屋不動産販売 加古川店
住所
兵庫県加古川市加古川町平野201 山本第一ビル1F 
営業時間など
営業時間/10:00~19:00
定休日/火・水曜日(例外有),GW,夏期,年末年始
免許番号
国土交通大臣免許(5)第6880号
所属団体
(公社)近畿地区不動産公正取引協議会、(一社)兵庫県宅地建物取引業協会、(公社)近畿圏不動産流通機構
保証協会
(公社)全国宅地建物取引業保証協会

物件に関するお問い合わせ

必須
必須
必須

※携帯電話でドメイン指定受信を利用している場合は、「chintaistyle.jp」「fukuya-k.co.jp」を解除してください。

あなたにぴったりの物件情報などをお届けします。

確認ページへ進む

最近見た物件と比較

閲覧中
外観:328000578870

加古川市尾上町池田 2階建 100.98㎡

3,580万円

3LDK

建物
100.98㎡

土地
147.99㎡ (公簿)

築8年

加古川市尾上町池田

山陽電気鉄道本線 浜の宮駅/徒歩18分

資料請求する

外観:311002377607

川口市長蔵3丁目 戸建

3,480万円

3DK

建物
88.55㎡

土地
103.37㎡ (公簿)

築35年

川口市長蔵3丁目

埼玉高速鉄道 戸塚安行駅/徒歩12分

詳細を見る

外観:328000633991

神戸市西区持子1丁目戸建

1,780万円

4LDK

建物
93.57㎡ (壁芯)

土地
103.17㎡ (公簿)

築22年

神戸市西区持子1丁目

山陽本線 明石駅/バス 21分/玉津曙 徒歩5分

詳細を見る

外観:327002294392

豊中市大黒町2丁目

1,580万円

5DK

建物
76.60㎡ (壁芯)

土地
89.99㎡ (公簿)

築92年

豊中市大黒町2丁目

阪急電鉄神戸線 神崎川駅/徒歩14分

詳細を見る

外観:340000284956

宇美町桜原3丁目戸建

1,980万円

3LDK

建物
81.14㎡

土地
116.16㎡ (公簿)

築27年

糟屋郡宇美町桜原3丁目

香椎線 宇美駅/徒歩20分

詳細を見る

外観:327002315598

中古戸建 若江本町3丁目

2,980万円

4SLDK

建物
87.70㎡

土地
74.82㎡

築25年

東大阪市若江本町3丁目

近鉄難波・奈良線 若江岩田駅/徒歩13分

詳細を見る

外観:327002322324

東大阪市玉串元町2丁目中古戸建

1,480万円

4DK

建物
93.33㎡

土地
42.92㎡

築38年

東大阪市玉串元町2丁目

近鉄難波・奈良線 河内花園駅/徒歩19分

詳細を見る

外観:326000246093

中古戸建 千代川町小林西芝

876万円

4LDK

建物
74.97㎡

土地
58.57㎡ (公簿)

築37年

亀岡市千代川町小林西芝

山陰本線 並河駅/徒歩16分

詳細を見る

外観:311002376126

日高市大字上鹿山 2階建 97.00㎡

1,680万円

3LDK

建物
97.00㎡

土地
157.44㎡ (公簿)

築25年

日高市大字上鹿山

八高線 高麗川駅/徒歩17分

詳細を見る

外観:326000246168

京都市中京区三条油小路町 2階建 95.03㎡

12,500万円

1LDK

建物
95.03㎡

土地
81.38㎡ (公簿)

築10年

京都市中京区三条油小路町

京都市東西線 二条城前駅/徒歩9分

詳細を見る

外観:327002325926

大阪市阿倍野区阿倍野筋5丁目 3階建 98.52㎡

5,380万円

4LDK

建物
98.52㎡

土地
62.36㎡ (公簿)

築17年

大阪市阿倍野区阿倍野筋5丁目

Osaka Metro谷町線 阿倍野駅/徒歩9分

詳細を見る

外観:326000244484

西賀茂大道口町中古

4,580万円

4LDK

建物
102.73㎡

土地
137.32㎡ (公簿)

築10年

京都市北区西賀茂大道口町

京都市烏丸線 北大路駅/徒歩34分

詳細を見る

外観:310000089945

中古戸建伊勢崎市寿町

2,590万円

4LDK

建物
95.22㎡ (壁芯)

土地
184.92㎡ (公簿)

築3年

伊勢崎市寿町

両毛線 伊勢崎駅/徒歩10分

詳細を見る

外観:326000245896

長岡京市高台4丁目 2階建 80.60㎡

3,580万円

3LDK

建物
80.60㎡

土地
137.27㎡ (公簿)

築36年

長岡京市高台4丁目

阪急電鉄京都線 西山天王山駅/徒歩18分

詳細を見る

外観:327002305139

甲斐田新町 二世帯住宅

2,580万円

4SDK

建物
151.53㎡ (内法)

土地
121.02㎡ (公簿)

築30年

枚方市甲斐田新町

京阪電気鉄道京阪線 枚方市駅/バス 17分/田ノ口(大阪府) 徒歩3分

詳細を見る

NO IMAGE

京田辺市花住坂2丁目

3,420万円

4LDK

建物
120.47㎡

土地
189.31㎡

築38年

京田辺市花住坂2丁目

片町線 松井山手駅/徒歩15分

詳細を見る

近くの類似おすすめ物件

兵庫県加古川市の新着物件情報

現在00件保存されています。

残り00件追加することができます。

お気に入り物件一覧を見る

間隔を空けてお試しください。

検討した人が1人います