長野市松代町 中古戸建て|篠ノ井駅から6.6km|長野市(長野県)の空き家・中古住宅・中古一戸建て

リフォーム後のお引き渡し!仕様のご確認やローンのご相談は<Tel 026-477-7419>まで♪

リフォーム後のお引き渡し!仕様のご確認やローンのご相談は<Tel 026-477-7419>まで♪

2,098万円

月々の支払い目安:--

ローン詳細

\ 人気物件は決まるのが早い!まずはお問合せを /

メールアイコン 物件の資料をもらう 3項目のみ入力すればOK 無料

掲載終了まであと11

所在地・交通

長野県長野市松代町松代1544-11

信越本線 篠ノ井駅/徒歩82分

地図を見る

POINT

リフォーム後のお引き渡し!長野市松代町で新しい暮らしを♪

間取り
4LDK
建物面積
111.76 ㎡
築年月
1978 年7 月(築48 年)
土地権利
所有権
駐車場
空有 (3 台) 無料
現況
空家
実際に見学したい

株式会社ONE TEAM不動産

お客様にとって長くお金を払い続ける大切で大きなお買い物を『お客様とひとつのチームになって』どこまでも寄り添う会社でありたい。そんな思いを胸にお家探しをサポートします!

会社情報

この物件について

この物件はJR信越本線を篠ノ井駅で下車し、徒歩82分の場所に位置しています。見知らぬ訪問者への対応も安心なモニター付きドアホンが付いており、家族とコミュニケーションを取ったり子供の様子を見ながら料理ができるカウンターキッチンが備わっております。また、お手入れ・掃除がしやすいだけでなく、収納スペースなどが一体となったシステムキッチンが備わっております。周辺407m圏内(徒歩6分)には長野市象山保育園もあります。

※「この物件について」に記載の情報は、登録情報をもとに当サイトが掲載するものであり、不動産物件情報を掲載している不動産事業者が掲載するものではありません。

内観・外観

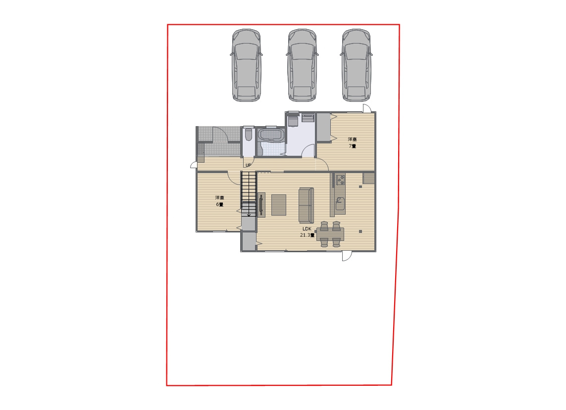
間取り図

リフォーム後のお引き渡し!仕様のご確認やローンのご相談は<Tel 026-477-7419>まで♪ 拡大

4LDK

建物面積
111.76 ㎡
土地面積
333.57 ㎡
建物構造
木造 / 2 階建

写真

\ 人気物件は決まるのが早い!まずはお問合せを /

メールアイコン 物件の資料をもらう 3項目のみ入力すればOK 無料

掲載終了まであと11

この物件を共有・保存する

設備

主な設備

キッチン
  • システムキッチン

    システム
    キッチン

  • カウンターキッチン

    カウンター
    キッチン

  • IHコンロ

    IHコンロ

  • ガスコンロ

    ガスコンロ

バス・トイレ
  • 追い焚き

    追い焚き

  • 浴室乾燥機

    浴室乾燥機

  • シャワー付洗面化粧台

    シャワー付
    洗面化粧台

  • 洗浄便座

    洗浄便座

室内設備
  • ウォークインクローゼット

    ウォークイン
    クローゼット

  • 全居室収納

    全居室収納

  • TVモニタ付ドアホン

    TVモニタ付
    ドアホン

  • 床暖房

    床暖房

特徴
  • オール電化

    オール電化

  • バリアフリー

    バリアフリー

  • 南向き

    南向き

  • 駐車場付

    駐車場付

その他設備

公営水道、プロパンガス、下水、システムキッチン、TVドアホン、カウンターキッチン

設備情報について質問する

\ 人気物件は決まるのが早い!まずはお問合せを /

メールアイコン 物件の資料をもらう 3項目のみ入力すればOK 無料

掲載終了まであと11

この物件を共有・保存する

周辺情報

周辺の歯医者

読込中

周辺の医療機関

読込中

周辺の駅

読込中

周辺の銀行

読込中

周辺のパン屋

読込中

その他の周辺施設を探す
学区や周辺について質問したい

周辺の生活情報

ハザード情報

物件周辺の土砂、浸水、津波、
地震の情報を地図で確認できます。

ハザードマップを確認する

※周辺情報は「 出典一覧(施設情報) 」のデータを元に当サイトが独自の方法で抽出し掲載しているものです。不動産物件情報を提供している不動産事業者が掲載するものでありません。
※周辺情報は移転や閉鎖等により情報が最新ではない、正しくない場合があります。詳しくは不動産会社にお問い合わせのうえ、ご確認をお願い致します。

\ 人気物件は決まるのが早い!まずはお問合せを /

メールアイコン 物件の資料をもらう 3項目のみ入力すればOK 無料

掲載終了まであと11

この物件を共有・保存する

物件概要

価格
2,098 万円

--

ローン詳細
間取り
4LDK
建物面積
111.76 ㎡
土地面積
333.57 ㎡
駐車場
空有 (3 台) 無料
築年月
1978 年 7 月(築 48 年)
住所
長野県長野市松代町松代1544-11 地図を見る
交通

信越本線 篠ノ井駅/徒歩82分

--

--

総戸数
1 戸
主要採光面
--
建物構造
木造 / 2 階建
接道状況
角地 ( 北 3.6m 公道 間口12.4m ) ( 南 1.2m 公道 間口13.7m )
私道負担面積
--
都市計画
市街化区域
地目
宅地
用途地域
第一種住居地域
地勢
--
建ぺい率
60%
容積率
160%
土地権利
所有権
国土法届出
不要
借地料
--
借地期間
--
引渡し
即時
取引態様
一般媒介
その他費用
--
その他条件
駐車場2台以上可
備考
松代小学校が徒歩8分のところにあり、お子様の通学も便利です。こちらは中古の戸建てです。内装リフォーム後のきれいになった状態でお引渡しできます。利便性に優れ、家族で暮らすにもピッタリな4LDKです。当社スタッフが長野市や信越本線篠ノ井付近の一戸建て探しをサポートいたします。お気軽に地域の情報などもお尋ねください。
周辺施設
【小学校】松代小学校 640m
【中学校】松代中学校 1,340m
【コンビニ】コンビニ 770m
【スーパー】スーパー 1,649m
【総合病院】総合病院 852m
【公園】公園 683m
【ドラッグストア】ドラッグストア 872m
【銀行】銀行 830m
【その他】長野市象山保育園 407m
物件番号
320000026307
自社管理番号
1543640000219
建築確認番号
--
登録日
2026/02/27
有効期限
2026/04/16

※情報提供元:LIFULL HOME'S

会社情報

取り扱い不動産会社

株式会社ONE TEAM不動産
住所
長野県長野市大字風間1156番地3 
営業時間など
営業時間/ 9:00~18:00
定休日/無し
免許番号
長野県知事(03)第5428号
所属団体
(公社)首都圏不動産公正取引協議会、(公社)長野県宅地建物取引業協会、(公財)東日本不動産流通機構
保証協会
-

物件に関するお問い合わせ

必須
必須
必須

※携帯電話でドメイン指定受信を利用している場合は、「chintaistyle.jp」「gmail.com」を解除してください。

あなたにぴったりの物件情報などをお届けします。

確認ページへ進む

近くの類似おすすめ物件

長野県長野市の新着物件情報

現在00件保存されています。

残り00件追加することができます。

お気に入り物件一覧を見る

間隔を空けてお試しください。

検討した人が2人います