秦野市鶴巻北 中古戸建|鶴巻温泉駅から徒歩6分|秦野市(神奈川県)の空き家・中古住宅・中古一戸建て

間取り

間取り

2,280万円

月々の支払い目安:--

ローン詳細

\ 人気物件は決まるのが早い!まずはお問合せを /

メールアイコン 物件の資料をもらう 3項目のみ入力すればOK 無料

掲載終了まであと9

所在地・交通

神奈川県秦野市鶴巻北3丁目

小田急電鉄小田原線 鶴巻温泉駅/徒歩6分

地図を見る

POINT

「秦野市鶴巻北 中古戸建」のここがイチオシ。システムキッチン付きの物件です。いざというとき、避難経路にもなるのが勝手口です。出窓スペースを有効に使うと、素敵な空間に早変わりします。秦野市で新生活を始

間取り
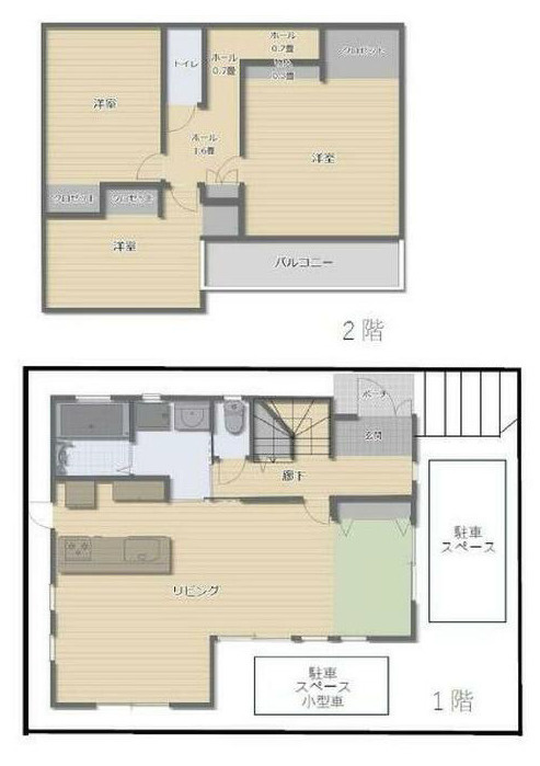
3LDK
建物面積
97.35 ㎡ (壁芯)
築年月
2007 年2 月(築20 年)
土地権利
所有権
駐車場
空有 無料
現況
居住中
実際に見学したい

スカイガーデン株式会社

経験豊富なスタッフが分かりやすくご案内させて頂きます。住宅ローンをご利用のお客様はローン相談も解決出来ますのでお気軽にご相談下さい。

会社情報

この物件について

こちらの物件は小田急電鉄小田原線を鶴巻温泉駅で下車し、徒歩6分の場所に位置しています。浴室には追い焚き機能が付いているので、いつでも温かいお風呂に入れ家族が多くても安心で、家族とコミュニケーションを取ったり子供の様子を見ながら料理ができるカウンターキッチンが備わっております。また、お手入れ・掃除がしやすいだけでなく、収納スペースなどが一体となったシステムキッチンが備わっております。4部屋で構成されており、物件内で一番広いお部屋はリビングダイニングキッチンで19.80帖です。周辺163m圏内(徒歩3分)にはコンビニもあります。

※「この物件について」に記載の情報は、登録情報をもとに当サイトが掲載するものであり、不動産物件情報を掲載している不動産事業者が掲載するものではありません。

内観・外観

間取り図

間取り 拡大

3LDK

( リビングダイニングキッチン 19.8帖 洋室 6帖 洋室 6.5帖 洋室 8帖 )

建物面積
97.35 ㎡ (壁芯)
土地面積
94.19 ㎡ (公簿)
建物構造
木造 / 2 階建

\ 人気物件は決まるのが早い!まずはお問合せを /

メールアイコン 物件の資料をもらう 3項目のみ入力すればOK 無料

掲載終了まであと9

電話アイコン 電話で問い合わせ 無料

この物件を共有・保存する

設備

主な設備

キッチン
  • システムキッチン

    システム
    キッチン

  • カウンターキッチン

    カウンター
    キッチン

  • IHコンロ

    IHコンロ

  • ガスコンロ

    ガスコンロ

バス・トイレ
  • 追い焚き

    追い焚き

  • 浴室乾燥機

    浴室乾燥機

  • シャワー付洗面化粧台

    シャワー付
    洗面化粧台

  • 洗浄便座

    洗浄便座

室内設備
  • ウォークインクローゼット

    ウォークイン
    クローゼット

  • 全居室収納

    全居室収納

  • TVモニタ付ドアホン

    TVモニタ付
    ドアホン

  • 床暖房

    床暖房

特徴
  • オール電化

    オール電化

  • バリアフリー

    バリアフリー

  • 南向き

    南向き

  • 駐車場付

    駐車場付

その他設備

公営水道、プロパンガス、下水、専用バス、専用トイレ、システムキッチン、追焚機能、ウォークインクローゼット、出窓、フローリング、カウンターキッチン、全居室収納、クローゼット

設備情報について質問する

\ 人気物件は決まるのが早い!まずはお問合せを /

メールアイコン 物件の資料をもらう 3項目のみ入力すればOK 無料

掲載終了まであと9

電話アイコン 電話で問い合わせ 無料

この物件を共有・保存する

周辺情報

周辺の歯医者

読込中

周辺の医療機関

読込中

周辺の駅

読込中

周辺の銀行

読込中

周辺のパン屋

読込中

その他の周辺施設を探す
学区や周辺について質問したい

周辺の生活情報

ハザード情報

物件周辺の土砂、浸水、津波、
地震の情報を地図で確認できます。

ハザードマップを確認する

※周辺情報は「 出典一覧(施設情報) 」のデータを元に当サイトが独自の方法で抽出し掲載しているものです。不動産物件情報を提供している不動産事業者が掲載するものでありません。
※周辺情報は移転や閉鎖等により情報が最新ではない、正しくない場合があります。詳しくは不動産会社にお問い合わせのうえ、ご確認をお願い致します。

\ 人気物件は決まるのが早い!まずはお問合せを /

メールアイコン 物件の資料をもらう 3項目のみ入力すればOK 無料

掲載終了まであと9

電話アイコン 電話で問い合わせ 無料

この物件を共有・保存する

物件概要

価格
2,280 万円

--

ローン詳細
間取り
3LDK
( リビングダイニングキッチン 19.8帖 洋室 6帖 洋室 6.5帖 洋室 8帖 )
建物面積
97.35 ㎡ (壁芯)
土地面積
94.19 ㎡ (公簿)
駐車場
空有 無料
築年月
2007 年 2 月(築 20 年)
住所
神奈川県秦野市鶴巻北3丁目 地図を見る
交通

小田急電鉄小田原線 鶴巻温泉駅/徒歩6分

--

--

総戸数
--
主要採光面
--
建物構造
木造 / 2 階建
接道状況
一方 ( 南東 4.0m 公道 間口5.0m )
私道負担面積
--
都市計画
市街化区域
地目
宅地
用途地域
第一種住居地域
地勢
--
建ぺい率
60%
容積率
200%
土地権利
所有権
国土法届出
不要
借地料
--
借地期間
--
引渡し
相談
取引態様
仲介
その他費用
--
その他条件
--
備考
生活の中では、欠かせない車を2台も駐車可能で便利です。寒い季節も安心の追い焚き機能付きです。駅から徒歩6分圏内に立地しています。スーパーが近いので買い物がしやすいです。住まい選びで困ったことはありませんか。お悩みがあれば、私どもにお問い合わせください。ご一緒に快適な暮らしを始めましょう。
周辺施設
【小学校】秦野市立鶴巻小学校 988m
【中学校】秦野市立鶴巻中学校 813m
【コンビニ】コンビニ 163m
【スーパー】スーパー 538m
【ドラッグストア】ドラッグストア 325m
物件番号
314002472874
自社管理番号
1362460008197
建築確認番号
--
登録日
2025/09/04
有効期限
2026/04/04

※情報提供元:LIFULL HOME'S

会社情報

取り扱い不動産会社

スカイガーデン株式会社
住所
神奈川県平塚市四之宮5丁目27-17 
営業時間など
営業時間/ 9:00~19:00
定休日/毎週火曜日、毎週水曜日
免許番号
神奈川県知事(2)第29933号
所属団体
(公社)首都圏不動産公正取引協議会、(公社)神奈川県宅地建物取引業協会、(公財)東日本不動産流通機構
保証協会
(公社)全国宅地建物取引業保証協会

※光IP 電話、及びIP 電話からはご利用になれません
※情報元の「LIFULL HOME'S」掲載店舗に連絡されます
※不動産会社がお電話に出られなかった場合、株式会社LIFULLは電話会社が提供するサービスを介してお客様の発信者番号を受領後、折り返し専用の電話番号を発番してお問合せの不動産会社に通知します(お客様の発信者番号がお問合せの不動産会社に通知されることはございません)

物件に関するお問い合わせ

必須
必須
必須

※携帯電話でドメイン指定受信を利用している場合は、「chintaistyle.jp」「sky-garden.co.jp」を解除してください。

あなたにぴったりの物件情報などをお届けします。

確認ページへ進む

最近見た物件と比較

閲覧中
NO IMAGE

秦野市鶴巻北 中古戸建

2,280万円

3LDK

建物
97.35㎡ (壁芯)

土地
94.19㎡ (公簿)

築20年

秦野市鶴巻北3丁目

小田急電鉄小田原線 鶴巻温泉駅/徒歩6分

資料請求する

外観:314002485077

中古戸建 平塚市岡崎92坪 オーナーチェンジ

1,700万円

3LDK

建物
80.14㎡

土地
304.16㎡

築30年

平塚市岡崎

東海道本線 平塚駅/徒歩6分

詳細を見る

外観:312001209889

千葉市稲毛区山王町 中古戸建

1,980万円

4LDK

建物
87.77㎡

土地
91.32㎡ (公簿)

築11年

千葉市稲毛区山王町

総武本線 四街道駅/バス 10分/山王病院入口 徒歩9分

詳細を見る

外観:313004575916

品川区二葉2丁目 戸建

12,000万円

2SLDK

建物
88.39㎡ (壁芯)

土地
87.41㎡

築4年

品川区二葉2丁目

埼京線 西大井駅/徒歩6分

詳細を見る

外観:312001092151

東中新宿4丁目戸建 一条工務店施工

4,700万円

3SLDK

建物
117.58㎡ (壁芯)

土地
208.80㎡ (公簿)

築4年

柏市東中新宿4丁目

東武鉄道野田線 新柏駅/徒歩19分

詳細を見る

外観:312001208320

香取郡神崎町四季の丘 2階建 104.33㎡

980万円

4LDK

建物
104.33㎡ (壁芯)

土地
183.10㎡ (公簿)

築30年

香取郡神崎町四季の丘

成田線 下総神崎駅/徒歩19分

詳細を見る

外観:313004656447

八王子市中野上町4丁目 再生住宅

3,199万円

2SLDK

建物
95.22㎡

土地
100.29㎡ (公簿)

築11年

八王子市中野上町4丁目

中央本線 西八王子駅/バス 7分/鶴巻橋 徒歩4分

詳細を見る

外観:314002603977

伊勢原市高森台二丁目

2,580万円

3LDK

建物
123.79㎡

土地
194.73㎡ (公簿)

築34年

伊勢原市高森台2丁目

小田急電鉄小田原線 愛甲石田駅/バス 5分/愛甲原住宅 徒歩3分

詳細を見る

外観:314002590246

秦野市北矢名 中古一戸建て

2,880万円

4LDK

建物
100.40㎡

土地
146.77㎡

築6年

秦野市北矢名

小田急電鉄小田原線 東海大学前駅/徒歩10分

詳細を見る

NO IMAGE

中古戸建 伊勢原市坪ノ内

1,980万円

4LDK

建物
104.65㎡

土地
152.10㎡

築41年

伊勢原市坪ノ内

小田急電鉄小田原線 鶴巻温泉駅/徒歩6分

詳細を見る

外観:313004661526

品川区東中延2丁目 中古戸建

20,900万円

5LDK

建物
234.60㎡

土地
122.88㎡ (実測)

築27年

品川区東中延2丁目

東急池上線 荏原中延駅/徒歩2分

詳細を見る

近くの類似おすすめ物件

神奈川県秦野市の新着物件情報

現在00件保存されています。

残り00件追加することができます。

お気に入り物件一覧を見る

間隔を空けてお試しください。

検討した人が1人います
メールアイコン 資料請求 無料 電話アイコン 電話する 無料