杉並区松庵1丁目・RC造 中古住宅|三鷹台駅から徒歩7分|杉並区(東京都)の空き家・中古住宅・中古一戸建て

大成建設ハウジング施工!RC造の拘りの注文住宅!

大成建設ハウジング施工!RC造の拘りの注文住宅!

9,690万円

月々の支払い目安:--

ローン詳細

\ 人気物件は決まるのが早い!まずはお問合せを /

メールアイコン 物件の資料をもらう 3項目のみ入力すればOK 無料

掲載終了まであと13

所在地・交通

東京都杉並区松庵1丁目

京王電鉄井の頭線 三鷹台駅/徒歩7分

地図を見る

POINT

●大成建設ハウジング施工の拘りの注文住宅! ●地震に強い鉄筋コンクリート造!全室南西向きの明るい3LDK! ●開放感ある三方角地!陽当り、風通し、眺望良好!

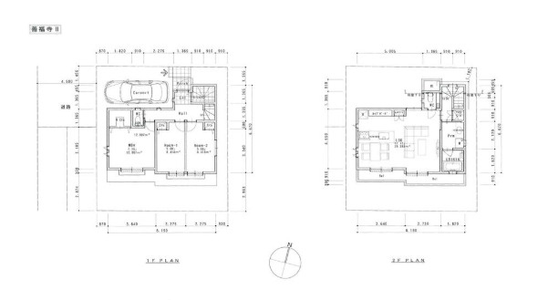
間取り
3LDK
建物面積
86.72 ㎡ (壁芯)
築年月
2017 年2 月(築10 年)
土地権利
所有権
駐車場
空有 (1 台) 無料
現況
空家
実際に見学したい

朝日住宅株式会社 新宿店

中古マンション・一戸建ての売買はおまかせください。朝日住宅は首都圏に5店舗、関西に2店舗あり広く情報を取り扱っています。ダブルコンサルタントのフォロー体制でお客様のご希望に応えまたご不安を解消します。

会社情報

この物件について

こちらの物件は京王電鉄井の頭線を三鷹台駅で下車し、徒歩7分の場所に位置しています。冬の寒い時期でもスリッパいらずでポカポカと足元が暖まり快適に過ごせる床暖房が備わっており、浴室には乾燥機が付いているので雨の日に洗濯物を干せるだけでなく入浴後の浴室の乾燥にも使えます。また、浴室には追い焚き機能が付いているので、いつでも温かいお風呂に入れ家族が多くても安心です。

※「この物件について」に記載の情報は、登録情報をもとに当サイトが掲載するものであり、不動産物件情報を掲載している不動産事業者が掲載するものではありません。

内観・外観

間取り図

拘りある注文住宅をさらにリニューアルリフォーム♪ 3LDKに変更 拡大

3LDK

建物面積
86.72 ㎡ (壁芯)
土地面積
90.98 ㎡ (公簿)
建物構造
RC / 2 階建

写真

リフォーム・リノベーション

水回り

2025年07月実施

  • 洗面所
内装

2025年07月実施

  • 壁、天井(クロス、塗装等)
  • 床(フローリング等)
  • 全室クロス張替
  • 建具(室内ドア等)
  • 内装全面(床、壁、天井、建具すべて)

\ 人気物件は決まるのが早い!まずはお問合せを /

メールアイコン 物件の資料をもらう 3項目のみ入力すればOK 無料

掲載終了まであと13

この物件を共有・保存する

設備

設備画像

主な設備

キッチン
  • システムキッチン

    システム
    キッチン

  • カウンターキッチン

    カウンター
    キッチン

  • IHコンロ

    IHコンロ

  • ガスコンロ

    ガスコンロ

バス・トイレ
  • 追い焚き

    追い焚き

  • 浴室乾燥機

    浴室乾燥機

  • シャワー付洗面化粧台

    シャワー付
    洗面化粧台

  • 洗浄便座

    洗浄便座

室内設備
  • ウォークインクローゼット

    ウォークイン
    クローゼット

  • 全居室収納

    全居室収納

  • TVモニタ付ドアホン

    TVモニタ付
    ドアホン

  • 床暖房

    床暖房

特徴
  • オール電化

    オール電化

  • バリアフリー

    バリアフリー

  • 南向き

    南向き

  • 駐車場付

    駐車場付

その他設備

公営水道、都市ガス、下水、ガスコンロ、三口コンロ、システムキッチン、追焚機能、シャワー付洗面化粧台、エアコン、床下収納、洗濯機置場あり、BS対応、インターネット対応、床暖房、TVドアホン、バリアフリー、温水洗浄便座、浴室乾燥機、耐震構造(新耐震基準適合)、食器洗い乾燥機、全居室収納、クローゼット、下駄箱、シューズインクローゼット、照明器具付き、オートバス、整形地、隣家との間隔が広い、防犯(雨戸)シャッター、ディンプルキー、パントリー、浄水器・活水器、トイレ2ヶ所以上、節水型トイレ、浴室暖房、省エネ給湯器、室内洗濯物干し、ルーフバルコニー、ワイドバルコニー、屋上、複層ガラス・複層サッシ、全室2面採光、全室フローリング

設備情報について質問する

\ 人気物件は決まるのが早い!まずはお問合せを /

メールアイコン 物件の資料をもらう 3項目のみ入力すればOK 無料

掲載終了まであと13

この物件を共有・保存する

周辺情報

周辺の生活情報

ハザード情報

物件周辺の土砂、浸水、津波、
地震の情報を地図で確認できます。

ハザードマップを確認する

※周辺情報は「 出典一覧(施設情報) 」のデータを元に当サイトが独自の方法で抽出し掲載しているものです。不動産物件情報を提供している不動産事業者が掲載するものでありません。
※周辺情報は移転や閉鎖等により情報が最新ではない、正しくない場合があります。詳しくは不動産会社にお問い合わせのうえ、ご確認をお願い致します。

\ 人気物件は決まるのが早い!まずはお問合せを /

メールアイコン 物件の資料をもらう 3項目のみ入力すればOK 無料

掲載終了まであと13

この物件を共有・保存する

物件概要

価格
9,690 万円

--

ローン詳細
間取り
3LDK
建物面積
86.72 ㎡ (壁芯)
土地面積
90.98 ㎡ (公簿)
駐車場
空有 (1 台) 無料
築年月
2017 年 2 月(築 10 年)
住所
東京都杉並区松庵1丁目 地図を見る
交通

京王電鉄井の頭線 三鷹台駅/徒歩7分

--

--

総戸数
1 戸
主要採光面
建物構造
RC / 2 階建
接道状況
三方 ( 西 6.3m 公道 間口5.5m ) ( 南 4.0m 私道 間口15.1m ) ( 東 4.0m 私道 間口4.2m )
セットバック
私道負担面積
49.50㎡ 私道負担割合1/1
都市計画
市街化区域
地目
宅地
用途地域
第一種低層住居専用地域
地勢
平坦
建ぺい率
60%
容積率
100%
土地権利
所有権
国土法届出
不要
借地料
--
借地期間
--
引渡し
即時
取引態様
仲介
その他費用
--
その他条件
南向き
備考
●全室南西向きのため、陽当たり良好な室内です♪ ●広いバルコニーの他に、広々とした屋上(ルーフバルコニー)があります♪ ●360度のパノラマの眺望♪屋上でバーベキューなど多目的に楽しめます♪
●室内リフォーム!!(完成予定:2025年5月下旬完成予定)
●玄関には1.2帖の広いシューズインクローゼット!他に大型下足箱もあります♪
●玄関に大きな洗面化粧台もあり♪
●9.6帖の主寝室には収納も兼ね備えた小上り畳スペースもあります!
●全室に大型クローゼット!2カ所ずつの床下収納庫もあり!
●約17帖の広々としたLDK!
●3LDKに変更も可能♪ご希望があればお申し付けください♪
物件番号
313004712600
自社管理番号
1231900025992
建築確認番号
--
登録日
2026/04/12
有効期限
2026/05/11

※情報提供元:LIFULL HOME'S

会社情報

取り扱い不動産会社

朝日住宅株式会社 新宿店
住所
東京都新宿区西新宿1丁目8-1 新宿ビルディング6F 
営業時間など
営業時間/10:00~19:00
定休日/火曜日・水曜日 年末年始 夏季休暇
免許番号
国土交通大臣免許(05)第6185号
所属団体
(公社)首都圏不動産公正取引協議会、(一社)全国住宅産業協会、(一社)不動産流通経営協会
保証協会
営業保証金供託済

物件に関するお問い合わせ

必須
必須
必須

※携帯電話でドメイン指定受信を利用している場合は、「chintaistyle.jp」「asahi-jutaku.co.jp」を解除してください。

あなたにぴったりの物件情報などをお届けします。

確認ページへ進む

最近見た物件と比較

閲覧中
外観:313004712600

杉並区松庵1丁目・RC造 中古住宅

9,690万円

3LDK

建物
86.72㎡ (壁芯)

土地
90.98㎡ (公簿)

築10年

杉並区松庵1丁目

京王電鉄井の頭線 三鷹台駅/徒歩7分

資料請求する

外観:327002317123

堺市堺区霞ヶ丘町3丁 2階建 156.00㎡

6,350万円

4LDK

建物
156.00㎡

土地
252.04㎡ (公簿)

築27年

堺市堺区霞ヶ丘町3丁

阪和線 上野芝駅/徒歩15分

詳細を見る

外観:327002319010

美原区太井戸建

2,498万円

3LDK

建物
105.15㎡

土地
78.16㎡ (公簿)

築25年

堺市美原区太井

南海電鉄高野線 萩原天神駅/徒歩23分

詳細を見る

外観:312001223389

戸建 柏市豊四季

3,780万円

4LDK

建物
105.04㎡ (壁芯)

土地
124.38㎡ (公簿)

築22年

柏市豊四季

千代田・常磐緩行線 南柏駅/徒歩15分

詳細を見る

外観:328000631777

垂水区塩屋台2丁目 戸建

480万円

5SDK

建物
76.59㎡

土地
129.28㎡ (公簿)

築53年

神戸市垂水区塩屋台2丁目

山陽本線 塩屋駅/徒歩18分

詳細を見る

近くの類似おすすめ物件

東京都杉並区の新着物件情報

現在00件保存されています。

残り00件追加することができます。

お気に入り物件一覧を見る

間隔を空けてお試しください。