東京都町田市相原町|相原駅から徒歩34分|町田市(東京都)の空き家・中古住宅・中古一戸建て

ついに完成致しました!現地をご見学に行く際は、道路の幅や周辺の交通量、施設などをご確認頂くことをおすすめします!物件の流れが早いため、内見をしたい方はお早めに当社営業までお問い合わせ頂きご予約下さい!

ついに完成致しました!現地をご見学に行く際は、道路の幅や周辺の交通量、施設などをご確認頂くことをおすすめします!物件の流れが早いため、内見をしたい方はお早めに当社営業までお問い合わせ頂きご予約下さい!

3,590万円

月々の支払い目安:--

ローン詳細

\ 人気物件は決まるのが早い!まずはお問合せを /

メールアイコン 物件の資料をもらう 3項目のみ入力すればOK 無料

掲載終了まであと12

所在地・交通

東京都町田市相原町

横浜線 相原駅/徒歩34分

地図を見る

POINT

間取り
3LDK
建物面積
95.63 ㎡ (壁芯)
築年月
2025 年1 月(築2 年)
土地権利
所有権
駐車場
空有 無料
現況
空家
実際に見学したい

株式会社住まいの広場TOWNS

物件公開常時3千件以上!プラス未公開情報で、他社と比べても多くの物件をご紹介可能です。また、FP資格者によるライフプランのご提案が可能です。目指すは顧客満足度No.1、「出会えてよかった」を提供します。

会社情報

この物件について

この物件はJR横浜線を相原駅で下車し、徒歩34分の場所に位置しています。見知らぬ訪問者への対応も安心なモニター付きドアホンが付いており、浴室には追い焚き機能が付いているので、いつでも温かいお風呂に入れ家族が多くても安心です。また、お手入れ・掃除がしやすいだけでなく、収納スペースなどが一体となったシステムキッチンが備わっております。周辺606m圏内(徒歩8分)には小中一貫ゆくのき学園小学校もあります。

※「この物件について」に記載の情報は、登録情報をもとに当サイトが掲載するものであり、不動産物件情報を掲載している不動産事業者が掲載するものではありません。

内観・外観

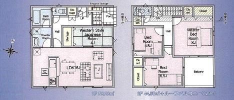
間取り図

間取り図を送ってもらう

3LDK

建物面積
95.63 ㎡ (壁芯)
土地面積
125.04 ㎡ (公簿)
建物構造
木造 / 2 階建

写真

パノラマ

\ 人気物件は決まるのが早い!まずはお問合せを /

メールアイコン 物件の資料をもらう 3項目のみ入力すればOK 無料

掲載終了まであと12

電話アイコン 電話で問い合わせ 無料

この物件を共有・保存する

設備

設備画像

主な設備

キッチン
  • システムキッチン

    システム
    キッチン

  • カウンターキッチン

    カウンター
    キッチン

  • IHコンロ

    IHコンロ

  • ガスコンロ

    ガスコンロ

バス・トイレ
  • 追い焚き

    追い焚き

  • 浴室乾燥機

    浴室乾燥機

  • シャワー付洗面化粧台

    シャワー付
    洗面化粧台

  • 洗浄便座

    洗浄便座

室内設備
  • ウォークインクローゼット

    ウォークイン
    クローゼット

  • 全居室収納

    全居室収納

  • TVモニタ付ドアホン

    TVモニタ付
    ドアホン

  • 床暖房

    床暖房

特徴
  • オール電化

    オール電化

  • バリアフリー

    バリアフリー

  • 南向き

    南向き

  • 駐車場付

    駐車場付

その他設備

公営水道、プロパンガス、下水、バス・トイレ別、三口コンロ、システムキッチン、追焚機能、シャワー付洗面化粧台、床下収納、フローリング、TVドアホン、温水洗浄便座、浴室乾燥機、クローゼット、下駄箱

設備情報について質問する

\ 人気物件は決まるのが早い!まずはお問合せを /

メールアイコン 物件の資料をもらう 3項目のみ入力すればOK 無料

掲載終了まであと12

電話アイコン 電話で問い合わせ 無料

この物件を共有・保存する

周辺情報

周辺の生活情報

ハザード情報

物件周辺の土砂、浸水、津波、
地震の情報を地図で確認できます。

ハザードマップを確認する

※周辺情報は「 出典一覧(施設情報) 」のデータを元に当サイトが独自の方法で抽出し掲載しているものです。不動産物件情報を提供している不動産事業者が掲載するものでありません。
※周辺情報は移転や閉鎖等により情報が最新ではない、正しくない場合があります。詳しくは不動産会社にお問い合わせのうえ、ご確認をお願い致します。

\ 人気物件は決まるのが早い!まずはお問合せを /

メールアイコン 物件の資料をもらう 3項目のみ入力すればOK 無料

掲載終了まであと12

電話アイコン 電話で問い合わせ 無料

この物件を共有・保存する

物件概要

価格
3,590 万円

--

ローン詳細
間取り
3LDK
建物面積
95.63 ㎡ (壁芯)
土地面積
125.04 ㎡ (公簿)
駐車場
空有 無料
築年月
2025 年 1 月(築 2 年)
住所
東京都町田市相原町 地図を見る
交通

横浜線 相原駅/徒歩34分

--

--

総戸数
12 戸
主要採光面
--
建物構造
木造 / 2 階建
接道状況
--
セットバック
私道負担面積
--
都市計画
市街化区域
地目
宅地
用途地域
第一種低層住居専用地域
地勢
--
建ぺい率
40%
容積率
80%
土地権利
所有権
国土法届出
不要
借地料
--
借地期間
--
引渡し
即時
取引態様
仲介
その他費用
--
その他条件
--
備考
利便性に優れ、家族で暮らすにもピッタリな3LDKです。機能的で使いやすいシステムキッチン付きなので、お料理を楽しめます。今回紹介するのは、建物面積が95.63平米。追焚機能浴室は入浴時間がばらばらなご家族にオススメです。こちらの新築戸建てで新たな生活のスタートをきりませんか。新築ならではの「新しさ」がとても魅力です。シューズボックス付きの、収納の多い玄関となっています。
周辺施設
【小学校】小中一貫ゆくのき学園小学校 606m
【中学校】小中一貫ゆくのき学園中学校 670m
【コンビニ】コンビニ 694m
【スーパー】スーパー 1,089m
【総合病院】総合病院 1,664m
【公園】公園 606m
【ドラッグストア】ドラッグストア 988m
【その他】市立城山幼稚園 844m
物件番号
313004584673
自社管理番号
1127950077893
建築確認番号
--
登録日
2026/01/16
有効期限
2026/04/08

※情報提供元:LIFULL HOME'S

会社情報

取り扱い不動産会社

株式会社住まいの広場TOWNS
住所
神奈川県相模原市中央区相模原4丁目6-16 
営業時間など
営業時間/ 9:00~21:00
平日10:00~21:00
定休日/年中無休(年末年始は除く)
免許番号
神奈川県知事(4)第27368号
所属団体
所属団体未加入
保証協会
営業保証金供託済

※光IP 電話、及びIP 電話からはご利用になれません
※情報元の「LIFULL HOME'S」掲載店舗に連絡されます
※不動産会社がお電話に出られなかった場合、株式会社LIFULLは電話会社が提供するサービスを介してお客様の発信者番号を受領後、折り返し専用の電話番号を発番してお問合せの不動産会社に通知します(お客様の発信者番号がお問合せの不動産会社に通知されることはございません)

物件に関するお問い合わせ

必須
必須
必須

※携帯電話でドメイン指定受信を利用している場合は、「chintaistyle.jp」「sumainohiroba.com」を解除してください。

あなたにぴったりの物件情報などをお届けします。

確認ページへ進む

最近見た物件と比較

閲覧中
外観:313004584673

町田市相原町 2階建 95.63㎡

3,590万円

3LDK

建物
95.63㎡ (壁芯)

土地
125.04㎡ (公簿)

築2年

町田市相原町

横浜線 相原駅/徒歩34分

資料請求する

外観:323000436743

知多郡武豊町字梨子ノ木

1,000万円

5DK

建物
82.13㎡

土地
183.75㎡

築55年

知多郡武豊町字梨子ノ木

名鉄河和線 上ゲ駅/徒歩28分

詳細を見る

近くの類似おすすめ物件

東京都町田市の新着物件情報

現在00件保存されています。

残り00件追加することができます。

お気に入り物件一覧を見る

間隔を空けてお試しください。

メールアイコン 資料請求 無料 電話アイコン 電話する 無料