足立区梅田2丁目戸建て|梅島駅から徒歩12分|足立区(東京都)の空き家・中古住宅・中古一戸建て

足立区梅田2丁目 戸建

足立区梅田2丁目 戸建

4,780万円

月々の支払い目安:--

ローン詳細

\ 人気物件は決まるのが早い!まずはお問合せを /

メールアイコン 物件の資料をもらう 3項目のみ入力すればOK 無料

掲載終了まであと10

所在地・交通

東京都足立区梅田2丁目

東武伊勢崎・大師線 梅島駅/徒歩12分

地図を見る

POINT

4SLDKのゆとりある戸建て! 空家につき内覧可能です! お気軽にお問い合わせください♪

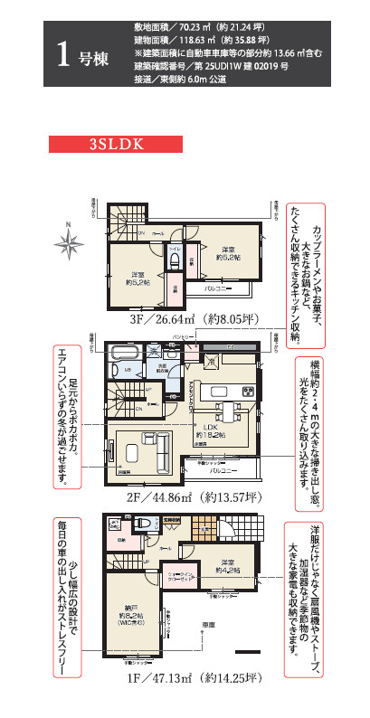
間取り
4SLDK
建物面積
125.03 ㎡ (壁芯)
築年月
1997 年3 月(築30 年)
土地権利
所有権
駐車場
空有 (1 台) 無料
現況
空家
実際に見学したい

リオン不動産株式会社 アリオ西新井店

2021年11月オープンしたばかりの新店です。新小岩にも店舗があり、実績多数!お近くの店舗でご相談が可能です。キッズスペースがあるので、お子様とご一緒のご来店も大歓迎!お気軽にお問い合わせ下さいませ♪

会社情報

この物件について

こちらの物件は東武伊勢崎・大師線を梅島駅で下車し、徒歩12分の場所に位置しています。お手入れ・掃除がしやすいだけでなく、収納スペースなどが一体となったシステムキッチンが備わっており、浴室には追い焚き機能が付いているので、いつでも温かいお風呂に入れ家族が多くても安心です。また、南向きなので冬場でも暖かく洗濯物が乾きやすいメリットがあります。周辺94m圏内(徒歩2分)にはコンビニもあります。

※「この物件について」に記載の情報は、登録情報をもとに当サイトが掲載するものであり、不動産物件情報を掲載している不動産事業者が掲載するものではありません。

内観・外観

間取り図

4SLDK 拡大

4SLDK

建物面積
125.03 ㎡ (壁芯)
土地面積
149.61 ㎡ (公簿)
建物構造
木造 / 2 階建

写真

パノラマ

\ 人気物件は決まるのが早い!まずはお問合せを /

メールアイコン 物件の資料をもらう 3項目のみ入力すればOK 無料

掲載終了まであと10

電話アイコン 電話で問い合わせ 無料

この物件を共有・保存する

設備

設備画像

主な設備

キッチン
  • システムキッチン

    システム
    キッチン

  • カウンターキッチン

    カウンター
    キッチン

  • IHコンロ

    IHコンロ

  • ガスコンロ

    ガスコンロ

バス・トイレ
  • 追い焚き

    追い焚き

  • 浴室乾燥機

    浴室乾燥機

  • シャワー付洗面化粧台

    シャワー付
    洗面化粧台

  • 洗浄便座

    洗浄便座

室内設備
  • ウォークインクローゼット

    ウォークイン
    クローゼット

  • 全居室収納

    全居室収納

  • TVモニタ付ドアホン

    TVモニタ付
    ドアホン

  • 床暖房

    床暖房

特徴
  • オール電化

    オール電化

  • バリアフリー

    バリアフリー

  • 南向き

    南向き

  • 駐車場付

    駐車場付

その他設備

公営水道、プロパンガス、下水、専用バス、専用トイレ、バス・トイレ別、シャワー、ガスコンロ、三口コンロ、システムキッチン、給湯、追焚機能、室内洗濯機置場、バルコニー、フローリング、洗面所独立、クローゼット、下駄箱

設備情報について質問する

\ 人気物件は決まるのが早い!まずはお問合せを /

メールアイコン 物件の資料をもらう 3項目のみ入力すればOK 無料

掲載終了まであと10

電話アイコン 電話で問い合わせ 無料

この物件を共有・保存する

周辺情報

周辺の歯医者

読込中

周辺の医療機関

読込中

周辺の駅

読込中

周辺の銀行

読込中

周辺のパン屋

読込中

その他の周辺施設を探す
学区や周辺について質問したい

周辺の生活情報

ハザード情報

物件周辺の土砂、浸水、津波、
地震の情報を地図で確認できます。

ハザードマップを確認する

※周辺情報は「 出典一覧(施設情報) 」のデータを元に当サイトが独自の方法で抽出し掲載しているものです。不動産物件情報を提供している不動産事業者が掲載するものでありません。
※周辺情報は移転や閉鎖等により情報が最新ではない、正しくない場合があります。詳しくは不動産会社にお問い合わせのうえ、ご確認をお願い致します。

\ 人気物件は決まるのが早い!まずはお問合せを /

メールアイコン 物件の資料をもらう 3項目のみ入力すればOK 無料

掲載終了まであと10

電話アイコン 電話で問い合わせ 無料

この物件を共有・保存する

物件概要

価格
4,780 万円

--

ローン詳細
間取り
4SLDK
建物面積
125.03 ㎡ (壁芯)
土地面積
149.61 ㎡ (公簿)
駐車場
空有 (1 台) 無料
築年月
1997 年 3 月(築 30 年)
住所
東京都足立区梅田2丁目 地図を見る
交通

東武伊勢崎・大師線 梅島駅/徒歩12分

--

--

総戸数
--
主要採光面
建物構造
木造 / 2 階建
接道状況
一方 ( 南 4.0m 私道 )
私道負担面積
145.00㎡ 私道負担割合1/8
都市計画
市街化区域
地目
宅地
用途地域
準工業地域
地勢
平坦
建ぺい率
80%
容積率
200%
土地権利
所有権
国土法届出
不要
借地料
--
借地期間
--
引渡し
相談
取引態様
仲介
その他費用
--
その他条件
南向き
備考
--
周辺施設
【小学校】足立区立梅島第二小学校 574m
【中学校】足立区立第九中学校 840m
【コンビニ】コンビニ 94m
【スーパー】スーパー 97m
【総合病院】総合病院 440m
【ドラッグストア】ドラッグストア 288m
【商店街】商店街 404m
【その他】さわやか保育園・梅島 598m
物件番号
313004559772
自社管理番号
1459360002179
建築確認番号
--
登録日
2026/01/04
有効期限
2026/04/06

※情報提供元:LIFULL HOME'S

会社情報

取り扱い不動産会社

リオン不動産株式会社 アリオ西新井店
住所
東京都足立区西新井栄町1丁目20-1 アリオ西新井2階 
営業時間など
営業時間/10:00~21:00
定休日/水曜日(その他ショッピングモールの休業日に準ずる)
免許番号
東京都知事(02)第100233号
所属団体
(公社)首都圏不動産公正取引協議会、(公社)東京都宅地建物取引業協会、(公財)東日本不動産流通機構
保証協会
(公社)全国宅地建物取引業保証協会

※光IP 電話、及びIP 電話からはご利用になれません
※情報元の「LIFULL HOME'S」掲載店舗に連絡されます
※不動産会社がお電話に出られなかった場合、株式会社LIFULLは電話会社が提供するサービスを介してお客様の発信者番号を受領後、折り返し専用の電話番号を発番してお問合せの不動産会社に通知します(お客様の発信者番号がお問合せの不動産会社に通知されることはございません)

物件に関するお問い合わせ

必須
必須
必須

※携帯電話でドメイン指定受信を利用している場合は、「chintaistyle.jp」「lion-realestate.co.jp」を解除してください。

あなたにぴったりの物件情報などをお届けします。

確認ページへ進む

最近見た物件と比較

閲覧中
外観:313004559772

足立区梅田2丁目戸建て

4,780万円

4SLDK

建物
125.03㎡ (壁芯)

土地
149.61㎡ (公簿)

築30年

足立区梅田2丁目

東武伊勢崎・大師線 梅島駅/徒歩12分

資料請求する

外観:313004586207

昭島市中神町2丁目 3号棟

3,790万円

3LDK

建物
86.11㎡

土地
126.87㎡ (公簿)

築2年

昭島市中神町2丁目

青梅線 中神駅/徒歩13分

詳細を見る

外観:313004650205

昭島市郷地町3丁目 中古戸建

1,190万円

3LDK

建物
63.04㎡

土地
57.65㎡ (公簿)

築49年

昭島市郷地町3丁目

青梅線 西立川駅/徒歩22分

詳細を見る

外観:313004668091

文京区本駒込5丁目 3階建 76.50㎡

9,380万円

3LDK

建物
76.50㎡

土地
45.80㎡ (公簿)

築36年

文京区本駒込5丁目

山手線 駒込駅/徒歩9分

詳細を見る

外観:313004660466

多摩市関戸 築3年戸建

5,450万円

4LDK

建物
103.50㎡

土地
131.91㎡ (公簿)

築4年

多摩市関戸5丁目

京王電鉄京王線 聖蹟桜ヶ丘駅/徒歩15分

詳細を見る

外観:313004644301

世田谷区南烏山1丁目 中古戸建て

7,099万円

3LDK

建物
88.02㎡

土地
50.05㎡ (公簿)

築28年

世田谷区南烏山1丁目

京王電鉄京王線 芦花公園駅/徒歩5分

詳細を見る

外観:313004633668

武蔵村山市大南1丁目 戸建

2,080万円

3LDK

建物
68.98㎡

土地
111.66㎡ (公簿)

築31年

武蔵村山市大南1丁目

西武鉄道拝島線 武蔵砂川駅/徒歩15分

詳細を見る

外観:313004600459

東大和市上北台3丁目中古戸建

2,790万円

4LDK

建物
86.76㎡

土地
138.34㎡ (実測)

築29年

東大和市上北台3丁目

多摩モノレール 桜街道駅/徒歩5分

詳細を見る

外観:313004659610

文京区本駒込4丁目中古戸建

13,480万円

2SLDK

建物
86.58㎡ (内法)

土地
44.26㎡ (公簿)

築13年

文京区本駒込4丁目

東京メトロ南北線 本駒込駅/徒歩12分

詳細を見る

外観:312001196434

船橋市楠が山町

1,340万円

4LDK

建物
79.49㎡

土地
89.00㎡ (公簿)

築38年

船橋市楠が山町

京成電鉄松戸線 三咲駅/バス 20分/大穴 徒歩8分

詳細を見る

NO IMAGE

世田谷区上馬二丁目 戸建

8,980万円

2SLDK

建物
83.59㎡ (壁芯)

土地
55.62㎡ (公簿)

築26年

世田谷区上馬2丁目

東急世田谷線 西太子堂駅/徒歩9分

詳細を見る

外観:313004610067

武蔵村山市中藤1丁目 中古戸建

1,550万円

4LDK

建物
99.10㎡ (壁芯)

土地
100.10㎡ (公簿)

築30年

武蔵村山市中藤1丁目

多摩モノレール 上北台駅/徒歩27分

詳細を見る

外観:313004644110

東大和市芋窪5丁目 全3棟/1号棟 未入居戸建て

5,980万円

3LDK

建物
93.14㎡

土地
121.30㎡ (実測)

築3年

東大和市芋窪5丁目

多摩モノレール 上北台駅/徒歩8分

詳細を見る

外観:313004652053

立川市一番町2丁目 2階建 91.12㎡

3,380万円

3LDK

建物
91.12㎡

土地
115.27㎡ (公簿)

築17年

立川市一番町2丁目

西武鉄道拝島線 西武立川駅/徒歩11分

詳細を見る

外観:313004637594

武蔵村山市大南1丁目 2階建 68.98㎡

1,980万円

3LDK

建物
68.98㎡

土地
111.66㎡ (公簿)

築31年

武蔵村山市大南1丁目

西武鉄道拝島線 武蔵砂川駅/徒歩15分

詳細を見る

外観:313004659342

世田谷区粕谷4丁目の中古戸建

8,180万円

4SLDK

建物
96.85㎡

土地
67.83㎡ (実測)

築21年

世田谷区粕谷4丁目

京王電鉄京王線 千歳烏山駅/徒歩7分

詳細を見る

近くの類似おすすめ物件

東京都足立区の新着物件情報

現在00件保存されています。

残り00件追加することができます。

お気に入り物件一覧を見る

間隔を空けてお試しください。

メールアイコン 資料請求 無料 電話アイコン 電話する 無料