北区植竹町1丁目|北大宮駅から徒歩8分|さいたま市北区(埼玉県)の空き家・中古住宅・中古一戸建て

左が当物件。北大宮駅徒歩7分、大宮公園駅徒歩11分、日々の暮らしを豊かにする生活利便施設が充実。白を基調とした清楚感溢れる外観です。※現況物件写真にCG画像処理済み

左が当物件。北大宮駅徒歩7分、大宮公園駅徒歩11分、日々の暮らしを豊かにする生活利便施設が充実。白を基調とした清楚感溢れる外観です。※現況物件写真にCG画像処理済み

4,380万円

月々の支払い目安:--

ローン詳細

\ 人気物件は決まるのが早い!まずはお問合せを /

メールアイコン 物件の資料をもらう 3項目のみ入力すればOK 無料

掲載終了まであと10

所在地・交通

埼玉県さいたま市北区植竹町1丁目

東武鉄道野田線 北大宮駅/徒歩8分

地図を見る

POINT

景観法 高度地区(15m地区)建物面積に車庫部分を含む(11.78?) 

間取り
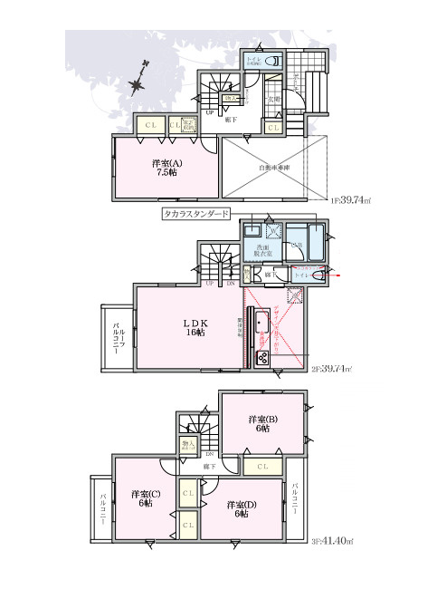
3SLDK
建物面積
111.52 ㎡
築年月
2015 年8 月(築11 年)
土地権利
所有権
駐車場
空有 無料
現況
空家
実際に見学したい

株式会社東宝ハウス新都心

◇ご来店・ご見学の際は、お車での送迎◇未来カレンダーによる人生シミュレーション◇火災保険最大30%OFFで加入可能(団体割引等)◇店内に抗菌・抗ウィルスコーティング「エアリエルコート」実施

会社情報

この物件について

こちらの物件は東武鉄道野田線を北大宮駅で下車し、徒歩8分の場所に位置しています。見知らぬ訪問者への対応も安心なモニター付きドアホンが付いており、浴室には追い焚き機能が付いているので、いつでも温かいお風呂に入れ家族が多くても安心です。また、冬の寒い時期でもスリッパいらずでポカポカと足元が暖まり快適に過ごせる床暖房が備わっております。周辺1,100m圏内(徒歩14分)には植竹小学校もあります。

※「この物件について」に記載の情報は、登録情報をもとに当サイトが掲載するものであり、不動産物件情報を掲載している不動産事業者が掲載するものではありません。

内観・外観

間取り図

間取り図 拡大

3SLDK

建物面積
111.52 ㎡
土地面積
70.08 ㎡ (公簿)
建物構造
木造 / 3 階建

写真

\ 人気物件は決まるのが早い!まずはお問合せを /

メールアイコン 物件の資料をもらう 3項目のみ入力すればOK 無料

掲載終了まであと10

この物件を共有・保存する

設備

設備画像

主な設備

キッチン
  • システムキッチン

    システム
    キッチン

  • カウンターキッチン

    カウンター
    キッチン

  • IHコンロ

    IHコンロ

  • ガスコンロ

    ガスコンロ

バス・トイレ
  • 追い焚き

    追い焚き

  • 浴室乾燥機

    浴室乾燥機

  • シャワー付洗面化粧台

    シャワー付
    洗面化粧台

  • 洗浄便座

    洗浄便座

室内設備
  • ウォークインクローゼット

    ウォークイン
    クローゼット

  • 全居室収納

    全居室収納

  • TVモニタ付ドアホン

    TVモニタ付
    ドアホン

  • 床暖房

    床暖房

特徴
  • オール電化

    オール電化

  • バリアフリー

    バリアフリー

  • 南向き

    南向き

  • 駐車場付

    駐車場付

その他設備

公営水道、都市ガス、下水、最寄り駅が始発駅、バス・トイレ別、三口コンロ、システムキッチン、給湯、追焚機能、シャワー付洗面化粧台、バルコニー、フローリング、床暖房、TVドアホン、温水洗浄便座、カウンターキッチン、浴室乾燥機、浴室サイズ1坪以上(1.6×1.6m相当)、食器洗い乾燥機、全居室収納、クローゼット、オートバス、整形地、浄水器・活水器、トイレ2ヶ所以上、複層ガラス・複層サッシ、地盤調査済

設備情報について質問する

\ 人気物件は決まるのが早い!まずはお問合せを /

メールアイコン 物件の資料をもらう 3項目のみ入力すればOK 無料

掲載終了まであと10

この物件を共有・保存する

周辺情報

周辺の歯医者

読込中

周辺の医療機関

読込中

周辺の駅

読込中

周辺の銀行

読込中

周辺のパン屋

読込中

その他の周辺施設を探す
学区や周辺について質問したい

周辺の生活情報

ハザード情報

物件周辺の土砂、浸水、津波、
地震の情報を地図で確認できます。

ハザードマップを確認する

※周辺情報は「 出典一覧(施設情報) 」のデータを元に当サイトが独自の方法で抽出し掲載しているものです。不動産物件情報を提供している不動産事業者が掲載するものでありません。
※周辺情報は移転や閉鎖等により情報が最新ではない、正しくない場合があります。詳しくは不動産会社にお問い合わせのうえ、ご確認をお願い致します。

\ 人気物件は決まるのが早い!まずはお問合せを /

メールアイコン 物件の資料をもらう 3項目のみ入力すればOK 無料

掲載終了まであと10

この物件を共有・保存する

物件概要

価格
4,380 万円

--

ローン詳細
間取り
3SLDK
建物面積
111.52 ㎡
土地面積
70.08 ㎡ (公簿)
駐車場
空有 無料
築年月
2015 年 8 月(築 11 年)
住所
埼玉県さいたま市北区植竹町1丁目 地図を見る
交通

東武鉄道野田線 北大宮駅/徒歩8分

--

--

総戸数
1 戸
主要採光面
--
建物構造
木造 / 3 階建
接道状況
一方 ( 南 4.0m 公道 )
セットバック
私道負担面積
--
都市計画
市街化区域
地目
宅地
用途地域
第一種住居地域
地勢
--
建ぺい率
60%
容積率
160%
土地権利
所有権
国土法届出
不要
借地料
--
借地期間
--
引渡し
相談
取引態様
一般媒介
その他費用
--
その他条件
--
備考
・北大宮駅まで徒歩8分 大宮公園駅まで徒歩11分の立地 ・南道路に面した整形地のため日当たり良好 ・周辺商業施設多数あり便利な住環境
周辺施設
【小学校】植竹小学校 1,100m
【中学校】植竹中学校 1,600m
物件番号
311002376298
自社管理番号
8110152688
建築確認番号
--
登録日
2026/04/25
有効期限
2026/05/09

※情報提供元:LIFULL HOME'S

会社情報

取り扱い不動産会社

株式会社東宝ハウス新都心
住所
埼玉県さいたま市大宮区吉敷町4丁目261-1 キャピタルビル5F 
営業時間など
営業時間/ 9:00~21:00
定休日/年中無休 
免許番号
埼玉県知事(7)第16625号
所属団体
(公社)首都圏不動産公正取引協議会、(公社)全日本不動産協会
保証協会
(公社)不動産保証協会

物件に関するお問い合わせ

必須
必須
必須

※携帯電話でドメイン指定受信を利用している場合は、「chintaistyle.jp」「tohohouse-sts.co.jp」を解除してください。

あなたにぴったりの物件情報などをお届けします。

確認ページへ進む

最近見た物件と比較

閲覧中
外観:311002376298

北区植竹町1丁目

4,380万円

3SLDK

建物
111.52㎡

土地
70.08㎡ (公簿)

築11年

さいたま市北区植竹町1丁目

東武鉄道野田線 北大宮駅/徒歩8分

資料請求する

外観:327002317590

堺市北区百舌鳥陵南町3丁 店舗付住宅

3,500万円

3LDK

建物
128.43㎡

土地
83.12㎡ (公簿)

築47年

堺市北区百舌鳥陵南町3丁

Osaka Metro御堂筋線 なかもず駅/徒歩19分

詳細を見る

外観:327002319271

浜寺石津町中 中古建て

1,980万円

4DK

建物
101.74㎡ (壁芯)

土地
78.11㎡ (公簿)

築27年

堺市西区浜寺石津町中3丁

南海電鉄南海本線 石津川駅/徒歩4分

詳細を見る

外観:326000246020

醍醐南里町 戸建

1,980万円

3LDK

建物
85.45㎡

土地
74.78㎡ (公簿)

築21年

京都市伏見区醍醐南里町

京都市東西線 醍醐駅/徒歩11分

詳細を見る

NO IMAGE

所沢市上安松 中古戸建

3,297万円

4LDK

建物
92.73㎡ (壁芯)

土地
185.95㎡ (公簿)

築43年

所沢市大字上安松

西武池袋・豊島線 秋津駅/徒歩18分

詳細を見る

外観:327002317389

東大阪市日下町7丁目 3階建 101.85㎡

780万円

3LDK

建物
101.85㎡

土地
48.29㎡ (公簿)

築33年

東大阪市日下町7丁目

近鉄けいはんな線 新石切駅/バス 6分/南日下 徒歩7分

詳細を見る

外観:327002318389

東大阪市花園東町1丁目 中古一戸建て

3,180万円

4LDK

建物
89.19㎡

土地
80.23㎡

築6年

東大阪市花園東町1丁目

近鉄難波・奈良線 河内花園駅/徒歩9分

詳細を見る

外観:326000246137

八幡市美濃山幸水・Re-House・

4,650万円

6SLDK

建物
127.83㎡

土地
198.52㎡

築7年

八幡市美濃山幸水

片町線 松井山手駅/バス 13分/摂南大学北口 徒歩4分

詳細を見る

外観:311002206731

川口市並木4丁目 中古戸建

3,650万円

3LDK

建物
74.17㎡

土地
58.95㎡ (公簿)

築13年

川口市並木4丁目

京浜東北・根岸線 西川口駅/徒歩12分

詳細を見る

外観:327002316130

藤井寺市小山 中古戸建

2,380万円

4SLDK

建物
100.19㎡

土地
80.75㎡ (公簿)

築24年

藤井寺市小山8丁目

近鉄南大阪線 藤井寺駅/徒歩21分

詳細を見る

NO IMAGE

川口市西青木 中古戸建

5,580万円

4LDK

建物
110.34㎡

土地
107.33㎡

築4年

川口市西青木5丁目

京浜東北・根岸線 西川口駅/徒歩24分

詳細を見る

外観:311002362653

川口市大字安行 吉蔵 戸建て

5,480万円

5LDK

建物
99.57㎡

土地
130.23㎡ (公簿)

築2年

川口市大字安行吉蔵

埼玉高速鉄道 戸塚安行駅/徒歩28分

詳細を見る

外観:340000285763

糸島市二丈石崎 2階建 124.62㎡

1,200万円

6LDK

建物
124.62㎡

土地
518.80㎡ (公簿)

築50年

糸島市二丈石崎

筑肥線 一貴山駅/徒歩27分

詳細を見る

外観:327002319556

枚方市中宮山戸町 戸建て

2,649万円

3LDK

建物
98.82㎡

土地
119.06㎡ (公簿)

築22年

枚方市中宮山戸町

京阪電気鉄道交野線 宮之阪駅/徒歩17分

詳細を見る

外観:327002317615

大東市野崎3丁目 2階建 75.13㎡

3,200万円

6LDK

建物
75.13㎡

土地
181.42㎡ (公簿)

築61年

大東市野崎3丁目

片町線 野崎駅/徒歩12分

詳細を見る

外観:327002318487

東大阪市池之端町 中古一戸建て

2,320万円

4LDK

建物
92.86㎡

土地
71.60㎡ (公簿)

築27年

東大阪市池之端町

近鉄けいはんな線 新石切駅/バス 8分/孔舎衙小学校前 徒歩6分

詳細を見る

近くの類似おすすめ物件

埼玉県さいたま市北区の新着物件情報

現在00件保存されています。

残り00件追加することができます。

お気に入り物件一覧を見る

間隔を空けてお試しください。

検討した人が4人います