越谷市大間野町5丁目 中古一戸建て|蒲生駅から徒歩27分|越谷市(埼玉県)の空き家・中古住宅・中古一戸建て

外観

外観

3,299万円

月々の支払い目安:--

ローン詳細

\ 人気物件は決まるのが早い!まずはお問合せを /

メールアイコン 物件の資料をもらう 3項目のみ入力すればOK 無料

掲載終了まであと7

所在地・交通

埼玉県越谷市大間野町5丁目

東武伊勢崎・大師線 蒲生駅/徒歩27分

地図を見る

POINT

マイホーム探しはウッディホームにお気軽にご相談ください ! 自己資金0円からの住宅購入可能です!

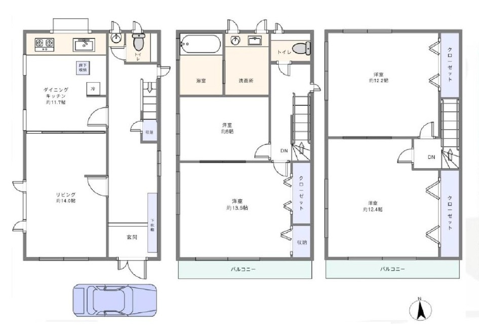
間取り
5SLDK
建物面積
140.70 ㎡ (壁芯)
築年月
1994 年8 月(築32 年)
土地権利
所有権
駐車場
空有 (1 台) 無料
現況
空家
実際に見学したい

株式会社ウッディホーム

越谷市を中心に川口市~草加市~春日部市~ 埼玉の県南・東エリアの物件を多く取り扱っております! 新築戸建て~中古戸建て及びマンションなどいろいろな不動産を取り扱っており、土地のご案内も可能です!

会社情報

この物件について

こちらの物件は東武伊勢崎・大師線を蒲生駅で下車し、徒歩27分の場所に位置しています。浴室には追い焚き機能が付いているので、いつでも温かいお風呂に入れ家族が多くても安心で、お手入れ・掃除がしやすいだけでなく、収納スペースなどが一体となったシステムキッチンが備わっております。また、見知らぬ訪問者への対応も安心なモニター付きドアホンが付いております。周辺514m圏内(徒歩7分)にはコンビニもあります。

※「この物件について」に記載の情報は、登録情報をもとに当サイトが掲載するものであり、不動産物件情報を掲載している不動産事業者が掲載するものではありません。

内観・外観

間取り図

間取り 拡大

5SLDK

建物面積
140.70 ㎡ (壁芯)
土地面積
150.59 ㎡ (公簿)
建物構造
木造 / 2 階建

写真

リフォーム・リノベーション

水回り

2025年10月実施

  • キッチン
  • トイレ
内装

2025年10月実施

  • 内装全面(床、壁、天井、建具すべて)
  • 壁、天井(クロス、塗装等)
  • 床(フローリング等)

\ 人気物件は決まるのが早い!まずはお問合せを /

メールアイコン 物件の資料をもらう 3項目のみ入力すればOK 無料

掲載終了まであと7

この物件を共有・保存する

設備

設備画像

主な設備

キッチン
  • システムキッチン

    システム
    キッチン

  • カウンターキッチン

    カウンター
    キッチン

  • IHコンロ

    IHコンロ

  • ガスコンロ

    ガスコンロ

バス・トイレ
  • 追い焚き

    追い焚き

  • 浴室乾燥機

    浴室乾燥機

  • シャワー付洗面化粧台

    シャワー付
    洗面化粧台

  • 洗浄便座

    洗浄便座

室内設備
  • ウォークインクローゼット

    ウォークイン
    クローゼット

  • 全居室収納

    全居室収納

  • TVモニタ付ドアホン

    TVモニタ付
    ドアホン

  • 床暖房

    床暖房

特徴
  • オール電化

    オール電化

  • バリアフリー

    バリアフリー

  • 南向き

    南向き

  • 駐車場付

    駐車場付

その他設備

公営水道、プロパンガス、下水、専用バス、専用トイレ、バス・トイレ別、ガスコンロ、三口コンロ、システムキッチン、追焚機能、床下収納、室内洗濯機置場、バルコニー、フローリング、TVドアホン、バリアフリー、温水洗浄便座、カウンターキッチン、浴室乾燥機、耐震構造(新耐震基準適合)、食器洗い乾燥機、全居室収納、クローゼット、下駄箱、オートバス

設備情報について質問する

\ 人気物件は決まるのが早い!まずはお問合せを /

メールアイコン 物件の資料をもらう 3項目のみ入力すればOK 無料

掲載終了まであと7

この物件を共有・保存する

周辺情報

周辺の歯医者

読込中

周辺の医療機関

読込中

周辺の駅

読込中

周辺の銀行

読込中

周辺のパン屋

読込中

その他の周辺施設を探す
学区や周辺について質問したい

周辺の生活情報

ハザード情報

物件周辺の土砂、浸水、津波、
地震の情報を地図で確認できます。

ハザードマップを確認する

※周辺情報は「 出典一覧(施設情報) 」のデータを元に当サイトが独自の方法で抽出し掲載しているものです。不動産物件情報を提供している不動産事業者が掲載するものでありません。
※周辺情報は移転や閉鎖等により情報が最新ではない、正しくない場合があります。詳しくは不動産会社にお問い合わせのうえ、ご確認をお願い致します。

\ 人気物件は決まるのが早い!まずはお問合せを /

メールアイコン 物件の資料をもらう 3項目のみ入力すればOK 無料

掲載終了まであと7

この物件を共有・保存する

物件概要

価格
3,299 万円

--

ローン詳細
間取り
5SLDK
建物面積
140.70 ㎡ (壁芯)
土地面積
150.59 ㎡ (公簿)
駐車場
空有 (1 台) 無料
築年月
1994 年 8 月(築 32 年)
住所
埼玉県越谷市大間野町5丁目 地図を見る
交通

東武伊勢崎・大師線 蒲生駅/徒歩27分

--

--

総戸数
1 戸
主要採光面
建物構造
木造 / 2 階建
接道状況
一方 ( 南 4.0m 公道 )
セットバック
私道負担面積
--
都市計画
市街化区域
地目
宅地
用途地域
第一種低層住居専用地域
地勢
平坦
建ぺい率
60%
容積率
100%
土地権利
所有権
国土法届出
不要
借地料
--
借地期間
--
引渡し
相談
取引態様
仲介
その他費用
--
その他条件
南向き
備考
マイホーム探しはウッディホームにご相談ください! ・自己資金0からの住宅購入できます。 ・他社様でご紹介されている物件も一緒にご提案できます。 ・新規物件・価格変更の情報がとてもスピーディーです。 ・インターネット非公開の物件もご紹介可能です。 ・ご希望の方にはメールでのやりとりでもご対応致します。 ・現地待合せ&現地解散できます。 ・住宅ローンアドバイザーが銀行手続きをお手伝い致します。
周辺施設
【小学校】越谷市立大間野小学校 1,300m
【中学校】越谷市立武蔵野中学校 1,100m
【コンビニ】コンビニ 514m
【スーパー】スーパー 1,032m
【総合病院】総合病院 689m
【公園】公園 1,249m
【ドラッグストア】ドラッグストア 638m
【商店街】商店街 531m
【その他】清門幼稚園 721m
物件番号
311002374210
自社管理番号
1471650002950
建築確認番号
--
登録日
2026/01/13
有効期限
2026/05/05

※情報提供元:LIFULL HOME'S

会社情報

取り扱い不動産会社

株式会社ウッディホーム
住所
埼玉県越谷市蒲生西町1丁目8-60-1 
営業時間など
営業時間/ 9:00~19:00
定休日/毎週水曜 年末年始
免許番号
埼玉県知事(01)第24764号
所属団体
(公社)首都圏不動産公正取引協議会、(公社)埼玉県宅地建物取引業協会、(公財)東日本不動産流通機構
保証協会
(公社)全国宅地建物取引業保証協会

物件に関するお問い合わせ

必須
必須
必須

※携帯電話でドメイン指定受信を利用している場合は、「chintaistyle.jp」「e-woodyhome.com」を解除してください。

あなたにぴったりの物件情報などをお届けします。

確認ページへ進む

最近見た物件と比較

閲覧中
外観:311002374210

越谷市大間野町5丁目 中古一戸建て

3,299万円

5SLDK

建物
140.70㎡ (壁芯)

土地
150.59㎡ (公簿)

築32年

越谷市大間野町5丁目

東武伊勢崎・大師線 蒲生駅/徒歩27分

資料請求する

外観:328000632179

中古戸建 たつの市龍野町大手

2,680万円

10SLDK

建物
302.47㎡

土地
289.90㎡

築29年

たつの市龍野町大手

山陽本線 竜野駅/徒歩17分

詳細を見る

NO IMAGE

町田市木曽東3丁目 戸建て

3,680万円

4LDK

建物
92.47㎡

土地
117.78㎡ (公簿)

築22年

町田市木曽東3丁目

横浜線 古淵駅/徒歩12分

詳細を見る

外観:327002297468

大阪市鶴見区安田3丁目 中古戸建

2,998万円

3LDK

建物
92.94㎡

土地
53.25㎡ (公簿)

築23年

大阪市鶴見区安田3丁目

Osaka Metro長堀鶴見緑地 横堤駅/徒歩18分

詳細を見る

外観:328000629842

大津区恵美酒町1丁目 中古戸建

2,880万円

4LDK

建物
99.36㎡

土地
182.29㎡ (公簿)

築13年

姫路市大津区恵美酒町1丁目

山陽電気鉄道網干線 山陽天満駅/徒歩13分

詳細を見る

NO IMAGE

春日部市緑町 中古戸建

1,550万円

4DK

建物
72.03㎡

土地
93.00㎡ (公簿)

築51年

春日部市緑町

東武伊勢崎・大師線 春日部駅/徒歩5分

詳細を見る

外観:311002376008

草加市瀬崎5丁目 中古戸建

3,599万円

4LDK

建物
89.42㎡

土地
103.12㎡ (公簿)

築11年

草加市瀬崎5丁目

東武伊勢崎・大師線 谷塚駅/徒歩20分

詳細を見る

外観:310000088850

HMH高崎市下豊岡町1期 中古戸建

699万円

3DK

建物
67.07㎡

土地
114.34㎡

築48年

高崎市下豊岡町

信越本線 北高崎駅/徒歩29分

詳細を見る

外観:308000176915

水戸市千波町の中古一戸建て住宅 一軒家

2,299万円

4SLDK

建物
114.67㎡

土地
314.79㎡ (公簿)

築43年

水戸市千波町

鹿島臨海鉄道 水戸駅/徒歩26分

詳細を見る

外観:311002372405

川口市西川口5丁目

5,280万円

3SLDK

建物
101.51㎡

土地
88.65㎡ (実測)

築9年

川口市西川口5丁目

京浜東北・根岸線 西川口駅/徒歩15分

詳細を見る

外観:305000007998

蛇の崎町 2階建

80万円

7LDK

建物
172.23㎡

土地
185.68㎡ (公簿)

築47年

横手市蛇の崎町

奥羽本線 横手駅/徒歩21分

詳細を見る

NO IMAGE

茨木市山手台4丁目 テラスハウス

1,780万円

3LDK

建物
69.63㎡ (内法)

土地
116.90㎡ (公簿)

築48年

茨木市山手台4丁目

阪急電鉄京都線 茨木市駅/バス 25分/幼稚園前(大阪府) 徒歩4分

詳細を見る

外観:327002310927

松原市阿保 中古戸建

4,480万円

6SLDK

建物
146.50㎡

土地
193.35㎡ (公簿)

築17年

松原市阿保7丁目

近鉄南大阪線 河内松原駅/徒歩10分

詳細を見る

外観:327002289364

守口市大久保町1丁目

2,500万円

7LDK

建物
234.99㎡ (壁芯)

土地
111.47㎡ (公簿)

築37年

守口市大久保町1丁目

京阪電気鉄道京阪線 古川橋駅/徒歩22分

詳細を見る

外観:327002300759

新家西町_中古戸建_長田駅

2,799万円

3LDK

建物
89.13㎡

土地
80.42㎡ (公簿)

築26年

東大阪市新家西町

近鉄けいはんな線 長田駅/徒歩10分

詳細を見る

外観:328000631412

尼崎市杭瀬北新町 中古戸建

3,399万円

3LDK

建物
90.30㎡ (壁芯)

土地
59.87㎡ (公簿)

築5年

尼崎市杭瀬北新町3丁目

阪神電鉄本線 杭瀬駅/徒歩10分

詳細を見る

近くの類似おすすめ物件

埼玉県越谷市の新着物件情報

現在00件保存されています。

残り00件追加することができます。

お気に入り物件一覧を見る

間隔を空けてお試しください。

検討した人が1人います