川越市むさし野南 中古戸建|南大塚駅から徒歩18分|川越市(埼玉県)の空き家・中古住宅・中古一戸建て

2024年6月築!お洒落な洋風モダンなデザインの邸宅です。

2024年6月築!お洒落な洋風モダンなデザインの邸宅です。

4,380万円

月々の支払い目安:--

ローン詳細

\ 人気物件は決まるのが早い!まずはお問合せを /

メールアイコン 物件の資料をもらう 3項目のみ入力すればOK 無料

掲載終了まであと6

所在地・交通

埼玉県川越市むさし野南

西武鉄道新宿線 南大塚駅/徒歩18分

地図を見る

POINT

■2024年6月築 ■玄関吹抜 ■南道路面、陽当たり良好 ■全居室南向き ■ 独立洗面台&ランドリールーム ■1階大理石調フロア ■キッチンパントリー ■デザイン性の高いアイアン手摺 ■リビング階段

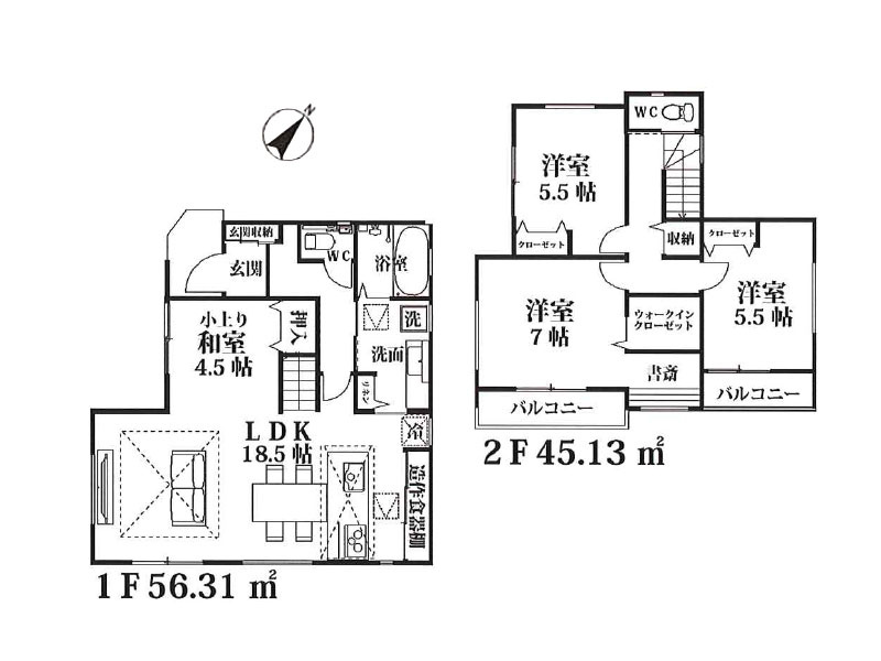
間取り
3LDK
建物面積
106.72 ㎡
築年月
2024 年6 月(築2 年)
土地権利
所有権
駐車場
空有 無料 カースペース
現況
居住中
実際に見学したい

株式会社住協 川越支店

当店は、一人一人に丁寧で誠実なご対応をするカスタマーファーストな気持ちを大切にしている不動産会社です。不動産購入・売却に関する不安点を全力でサポートさせていただきます。

会社情報

この物件について

こちらの物件は西武鉄道新宿線を南大塚駅で下車し、徒歩18分の場所に位置しています。浴室には乾燥機が付いているので雨の日に洗濯物を干せるだけでなく入浴後の浴室の乾燥にも使え、掃除がしやすく夏場の調理も室温が高くなり過ぎないIHコンロ対応物件です。また、見知らぬ訪問者への対応も安心なモニター付きドアホンが付いております。周辺710m圏内(徒歩9分)にはコンビニもあります。

※「この物件について」に記載の情報は、登録情報をもとに当サイトが掲載するものであり、不動産物件情報を掲載している不動産事業者が掲載するものではありません。

内観・外観

間取り図

間取り図 拡大

3LDK

建物面積
106.72 ㎡
土地面積
154.82 ㎡ (実測)
建物構造
木造 / 2 階建

写真

\ 人気物件は決まるのが早い!まずはお問合せを /

メールアイコン 物件の資料をもらう 3項目のみ入力すればOK 無料

掲載終了まであと6

この物件を共有・保存する

設備

主な設備

キッチン
  • システムキッチン

    システム
    キッチン

  • カウンターキッチン

    カウンター
    キッチン

  • IHコンロ

    IHコンロ

  • ガスコンロ

    ガスコンロ

バス・トイレ
  • 追い焚き

    追い焚き

  • 浴室乾燥機

    浴室乾燥機

  • シャワー付洗面化粧台

    シャワー付
    洗面化粧台

  • 洗浄便座

    洗浄便座

室内設備
  • ウォークインクローゼット

    ウォークイン
    クローゼット

  • 全居室収納

    全居室収納

  • TVモニタ付ドアホン

    TVモニタ付
    ドアホン

  • 床暖房

    床暖房

特徴
  • オール電化

    オール電化

  • バリアフリー

    バリアフリー

  • 南向き

    南向き

  • 駐車場付

    駐車場付

その他設備

公営水道、都市ガス、IHコンロ、システムキッチン、バルコニー、フローリング、TVドアホン、温水洗浄便座、浴室乾燥機、洗面所独立、浴室サイズ1坪以上(1.6×1.6m相当)、クローゼット、下駄箱、オートバス、パントリー、トイレ2ヶ所以上、全室フローリング

設備情報について質問する

\ 人気物件は決まるのが早い!まずはお問合せを /

メールアイコン 物件の資料をもらう 3項目のみ入力すればOK 無料

掲載終了まであと6

この物件を共有・保存する

周辺情報

周辺の歯医者

読込中

周辺の医療機関

読込中

周辺の駅

読込中

周辺の銀行

読込中

周辺のパン屋

読込中

その他の周辺施設を探す
学区や周辺について質問したい

周辺の生活情報

ハザード情報

物件周辺の土砂、浸水、津波、
地震の情報を地図で確認できます。

ハザードマップを確認する

※周辺情報は「 出典一覧(施設情報) 」のデータを元に当サイトが独自の方法で抽出し掲載しているものです。不動産物件情報を提供している不動産事業者が掲載するものでありません。
※周辺情報は移転や閉鎖等により情報が最新ではない、正しくない場合があります。詳しくは不動産会社にお問い合わせのうえ、ご確認をお願い致します。

\ 人気物件は決まるのが早い!まずはお問合せを /

メールアイコン 物件の資料をもらう 3項目のみ入力すればOK 無料

掲載終了まであと6

この物件を共有・保存する

物件概要

価格
4,380 万円

--

ローン詳細
間取り
3LDK
建物面積
106.72 ㎡
土地面積
154.82 ㎡ (実測)
駐車場
空有 無料 カースペース
築年月
2024 年 6 月(築 2 年)
住所
埼玉県川越市むさし野南 地図を見る
交通

西武鉄道新宿線 南大塚駅/徒歩18分

--

--

総戸数
--
主要採光面
建物構造
木造 / 2 階建
接道状況
一方 ( 南 4.2m 公道 )
私道負担面積
--
都市計画
--
地目
宅地
用途地域
第一種中高層住居専用地域
地勢
--
建ぺい率
60%
容積率
168%
土地権利
所有権
国土法届出
不要
借地料
--
借地期間
--
引渡し
相談
取引態様
仲介
その他費用
--
その他条件
南向き
備考
--
周辺施設
【小学校】武蔵野小学校 725m
【中学校】川越市立大東中学校 1,860m
【コンビニ】コンビニ 710m
【スーパー】スーパー 720m
【公園】公園 40m
【ドラッグストア】ドラッグストア 740m
【その他】おおぞら保育園 860m
物件番号
311002368284
自社管理番号
1074860004986
建築確認番号
--
登録日
2026/04/12
有効期限
2026/05/04

※情報提供元:LIFULL HOME'S

会社情報

取り扱い不動産会社

株式会社住協 川越支店
住所
埼玉県川越市新宿町1丁目16-6 
営業時間など
営業時間/ 9:30~20:00
定休日/年末年始
免許番号
国土交通大臣(5)第6956号
所属団体
(公社)首都圏不動産公正取引協議会、(一社)全国住宅産業協会、(公社)埼玉県宅地建物取引業協会
保証協会
(公社)全国宅地建物取引業保証協会

物件に関するお問い合わせ

必須
必須
必須

※携帯電話でドメイン指定受信を利用している場合は、「chintaistyle.jp」「jyukyo.com」を解除してください。

あなたにぴったりの物件情報などをお届けします。

確認ページへ進む

最近見た物件と比較

閲覧中
外観:311002368284

川越市むさし野南 中古戸建

4,380万円

3LDK

建物
106.72㎡

土地
154.82㎡ (実測)

築2年

川越市むさし野南

西武鉄道新宿線 南大塚駅/徒歩18分

資料請求する

NO IMAGE

所沢市大字上安松 中古戸建

3,197万円

4LDK

建物
92.73㎡

土地
185.95㎡

築43年

所沢市大字上安松

西武池袋・豊島線 秋津駅/徒歩18分

詳細を見る

NO IMAGE

寝屋川市国松町 2階建 71.68㎡

865万円

4LDK

建物
71.68㎡

土地
79.32㎡ (公簿)

築41年

寝屋川市国松町

京阪電気鉄道京阪線 寝屋川市駅/徒歩23分

詳細を見る

近くの類似おすすめ物件

埼玉県川越市の新着物件情報

現在00件保存されています。

残り00件追加することができます。

お気に入り物件一覧を見る

間隔を空けてお試しください。