山県郡北広島町(広島県)の1,000万円以下の中古住宅・中古一戸建ての購入情報

山県郡北広島町(広島県)の1,000万円以下の物件を集めました。憧れの古民家、憧れのマイホームがお手軽価格で手に入るかも?1,000万円以下の中古住宅・中古一戸建てを探してみましょう。

4

↓ チェックした物件をまとめてお問い合わせ

外観:334000225580
中古戸建て 空家
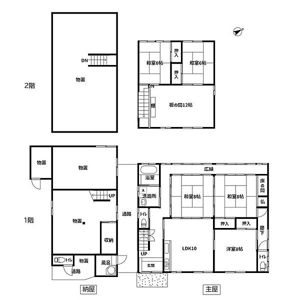
間取り:334000225580
  • 849万円
  • 広島県山県郡北広島町後有田
  • 可部線 可部駅/徒歩338分
  • 4SLDK/築35 年
  • 102.92㎡(建物)
  • 142.19㎡(土地)

【見学会開催】【即入居可能】 外壁塗装を行い、明るいおうちに生まれ変わりました。水廻り新品交換しました。お気軽にお問合せください。

  • 駐車場有
  • システム
    キッチン
  • 追焚機能
  • 所有権
  • 低層住宅地
  • 南向き
  • 小学校
    800m以内
  • スーパー
    800m以内
株式会社カチタス 三次店

当社はニトリと業務・資本提携を結ぶ、東証プライム上場企業です。物件を知り尽くしたプロが中古物件を買い取り、細部までチェックし、自社規格に沿って丁寧にリフォームしているので、ご購入後も安心が続きます。

その他の情報

外観:334000201380
中古戸建て 空家
NO IMAGE
  • 850万円
  • 広島県山県郡北広島町壬生
  • バス 壬生まで徒歩1分
  • 11SDK/築65 年
  • 110.74㎡(建物)
  • 735.79㎡(土地)

土地広々222坪 生活利便性の良い平坦地 店舗、居宅、倉庫、物置のおすすめ物件です!内覧できます!

  • 駐車場有
  • システム
    キッチン
  • 追焚機能
  • 所有権
  • 低層住宅地
  • 南向き
  • 小学校
    800m以内
  • スーパー
    800m以内
トータテ住宅販売株式会社 北営業所

掲載は一部です!約9000件の新鮮な物件情報からお客様のご希望の物件を選んでいただけます!年間約1200件の売買実績をもとに各提携機関の特別金利や割引制度にアフターフォローまでお任せください。

その他の情報

外観:334000230543
中古戸建て 空家
間取り:334000230543
  • 550万円
  • 広島県山県郡北広島町川西
  • 可部線 可部駅/バス 32分/可部千代田線千代田病院前 徒歩1分
  • 6LDK/築55 年
  • 160.47㎡(建物)
  • 767.49㎡(土地)

広縁からの眺めが心地いいリバービューの家。シャッター付ガレージでバイク乗りの方にもおすすめです!

  • 駐車場有
  • システム
    キッチン
  • 追焚機能
  • 所有権
  • 低層住宅地
  • 南向き
  • 小学校
    800m以内
  • スーパー
    800m以内
トータスエステート (北広島トーヨー住器株式会社)

女性スタッフのきめ細やかな対応で、きっとお客様に満足いただけます。どうぞお気軽にご相談ください

その他の情報

1ページ目(1ページ中)
この条件で新着メールを受取る
この検索条件を保存する
追加が完了しました。

現在00件保存されています。(最大5件)

保存した条件一覧を見る

現在00件保存されています。

残り00件追加することができます。

お気に入り物件一覧を見る

間隔を空けてお試しください。

問合せが未完了の物件

エリアを変更 条件を変更
チェックした物件をまとめて 資料請求(無料) お気に入りに追加