札幌市白石区(北海道)の即入居可能の中古住宅・中古一戸建ての購入情報

札幌市白石区(北海道)の即入居可能な物件を集めました。1日でも早く入居したい方は、即時引渡しが可能な物件がオススメです。

2

↓ チェックした物件をまとめてお問い合わせ

外観:301000100703
中古戸建て 空家
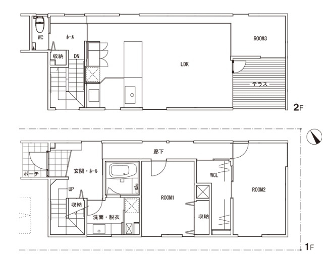
間取り:301000100703
  • 4,990万円
  • 北海道札幌市白石区南郷通5丁目北
  • 札幌市営地下鉄東西線 南郷7丁目駅/徒歩6分
  • 2SLDK/築4 年
  • 105.81㎡(建物)
  • 110.19㎡(土地)

令和4年2月完成の未入居!ホーム企画センター施工の分譲建売住宅! 地下鉄駅徒歩6分の好立地!建築家のこだわりが見える、機能とデザインと利便性を重視した、都市型住宅!

  • 駐車場有
  • システム
    キッチン
  • 追焚機能
  • 所有権
  • 低層住宅地
  • 南向き
  • 小学校
    800m以内
  • スーパー
    800m以内
エスケイ不動産流通株式会社

当社では売買仲介業務をメインにお客様の立場に立った対応を心がけております。思い出の詰まった大切な不動産の売却や一生に1度か2度しかない不動産の購入は是非当社へお任せください!

その他の情報

外観:301000083739
中古戸建て 空家
間取り:301000083739
  • 2,999万円
  • 北海道札幌市白石区北郷七条9丁目
  • 札幌市営地下鉄東西線 白石駅/徒歩28分
  • 4LDK/築44 年
  • 95.45㎡(建物)
  • 277.01㎡(土地)

【見学会開催】【リフォーム済 年度内入居可能】 セキスイハイム様施工物件、北側、西側に面してる角地で土地83坪、駐車並列3~4台可能で嬉しいアスファルト舗装、1階2部屋、2階2部屋の4LDK住宅です

  • 駐車場有
  • システム
    キッチン
  • 追焚機能
  • 所有権
  • 低層住宅地
  • 南向き
  • 小学校
    800m以内
  • スーパー
    800m以内
株式会社カチタス 札幌(北エリア)店

当社はニトリと業務・資本提携を結ぶ、東証プライム上場企業です。物件を知り尽くしたプロが中古物件を買い取り、細部までチェックし、自社規格に沿って丁寧にリフォームしているので、ご購入後も安心が続きます。

その他の情報

1ページ目(1ページ中)
この条件で新着メールを受取る
この検索条件を保存する
追加が完了しました。

現在00件保存されています。(最大5件)

保存した条件一覧を見る

現在00件保存されています。

残り00件追加することができます。

お気に入り物件一覧を見る

間隔を空けてお試しください。

問合せが未完了の物件

エリアを変更 条件を変更
チェックした物件をまとめて 資料請求(無料) お気に入りに追加