ゆめタウン遠賀(遠賀町)近くの中古住宅・中古一戸建ての購入情報

ゆめタウン遠賀(遠賀町)近くの中古住宅・中古一戸建ての購入情報をご覧いただけます。

30

↓ チェックした物件をまとめてお問い合わせ

外観:340000246919
中古戸建て 空家

ゆめタウン遠賀まで約1405m

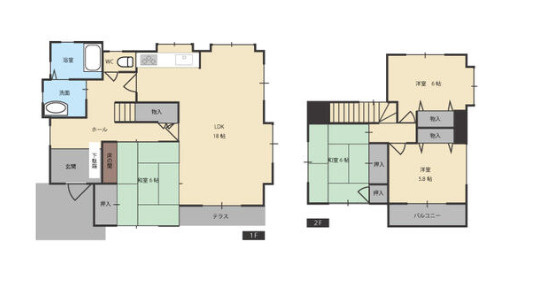
間取り:340000246919
  • 2,100万円
  • 福岡県遠賀郡遠賀町大字木守
  • 鹿児島本線 遠賀川駅/徒歩20分
  • 4LDK/築7 年
  • 106.02㎡(建物)
  • 189.81㎡(土地)

令和元年築の4LDK二階建て物件です!

  • 駐車場有
  • システム
    キッチン
  • 追焚機能
  • 所有権
  • 低層住宅地
  • 南向き
  • 小学校
    800m以内
  • スーパー
    800m以内
リノベ不動産 株式会社MyHomeReno

その他の情報

外観:340000271922
中古戸建て

ゆめタウン遠賀まで約1486m

間取り:340000271922
  • 1,598万円
  • 福岡県遠賀郡遠賀町大字木守
  • 鹿児島本線 遠賀川駅/徒歩22分
  • 3LDK/築23 年
  • 87.26㎡(建物)
  • 222.58㎡(土地)

【駐車場2台分】3LDK平屋住宅♪オール電化♪太陽光発電システム♪コンビニまで徒歩約4分で便利♪

  • 駐車場有
  • システム
    キッチン
  • 追焚機能
  • 所有権
  • 低層住宅地
  • 南向き
  • 小学校
    800m以内
  • スーパー
    800m以内
ハウスドゥ 八幡西 グリーンシップ株式会社

不動産を売るなら買うなら。売買専門店のハウスドゥにお任せください!エリア最大級の店内には見やすい物件パネルやリフォーム設備を展示♪キッズスペースも充実しており、ご家族で快適なお家探しができます♪

その他の情報

外観:340000271577
中古戸建て 空家

ゆめタウン遠賀まで約1549m

間取り:340000271577
  • 1,630万円
  • 福岡県遠賀郡遠賀町田園3丁目
  • 鹿児島本線 遠賀川駅/徒歩51分
  • 4LDK/築39 年
  • 104.75㎡(建物)
  • 215.54㎡(土地)

【2面採光】遠賀郡遠賀町田園の中古戸建♪島門小・遠賀中学校♪IHクッキングヒーター♪ディンプルキー♪

  • 駐車場有
  • システム
    キッチン
  • 追焚機能
  • 所有権
  • 低層住宅地
  • 南向き
  • 小学校
    800m以内
  • スーパー
    800m以内
ハウスドゥ 八幡西 グリーンシップ株式会社

不動産を売るなら買うなら。売買専門店のハウスドゥにお任せください!エリア最大級の店内には見やすい物件パネルやリフォーム設備を展示♪キッズスペースも充実しており、ご家族で快適なお家探しができます♪

その他の情報

外観:340000272440
中古戸建て 空家

ゆめタウン遠賀まで約2597m

間取り:340000272440
  • 2,298万円
  • 福岡県遠賀郡水巻町梅ノ木団地
  • 鹿児島本線 水巻駅/徒歩33分
  • 4LDK/築36 年
  • 109.30㎡(建物)
  • 205.59㎡(土地)

【角地】モニター付きインターホン♪シャンプードレッサー♪エアコン2台♪トイレ2ヶ所♪ルーフバルコニー

  • 駐車場有
  • システム
    キッチン
  • 追焚機能
  • 所有権
  • 低層住宅地
  • 南向き
  • 小学校
    800m以内
  • スーパー
    800m以内
ハウスドゥ 八幡西 グリーンシップ株式会社

不動産を売るなら買うなら。売買専門店のハウスドゥにお任せください!エリア最大級の店内には見やすい物件パネルやリフォーム設備を展示♪キッズスペースも充実しており、ご家族で快適なお家探しができます♪

その他の情報

外観:340000276282
中古戸建て 空家

ゆめタウン遠賀まで約2209m

間取り:340000276282
  • 150万円
  • 福岡県遠賀郡遠賀町大字別府
  • 鹿児島本線 海老津駅/徒歩42分
  • 5DK/築48 年
  • 102.12㎡(建物)
  • 268.14㎡(土地)

自然豊かで喧騒のない静かな場所です!気になる方はお気軽にお問合せください♪

  • 駐車場有
  • システム
    キッチン
  • 追焚機能
  • 所有権
  • 低層住宅地
  • 南向き
  • 小学校
    800m以内
  • スーパー
    800m以内
株式会社エステートプラン

北九州市・中間近郊のエリアを中心に活動している売買専門店!豊富な知識と情報量で、お客様一人一人に合ったご提案をさせていただきます。不動産のことならエステートプランにお任せください!

その他の情報

外観:340000279461
中古戸建て 空家
間取り:340000279461
  • 3,498万円
  • 福岡県遠賀郡遠賀町広渡1丁目
  • 鹿児島本線 遠賀川駅/徒歩13分
  • 3SLDK/築3 年
  • 83.32㎡(建物)
  • 226.66㎡(土地)

新日本ホームズ施工のお洒落な平屋建てオール電化住宅、2023年築の築後未入居物件!敷地広々約68坪で並列2台分の駐車場+庭付き!道路幅広い角地で陽当り良好+開放的!小学校徒歩4分♪ゆめタウン徒歩7分♪

  • 駐車場有
  • システム
    キッチン
  • 追焚機能
  • 所有権
  • 低層住宅地
  • 南向き
  • 小学校
    800m以内
  • スーパー
    800m以内
株式会社情報サービス福岡

当社は福岡県全域にわたる豊富な物件資料で、お客様にご満足いただけるよう親身になって物件をお探しいたします。お客様のご要望を満たすよう、より良いご提案を心掛けております。

その他の情報

外観:340000277593
中古戸建て 空家

【近い!】 ゆめタウン遠賀まで約230m

間取り:340000277593
  • 3,290万円
  • 福岡県遠賀郡遠賀町松の本2丁目
  • 鹿児島本線 遠賀川駅/徒歩16分
  • 4LDK/築2 年
  • 110.05㎡(建物)
  • 199.39㎡(土地)

●2025年3月完成の戸建●カースペース並列3台駐車可能です●全居室は6帖以上と嬉しい広さ

  • 駐車場有
  • システム
    キッチン
  • 追焚機能
  • 所有権
  • 低層住宅地
  • 南向き
  • 小学校
    800m以内
  • スーパー
    800m以内
株式会社アンサー倶楽部 本店

売買・賃貸・管理・資産活用・相続遺言など不動産のことならアンサー倶楽部へお任せください!!、総合不動産業としてお客様の夢を叶えます!!売却やリフォームもアンサー倶楽部ならご相談可能です!

その他の情報

外観:340000212492
中古戸建て 空家

ゆめタウン遠賀まで約2901m

間取り:340000212492
  • 3,980万円
  • 福岡県遠賀郡岡垣町山田峠3丁目
  • 鹿児島本線 海老津駅/徒歩33分
  • 5LDK/築3 年
  • 113.44㎡(建物)
  • 263.67㎡(土地)

●2024年3月完成の戸建●カースペースは車種によって並列3台まで駐車が可能です

  • 駐車場有
  • システム
    キッチン
  • 追焚機能
  • 所有権
  • 低層住宅地
  • 南向き
  • 小学校
    800m以内
  • スーパー
    800m以内
株式会社アンサー倶楽部 本店

売買・賃貸・管理・資産活用・相続遺言など不動産のことならアンサー倶楽部へお任せください!!、総合不動産業としてお客様の夢を叶えます!!売却やリフォームもアンサー倶楽部ならご相談可能です!

その他の情報

外観:340000245388
中古戸建て 空家

ゆめタウン遠賀まで約1951m

間取り:340000245388
  • 2,100万円
  • 福岡県遠賀郡遠賀町大字木守
  • 鹿児島本線 遠賀川駅/徒歩19分
  • 4LDK/築7 年
  • 106.02㎡(建物)
  • 189.81㎡(土地)

■ゆとりのある空間です!

  • 駐車場有
  • システム
    キッチン
  • 追焚機能
  • 所有権
  • 低層住宅地
  • 南向き
  • 小学校
    800m以内
  • スーパー
    800m以内
Nikkori House株式会社

1.お客様の為に情熱・熱意・笑顔を持って物件をご紹介致します!2.住宅ローンのご紹介が得意です!ご年収が少なめの方(150~)ローン審査で減額回答や承認が下りなかった方等何でもご相談下さい

その他の情報

外観:340000273850
中古戸建て 空家

ゆめタウン遠賀まで約2849m

間取り:340000273850
  • 1,799万円
  • 福岡県遠賀郡水巻町高尾
  • 鹿児島本線 水巻駅/バス 高尾 徒歩2分
  • 3LDK/築47 年
  • 81.97㎡(建物)
  • 207.95㎡(土地)

【見学会開催】 内外装リフォーム予定/ミサワホーム施工/耐震工事/水回り交換/前面道路幅員約6m/

  • 駐車場有
  • システム
    キッチン
  • 追焚機能
  • 所有権
  • 低層住宅地
  • 南向き
  • 小学校
    800m以内
  • スーパー
    800m以内
株式会社カチタス 北九州店

当社はニトリと業務・資本提携を結ぶ、東証プライム上場企業です。物件を知り尽くしたプロが中古物件を買い取り、細部までチェックし、自社規格に沿って丁寧にリフォームしているので、ご購入後も安心が続きます。

その他の情報

外観:340000273183
中古戸建て

ゆめタウン遠賀まで約2309m

間取り:340000273183
  • 2,680万円
  • 福岡県遠賀郡水巻町頃末北2丁目
  • 鹿児島本線 水巻駅/徒歩7分
  • 4LDK/築11 年
  • 94.39㎡(建物)
  • 168.27㎡(土地)

築8年のオール電化住宅!駐車場は車種によって4~5台可能です。

  • 駐車場有
  • システム
    キッチン
  • 追焚機能
  • 所有権
  • 低層住宅地
  • 南向き
  • 小学校
    800m以内
  • スーパー
    800m以内
Nikkori House株式会社

1.お客様の為に情熱・熱意・笑顔を持って物件をご紹介致します!2.住宅ローンのご紹介が得意です!ご年収が少なめの方(150~)ローン審査で減額回答や承認が下りなかった方等何でもご相談下さい

その他の情報

外観:340000248382
中古戸建て 空家
間取り:340000248382
  • 1,380万円
  • 福岡県遠賀郡遠賀町田園3丁目
  • 鹿児島本線 遠賀川駅/バス 10分/田園2 徒歩2分
  • 4LDK/築39 年
  • 113.08㎡(建物)
  • 244.96㎡(土地)

■閑静な住宅街、道路幅の広い角地!敷地広々約75坪で駐車2台可!「トライアル」1kmで買い物便利♪

  • 駐車場有
  • システム
    キッチン
  • 追焚機能
  • 所有権
  • 低層住宅地
  • 南向き
  • 小学校
    800m以内
  • スーパー
    800m以内
株式会社情報サービス福岡

当社は福岡県全域にわたる豊富な物件資料で、お客様にご満足いただけるよう親身になって物件をお探しいたします。お客様のご要望を満たすよう、より良いご提案を心掛けております。

その他の情報

外観:340000272568
中古戸建て 空家

ゆめタウン遠賀まで約1726m

間取り:340000272568
  • 1,290万円
  • 福岡県遠賀郡遠賀町大字木守
  • 鹿児島本線 遠賀川駅/徒歩23分
  • 4LDK/築35 年
  • 160.25㎡(建物)
  • 321.00㎡(土地)

駐車場4台可能♪事務所としても使えるお部屋付の広々4LDK+倉庫で使い方自由自在♪

  • 駐車場有
  • システム
    キッチン
  • 追焚機能
  • 所有権
  • 低層住宅地
  • 南向き
  • 小学校
    800m以内
  • スーパー
    800m以内
センチュリー21よしなが企画

センチュリー21よしなが企画は、北九州市八幡西区を中心として、地域に密着した不動産売買仲介業務を中心に総合的に不動産業務を行っております。お客様と共に、物・心を豊かに幸せを生み出す会社です。

その他の情報

外観:340000254337
中古戸建て 空家

ゆめタウン遠賀まで約1551m

間取り:340000254337
  • 1,630万円
  • 福岡県遠賀郡遠賀町田園3丁目
  • 鹿児島本線 遠賀川駅/徒歩37分
  • 4LDK/築39 年
  • 104.75㎡(建物)
  • 215.54㎡(土地)

■広々リビングです!

  • 駐車場有
  • システム
    キッチン
  • 追焚機能
  • 所有権
  • 低層住宅地
  • 南向き
  • 小学校
    800m以内
  • スーパー
    800m以内
Nikkori House株式会社

1.お客様の為に情熱・熱意・笑顔を持って物件をご紹介致します!2.住宅ローンのご紹介が得意です!ご年収が少なめの方(150~)ローン審査で減額回答や承認が下りなかった方等何でもご相談下さい

その他の情報

外観:340000253734
中古戸建て 空家

ゆめタウン遠賀まで約1541m

間取り:340000253734
  • 1,630万円
  • 福岡県遠賀郡遠賀町田園3丁目
  • 鹿児島本線 遠賀川駅/徒歩37分
  • 4LDK/築39 年
  • 104.75㎡(建物)
  • 215.54㎡(土地)

●2025年9月内装リフォーム完成●カースペースは並列3台駐車可能です

  • 駐車場有
  • システム
    キッチン
  • 追焚機能
  • 所有権
  • 低層住宅地
  • 南向き
  • 小学校
    800m以内
  • スーパー
    800m以内
株式会社アンサー倶楽部 本店

売買・賃貸・管理・資産活用・相続遺言など不動産のことならアンサー倶楽部へお任せください!!、総合不動産業としてお客様の夢を叶えます!!売却やリフォームもアンサー倶楽部ならご相談可能です!

その他の情報

外観:340000273810
中古戸建て 空家

ゆめタウン遠賀まで約1762m

間取り:340000273810
  • 1,899万円
  • 福岡県遠賀郡遠賀町田園2丁目
  • 鹿児島本線 遠賀川駅/徒歩37分
  • 4LDK/築36 年
  • 111.59㎡(建物)
  • 227.96㎡(土地)

リフォーム完了しました(^^)/ 平成3年建築の広々4LDK2階建て♪ 現地見学受付中です!! お気軽にお問い合わせください(^^)/

  • 駐車場有
  • システム
    キッチン
  • 追焚機能
  • 所有権
  • 低層住宅地
  • 南向き
  • 小学校
    800m以内
  • スーパー
    800m以内
ケイアイエポックメイキング株式会社 小倉店

九州エリアの空家買取はケイアイエポックメイキング株式会社にお任せください♪プライム上場企業のネットワークを使い最適な売却方法のご提案をさせて頂きます♪

その他の情報

外観:340000257765
中古戸建て 空家

ゆめタウン遠賀まで約1885m

間取り:340000257765
  • 1,899万円
  • 福岡県遠賀郡水巻町下二西1丁目
  • 鹿児島本線 水巻駅/徒歩11分
  • 4DK/築38 年
  • 108.11㎡(建物)
  • 204.56㎡(土地)

リフォーム完了しました!! 昭和63年建築の4DK、2階建て(^^)/ 現地見学可能です♪ 是非お気軽にお問い合わせください!!!

  • 駐車場有
  • システム
    キッチン
  • 追焚機能
  • 所有権
  • 低層住宅地
  • 南向き
  • 小学校
    800m以内
  • スーパー
    800m以内
ケイアイエポックメイキング株式会社 小倉店

九州エリアの空家買取はケイアイエポックメイキング株式会社にお任せください♪プライム上場企業のネットワークを使い最適な売却方法のご提案をさせて頂きます♪

その他の情報

外観:340000234353
中古戸建て 空家

ゆめタウン遠賀まで約2073m

間取り:340000234353
  • 3,500万円
  • 福岡県遠賀郡水巻町古賀3丁目
  • 鹿児島本線 水巻駅/徒歩25分
  • 4LDK/築27 年
  • 156.90㎡(建物)
  • 744.00㎡(土地)

●駐車場1台可能●閑静な住宅街にある落ち着いた住環境

  • 駐車場有
  • システム
    キッチン
  • 追焚機能
  • 所有権
  • 低層住宅地
  • 南向き
  • 小学校
    800m以内
  • スーパー
    800m以内
株式会社アンサー倶楽部 本店

売買・賃貸・管理・資産活用・相続遺言など不動産のことならアンサー倶楽部へお任せください!!、総合不動産業としてお客様の夢を叶えます!!売却やリフォームもアンサー倶楽部ならご相談可能です!

その他の情報

NO IMAGE
中古戸建て 空家

ゆめタウン遠賀まで約2039m

間取り:340000277884
  • 1,598万円
  • 福岡県遠賀郡遠賀町浅木1丁目
  • 鹿児島本線 遠賀川駅/徒歩28分
  • 4LDK/築50 年
  • 106.34㎡(建物)
  • 220.49㎡(土地)

令和8年4月リフォーム完了予定♪新築気分で新生活をスタートできます♪車種により駐車場並列4台可能♪

  • 駐車場有
  • システム
    キッチン
  • 追焚機能
  • 所有権
  • 低層住宅地
  • 南向き
  • 小学校
    800m以内
  • スーパー
    800m以内
センチュリー21よしなが企画

センチュリー21よしなが企画は、北九州市八幡西区を中心として、地域に密着した不動産売買仲介業務を中心に総合的に不動産業務を行っております。お客様と共に、物・心を豊かに幸せを生み出す会社です。

その他の情報

外観:340000263055
中古戸建て 空家

ゆめタウン遠賀まで約1571m

間取り:340000263055
  • 1,380万円
  • 福岡県遠賀郡遠賀町田園3丁目
  • 鹿児島本線 遠賀川駅/徒歩36分
  • 4LDK/築39 年
  • 113.08㎡(建物)
  • 244.96㎡(土地)

●カーポート2台完備!●オール電化住宅●キッチンは独立タイプです

  • 駐車場有
  • システム
    キッチン
  • 追焚機能
  • 所有権
  • 低層住宅地
  • 南向き
  • 小学校
    800m以内
  • スーパー
    800m以内
株式会社アンサー倶楽部 本店

売買・賃貸・管理・資産活用・相続遺言など不動産のことならアンサー倶楽部へお任せください!!、総合不動産業としてお客様の夢を叶えます!!売却やリフォームもアンサー倶楽部ならご相談可能です!

その他の情報

外観:340000252409
中古戸建て

【近い!】 ゆめタウン遠賀まで約385m

間取り:340000252409
  • 4,500万円
  • 福岡県遠賀郡遠賀町広渡1丁目
  • 鹿児島本線 遠賀川駅/徒歩8分
  • 10DK/築50 年
  • 359.06㎡(建物)
  • 1177.45㎡(土地)
  • 駐車場有
  • システム
    キッチン
  • 追焚機能
  • 所有権
  • 低層住宅地
  • 南向き
  • 小学校
    800m以内
  • スーパー
    800m以内
センチュリー21よしなが企画

センチュリー21よしなが企画は、北九州市八幡西区を中心として、地域に密着した不動産売買仲介業務を中心に総合的に不動産業務を行っております。お客様と共に、物・心を豊かに幸せを生み出す会社です。

その他の情報

外観:340000279160
中古戸建て 空家

ゆめタウン遠賀まで約2943m

間取り:340000279160
  • 1,180万円
  • 福岡県遠賀郡岡垣町東高陽3丁目
  • 鹿児島本線 海老津駅/徒歩28分
  • 4LDK/築32 年
  • 89.42㎡(建物)
  • 208.12㎡(土地)

国道3号線岡垣バイパス近く。南西角地の4LDK。勝手口裏にストックヤードあり。雨の日の洗濯物も安心です。駐車場増設可(別途要費用)。周辺にはスーパーや飲食店等多数あり。

  • 駐車場有
  • システム
    キッチン
  • 追焚機能
  • 所有権
  • 低層住宅地
  • 南向き
  • 小学校
    800m以内
  • スーパー
    800m以内
株式会社プラスワン 新宮店

その他の情報

外観:340000272703
中古戸建て

ゆめタウン遠賀まで約2339m

間取り:340000272703
  • 1,100万円
  • 福岡県遠賀郡水巻町古賀2丁目
  • 鹿児島本線 水巻駅/徒歩37分
  • 4DK/築43 年
  • 90.25㎡(建物)
  • 225.93㎡(土地)

☆人気の平屋☆小・中学校が近く、お子様の通学も安心♪スーパー・公園も徒歩圏内の暮らしやすい住環境♪

  • 駐車場有
  • システム
    キッチン
  • 追焚機能
  • 所有権
  • 低層住宅地
  • 南向き
  • 小学校
    800m以内
  • スーパー
    800m以内
センチュリー21よしなが企画

センチュリー21よしなが企画は、北九州市八幡西区を中心として、地域に密着した不動産売買仲介業務を中心に総合的に不動産業務を行っております。お客様と共に、物・心を豊かに幸せを生み出す会社です。

その他の情報

外観:340000215623
中古戸建て

ゆめタウン遠賀まで約2675m

間取り:340000215623
  • 620万円
  • 福岡県遠賀郡水巻町頃末南3丁目
  • 鹿児島本線 水巻駅/徒歩6分
  • 2DK/築49 年
  • 51.34㎡(建物)
  • 150.30㎡(土地)

表面利回り10%超のオーナーチェンジ物件!お問合せお待ちしております!

  • 駐車場有
  • システム
    キッチン
  • 追焚機能
  • 所有権
  • 低層住宅地
  • 南向き
  • 小学校
    800m以内
  • スーパー
    800m以内
株式会社東武住販 赤間駅南口店

弊社は、創業38年、福岡県・熊本県・大分県・佐賀県・山口県・広島県の西日本を中心に19店舗にて営業しております。これからも各店舗が地域一番店を目指し、お客様の不動産のお悩みに迅速に対応してまいります。

その他の情報

外観:340000250206
中古戸建て 空家

ゆめタウン遠賀まで約2071m

NO IMAGE
  • 3,500万円
  • 福岡県遠賀郡水巻町古賀3丁目
  • 鹿児島本線 水巻駅/徒歩25分
  • 4LDK/築27 年
  • 156.90㎡(建物)
  • 744.00㎡(土地)

■人気の平屋住宅!

  • 駐車場有
  • システム
    キッチン
  • 追焚機能
  • 所有権
  • 低層住宅地
  • 南向き
  • 小学校
    800m以内
  • スーパー
    800m以内
Nikkori House株式会社

1.お客様の為に情熱・熱意・笑顔を持って物件をご紹介致します!2.住宅ローンのご紹介が得意です!ご年収が少なめの方(150~)ローン審査で減額回答や承認が下りなかった方等何でもご相談下さい

その他の情報

外観:340000144943
中古戸建て

【近い!】 ゆめタウン遠賀まで約388m

間取り:340000144943
  • 4,500万円
  • 福岡県遠賀郡遠賀町広渡1丁目
  • 鹿児島本線 遠賀川駅/徒歩7分
  • 10LDK/築50 年
  • 359.06㎡(建物)
  • 1177.46㎡(土地)
  • 駐車場有
  • システム
    キッチン
  • 追焚機能
  • 所有権
  • 低層住宅地
  • 南向き
  • 小学校
    800m以内
  • スーパー
    800m以内
株式会社ミクニ 八幡センター

不動産のご相談は是非当社にお任せください!

その他の情報

外観:340000225801
中古戸建て

ゆめタウン遠賀まで約1753m

間取り:340000225801
  • 500万円
  • 福岡県遠賀郡遠賀町大字上別府
  • 鹿児島本線 遠賀川駅/徒歩25分
  • 5DK/築52 年
  • 103.87㎡(建物)
  • 687.35㎡(土地)

●カースペースは2台駐車可能です☆そのうち1台は屋根付きです●全居室は6帖と使いやすい広さです

  • 駐車場有
  • システム
    キッチン
  • 追焚機能
  • 所有権
  • 低層住宅地
  • 南向き
  • 小学校
    800m以内
  • スーパー
    800m以内
株式会社アンサー倶楽部 本店

売買・賃貸・管理・資産活用・相続遺言など不動産のことならアンサー倶楽部へお任せください!!、総合不動産業としてお客様の夢を叶えます!!売却やリフォームもアンサー倶楽部ならご相談可能です!

その他の情報

外観:340000129609
中古戸建て 空家

ゆめタウン遠賀まで約1025m

間取り:340000129609
  • 690万円
  • 福岡県遠賀郡遠賀町大字別府
  • 鹿児島本線 遠賀川駅/徒歩17分
  • 3LDK/築57 年
  • 72.15㎡(建物)
  • 217.15㎡(土地)
  • 駐車場有
  • システム
    キッチン
  • 追焚機能
  • 所有権
  • 低層住宅地
  • 南向き
  • 小学校
    800m以内
  • スーパー
    800m以内
株式会社ミクニ 八幡センター

不動産のご相談は是非当社にお任せください!

その他の情報

1ページ目(1ページ中)
この条件で新着メールを受取る
この検索条件を保存する

※ゆめタウン遠賀までの直線距離を表示しています。道路距離ではありませんのでご了承ください。

追加が完了しました。

現在00件保存されています。(最大5件)

保存した条件一覧を見る

現在00件保存されています。

残り00件追加することができます。

お気に入り物件一覧を見る

間隔を空けてお試しください。

問合せが未完了の物件

条件を変更
チェックした物件をまとめて 資料請求(無料) お気に入りに追加