学陽舎(鹿児島市)近くの中古住宅・中古一戸建ての購入情報

学陽舎(鹿児島市)近くの中古住宅・中古一戸建ての購入情報をご覧いただけます。

83

↓ チェックした物件をまとめてお問い合わせ

外観:346000025764
中古戸建て 空家

学陽舎まで約1709m

間取り:346000025764
  • 2,080万円
  • 鹿児島県鹿児島市大明丘1丁目
  • 南国「大明ヶ丘東」下車 徒歩2分
  • 3SLDK/築3 年
  • 96.88㎡(建物)
  • 132.49㎡(土地)

大明丘小学校まで290m!南向きで日当り良好です!駐車2台分、オール電化、照明付き、省令準耐火など♪

  • 駐車場有
  • システム
    キッチン
  • 追焚機能
  • 所有権
  • 低層住宅地
  • 南向き
  • 小学校
    800m以内
  • スーパー
    800m以内
ハウスドゥ 鹿児島中央 南日本ハウス株式会社

鹿児島市内を中心に本店、伊敷店、谷山店の3店舗のネットワークで購入希望や売却相談、資産活用など不動産の様々なニーズにお応えしています。キッズスペースもありますのでお子様連れでもお気軽にご来店ください。

その他の情報

外観:346000040132
中古戸建て 空家

学陽舎まで約1697m

間取り:346000040132
  • 2,180万円
  • 鹿児島県鹿児島市玉里団地3丁目
  • 市営「玉里団地東バス停」下車 徒歩3分
  • 3LDK/築2 年
  • 79.07㎡(建物)
  • 99.01㎡(土地)

【内覧可能です!】■タイヨー玉里団地店450m(歩6分)♪■省令準耐火構造(火災保険料の軽減)♪■築後未入居♪

  • 駐車場有
  • システム
    キッチン
  • 追焚機能
  • 所有権
  • 低層住宅地
  • 南向き
  • 小学校
    800m以内
  • スーパー
    800m以内
ハウスドゥ!吉野店 株式会社フォローエステート

ハウスドゥ!吉野店は新築、中古の一戸建て、マンション、土地など様々な物件を取り扱っています。キッズルーム完備でお子様連れでもくつろげる環境をご準備して皆様のご来店を、心よりお待ちいたしております。

その他の情報

外観:346000032083
中古戸建て 空家

学陽舎まで約1703m

間取り:346000032083
  • 2,080万円
  • 鹿児島県鹿児島市大明丘1丁目
  • 南国「大明丘東バス停」下車 徒歩2分
  • 3LDK/築3 年
  • 96.88㎡(建物)
  • 132.49㎡(土地)

【月々5万円台から】【リビング20.5帖】【南向き】【大明丘小学校・吉野中学校エリア】・ファミリーマート大明丘店まで約630m・オール電化・火災保険料が抑えられる省令準耐火構造

  • 駐車場有
  • システム
    キッチン
  • 追焚機能
  • 所有権
  • 低層住宅地
  • 南向き
  • 小学校
    800m以内
  • スーパー
    800m以内
ハウスドゥ!伊敷店 南日本ハウス株式会社

その他の情報

外観:346000038784
中古戸建て 空家

学陽舎まで約1689m

間取り:346000038784
  • 2,180万円
  • 鹿児島県鹿児島市玉里団地3丁目
  • 日豊本線 鹿児島駅/徒歩48分
  • 3LDK/築2 年
  • 79.07㎡(建物)
  • 99.01㎡(土地)

【坂元小学校・坂元中学校エリア】【月々5万円台~】【玄関吹抜のある新築戸建】【即内覧可能】・ローソン玉里団地店まで約340m・全室南向き・オール電化住宅

  • 駐車場有
  • システム
    キッチン
  • 追焚機能
  • 所有権
  • 低層住宅地
  • 南向き
  • 小学校
    800m以内
  • スーパー
    800m以内
ハウスドゥ!伊敷店 南日本ハウス株式会社

その他の情報

外観:346000035522
中古戸建て 空家

学陽舎まで約1594m

間取り:346000035522
  • 2,980万円
  • 鹿児島県鹿児島市玉里団地2丁目
  • 市営「第一公園前バス停」下車 徒歩2分
  • 5LDK/築7 年
  • 101.85㎡(建物)
  • 129.02㎡(土地)

【即日内覧OK!】■部屋数豊富な5LDK♪■並列で3台駐車可♪(2台はカーポート付)■坂元台小学校まで500m♪■雨の日も降灰の日も安心、ガス衣類乾燥機付きです♪

  • 駐車場有
  • システム
    キッチン
  • 追焚機能
  • 所有権
  • 低層住宅地
  • 南向き
  • 小学校
    800m以内
  • スーパー
    800m以内
ハウスドゥ!吉野店 株式会社フォローエステート

ハウスドゥ!吉野店は新築、中古の一戸建て、マンション、土地など様々な物件を取り扱っています。キッズルーム完備でお子様連れでもくつろげる環境をご準備して皆様のご来店を、心よりお待ちいたしております。

その他の情報

外観:346000025762
中古戸建て 空家

学陽舎まで約1425m

間取り:346000025762
  • 2,880万円
  • 鹿児島県鹿児島市東坂元2丁目
  • 南国「辻ヶ丘団地」下車 徒歩1分
  • 4LDK/築3 年
  • 92.74㎡(建物)
  • 151.11㎡(土地)

タイヨー 辻ヶ丘店まで徒歩1分(20m)、4LDK、オール電化、堀車庫駐車2台!眺望良好なお家です♪即日室内のご見学が可能です♪お気軽にお問い合わせください!

  • 駐車場有
  • システム
    キッチン
  • 追焚機能
  • 所有権
  • 低層住宅地
  • 南向き
  • 小学校
    800m以内
  • スーパー
    800m以内
ハウスドゥ 鹿児島中央 南日本ハウス株式会社

鹿児島市内を中心に本店、伊敷店、谷山店の3店舗のネットワークで購入希望や売却相談、資産活用など不動産の様々なニーズにお応えしています。キッズスペースもありますのでお子様連れでもお気軽にご来店ください。

その他の情報

NO IMAGE
中古戸建て

学陽舎まで約1858m

間取り:346000028495
  • 1,800万円
  • 鹿児島県鹿児島市大明丘2丁目
  • 南国「大明丘団地東バス停」下車 徒歩3分
  • 3LDK/築10 年
  • 77.75㎡(建物)
  • 109.57㎡(土地)

【2017年築の中古戸建】【大明丘小学校・吉野中学校エリア】・タイヨー吉野店まで約480m

  • 駐車場有
  • システム
    キッチン
  • 追焚機能
  • 所有権
  • 低層住宅地
  • 南向き
  • 小学校
    800m以内
  • スーパー
    800m以内
ハウスドゥ!伊敷店 南日本ハウス株式会社

その他の情報

外観:346000040163
中古戸建て 空家

学陽舎まで約1579m

間取り:346000040163
  • 2,680万円
  • 鹿児島県鹿児島市吉野町
  • 南国「落しバス停」下車 徒歩3分
  • 2LDK/築2 年
  • 92.74㎡(建物)
  • 188.00㎡(土地)

■タイヨー吉野店800m(歩10分)♪■制震構造、高気密高断熱住宅♪■桜島眺望可♪※制震構造の設計、更に住宅の品質担保を証明する建設住宅性能評価書ありで安心につながる建物♪

  • 駐車場有
  • システム
    キッチン
  • 追焚機能
  • 所有権
  • 低層住宅地
  • 南向き
  • 小学校
    800m以内
  • スーパー
    800m以内
ハウスドゥ!吉野店 株式会社フォローエステート

ハウスドゥ!吉野店は新築、中古の一戸建て、マンション、土地など様々な物件を取り扱っています。キッズルーム完備でお子様連れでもくつろげる環境をご準備して皆様のご来店を、心よりお待ちいたしております。

その他の情報

外観:346000040145
中古戸建て 空家

学陽舎まで約1579m

間取り:346000040145
  • 2,680万円
  • 鹿児島県鹿児島市吉野町
  • 南国「落しバス停」下車 徒歩3分
  • 3LDK/築2 年
  • 81.97㎡(建物)
  • 351.00㎡(土地)

■タイヨー吉野店800m(歩10分)♪■制震構造、高気密高断熱住宅♪■桜島眺望可♪※制震構造の設計、更に住宅の品質担保を証明する建設住宅性能評価書ありで安心につながる建物♪

  • 駐車場有
  • システム
    キッチン
  • 追焚機能
  • 所有権
  • 低層住宅地
  • 南向き
  • 小学校
    800m以内
  • スーパー
    800m以内
ハウスドゥ!吉野店 株式会社フォローエステート

ハウスドゥ!吉野店は新築、中古の一戸建て、マンション、土地など様々な物件を取り扱っています。キッズルーム完備でお子様連れでもくつろげる環境をご準備して皆様のご来店を、心よりお待ちいたしております。

その他の情報

外観:346000007743
中古戸建て 空家

学陽舎まで約1625m

間取り:346000007743
  • 3,480万円
  • 鹿児島県鹿児島市大明丘1丁目
  • 南国「大明丘西」下車 徒歩3分
  • 3LDK/築7 年
  • 84.46㎡(建物)
  • 166.56㎡(土地)

【モデルハウス分譲!】太陽光発電システム&蓄電池付き!高気密高断熱の快適な平屋建てです♪

  • 駐車場有
  • システム
    キッチン
  • 追焚機能
  • 所有権
  • 低層住宅地
  • 南向き
  • 小学校
    800m以内
  • スーパー
    800m以内
ハウスドゥ 鹿児島中央 南日本ハウス株式会社

鹿児島市内を中心に本店、伊敷店、谷山店の3店舗のネットワークで購入希望や売却相談、資産活用など不動産の様々なニーズにお応えしています。キッズスペースもありますのでお子様連れでもお気軽にご来店ください。

その他の情報

外観:346000041132
中古戸建て

学陽舎まで約1667m

間取り:346000041132
  • 2,480万円
  • 鹿児島県鹿児島市玉里団地2丁目
  • 九州新幹線 鹿児島中央駅/バス 21分/玉里団地東バス停 徒歩2分
  • 4LDK/築9 年
  • 99.62㎡(建物)
  • 133.34㎡(土地)

【2018年築】【買い物、教育施設徒歩10分圏内】【2F各洋室6帖以上と広々】【4LDK】【坂元台小学校・坂元中学校エリア】【カーポート2台分付】・玉里第二公園まで徒歩2分(約160m)

  • 駐車場有
  • システム
    キッチン
  • 追焚機能
  • 所有権
  • 低層住宅地
  • 南向き
  • 小学校
    800m以内
  • スーパー
    800m以内
ハウスドゥ!伊敷店 南日本ハウス株式会社

その他の情報

外観:346000039699
中古戸建て 空家

学陽舎まで約1603m

間取り:346000039699
  • 2,680万円
  • 鹿児島県鹿児島市吉野町
  • 鹿児島本線 鹿児島駅/バス 40分/吉野町木落し 徒歩3分
  • 2LDK/築2 年
  • 92.74㎡(建物)
  • 188.00㎡(土地)
  • 駐車場有
  • システム
    キッチン
  • 追焚機能
  • 所有権
  • 低層住宅地
  • 南向き
  • 小学校
    800m以内
  • スーパー
    800m以内
センチュリー21ESTATE UP

世界最大級の不動産ネットワークセンチュリー21に加盟。全国レベルの情報網とブランド力で、信頼性の高い不動産サービスを提供しています。鹿児島市を中心に、購入・売却・賃貸と地域に根ざした情報力が強みです。

その他の情報

外観:346000039698
中古戸建て

学陽舎まで約1505m

間取り:346000039698
  • 3,080万円
  • 鹿児島県鹿児島市玉里団地2丁目
  • 日豊本線 鹿児島駅/徒歩49分
  • 3LDK/築6 年
  • 96.05㎡(建物)
  • 133.73㎡(土地)

【太陽光発電5.04kwなど設備充実】【2021年築】【坂元台小学校まで徒歩5分】【ドライルームやパントリー付】【坂元台小学校・坂元中学校エリア】玉里団地第一公園まで徒歩3分

  • 駐車場有
  • システム
    キッチン
  • 追焚機能
  • 所有権
  • 低層住宅地
  • 南向き
  • 小学校
    800m以内
  • スーパー
    800m以内
ハウスドゥ!伊敷店 南日本ハウス株式会社

その他の情報

外観:346000040379
中古戸建て 空家

学陽舎まで約1866m

間取り:346000040379
  • 2,880万円
  • 鹿児島県鹿児島市吉野町
  • 日豊本線 鹿児島駅/バス 11分/早馬バス停 徒歩4分
  • 4SLDK/築15 年
  • 139.31㎡(建物)
  • 297.00㎡(土地)

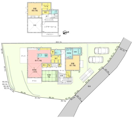
【三井ホーム造り】【2011年築】【シアタールーム付】【リビング吹抜付で開放感あり】【大明丘小学校・吉野中学校エリア】【キッチン横に納戸付】・整形外科吉野台クリニックまで徒歩4分

  • 駐車場有
  • システム
    キッチン
  • 追焚機能
  • 所有権
  • 低層住宅地
  • 南向き
  • 小学校
    800m以内
  • スーパー
    800m以内
ハウスドゥ!伊敷店 南日本ハウス株式会社

その他の情報

外観:346000038114
中古戸建て 空家

【近い!】 学陽舎まで約818m

間取り:346000038114
  • 3,680万円
  • 鹿児島県鹿児島市坂元町
  • 南国「商業高校入口バス停」下車 徒歩6分
  • 6LDK/築6 年
  • 178.03㎡(建物)
  • 659.49㎡(土地)

■オール電化の二世帯住宅♪4LDK+2LDK■令和2年築浅物件♪省令準耐火構造♪

  • 駐車場有
  • システム
    キッチン
  • 追焚機能
  • 所有権
  • 低層住宅地
  • 南向き
  • 小学校
    800m以内
  • スーパー
    800m以内
ハウスドゥ!吉野店 株式会社フォローエステート

ハウスドゥ!吉野店は新築、中古の一戸建て、マンション、土地など様々な物件を取り扱っています。キッズルーム完備でお子様連れでもくつろげる環境をご準備して皆様のご来店を、心よりお待ちいたしております。

その他の情報

外観:346000039691
中古戸建て 空家

学陽舎まで約1603m

間取り:346000039691
  • 2,680万円
  • 鹿児島県鹿児島市吉野町
  • 鹿児島本線 鹿児島駅/バス 40分/吉野町木落し 徒歩3分
  • 3LDK/築2 年
  • 81.97㎡(建物)
  • 351.00㎡(土地)
  • 駐車場有
  • システム
    キッチン
  • 追焚機能
  • 所有権
  • 低層住宅地
  • 南向き
  • 小学校
    800m以内
  • スーパー
    800m以内
センチュリー21ESTATE UP

世界最大級の不動産ネットワークセンチュリー21に加盟。全国レベルの情報網とブランド力で、信頼性の高い不動産サービスを提供しています。鹿児島市を中心に、購入・売却・賃貸と地域に根ざした情報力が強みです。

その他の情報

外観:346000031786
中古戸建て 空家

学陽舎まで約1603m

間取り:346000031786
  • 2,280万円
  • 鹿児島県鹿児島市玉里団地3丁目
  • 日豊本線 鹿児島駅/徒歩45分
  • 5DK/築50 年
  • 96.99㎡(建物)
  • 248.53㎡(土地)

【人気の平屋建て】【坂元小学校まで徒歩9分】【駐車場3台可能】【5DK】【H26年6月リフォーム済】【ウッドデッキ付】【広々とした庭付き】・玉里団地第一公園まで徒歩4分(約320m)

  • 駐車場有
  • システム
    キッチン
  • 追焚機能
  • 所有権
  • 低層住宅地
  • 南向き
  • 小学校
    800m以内
  • スーパー
    800m以内
ハウスドゥ!伊敷店 南日本ハウス株式会社

その他の情報

外観:346000041167
中古戸建て 空家

学陽舎まで約1449m

間取り:346000041167
  • 1,850万円
  • 鹿児島県鹿児島市玉里団地3丁目
  • 市営「坂元台小学校前バス停」下車 徒歩1分
  • 6K/築39 年
  • 136.17㎡(建物)
  • 201.72㎡(土地)

■坂元台小学校前バス停まで歩1分(20m)♪■10帖の店舗スペース付き、6K中古住宅♪■南東向きで日当たり良好♪

  • 駐車場有
  • システム
    キッチン
  • 追焚機能
  • 所有権
  • 低層住宅地
  • 南向き
  • 小学校
    800m以内
  • スーパー
    800m以内
ハウスドゥ!吉野店 株式会社フォローエステート

ハウスドゥ!吉野店は新築、中古の一戸建て、マンション、土地など様々な物件を取り扱っています。キッズルーム完備でお子様連れでもくつろげる環境をご準備して皆様のご来店を、心よりお待ちいたしております。

その他の情報

外観:346000033409
中古戸建て 空家

学陽舎まで約1702m

間取り:346000033409
  • 1,890万円
  • 鹿児島県鹿児島市玉里団地2丁目
  • 市営「玉里団地東バス停」下車 徒歩2分
  • 3SLDK/築23 年
  • 104.59㎡(建物)
  • 134.47㎡(土地)

【坂元台小学校・坂元中学校エリア】【即内覧可能】【ブランコのある中古戸建】・日当り良好・洗面所隣接のサンルーム付き・広々ウォークイン付き

  • 駐車場有
  • システム
    キッチン
  • 追焚機能
  • 所有権
  • 低層住宅地
  • 南向き
  • 小学校
    800m以内
  • スーパー
    800m以内
ハウスドゥ!伊敷店 南日本ハウス株式会社

その他の情報

外観:346000040799
中古戸建て

学陽舎まで約1973m

間取り:346000040799
  • 2,800万円
  • 鹿児島県鹿児島市城山町
  • 市営「薩摩義士碑前バス停」下車 徒歩7分
  • 4LDK/築26 年
  • 129.66㎡(建物)
  • 159.72㎡(土地)

■RC造、リビング19帖の4LDK♪■鹿児島医療センターまで約600m(歩8分)♪

  • 駐車場有
  • システム
    キッチン
  • 追焚機能
  • 所有権
  • 低層住宅地
  • 南向き
  • 小学校
    800m以内
  • スーパー
    800m以内
ハウスドゥ!吉野店 株式会社フォローエステート

ハウスドゥ!吉野店は新築、中古の一戸建て、マンション、土地など様々な物件を取り扱っています。キッズルーム完備でお子様連れでもくつろげる環境をご準備して皆様のご来店を、心よりお待ちいたしております。

その他の情報

外観:346000040386
中古戸建て 空家

【近い!】 学陽舎まで約729m

間取り:346000040386
  • 2,380万円
  • 鹿児島県鹿児島市東坂元4丁目
  • 日豊本線 鹿児島駅/徒歩27分
  • 3LDK/築62 年
  • 80.50㎡(建物)
  • 351.49㎡(土地)

■RCの平屋■全面リファイン済み中古住宅■断熱に優れた複層サッシ■オール電化■小屋付■シャッター付き■エアコン付■清水小、中エリア■スーパーまで900m■最大8台駐車可能

  • 駐車場有
  • システム
    キッチン
  • 追焚機能
  • 所有権
  • 低層住宅地
  • 南向き
  • 小学校
    800m以内
  • スーパー
    800m以内
ハウスドゥ 加治屋町 株式会社ハッピー不動産

鹿児島市を中心に中古マンション、新築・中古の一戸建て、土地など豊富に扱っています。不動産のプロが後悔しないためのポイントやローン計画を提案し、売買後もハッピーでいられようにサポートいたします。

その他の情報

外観:346000029346
中古戸建て 空家

学陽舎まで約1420m

間取り:346000029346
  • 2,880万円
  • 鹿児島県鹿児島市東坂元2丁目
  • 南国「辻ヶ丘団地バス停」下車 徒歩1分
  • 4LDK/築2 年
  • 92.74㎡(建物)
  • 151.11㎡(土地)

【大龍小学校・清水中学校エリア】・タイヨー辻ヶ丘店まで約80m・辻ヶ丘幼稚園まで約320m

  • 駐車場有
  • システム
    キッチン
  • 追焚機能
  • 所有権
  • 低層住宅地
  • 南向き
  • 小学校
    800m以内
  • スーパー
    800m以内
ハウスドゥ!伊敷店 南日本ハウス株式会社

その他の情報

外観:346000040793
中古戸建て 空家

学陽舎まで約1878m

間取り:346000040793
  • 2,880万円
  • 鹿児島県鹿児島市吉野町
  • 鹿児島本線 鹿児島駅/バス 20分/早馬 徒歩5分
  • 4LDK/築15 年
  • 139.31㎡(建物)
  • 297.00㎡(土地)

三井ホーム造、吹抜付きLDK20帖以上、シアタールーム、全館空調 東南向き陽当たり良好、桜島見えます。 ・吉野台クリニック約200m ・セブンイレブン柿之迫店約520? ・タイヨー吉野店約660m

  • 駐車場有
  • システム
    キッチン
  • 追焚機能
  • 所有権
  • 低層住宅地
  • 南向き
  • 小学校
    800m以内
  • スーパー
    800m以内
株式会社三ツ矢ホーム

その他の情報

外観:346000041112
中古戸建て

学陽舎まで約1179m

間取り:346000041112
  • 3,500万円
  • 鹿児島県鹿児島市上本町
  • 鹿児島本線 鹿児島駅/徒歩4分
  • 2LDK/築15 年
  • 96.50㎡(建物)
  • 75.02㎡(土地)

【鹿児島駅まで徒歩4分×人気の平坦地の中古戸建】【開放感のある吹抜リビング】・ファミリーマート上本町店まで徒歩1分(約70m)・大龍小学校まで徒歩5分・長田中学校まで徒歩6分

  • 駐車場有
  • システム
    キッチン
  • 追焚機能
  • 所有権
  • 低層住宅地
  • 南向き
  • 小学校
    800m以内
  • スーパー
    800m以内
ハウスドゥ!伊敷店 南日本ハウス株式会社

その他の情報

外観:346000040862
中古戸建て 空家

【近い!】 学陽舎まで約193m

間取り:346000040862
  • 1,800万円
  • 鹿児島県鹿児島市稲荷町
  • 鹿児島本線 鹿児島駅/徒歩23分
  • 5LDK/築49 年
  • 109.85㎡(建物)
  • 132.27㎡(土地)

【人気の平坦地】【角地】【清水小学校まで徒歩5分】【4LDK】【玄関吹抜で開放感あり】【清水小学校・清水中学校エリア】【即内覧可能】・清水中学校まで徒歩2分

  • 駐車場有
  • システム
    キッチン
  • 追焚機能
  • 所有権
  • 低層住宅地
  • 南向き
  • 小学校
    800m以内
  • スーパー
    800m以内
ハウスドゥ!伊敷店 南日本ハウス株式会社

その他の情報

外観:346000009187
中古戸建て 空家

【近い!】 学陽舎まで約729m

間取り:346000009187
  • 2,380万円
  • 鹿児島県鹿児島市東坂元4丁目
  • 南国「せばる団地入口」下車 徒歩2分
  • 3LDK/築62 年
  • 80.50㎡(建物)
  • 351.49㎡(土地)

令和4年8月リフォーム(屋根・外壁・鋼製建具・水回り・クロス・床新調等)即日室内のご見学可能です!

  • 駐車場有
  • システム
    キッチン
  • 追焚機能
  • 所有権
  • 低層住宅地
  • 南向き
  • 小学校
    800m以内
  • スーパー
    800m以内
ハウスドゥ 鹿児島中央 南日本ハウス株式会社

鹿児島市内を中心に本店、伊敷店、谷山店の3店舗のネットワークで購入希望や売却相談、資産活用など不動産の様々なニーズにお応えしています。キッズスペースもありますのでお子様連れでもお気軽にご来店ください。

その他の情報

外観:346000032283
中古戸建て 空家

【近い!】 学陽舎まで約511m

間取り:346000032283
  • 1,830万円
  • 鹿児島県鹿児島市坂元町
  • 南国「お茶の水バス停」下車 徒歩5分
  • 7K/築53 年
  • 128.90㎡(建物)
  • 510.33㎡(土地)

■駐車場10台以上可♪■広々サンルームとテラス付♪■丁寧に使われているので建物程度良好♪

  • 駐車場有
  • システム
    キッチン
  • 追焚機能
  • 所有権
  • 低層住宅地
  • 南向き
  • 小学校
    800m以内
  • スーパー
    800m以内
ハウスドゥ!吉野店 株式会社フォローエステート

ハウスドゥ!吉野店は新築、中古の一戸建て、マンション、土地など様々な物件を取り扱っています。キッズルーム完備でお子様連れでもくつろげる環境をご準備して皆様のご来店を、心よりお待ちいたしております。

その他の情報

外観:346000037627
中古戸建て 空家

学陽舎まで約1656m

間取り:346000037627
  • 2,000万円
  • 鹿児島県鹿児島市玉里団地2丁目
  • 市営「第一公園前バス停」下車 徒歩3分
  • 5DK/築41 年
  • 109.48㎡(建物)
  • 205.94㎡(土地)

【坂元台小学校まで徒歩6分】【角地】【RC造り】【5DK】【坂元台小学校・坂元中学校エリア】・ローソン鹿児島玉里団地店まで徒歩6分

  • 駐車場有
  • システム
    キッチン
  • 追焚機能
  • 所有権
  • 低層住宅地
  • 南向き
  • 小学校
    800m以内
  • スーパー
    800m以内
ハウスドゥ!伊敷店 南日本ハウス株式会社

その他の情報

外観:346000032274
中古戸建て 空家

【近い!】 学陽舎まで約729m

間取り:346000032274
  • 2,380万円
  • 鹿児島県鹿児島市東坂元4丁目
  • 市営「せばる団地入口バス停」下車 徒歩2分
  • 3LDK/築62 年
  • 80.50㎡(建物)
  • 351.49㎡(土地)

■2022年8月フルリノベーション済み(水回り、内装全面、外壁・屋根)♪

  • 駐車場有
  • システム
    キッチン
  • 追焚機能
  • 所有権
  • 低層住宅地
  • 南向き
  • 小学校
    800m以内
  • スーパー
    800m以内
ハウスドゥ!吉野店 株式会社フォローエステート

ハウスドゥ!吉野店は新築、中古の一戸建て、マンション、土地など様々な物件を取り扱っています。キッズルーム完備でお子様連れでもくつろげる環境をご準備して皆様のご来店を、心よりお待ちいたしております。

その他の情報

外観:346000039192
中古戸建て

学陽舎まで約1307m

間取り:346000039192
  • 1,790万円
  • 鹿児島県鹿児島市東坂元4丁目
  • 南国「旭ヶ丘中央バス停」下車 徒歩1分
  • 4LDK/築23 年
  • 97.71㎡(建物)
  • 165.38㎡(土地)

■大明丘小学校700m(歩9分)♪■並列駐車2台可♪■南側道路で日当たり良好♪

  • 駐車場有
  • システム
    キッチン
  • 追焚機能
  • 所有権
  • 低層住宅地
  • 南向き
  • 小学校
    800m以内
  • スーパー
    800m以内
ハウスドゥ!吉野店 株式会社フォローエステート

ハウスドゥ!吉野店は新築、中古の一戸建て、マンション、土地など様々な物件を取り扱っています。キッズルーム完備でお子様連れでもくつろげる環境をご準備して皆様のご来店を、心よりお待ちいたしております。

その他の情報

1ページ目(3ページ中) 次へ
この条件で新着メールを受取る
この検索条件を保存する

鹿児島市の物件も見てみませんか?

現在のページで希望の物件が見つからなければエリアから探してみてもいいかもしれません。

鹿児島市の物件を見る

※学陽舎までの直線距離を表示しています。道路距離ではありませんのでご了承ください。

追加が完了しました。

現在00件保存されています。(最大5件)

保存した条件一覧を見る

現在00件保存されています。

残り00件追加することができます。

お気に入り物件一覧を見る

間隔を空けてお試しください。

問合せが未完了の物件

条件を変更
チェックした物件をまとめて 資料請求(無料) お気に入りに追加