但馬銀行 青山支店(姫路市)近くの中古住宅・中古一戸建ての購入情報

但馬銀行 青山支店(姫路市)近くの中古住宅・中古一戸建ての購入情報をご覧いただけます。

71

↓ チェックした物件をまとめてお問い合わせ

外観:328000570274
中古戸建て 空家

但馬銀行 青山支店まで約1833m

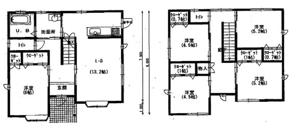
間取り:328000570274
  • 3,190万円
  • 兵庫県姫路市下手野4丁目
  • 山陽本線 姫路駅/バス 17分/下手野北口 徒歩4分
  • 4LDK/築4 年
  • 117.16㎡(建物)
  • 157.69㎡(土地)

くらすONEは一級建築士、宅地建物取引士、専属デザイナー、各分野のプロが在籍している不動産仲介をはじめ注文住宅やリフォームにも特化しているお店です♪住まいに関する事は何でも気軽にお問い合わせください。

  • 駐車場有
  • システム
    キッチン
  • 追焚機能
  • 所有権
  • 低層住宅地
  • 南向き
  • 小学校
    800m以内
  • スーパー
    800m以内
株式会社くらすONE

くらすONEは一級建築士、宅地建物取引士、専属デザイナー、各分野のプロが在籍。不動産仲介をはじめ注文住宅やリフォームにも特化しているお店です♪住まいに関するご相談はくらすONEまでご相談くださi!

その他の情報

外観:328000560295
中古戸建て 空家

【近い!】 但馬銀行 青山支店まで約877m

間取り:328000560295
  • 2,280万円
  • 兵庫県姫路市青山5丁目
  • 姫新線 余部駅/徒歩17分
  • 5LDK/築12 年
  • 122.00㎡(建物)
  • 330.66㎡(土地)

オール電化中古戸建物件♪土地広々なのでゆっくりと過ごせますね☆令和7年11月リフォーム済!新しい気分で生活をはじめられます!

  • 駐車場有
  • システム
    キッチン
  • 追焚機能
  • 所有権
  • 低層住宅地
  • 南向き
  • 小学校
    800m以内
  • スーパー
    800m以内
株式会社アールエステート

加古川市~姫路市を中心に新築・中古戸建、マンション、土地をお探しの方はご連絡下さい。地元密着型会社の他社様にはない物件情報量が自慢です。又、住宅ローンでお悩みの方もご連絡下さい。ローン審査に自信あり!

その他の情報

外観:328000611617
中古戸建て 空家

但馬銀行 青山支店まで約1942m

間取り:328000611617
  • 2,850万円
  • 兵庫県姫路市下手野4丁目
  • 姫新線 余部駅/徒歩22分
  • 3SLDK/築4 年
  • 96.05㎡(建物)
  • 133.18㎡(土地)

【2022年築の3SLDK未入居戸建】 ◇納戸あり、収納スペース充実 ◇ガス式床暖房で快適なLDK ◇高岡西小学校まで徒歩11分 ◇徒歩10分圏内に利便施設充実 ◇見学・ご相談随時受付中!

  • 駐車場有
  • システム
    キッチン
  • 追焚機能
  • 所有権
  • 低層住宅地
  • 南向き
  • 小学校
    800m以内
  • スーパー
    800m以内
株式会社赤鹿地所

地域に根ざし、姫路市で60余年、「あなたのニーズにお応えします」をモットーに、 安心と実績で不動産買取、売買仲介、賃貸仲介、賃貸管理等、すべての不動産に関するご相談に応じております。

その他の情報

NO IMAGE
中古戸建て 空家

但馬銀行 青山支店まで約1930m

間取り:328000608208
  • 2,980万円
  • 兵庫県姫路市下手野4丁目
  • 姫新線 余部駅/徒歩21分
  • 3SLDK/築4 年
  • 96.05㎡(建物)
  • 133.18㎡(土地)

姫路市の不動産ならお任せください!中地ICより南に車で約4分!れくすむ姫路店まで!

  • 駐車場有
  • システム
    キッチン
  • 追焚機能
  • 所有権
  • 低層住宅地
  • 南向き
  • 小学校
    800m以内
  • スーパー
    800m以内
株式会社Sun Climb れくすむ姫路店

「すまいをレクチャーする町の不動産屋」をコンセプトに1人1人のお客様にとって最善の選択ができるよう「購入」「売却」「賃貸」「賃貸管理」のサポートをさせて頂いております!

その他の情報

NO IMAGE
中古戸建て 空家

【近い!】 但馬銀行 青山支店まで約877m

間取り:328000607364
  • 2,280万円
  • 兵庫県姫路市青山5丁目
  • 姫新線 余部駅/徒歩17分
  • 5LDK/築12 年
  • 122.00㎡(建物)
  • 320.66㎡(土地)

姫路市の不動産ならお任せください!中地ICより南に車で約4分!れくすむ姫路店まで!

  • 駐車場有
  • システム
    キッチン
  • 追焚機能
  • 所有権
  • 低層住宅地
  • 南向き
  • 小学校
    800m以内
  • スーパー
    800m以内
株式会社Sun Climb れくすむ姫路店

「すまいをレクチャーする町の不動産屋」をコンセプトに1人1人のお客様にとって最善の選択ができるよう「購入」「売却」「賃貸」「賃貸管理」のサポートをさせて頂いております!

その他の情報

外観:328000559064
中古戸建て 空家

【近い!】 但馬銀行 青山支店まで約890m

間取り:328000559064
  • 2,280万円
  • 兵庫県姫路市青山5丁目
  • 姫新線 余部駅/徒歩21分
  • 5LDK/築12 年
  • 122.00㎡(建物)
  • 330.66㎡(土地)

【R7年11月リフォーム】快適に新生活を始めていただけます。■敷地面積100坪超えのゆとりある広さです!■徒歩10分圏内に生活施設充実!■オール電化のため、日々の生活がより安全でクリーンに

  • 駐車場有
  • システム
    キッチン
  • 追焚機能
  • 所有権
  • 低層住宅地
  • 南向き
  • 小学校
    800m以内
  • スーパー
    800m以内
センチュリー21 株式会社フロンティア住宅販売 姫路店

姫路市飾磨区、中地インターからすぐ!キッズスペース・駐車場も完備! 新築・中古問わず豊富な情報と実績から幅広く物件を取扱うため、多様な提携住宅ローンを融資承認率高くご提案可能です!是非お問合せ下さい!

その他の情報

外観:328000467396
中古戸建て 空家

【近い!】 但馬銀行 青山支店まで約823m

間取り:328000467396
  • 1,580万円
  • 兵庫県姫路市青山5丁目
  • 姫新線 余部駅/徒歩20分
  • 2SLDK/築23 年
  • 111.16㎡(建物)
  • 142.18㎡(土地)

オール電化の物件ですので光熱費も削減可能です! 駐車場2台駐車可能(車種によります) 室内非常に丁寧に利用されております! リビング広々16帖となります。 14.5帖の広々洋室もございます。

  • 駐車場有
  • システム
    キッチン
  • 追焚機能
  • 所有権
  • 低層住宅地
  • 南向き
  • 小学校
    800m以内
  • スーパー
    800m以内
株式会社アールエステート

加古川市~姫路市を中心に新築・中古戸建、マンション、土地をお探しの方はご連絡下さい。地元密着型会社の他社様にはない物件情報量が自慢です。又、住宅ローンでお悩みの方もご連絡下さい。ローン審査に自信あり!

その他の情報

外観:328000558789
中古戸建て 空家

【近い!】 但馬銀行 青山支店まで約902m

間取り:328000558789
  • 2,280万円
  • 兵庫県姫路市青山5丁目
  • 姫新線 余部駅/徒歩21分
  • 5LDK/築12 年
  • 122.00㎡(建物)
  • 320.66㎡(土地)

≪内装一部リフォーム済み!≫■オール電化住宅■広々5LDKの間取り■全居室収納スペースあり■閑静な住宅地

  • 駐車場有
  • システム
    キッチン
  • 追焚機能
  • 所有権
  • 低層住宅地
  • 南向き
  • 小学校
    800m以内
  • スーパー
    800m以内
ハウスドゥ 中地南 株式会社8c

不動産の購入も売却も人生の中で幾度もあるようなイベントではありません。ハウスドゥ 中地南ではお客様により良い御決断をして頂くために全てのプランをご提案させて頂きます!

その他の情報

外観:328000568040
中古戸建て 空家

【近い!】 但馬銀行 青山支店まで約882m

間取り:328000568040
  • 2,280万円
  • 兵庫県姫路市青山5丁目
  • 姫新線 余部駅/徒歩16分
  • 5LDK/築12 年
  • 122.00㎡(建物)
  • 320.66㎡(土地)

◆5LDKの広々空間で家族快適です。◇2014年築リフォーム済み、すぐ入居可。

  • 駐車場有
  • システム
    キッチン
  • 追焚機能
  • 所有権
  • 低層住宅地
  • 南向き
  • 小学校
    800m以内
  • スーパー
    800m以内
センチュリー21ファーストホーム(兵庫)

お客様一人ひとりの気持ちに寄り添い、安心して相談できる売買仲介サービスを提供しています。丁寧な説明とあたたかな対応で、理想のお住まい探しをやさしくサポートいたします。

その他の情報

外観:328000417130
中古戸建て 空家

【近い!】 但馬銀行 青山支店まで約825m

間取り:328000417130
  • 1,580万円
  • 兵庫県姫路市青山5丁目
  • 姫新線 余部駅/徒歩20分
  • 3SLDK/築23 年
  • 111.16㎡(建物)
  • 142.18㎡(土地)

■本日ご対応可能!■オール電化住宅/広々3SLDK/カーポート(1台可)■マルナカ青山店まで徒歩約7分!■当日のご相談予約はお電話がスムーズ

  • 駐車場有
  • システム
    キッチン
  • 追焚機能
  • 所有権
  • 低層住宅地
  • 南向き
  • 小学校
    800m以内
  • スーパー
    800m以内
センチュリー21 株式会社フロンティア住宅販売 姫路店

姫路市飾磨区、中地インターからすぐ!キッズスペース・駐車場も完備! 新築・中古問わず豊富な情報と実績から幅広く物件を取扱うため、多様な提携住宅ローンを融資承認率高くご提案可能です!是非お問合せ下さい!

その他の情報

外観:328000465900
中古戸建て 空家

【近い!】 但馬銀行 青山支店まで約830m

間取り:328000465900
  • 1,580万円
  • 兵庫県姫路市青山5丁目
  • 姫新線 余部駅/徒歩20分
  • 3SLDK/築23 年
  • 111.16㎡(建物)
  • 142.18㎡(土地)

\広々リビング16帖、3SLDKのお家!/≪バス停まで徒歩4分♪≫≪収納スペース充実♪≫お問い合わせはハウスドゥ中地南まで!

  • 駐車場有
  • システム
    キッチン
  • 追焚機能
  • 所有権
  • 低層住宅地
  • 南向き
  • 小学校
    800m以内
  • スーパー
    800m以内
ハウスドゥ 中地南 株式会社8c

不動産の購入も売却も人生の中で幾度もあるようなイベントではありません。ハウスドゥ 中地南ではお客様により良い御決断をして頂くために全てのプランをご提案させて頂きます!

その他の情報

外観:328000567617
中古戸建て 空家

但馬銀行 青山支店まで約1631m

間取り:328000567617
  • 1,498万円
  • 兵庫県姫路市広畑区蒲田
  • 姫新線 播磨高岡駅/バス 7分/東夢前台4丁目 徒歩5分
  • 6LDK/築26 年
  • 146.56㎡(建物)
  • 188.55㎡(土地)

【ゆとりの6LDK!即内覧可】リフォーム済■バス停徒歩圏内で公共交通機関の利用も便利■収納が充実しているのでお部屋をすっきりと保てます■和を感じる畳のある心地よいおうちです

  • 駐車場有
  • システム
    キッチン
  • 追焚機能
  • 所有権
  • 低層住宅地
  • 南向き
  • 小学校
    800m以内
  • スーパー
    800m以内
センチュリー21 株式会社フロンティア住宅販売 姫路店

姫路市飾磨区、中地インターからすぐ!キッズスペース・駐車場も完備! 新築・中古問わず豊富な情報と実績から幅広く物件を取扱うため、多様な提携住宅ローンを融資承認率高くご提案可能です!是非お問合せ下さい!

その他の情報

外観:328000576986
中古戸建て 空家

但馬銀行 青山支店まで約1608m

間取り:328000576986
  • 1,190万円
  • 兵庫県姫路市西夢前台1丁目
  • 姫新線 余部駅/徒歩9分
  • 5DK/築48 年
  • 99.68㎡(建物)
  • 149.21㎡(土地)

【余部駅徒歩9分+即内覧!】駅へのアクセス良好です■5DKのゆとりある間取りで、ライフスタイルに柔軟に対応■ベランダ南向きで、日当たりが良く明るい住空間が魅力です■生活施設が徒歩10分圏内

  • 駐車場有
  • システム
    キッチン
  • 追焚機能
  • 所有権
  • 低層住宅地
  • 南向き
  • 小学校
    800m以内
  • スーパー
    800m以内
センチュリー21 株式会社フロンティア住宅販売 姫路店

姫路市飾磨区、中地インターからすぐ!キッズスペース・駐車場も完備! 新築・中古問わず豊富な情報と実績から幅広く物件を取扱うため、多様な提携住宅ローンを融資承認率高くご提案可能です!是非お問合せ下さい!

その他の情報

外観:328000619656
中古戸建て

但馬銀行 青山支店まで約1252m

間取り:328000619656
  • 1,180万円
  • 兵庫県姫路市青山北3丁目
  • 姫新線 余部駅/徒歩11分
  • 4DK/築47 年
  • 110.75㎡(建物)
  • 225.45㎡(土地)

閑静な住宅街にある敷地約68坪の中古戸建物件♪JR「余部駅」徒歩11分!全居室6帖以上でゆったり生活☆スーパー・コンビニ徒歩10分圏内でお買い物も便利♪お車2台駐車できます

  • 駐車場有
  • システム
    キッチン
  • 追焚機能
  • 所有権
  • 低層住宅地
  • 南向き
  • 小学校
    800m以内
  • スーパー
    800m以内
株式会社アールエステート

加古川市~姫路市を中心に新築・中古戸建、マンション、土地をお探しの方はご連絡下さい。地元密着型会社の他社様にはない物件情報量が自慢です。又、住宅ローンでお悩みの方もご連絡下さい。ローン審査に自信あり!

その他の情報

外観:328000586192
中古戸建て 空家

【近い!】 但馬銀行 青山支店まで約824m

間取り:328000586192
  • 1,580万円
  • 兵庫県姫路市青山5丁目
  • 姫新線 余部駅/徒歩20分
  • 3SLDK/築23 年
  • 111.16㎡(建物)
  • 142.18㎡(土地)

◆閑静な住宅地の2階建て ◆広々3SLDK ◆オール電化で快適エコ生活。

  • 駐車場有
  • システム
    キッチン
  • 追焚機能
  • 所有権
  • 低層住宅地
  • 南向き
  • 小学校
    800m以内
  • スーパー
    800m以内
センチュリー21ファーストホーム(兵庫)

お客様一人ひとりの気持ちに寄り添い、安心して相談できる売買仲介サービスを提供しています。丁寧な説明とあたたかな対応で、理想のお住まい探しをやさしくサポートいたします。

その他の情報

外観:328000583464
中古戸建て 空家

但馬銀行 青山支店まで約1633m

間取り:328000583464
  • 1,498万円
  • 兵庫県姫路市広畑区蒲田
  • 姫新線 播磨高岡駅/徒歩15分
  • 6LDK/築26 年
  • 146.56㎡(建物)
  • 188.55㎡(土地)

≪令和7年8月にリフォーム完了!≫■広々6LDKの間取り■車庫付き■駅まで徒歩15分■駐車2台可能

  • 駐車場有
  • システム
    キッチン
  • 追焚機能
  • 所有権
  • 低層住宅地
  • 南向き
  • 小学校
    800m以内
  • スーパー
    800m以内
ハウスドゥ 中地南 株式会社8c

不動産の購入も売却も人生の中で幾度もあるようなイベントではありません。ハウスドゥ 中地南ではお客様により良い御決断をして頂くために全てのプランをご提案させて頂きます!

その他の情報

NO IMAGE
中古戸建て 空家

但馬銀行 青山支店まで約1630m

間取り:328000580461
  • 1,498万円
  • 兵庫県姫路市広畑区蒲田
  • 姫新線 播磨高岡駅/徒歩15分
  • 6LDK/築26 年
  • 146.56㎡(建物)
  • 188.55㎡(土地)

くらすONEは一級建築士、宅地建物取引士、専属デザイナー、各分野のプロが在籍している不動産仲介をはじめ注文住宅やリフォームにも特化しているお店です♪住まいに関する事は何でも気軽にお問い合わせください。

  • 駐車場有
  • システム
    キッチン
  • 追焚機能
  • 所有権
  • 低層住宅地
  • 南向き
  • 小学校
    800m以内
  • スーパー
    800m以内
株式会社くらすONE

くらすONEは一級建築士、宅地建物取引士、専属デザイナー、各分野のプロが在籍。不動産仲介をはじめ注文住宅やリフォームにも特化しているお店です♪住まいに関するご相談はくらすONEまでご相談くださi!

その他の情報

外観:328000493082
中古戸建て 空家

但馬銀行 青山支店まで約1907m

間取り:328000493082
  • 890万円
  • 兵庫県姫路市下手野1丁目
  • 姫新線 播磨高岡駅/徒歩13分
  • 3SLDK/築27 年
  • 81.24㎡(建物)
  • 69.80㎡(土地)

【業務スーパーまで徒歩6分!】毎日のお買い物に便利な立地■全居室収納と納戸もあり収納豊富です■駐車場があるのでお車をお持ちの方も安心■最寄りのバス停まで徒歩5分!JR山陰本線も利用可能です

  • 駐車場有
  • システム
    キッチン
  • 追焚機能
  • 所有権
  • 低層住宅地
  • 南向き
  • 小学校
    800m以内
  • スーパー
    800m以内
センチュリー21 株式会社フロンティア住宅販売 姫路店

姫路市飾磨区、中地インターからすぐ!キッズスペース・駐車場も完備! 新築・中古問わず豊富な情報と実績から幅広く物件を取扱うため、多様な提携住宅ローンを融資承認率高くご提案可能です!是非お問合せ下さい!

その他の情報

NO IMAGE
中古戸建て 空家

【近い!】 但馬銀行 青山支店まで約829m

間取り:328000608541
  • 1,580万円
  • 兵庫県姫路市青山5丁目
  • 姫新線 余部駅/徒歩21分
  • 3SLDK/築23 年
  • 111.16㎡(建物)
  • 142.18㎡(土地)

姫路市の不動産ならお任せください!中地ICより南に車で約4分!れくすむ姫路店まで!

  • 駐車場有
  • システム
    キッチン
  • 追焚機能
  • 所有権
  • 低層住宅地
  • 南向き
  • 小学校
    800m以内
  • スーパー
    800m以内
株式会社Sun Climb れくすむ姫路店

「すまいをレクチャーする町の不動産屋」をコンセプトに1人1人のお客様にとって最善の選択ができるよう「購入」「売却」「賃貸」「賃貸管理」のサポートをさせて頂いております!

その他の情報

外観:328000549115
中古戸建て

【近い!】 但馬銀行 青山支店まで約549m

間取り:328000549115
  • 1,580万円
  • 兵庫県姫路市青山5丁目
  • 山陽本線 姫路駅/バス 28分/青山 徒歩3分
  • 3SLDK/築23 年
  • 111.16㎡(建物)
  • 142.18㎡(土地)

くらすONEは一級建築士、宅建取引士、専属デザイナー、各分野のプロが在籍しており、不動産仲介をはじめ注文住宅やリフォームにも特化しているお店です♪姫路市・たつの市周辺の住まいに関するご相談は株式会社く

  • 駐車場有
  • システム
    キッチン
  • 追焚機能
  • 所有権
  • 低層住宅地
  • 南向き
  • 小学校
    800m以内
  • スーパー
    800m以内
株式会社くらすONE

くらすONEは一級建築士、宅地建物取引士、専属デザイナー、各分野のプロが在籍。不動産仲介をはじめ注文住宅やリフォームにも特化しているお店です♪住まいに関するご相談はくらすONEまでご相談くださi!

その他の情報

外観:328000497077
中古戸建て

但馬銀行 青山支店まで約1648m

NO IMAGE
  • 1,500万円
  • 兵庫県姫路市青山北1丁目
  • 姫新線 余部駅/徒歩5分
  • 7DK/築34 年
  • 78.23㎡(建物)
  • 126.08㎡(土地)

JR「余部駅」徒歩5分!通勤・通学に非常に便利です☆周辺は閑静な住宅街です☆近隣商業施設・医療機関が大変充実しています!近くに川もあり、河川敷をお散歩などいかがですか?

  • 駐車場有
  • システム
    キッチン
  • 追焚機能
  • 所有権
  • 低層住宅地
  • 南向き
  • 小学校
    800m以内
  • スーパー
    800m以内
株式会社アールエステート

加古川市~姫路市を中心に新築・中古戸建、マンション、土地をお探しの方はご連絡下さい。地元密着型会社の他社様にはない物件情報量が自慢です。又、住宅ローンでお悩みの方もご連絡下さい。ローン審査に自信あり!

その他の情報

NO IMAGE
中古戸建て 空家

但馬銀行 青山支店まで約1851m

間取り:328000607352
  • 1,980万円
  • 兵庫県姫路市広畑区西夢前台5丁目
  • 山陽本線 姫路駅/バス 18分/城山 徒歩2分
  • 7SLDK/築50 年
  • 209.85㎡(建物)
  • 230.98㎡(土地)

姫路市の不動産お任せください!中地ICより南に車で約4分!れくすむ姫路店まで!

  • 駐車場有
  • システム
    キッチン
  • 追焚機能
  • 所有権
  • 低層住宅地
  • 南向き
  • 小学校
    800m以内
  • スーパー
    800m以内
株式会社Sun Climb れくすむ姫路店

「すまいをレクチャーする町の不動産屋」をコンセプトに1人1人のお客様にとって最善の選択ができるよう「購入」「売却」「賃貸」「賃貸管理」のサポートをさせて頂いております!

その他の情報

NO IMAGE
中古戸建て

但馬銀行 青山支店まで約1252m

間取り:328000608045
  • 1,180万円
  • 兵庫県姫路市青山北3丁目
  • 姫新線 余部駅/徒歩10分
  • 4DK/築47 年
  • 110.75㎡(建物)
  • 225.45㎡(土地)

姫路市の不動産ならお任せください!中地ICより南に車で約4分!れくすむ姫路店まで!

  • 駐車場有
  • システム
    キッチン
  • 追焚機能
  • 所有権
  • 低層住宅地
  • 南向き
  • 小学校
    800m以内
  • スーパー
    800m以内
株式会社Sun Climb れくすむ姫路店

「すまいをレクチャーする町の不動産屋」をコンセプトに1人1人のお客様にとって最善の選択ができるよう「購入」「売却」「賃貸」「賃貸管理」のサポートをさせて頂いております!

その他の情報

外観:328000464633
中古戸建て 空家

【近い!】 但馬銀行 青山支店まで約988m

間取り:328000464633
  • 1,390万円
  • 兵庫県姫路市青山2丁目
  • 姫新線 余部駅/徒歩19分
  • 5LDK/築37 年
  • 119.61㎡(建物)
  • 264.46㎡(土地)

閑静な住宅街にある住友林業施工の庭付き戸建中古物件♪敷地面積広々約79坪!JR「余部駅」徒歩19分♪スーパーまで徒歩5分、コンビニまで徒歩8分でお買い物にも便利♪サンルーム・物置付き☆

  • 駐車場有
  • システム
    キッチン
  • 追焚機能
  • 所有権
  • 低層住宅地
  • 南向き
  • 小学校
    800m以内
  • スーパー
    800m以内
株式会社アールエステート

加古川市~姫路市を中心に新築・中古戸建、マンション、土地をお探しの方はご連絡下さい。地元密着型会社の他社様にはない物件情報量が自慢です。又、住宅ローンでお悩みの方もご連絡下さい。ローン審査に自信あり!

その他の情報

外観:328000568322
中古戸建て 空家

但馬銀行 青山支店まで約1842m

間取り:328000568322
  • 1,498万円
  • 兵庫県姫路市広畑区蒲田
  • 姫新線 播磨高岡駅/徒歩15分
  • 6LDK/築26 年
  • 146.56㎡(建物)
  • 188.55㎡(土地)

◆広々6LDK!緑豊かな住宅地で穏やかに暮らせます。◆即入居可能・システムキッチン・庭付きです。

  • 駐車場有
  • システム
    キッチン
  • 追焚機能
  • 所有権
  • 低層住宅地
  • 南向き
  • 小学校
    800m以内
  • スーパー
    800m以内
センチュリー21ファーストホーム(兵庫)

お客様一人ひとりの気持ちに寄り添い、安心して相談できる売買仲介サービスを提供しています。丁寧な説明とあたたかな対応で、理想のお住まい探しをやさしくサポートいたします。

その他の情報

1ページ目(3ページ中) 次へ
この条件で新着メールを受取る
この検索条件を保存する

姫路市の物件も見てみませんか?

現在のページで希望の物件が見つからなければエリアから探してみてもいいかもしれません。

姫路市の物件を見る

※但馬銀行 青山支店までの直線距離を表示しています。道路距離ではありませんのでご了承ください。

追加が完了しました。

現在00件保存されています。(最大5件)

保存した条件一覧を見る

現在00件保存されています。

残り00件追加することができます。

お気に入り物件一覧を見る

間隔を空けてお試しください。

問合せが未完了の物件

条件を変更
チェックした物件をまとめて 資料請求(無料) お気に入りに追加