阿見第一小学校(稲敷郡阿見町)近くの中古住宅・中古一戸建ての購入情報

阿見第一小学校(稲敷郡阿見町)近くの中古住宅・中古一戸建ての購入情報をご覧いただけます。

33

↓ チェックした物件をまとめてお問い合わせ

外観:308000173322
中古戸建て 空家

阿見第一小学校まで約2813m

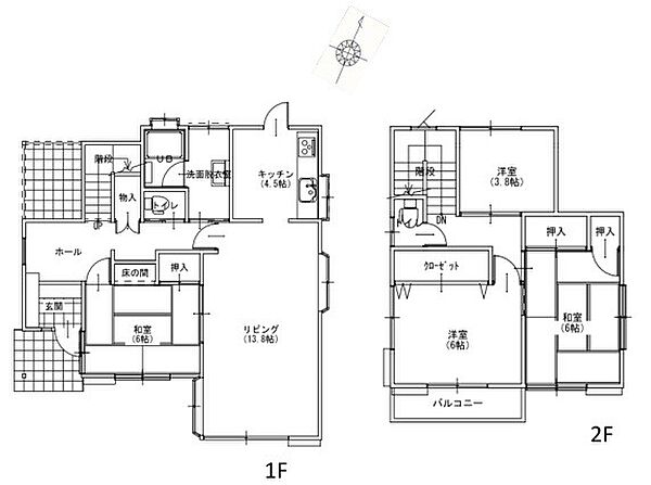
間取り:308000173322
  • 2,480万円
  • 茨城県土浦市右籾
  • 常磐線 荒川沖駅/徒歩31分
  • 4LDK/築2 年
  • 108.47㎡(建物)
  • 144.24㎡(土地)

【完成済み!本日内見可能です!】JR常磐線「荒川沖駅」徒歩38分。人気の角地物件。

  • 駐車場有
  • システム
    キッチン
  • 追焚機能
  • 所有権
  • 低層住宅地
  • 南向き
  • 小学校
    800m以内
  • スーパー
    800m以内
センチュリー21ハウスモア

当社はオープンフロアとなっており、気軽にご来店頂ける空間作りをしています。駐車場多数完備・キッズコーナーもご用意しておりますので、是非ご家族様皆様でご来店くださいませ。

その他の情報

外観:308000167965
中古戸建て 空家

阿見第一小学校まで約1422m

NO IMAGE
  • 2,600万円
  • 茨城県稲敷郡阿見町中央2丁目
  • 常磐線 土浦駅/バス 17分/県立医療大学入口 徒歩4分
  • 3LDK/築4 年
  • 106.81㎡(建物)
  • 195.99㎡(土地)

◆令和4年築!築浅戸建◆駐車台数3台・広々お庭・バルコニー2箇所!59坪の広々戸建!◆即日内見可能!

  • 駐車場有
  • システム
    キッチン
  • 追焚機能
  • 所有権
  • 低層住宅地
  • 南向き
  • 小学校
    800m以内
  • スーパー
    800m以内
株式会社smartplus取手

経験豊富なスタッフがお客様に合う最適なご提案を致します。住宅ローンは特に仲介業者によって提案の内容が変わってきます。弊社は自信を持ってお客様にご提案させていただきます!

その他の情報

外観:308000165866
中古戸建て 空家

【近い!】 阿見第一小学校まで約960m

間取り:308000165866
  • 1,850万円
  • 茨城県稲敷郡阿見町大字青宿
  • 常磐線 土浦駅/徒歩53分
  • 5LDK/築44 年
  • 159.78㎡(建物)
  • 337.05㎡(土地)

阿見町で住まいをお探しのお客様は是非リバティーホームへ  当日や遅めの時間のご見学も調整可能です♪

  • 駐車場有
  • システム
    キッチン
  • 追焚機能
  • 所有権
  • 低層住宅地
  • 南向き
  • 小学校
    800m以内
  • スーパー
    800m以内
株式会社Liberty

『自由で楽しい』不動産探しはリバティーホームにお任せ下さい♪

その他の情報

外観:308000152993
中古戸建て 空家

阿見第一小学校まで約1150m

間取り:308000152993
  • 798万円
  • 茨城県稲敷郡阿見町大字大室
  • 常磐線 土浦駅/徒歩70分
  • 4LDK/築39 年
  • 100.04㎡(建物)
  • 173.37㎡(土地)

【内外装フルリフォーム済再生住宅×周辺物件もまとめてご案内します♪】 ■角地につき日当たり・通風良好 ■各所に配置された豊富な収納 ■経済的な都市ガス物件 ■LDK広々17帖 ■心安らぐ畳の和室

  • 駐車場有
  • システム
    キッチン
  • 追焚機能
  • 所有権
  • 低層住宅地
  • 南向き
  • 小学校
    800m以内
  • スーパー
    800m以内
株式会社ひだまりハウス つくば店

弊社では、茨城県南を中心に新築・中古・土地・マンションのご購入から、 売却・ローンのご相談など幅広くご相談頂けます。キッズスペースもご用意しておりますので、お気軽にご来店ください。

その他の情報

外観:308000152900
中古戸建て 空家

【近い!】 阿見第一小学校まで約929m

間取り:308000152900
  • 798万円
  • 茨城県稲敷郡阿見町大字曙
  • 常磐線 土浦駅/徒歩75分
  • 5DK/築52 年
  • 109.30㎡(建物)
  • 213.79㎡(土地)

【リフォーム物件・本日ご見学可能物件】 ■ゆったり広々8帖の主寝室! ■大容量の倉庫完備! ■2部屋から出入りできるバルコニーで、お洗濯物の干し分けもできちゃいます!

  • 駐車場有
  • システム
    キッチン
  • 追焚機能
  • 所有権
  • 低層住宅地
  • 南向き
  • 小学校
    800m以内
  • スーパー
    800m以内
株式会社ひだまりハウス つくば店

弊社では、茨城県南を中心に新築・中古・土地・マンションのご購入から、 売却・ローンのご相談など幅広くご相談頂けます。キッズスペースもご用意しておりますので、お気軽にご来店ください。

その他の情報

外観:308000173193
中古戸建て 空家

阿見第一小学校まで約2714m

間取り:308000173193
  • 1,699万円
  • 茨城県土浦市右籾
  • 常磐線 荒川沖駅/徒歩40分
  • 3LDK/築39 年
  • 78.66㎡(建物)
  • 166.16㎡(土地)

【即日内覧・見学予約可能です♪内外装リフォーム済み物件♪】 ■全居室6帖以上!ゆとりのある3LDK! ■たっぷりの陽光と心地よい風が舞い込む住まい! ■閑静な住宅地!

  • 駐車場有
  • システム
    キッチン
  • 追焚機能
  • 所有権
  • 低層住宅地
  • 南向き
  • 小学校
    800m以内
  • スーパー
    800m以内
株式会社ひだまりハウス つくば店

弊社では、茨城県南を中心に新築・中古・土地・マンションのご購入から、 売却・ローンのご相談など幅広くご相談頂けます。キッズスペースもご用意しておりますので、お気軽にご来店ください。

その他の情報

外観:308000170173
中古戸建て 空家

【近い!】 阿見第一小学校まで約962m

間取り:308000170173
  • 1,850万円
  • 茨城県稲敷郡阿見町大字青宿
  • 常磐線 土浦駅/徒歩53分
  • 5SLDK/築44 年
  • 159.78㎡(建物)
  • 337.05㎡(土地)

【リフォーム物件!×本日ご見学可能物件!×閑静な住宅地!】 ■玄関ポーチがあり、雨や雪が玄関に吹きこみません! ■トイレは1F、2F共に完備! ■ポンポンしまえる大容量の納戸付き!

  • 駐車場有
  • システム
    キッチン
  • 追焚機能
  • 所有権
  • 低層住宅地
  • 南向き
  • 小学校
    800m以内
  • スーパー
    800m以内
株式会社ひだまりハウス つくば店

弊社では、茨城県南を中心に新築・中古・土地・マンションのご購入から、 売却・ローンのご相談など幅広くご相談頂けます。キッズスペースもご用意しておりますので、お気軽にご来店ください。

その他の情報

外観:308000173192
中古戸建て 空家

阿見第一小学校まで約2958m

間取り:308000173192
  • 1,688万円
  • 茨城県土浦市右籾
  • 常磐線 荒川沖駅/徒歩28分
  • 4LDK/築29 年
  • 101.44㎡(建物)
  • 165.29㎡(土地)

【即日内覧・見学予約可能です!令和2年内外装リフォーム済み♪】 ■車の出入りもラクラクな前面道路幅6m! ■たっぷりの陽光と心地よい風が舞い込む住まい! ■閑静な住宅地!

  • 駐車場有
  • システム
    キッチン
  • 追焚機能
  • 所有権
  • 低層住宅地
  • 南向き
  • 小学校
    800m以内
  • スーパー
    800m以内
株式会社ひだまりハウス つくば店

弊社では、茨城県南を中心に新築・中古・土地・マンションのご購入から、 売却・ローンのご相談など幅広くご相談頂けます。キッズスペースもご用意しておりますので、お気軽にご来店ください。

その他の情報

外観:308000146324
中古戸建て 空家

阿見第一小学校まで約1331m

間取り:308000146324
  • 600万円
  • 茨城県土浦市烏山2丁目
  • 常磐線 土浦駅/徒歩57分
  • 5DK/築46 年
  • 106.82㎡(建物)
  • 330.80㎡(土地)

土浦市で住まいをお探しのお客様は是非リバティーホームへ  当日や遅めの時間のご見学も調整可能です♪

  • 駐車場有
  • システム
    キッチン
  • 追焚機能
  • 所有権
  • 低層住宅地
  • 南向き
  • 小学校
    800m以内
  • スーパー
    800m以内
株式会社Liberty

『自由で楽しい』不動産探しはリバティーホームにお任せ下さい♪

その他の情報

外観:308000165516
中古戸建て 空家

【近い!】 阿見第一小学校まで約506m

間取り:308000165516
  • 1,649万円
  • 茨城県稲敷郡阿見町中央5丁目
  • 常磐線 荒川沖駅/徒歩70分
  • 3LDK/築41 年
  • 105.70㎡(建物)
  • 176.52㎡(土地)

【見学会開催】【リフォーム中3月下旬完成予定】 小学校(約600m)が近く、毎日の通学も安心。買い物施設(コンビニ約500m・スーパー約700m)もそろった立地。

  • 駐車場有
  • システム
    キッチン
  • 追焚機能
  • 所有権
  • 低層住宅地
  • 南向き
  • 小学校
    800m以内
  • スーパー
    800m以内
株式会社カチタス つくば(北エリア)店

当社はニトリと業務・資本提携を結ぶ、東証プライム上場企業です。物件を知り尽くしたプロが中古物件を買い取り、細部までチェックし、自社規格に沿って丁寧にリフォームしているので、ご購入後も安心が続きます。

その他の情報

外観:308000172458
中古戸建て 空家

阿見第一小学校まで約1838m

間取り:308000172458
  • 1,980万円
  • 茨城県稲敷郡阿見町大字鈴木
  • 常磐線 荒川沖駅/徒歩68分
  • 3LDK/築17 年
  • 127.52㎡(建物)
  • 287.67㎡(土地)

阿見町役場から1.1km、区画整理された静かな住宅地の一角です。土地は開放感を感じられる角地で、87坪あります。建物は平成21年築、全居室に収納があります。駐車場は3台分あり、来客用にも使えます。

  • 駐車場有
  • システム
    キッチン
  • 追焚機能
  • 所有権
  • 低層住宅地
  • 南向き
  • 小学校
    800m以内
  • スーパー
    800m以内
株式会社筑波商事 ひたち野うしく店

初めての1人暮らし・持ち家の購入・終の棲家、ライフイベントや家族構成の変化によって人の住まいは変わります。会社は大きくありませんが、その最初から最後までに携わっていけるような会社を目指しています。

その他の情報

外観:308000163762
中古戸建て 空家

【近い!】 阿見第一小学校まで約312m

間取り:308000163762
  • 1,399万円
  • 茨城県稲敷郡阿見町岡崎1丁目
  • 常磐線 土浦駅/徒歩63分
  • 4LDK/築36 年
  • 89.43㎡(建物)
  • 105.81㎡(土地)

【見学会開催】【リフォーム中】 下水道接続、水廻り交換予定。阿見第一小学校まで約500m・ローソン阿見霞台店まで約450m・カスミフードスクエア阿見店まで約650m・東京医療大学茨城医療センターまで

  • 駐車場有
  • システム
    キッチン
  • 追焚機能
  • 所有権
  • 低層住宅地
  • 南向き
  • 小学校
    800m以内
  • スーパー
    800m以内
株式会社カチタス つくば(北エリア)店

当社はニトリと業務・資本提携を結ぶ、東証プライム上場企業です。物件を知り尽くしたプロが中古物件を買い取り、細部までチェックし、自社規格に沿って丁寧にリフォームしているので、ご購入後も安心が続きます。

その他の情報

外観:308000150579
中古戸建て

【近い!】 阿見第一小学校まで約313m

間取り:308000150579
  • 1,870万円
  • 茨城県稲敷郡阿見町中央3丁目
  • 常磐線 荒川沖駅/徒歩70分
  • 6SLDK/築27 年
  • 168.72㎡(建物)
  • 281.46㎡(土地)

【ハウスドゥ土浦南】外断熱工法で高気密高断熱の家■建坪約51坪!6LDK+納戸■土地71坪■東京医大茨城医療センターまで徒歩約4分■小・中学校まで徒歩約15分

  • 駐車場有
  • システム
    キッチン
  • 追焚機能
  • 所有権
  • 低層住宅地
  • 南向き
  • 小学校
    800m以内
  • スーパー
    800m以内
ハウスドゥ 土浦南 島岡商事株式会社

弊社は土浦市・阿見町を中心に35年以上不動産業を営んで参りました。購入から売却まで幅広くご相談頂けます。お悩みやご希望、ご不明な点等ありましたらお気軽にお問合せくださいませ。

その他の情報

外観:308000160897
中古戸建て 空家

阿見第一小学校まで約2021m

間取り:308000160897
  • 1,499万円
  • 茨城県土浦市烏山5丁目
  • 常磐線 荒川沖駅/徒歩62分
  • 4SLDK/築37 年
  • 116.75㎡(建物)
  • 166.98㎡(土地)

【見学会開催】【リフォーム済】 【即入居可】 車通りが少ない閑静な住宅街。前面道路も約12mと広く駐車も停め易いです。 駐車スペース並列2台拡張、水廻り交換、一部床フローリング張り、クロス張替、

  • 駐車場有
  • システム
    キッチン
  • 追焚機能
  • 所有権
  • 低層住宅地
  • 南向き
  • 小学校
    800m以内
  • スーパー
    800m以内
株式会社カチタス つくば(北エリア)店

当社はニトリと業務・資本提携を結ぶ、東証プライム上場企業です。物件を知り尽くしたプロが中古物件を買い取り、細部までチェックし、自社規格に沿って丁寧にリフォームしているので、ご購入後も安心が続きます。

その他の情報

外観:308000165667
中古戸建て 空家

阿見第一小学校まで約2731m

間取り:308000165667
  • 2,650万円
  • 茨城県土浦市右籾
  • 常磐線 荒川沖駅/徒歩45分
  • 5SLDK/築19 年
  • 186.00㎡(建物)
  • 492.92㎡(土地)

■ハウスドゥ土浦南■本日内見できます!敷地約150坪・建物56坪 二世帯仕様の戸建です二世帯利用や間取りに余裕を持ちたい方にピッタリです全居室南向きの為陽当たり良好!普通車4台駐車可能です

  • 駐車場有
  • システム
    キッチン
  • 追焚機能
  • 所有権
  • 低層住宅地
  • 南向き
  • 小学校
    800m以内
  • スーパー
    800m以内
ハウスドゥ 土浦南 島岡商事株式会社

弊社は土浦市・阿見町を中心に35年以上不動産業を営んで参りました。購入から売却まで幅広くご相談頂けます。お悩みやご希望、ご不明な点等ありましたらお気軽にお問合せくださいませ。

その他の情報

外観:308000144065
中古戸建て 空家

阿見第一小学校まで約1170m

間取り:308000144065
  • 780万円
  • 茨城県稲敷郡阿見町大字大室
  • 常磐線 土浦駅/徒歩72分
  • 5SLDK/築34 年
  • 155.19㎡(建物)
  • 215.39㎡(土地)

◇大家族で住める5LDK・建坪46坪・敷地65坪!5LDK◇景観良好♪西側から霞ケ浦の湖が見えます♪南西角地で、車のすれ違いもしやすい接道♪吹き抜け玄関で開放感のあるつくりとなっております

  • 駐車場有
  • システム
    キッチン
  • 追焚機能
  • 所有権
  • 低層住宅地
  • 南向き
  • 小学校
    800m以内
  • スーパー
    800m以内
ハウスドゥ 土浦南 島岡商事株式会社

弊社は土浦市・阿見町を中心に35年以上不動産業を営んで参りました。購入から売却まで幅広くご相談頂けます。お悩みやご希望、ご不明な点等ありましたらお気軽にお問合せくださいませ。

その他の情報

外観:308000173145
中古戸建て 空家

【近い!】 阿見第一小学校まで約580m

間取り:308000173145
  • 999万円
  • 茨城県稲敷郡阿見町中央5丁目
  • 常磐線 荒川沖駅/徒歩77分
  • 4SLDK/築44 年
  • 108.62㎡(建物)
  • 163.26㎡(土地)

【見学会開催】 3月31日まで現況販売/年内入居可/ナショナル施工/新耐震適合/前面道路幅員6m/庭スペースあり/阿見第一小学校徒歩10分/ランドロームフードマーケット阿見店まで徒歩5分/閑静な住宅地

  • 駐車場有
  • システム
    キッチン
  • 追焚機能
  • 所有権
  • 低層住宅地
  • 南向き
  • 小学校
    800m以内
  • スーパー
    800m以内
株式会社カチタス つくば(北エリア)店

当社はニトリと業務・資本提携を結ぶ、東証プライム上場企業です。物件を知り尽くしたプロが中古物件を買い取り、細部までチェックし、自社規格に沿って丁寧にリフォームしているので、ご購入後も安心が続きます。

その他の情報

外観:308000173993
中古戸建て 空家

阿見第一小学校まで約2019m

間取り:308000173993
  • 1,499万円
  • 茨城県土浦市烏山5丁目
  • 常磐線 荒川沖駅/徒歩45分
  • 4SLDK/築37 年
  • 116.75㎡(建物)
  • 166.98㎡(土地)
  • 駐車場有
  • システム
    キッチン
  • 追焚機能
  • 所有権
  • 低層住宅地
  • 南向き
  • 小学校
    800m以内
  • スーパー
    800m以内
香陵住販株式会社 つくば支店

::お客様の満足度NO.1企業を目指します::茨城県南エリアのご相談はお任せください。お気軽にご来店下さいませ。駐車場は店舗前コインパーキング(香陵住販ご来店のお客様に限り無料)をご利用ください。

その他の情報

外観:308000140296
中古戸建て

【近い!】 阿見第一小学校まで約440m

間取り:308000140296
  • 1,800万円
  • 茨城県稲敷郡阿見町中央5丁目
  • 常磐線 荒川沖駅/徒歩72分
  • 5LDK/築48 年
  • 128.89㎡(建物)
  • 363.63㎡(土地)

約110坪!車4台停められる広いお庭!バーベキューも楽しめる広々とした敷地♪荒川沖駅まで徒歩13分!阿見第一小徒歩11分!竹来中徒歩12分!スーパー徒歩7分!

  • 駐車場有
  • システム
    キッチン
  • 追焚機能
  • 所有権
  • 低層住宅地
  • 南向き
  • 小学校
    800m以内
  • スーパー
    800m以内
ハウスドゥ!取手戸頭店 株式会社JOBHOPE

ハウスドゥ!取手戸頭店は年中無休で買う前も買った後も安心♪茨城県と千葉県の県境エリアに強い!HOME'Sに載せている物件は全体のごく一部!HPもご覧ください♪他社様の物件もご紹介可能です♪

その他の情報

外観:308000170861
中古戸建て 空家

阿見第一小学校まで約2713m

間取り:308000170861
  • 1,599万円
  • 茨城県稲敷郡阿見町大字阿見
  • 常磐線 荒川沖駅/徒歩53分
  • 3SLDK/築37 年
  • 110.63㎡(建物)
  • 152.03㎡(土地)

【見学会開催】 セキスイハイム様施工の軽量鉄骨造。風呂1階に移動など、内装フルリフォームで生まれ変わる3SLDK!明るいLDKと豊富な収納で、家族の暮らしがもっと快適に。駐車3台可(車種による)。

  • 駐車場有
  • システム
    キッチン
  • 追焚機能
  • 所有権
  • 低層住宅地
  • 南向き
  • 小学校
    800m以内
  • スーパー
    800m以内
株式会社カチタス つくば(北エリア)店

当社はニトリと業務・資本提携を結ぶ、東証プライム上場企業です。物件を知り尽くしたプロが中古物件を買い取り、細部までチェックし、自社規格に沿って丁寧にリフォームしているので、ご購入後も安心が続きます。

その他の情報

外観:308000141254
中古戸建て

【近い!】 阿見第一小学校まで約932m

間取り:308000141254
  • 798万円
  • 茨城県稲敷郡阿見町大字曙
  • 常磐線 土浦駅/徒歩79分
  • 5DK/築52 年
  • 109.30㎡(建物)
  • 213.79㎡(土地)

内装リフォーム済5DK!水まわり設備全て新品交換済みです。角地、駐車2台可能、物置付。

  • 駐車場有
  • システム
    キッチン
  • 追焚機能
  • 所有権
  • 低層住宅地
  • 南向き
  • 小学校
    800m以内
  • スーパー
    800m以内
株式会社なごみ

中古住宅買取り・再生販売を専門にした不動産業者です。茨城・栃木でリフォーム済み物件を数多く取り揃えております。

その他の情報

外観:308000162627
中古戸建て 空家

阿見第一小学校まで約2548m

間取り:308000162627
  • 999万円
  • 茨城県土浦市小岩田東2丁目
  • 常磐線 土浦駅/バス 小岩田団地中央 徒歩3分
  • 5DK/築55 年
  • 115.66㎡(建物)
  • 253.20㎡(土地)

【見学会開催】【駐車場工事完了】 【3/30まで期間限定現況販売】 スーパー徒歩7分(500m)、コンビニ徒歩7分(500m)と生活しやすい立地。

  • 駐車場有
  • システム
    キッチン
  • 追焚機能
  • 所有権
  • 低層住宅地
  • 南向き
  • 小学校
    800m以内
  • スーパー
    800m以内
株式会社カチタス つくば(北エリア)店

当社はニトリと業務・資本提携を結ぶ、東証プライム上場企業です。物件を知り尽くしたプロが中古物件を買い取り、細部までチェックし、自社規格に沿って丁寧にリフォームしているので、ご購入後も安心が続きます。

その他の情報

外観:308000144196
中古戸建て 空家

【近い!】 阿見第一小学校まで約156m

間取り:308000144196
  • 1,780万円
  • 茨城県稲敷郡阿見町岡崎3丁目
  • 常磐線 荒川沖駅/徒歩70分
  • 5SLDK/築31 年
  • 123.38㎡(建物)
  • 220.71㎡(土地)

荒川沖駅まで車で11分!阿見第一小徒歩1分!竹来中徒歩17分!スーパー徒歩8分!駐車スペース3台分!広々5SLDK!年中無休なので今から見たいもOK♪

  • 駐車場有
  • システム
    キッチン
  • 追焚機能
  • 所有権
  • 低層住宅地
  • 南向き
  • 小学校
    800m以内
  • スーパー
    800m以内
ハウスドゥ 家・不動産買取専門店 イオンタウン守谷前 株式会社JOB HOPE

元プロ野球選手の古田敦也さんのテレビCMでおなじみの全国700店舗展開中のハウスドゥ 守谷店!買い時を逃さないために年中無休で営業中!イオンタウン守谷の目の前にお店がございます。

その他の情報

外観:308000160531
中古戸建て 空家

阿見第一小学校まで約1636m

間取り:308000160531
  • 2,449万円
  • 茨城県稲敷郡阿見町大字鈴木
  • 常磐線 荒川沖駅/徒歩67分
  • 4SLDK/築32 年
  • 130.00㎡(建物)
  • 266.56㎡(土地)

【見学会開催】【リフォーム中】 外壁・屋根塗装、水廻り交換予定。洋風のオシャレな外観の住宅です。

  • 駐車場有
  • システム
    キッチン
  • 追焚機能
  • 所有権
  • 低層住宅地
  • 南向き
  • 小学校
    800m以内
  • スーパー
    800m以内
株式会社カチタス つくば(北エリア)店

当社はニトリと業務・資本提携を結ぶ、東証プライム上場企業です。物件を知り尽くしたプロが中古物件を買い取り、細部までチェックし、自社規格に沿って丁寧にリフォームしているので、ご購入後も安心が続きます。

その他の情報

外観:308000174243
中古戸建て 空家

阿見第一小学校まで約1663m

間取り:308000174243
  • 2,980万円
  • 茨城県稲敷郡阿見町大字阿見
  • 常磐線 荒川沖駅/徒歩58分
  • 5LDK/築36 年
  • 146.55㎡(建物)
  • 1051.31㎡(土地)

土地は321坪あり、日当たりが良いので家庭菜園やガーデニングを始めたい方にピッタリです。角地で圧迫感もありません。50~60坪の土地はちょっと・・・と思っている方、是非お問い合わせ下さい。

  • 駐車場有
  • システム
    キッチン
  • 追焚機能
  • 所有権
  • 低層住宅地
  • 南向き
  • 小学校
    800m以内
  • スーパー
    800m以内
株式会社筑波商事 ひたち野うしく店

初めての1人暮らし・持ち家の購入・終の棲家、ライフイベントや家族構成の変化によって人の住まいは変わります。会社は大きくありませんが、その最初から最後までに携わっていけるような会社を目指しています。

その他の情報

外観:308000157306
中古戸建て 空家

阿見第一小学校まで約2936m

間取り:308000157306
  • 1,080万円
  • 茨城県土浦市右籾
  • 常磐線 荒川沖駅/徒歩30分
  • 5SLDK/築37 年
  • 141.60㎡(建物)
  • 185.14㎡(土地)

水回りが回遊動線になっています!

  • 駐車場有
  • システム
    キッチン
  • 追焚機能
  • 所有権
  • 低層住宅地
  • 南向き
  • 小学校
    800m以内
  • スーパー
    800m以内
香陵住販株式会社 つくば支店

::お客様の満足度NO.1企業を目指します::茨城県南エリアのご相談はお任せください。お気軽にご来店下さいませ。駐車場は店舗前コインパーキング(香陵住販ご来店のお客様に限り無料)をご利用ください。

その他の情報

外観:308000171992
中古戸建て

【近い!】 阿見第一小学校まで約491m

間取り:308000171992
  • 498万円
  • 茨城県稲敷郡阿見町大字廻戸
  • 常磐線 荒川沖駅/徒歩74分
  • 5DK/築45 年
  • 83.34㎡(建物)
  • 166.45㎡(土地)

【ハウスドゥ土浦南】オーナーチェンジ物件(弊社オーナー)賃料4.5万円!表面利回り約10%

  • 駐車場有
  • システム
    キッチン
  • 追焚機能
  • 所有権
  • 低層住宅地
  • 南向き
  • 小学校
    800m以内
  • スーパー
    800m以内
ハウスドゥ 土浦南 島岡商事株式会社

弊社は土浦市・阿見町を中心に35年以上不動産業を営んで参りました。購入から売却まで幅広くご相談頂けます。お悩みやご希望、ご不明な点等ありましたらお気軽にお問合せくださいませ。

その他の情報

外観:308000164377
中古戸建て 空家

阿見第一小学校まで約1156m

間取り:308000164377
  • 1,899万円
  • 茨城県稲敷郡阿見町中央7丁目
  • 常磐線 土浦駅/徒歩92分
  • 4LDK/築34 年
  • 103.92㎡(建物)
  • 204.03㎡(土地)

\リフォーム中/小学校・中学校徒歩15分!前面道路6.6

  • 駐車場有
  • システム
    キッチン
  • 追焚機能
  • 所有権
  • 低層住宅地
  • 南向き
  • 小学校
    800m以内
  • スーパー
    800m以内
はなまるハウス株式会社 加須営業所

その他の情報

外観:308000168220
中古戸建て 空家

【近い!】 阿見第一小学校まで約665m

NO IMAGE
  • 1,299万円
  • 茨城県稲敷郡阿見町中央3丁目
  • 常磐線 荒川沖駅/徒歩64分
  • 4LDK/築38 年
  • 95.64㎡(建物)
  • 145.00㎡(土地)

◆小中学校まで徒歩5分内◆スーパー・ドラスト1km圏内で便利◆南道路陽当り◎

  • 駐車場有
  • システム
    キッチン
  • 追焚機能
  • 所有権
  • 低層住宅地
  • 南向き
  • 小学校
    800m以内
  • スーパー
    800m以内
はなまるハウス株式会社 加須営業所

その他の情報

外観:308000155259
中古戸建て 空家

阿見第一小学校まで約1496m

間取り:308000155259
  • 820万円
  • 茨城県土浦市烏山2丁目
  • 常磐線 土浦駅/徒歩53分
  • 3LDK/築45 年
  • 75.35㎡(建物)
  • 253.94㎡(土地)

【ハウスドゥ土浦南】12帖の広々とした洋室付!3LDK平屋戸建!駐車場1台!予算を抑えて、お好きなリフォームをしたいお客様におすすめ♪広々としたお庭付で家庭菜園できます

  • 駐車場有
  • システム
    キッチン
  • 追焚機能
  • 所有権
  • 低層住宅地
  • 南向き
  • 小学校
    800m以内
  • スーパー
    800m以内
ハウスドゥ 土浦南 島岡商事株式会社

弊社は土浦市・阿見町を中心に35年以上不動産業を営んで参りました。購入から売却まで幅広くご相談頂けます。お悩みやご希望、ご不明な点等ありましたらお気軽にお問合せくださいませ。

その他の情報

1ページ目(2ページ中) 次へ
この条件で新着メールを受取る
この検索条件を保存する

稲敷郡阿見町の物件も見てみませんか?

現在のページで希望の物件が見つからなければエリアから探してみてもいいかもしれません。

稲敷郡阿見町の物件を見る

阿見第一小学校について

阿見第一小学校は、茨城県稲敷郡阿見町岡崎三丁目19番地にある小学校です。教育目標は「あみいち、元気な学校」。児童数は383人、教員数は23人となっています。

ちゅうこだて!では、阿見第一小学校周辺の空き家・中古住宅・中古一戸建ての物件は、1km 圏内に12件、2km 圏内に22件、3km 圏内33件あり、平均価格は932万円ほどです。
http://www.town.ami.lg.jp/category/9-3-1-0-0.html

※学校までの直線距離を表示しています。道路距離ではありませんのでご了承ください。
※学区の情報は、平成28年度/平成26年度の国土交通省の位置情報参照ダウンロードサービスをもとに利用しています。必ずしも正確ではございませんので、実際阿見第一小学校の校区・通学区域については、掲載店舗にお問い合わせいただくか、各区・市役所等にご確認ください。

追加が完了しました。

現在00件保存されています。(最大5件)

保存した条件一覧を見る

現在00件保存されています。

残り00件追加することができます。

お気に入り物件一覧を見る

間隔を空けてお試しください。

問合せが未完了の物件

条件を変更
チェックした物件をまとめて 資料請求(無料) お気に入りに追加