フットサルSPA秦野(秦野市)近くの中古住宅・中古一戸建ての購入情報

フットサルSPA秦野(秦野市)近くの中古住宅・中古一戸建ての購入情報をご覧いただけます。

46

↓ チェックした物件をまとめてお問い合わせ

外観:314002646983
中古戸建て

【近い!】 フットサルSPA秦野まで約580m

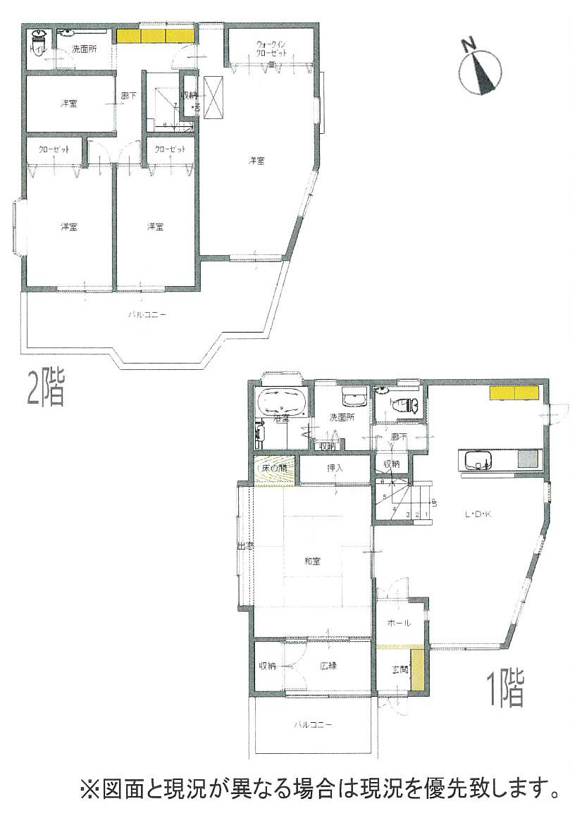
間取り:314002646983
  • 4,280万円
  • 神奈川県秦野市堀西
  • 小田急電鉄小田原線 渋沢駅/徒歩8分
  • 2LDK/築4 年
  • 105.57㎡(建物)
  • 133.55㎡(土地)

設計住宅性能評価書付きです。角地、平坦地、開発分譲地内立地です。駅まで平坦で通勤通学に便利です。3面採光、全室2面採光、バルコニー、ルーフバルコニー付きです。リビング階段仕様です。

  • 駐車場有
  • システム
    キッチン
  • 追焚機能
  • 所有権
  • 低層住宅地
  • 南向き
  • 小学校
    800m以内
  • スーパー
    800m以内
住宅情報館株式会社 秦野店

秦野エリア、近隣エリアの新築・中古一戸建・マンション・土地の購入・売却~注文建築・リフォームまで、住まいの事なら「住宅情報館」にお任せ下さい。

その他の情報

外観:314002524410
中古戸建て

フットサルSPA秦野まで約1848m

間取り:314002524410
  • 4,980万円
  • 神奈川県秦野市並木町
  • 小田急電鉄小田原線 渋沢駅/徒歩17分
  • 4SLDK/築6 年
  • 126.68㎡(建物)
  • 233.43㎡(土地)

【ご見学予約可】広々南庭付き♪「駐車3台以上」×「全室南向き陽当り良好◎」 ◆土地70坪超え、広々南庭付き、駐車3台以上 ◇こだわり感じるウィザースホーム施工の築浅戸建

  • 駐車場有
  • システム
    キッチン
  • 追焚機能
  • 所有権
  • 低層住宅地
  • 南向き
  • 小学校
    800m以内
  • スーパー
    800m以内
湘南レーベル株式会社 SLE不動産

~『カスタマーファースト』をテーマに「信用・信頼・安心」を~お客様を笑顔にさせる不動産屋として、チームワークでお手伝いをさせて頂きます。

その他の情報

外観:314002395898
中古戸建て 空家

フットサルSPA秦野まで約1826m

間取り:314002395898
  • 3,480万円
  • 神奈川県秦野市ひばりケ丘
  • 小田急電鉄小田原線 秦野駅/バス 5分/本町中学校前 徒歩7分
  • 4SLDK/築11 年
  • 114.86㎡(建物)
  • 197.00㎡(土地)

【即日予約可能】『敷地59坪』×『パナホーム施工』の平成27年築3台駐車可能 ■カースペース3台以上駐車可※車種による ■LDK26帖以上の開放感ある広々としたリビング

  • 駐車場有
  • システム
    キッチン
  • 追焚機能
  • 所有権
  • 低層住宅地
  • 南向き
  • 小学校
    800m以内
  • スーパー
    800m以内
湘南レーベル株式会社 SLE不動産

~『カスタマーファースト』をテーマに「信用・信頼・安心」を~お客様を笑顔にさせる不動産屋として、チームワークでお手伝いをさせて頂きます。

その他の情報

外観:314002427332
中古戸建て 空家

フットサルSPA秦野まで約1880m

間取り:314002427332
  • 2,580万円
  • 神奈川県秦野市堀西
  • 小田急電鉄小田原線 渋沢駅/徒歩19分
  • 4LDK/築3 年
  • 97.29㎡(建物)
  • 142.98㎡(土地)

◇南道路につき陽当たり良好◇全居室収納を完備しています◇パントリー・納戸をご用意◇引渡し即可能◇築後誰も入居していません◇公園が近いので子育てにも最適な立地

  • 駐車場有
  • システム
    キッチン
  • 追焚機能
  • 所有権
  • 低層住宅地
  • 南向き
  • 小学校
    800m以内
  • スーパー
    800m以内
株式会社Mスタイルプランニング

お住まい探しの期待と不安に寄り添い、お客様の良き相談相手となれるよう精一杯ご案内いたします。皆様からご相談いただける日を社員一同楽しみにお待ちしております。

その他の情報

外観:314002543006
中古戸建て 空家

フットサルSPA秦野まで約1875m

間取り:314002543006
  • 2,980万円
  • 神奈川県秦野市今泉
  • 小田急電鉄小田原線 秦野駅/バス 10分/南町(秦野市) 徒歩5分
  • 3LDK/築8 年
  • 82.80㎡(建物)
  • 125.91㎡(土地)

当社ならキャッシュバックあり 2025.11月新規リフォーム完了 駐車場2台可能 南小・南中学区 IHクッキングヒーター新設 お庭付き 南向きリビング16帖以上で陽当り良好

  • 駐車場有
  • システム
    キッチン
  • 追焚機能
  • 所有権
  • 低層住宅地
  • 南向き
  • 小学校
    800m以内
  • スーパー
    800m以内
株式会社リビングボイス

【仲介手数料最大0円!】当社なら新築一戸建の95%が仲介手数料0円★中古戸建・中古マンション・売地も割引対象物件あり★値引き交渉もお任せ★ぜひ当社HPをご覧下さい!「リビングボイス」で検索を♪

その他の情報

外観:314002634532
中古戸建て 空家

フットサルSPA秦野まで約1823m

間取り:314002634532
  • 3,480万円
  • 神奈川県秦野市ひばりケ丘
  • 小田急電鉄小田原線 秦野駅/徒歩20分
  • 4SLDK/築11 年
  • 114.86㎡(建物)
  • 197.00㎡(土地)

●小田急線「秦野」駅 徒歩20分●並列2台カーポートあり!●南側に広いお庭付き♪●オール電化付き。火事や地震などの災害に対する安全性が高いです♪

  • 駐車場有
  • システム
    キッチン
  • 追焚機能
  • 所有権
  • 低層住宅地
  • 南向き
  • 小学校
    800m以内
  • スーパー
    800m以内
株式会社クリップ クリップハウジング

平塚市を中心に西湘エリア全体の物件をご紹介させて頂きます!!ホームページに掲載できない未公開物件も多数取り揃えておりますのでお気軽にお問い合わせください。

その他の情報

外観:314002627782
中古戸建て 空家

フットサルSPA秦野まで約1880m

間取り:314002627782
  • 2,580万円
  • 神奈川県秦野市堀西
  • 小田急電鉄小田原線 渋沢駅/徒歩19分
  • 4LDK/築3 年
  • 97.29㎡(建物)
  • 142.98㎡(土地)

くらしを楽しむ世の中を、もっと。~ME不動産神奈川~

  • 駐車場有
  • システム
    キッチン
  • 追焚機能
  • 所有権
  • 低層住宅地
  • 南向き
  • 小学校
    800m以内
  • スーパー
    800m以内
ME不動産神奈川株式会社

首都圏に広がるME Group2020年ご成約件数1878件の実績。他に建設・住宅設備・保険・IT等「くらし」をテーマに事業を展開。

その他の情報

外観:314002570206
中古戸建て 空家

フットサルSPA秦野まで約1822m

間取り:314002570206
  • 3,480万円
  • 神奈川県秦野市ひばりケ丘
  • 小田急電鉄小田原線 秦野駅/徒歩20分
  • 4LDK/築11 年
  • 114.86㎡(建物)
  • 197.00㎡(土地)

<選べるe-GIFT10000円分>初来場&アンケート回答でプレゼント

  • 駐車場有
  • システム
    キッチン
  • 追焚機能
  • 所有権
  • 低層住宅地
  • 南向き
  • 小学校
    800m以内
  • スーパー
    800m以内
住宅情報館株式会社 秦野店

秦野エリア、近隣エリアの新築・中古一戸建・マンション・土地の購入・売却~注文建築・リフォームまで、住まいの事なら「住宅情報館」にお任せ下さい。

その他の情報

外観:314002472869
中古戸建て 空家

フットサルSPA秦野まで約1328m

間取り:314002472869
  • 2,680万円
  • 神奈川県秦野市平沢
  • 小田急電鉄小田原線 秦野駅/バス 10分/出雲大社入口 徒歩5分
  • 3LDK/築8 年
  • 79.49㎡(建物)
  • 148.20㎡(土地)
  • 駐車場有
  • システム
    キッチン
  • 追焚機能
  • 所有権
  • 低層住宅地
  • 南向き
  • 小学校
    800m以内
  • スーパー
    800m以内
スカイガーデン株式会社

経験豊富なスタッフが分かりやすくご案内させて頂きます。住宅ローンをご利用のお客様はローン相談も解決出来ますのでお気軽にご相談下さい。

その他の情報

外観:314002542726
中古戸建て 空家

フットサルSPA秦野まで約1337m

間取り:314002542726
  • 1,980万円
  • 神奈川県秦野市三屋
  • 小田急電鉄小田原線 渋沢駅/徒歩31分
  • 2SLDK/築19 年
  • 92.74㎡(建物)
  • 149.30㎡(土地)

整形地、平坦地に立地です。全室2面採光で通風良好です。サンルームがあるのが魅力です。全居室フローリングです。

  • 駐車場有
  • システム
    キッチン
  • 追焚機能
  • 所有権
  • 低層住宅地
  • 南向き
  • 小学校
    800m以内
  • スーパー
    800m以内
住宅情報館株式会社 秦野店

秦野エリア、近隣エリアの新築・中古一戸建・マンション・土地の購入・売却~注文建築・リフォームまで、住まいの事なら「住宅情報館」にお任せ下さい。

その他の情報

外観:314002501182
中古戸建て 空家

フットサルSPA秦野まで約1596m

間取り:314002501182
  • 2,998万円
  • 神奈川県秦野市並木町
  • 小田急電鉄小田原線 渋沢駅/徒歩11分
  • 4SLDK/築31 年
  • 164.83㎡(建物)
  • 236.18㎡(土地)

整形地、平坦地に立地です。駅まで平坦で通勤通学に便利です。南向き、2面採光、通風良好、ワイドバルコニー、南面バルコニー、南庭付です。床下収納、納戸付でスッキリ暮らせます。

  • 駐車場有
  • システム
    キッチン
  • 追焚機能
  • 所有権
  • 低層住宅地
  • 南向き
  • 小学校
    800m以内
  • スーパー
    800m以内
住宅情報館株式会社 秦野店

秦野エリア、近隣エリアの新築・中古一戸建・マンション・土地の購入・売却~注文建築・リフォームまで、住まいの事なら「住宅情報館」にお任せ下さい。

その他の情報

外観:314002578810
中古戸建て 空家

フットサルSPA秦野まで約1033m

間取り:314002578810
  • 2,199万円
  • 神奈川県秦野市新町
  • 小田急電鉄小田原線 秦野駅/徒歩29分
  • 3LDK/築30 年
  • 108.70㎡(建物)
  • 117.00㎡(土地)

即日内覧可!好条件で住まい探しに寄り添う♪安心の実績で応援【エスグランド】

  • 駐車場有
  • システム
    キッチン
  • 追焚機能
  • 所有権
  • 低層住宅地
  • 南向き
  • 小学校
    800m以内
  • スーパー
    800m以内
株式会社エスグランド

不動産の売買、注文建築も買取もまるっと当社へお任せ♪お客様の”こんな家に住みたい”を一緒に!話しやすいスタッフがお迎え致します。お気軽に相談できるエスグランドへ!!いつでもご連絡お待ちしております♪

その他の情報

外観:314002671648
中古戸建て 空家

フットサルSPA秦野まで約1026m

間取り:314002671648
  • 2,299万円
  • 神奈川県秦野市新町
  • 小田急電鉄小田原線 秦野駅/バス 8分/富士見橋 徒歩4分
  • 3LDK/築30 年
  • 108.70㎡(建物)
  • 117.00㎡(土地)

整形地、平坦地に立地です。全室2面採光で通風良好、南面バルコニー付です。吹抜けがあるのが魅力です。全居室フローリング、リビング階段です。床下収納、ウォークインクローゼット付でスッキリ暮らせます。

  • 駐車場有
  • システム
    キッチン
  • 追焚機能
  • 所有権
  • 低層住宅地
  • 南向き
  • 小学校
    800m以内
  • スーパー
    800m以内
住宅情報館株式会社 秦野店

秦野エリア、近隣エリアの新築・中古一戸建・マンション・土地の購入・売却~注文建築・リフォームまで、住まいの事なら「住宅情報館」にお任せ下さい。

その他の情報

外観:314002620585
中古戸建て 空家

フットサルSPA秦野まで約1971m

間取り:314002620585
  • 3,480万円
  • 神奈川県秦野市ひばりケ丘
  • 小田急電鉄小田原線 秦野駅/徒歩20分
  • 4SLDK/築11 年
  • 114.86㎡(建物)
  • 197.00㎡(土地)

くらしを楽しむ世の中を、もっと。~ME不動産神奈川~

  • 駐車場有
  • システム
    キッチン
  • 追焚機能
  • 所有権
  • 低層住宅地
  • 南向き
  • 小学校
    800m以内
  • スーパー
    800m以内
ME不動産神奈川株式会社

首都圏に広がるME Group2020年ご成約件数1878件の実績。他に建設・住宅設備・保険・IT等「くらし」をテーマに事業を展開。

その他の情報

外観:314002403846
中古戸建て 空家

フットサルSPA秦野まで約1823m

間取り:314002403846
  • 3,480万円
  • 神奈川県秦野市ひばりケ丘
  • 小田急電鉄小田原線 秦野駅/徒歩20分
  • 4SLDK/築11 年
  • 114.84㎡(建物)
  • 197.00㎡(土地)

当社ならキャッシュバックあり 駐車場並列2台可能 リビング26帖以上は足元から温まる床暖房完備 お庭付きでガーデニングや家庭菜園など可能 オール電化の物件 パナホーム施行の注文住宅

  • 駐車場有
  • システム
    キッチン
  • 追焚機能
  • 所有権
  • 低層住宅地
  • 南向き
  • 小学校
    800m以内
  • スーパー
    800m以内
株式会社リビングボイス

【仲介手数料最大0円!】当社なら新築一戸建の95%が仲介手数料0円★中古戸建・中古マンション・売地も割引対象物件あり★値引き交渉もお任せ★ぜひ当社HPをご覧下さい!「リビングボイス」で検索を♪

その他の情報

外観:314002463187
中古戸建て

フットサルSPA秦野まで約1757m

間取り:314002463187
  • 1,280万円
  • 神奈川県秦野市戸川
  • 小田急電鉄小田原線 渋沢駅/バス 7分/戸川工業団地 徒歩1分
  • 4LDK/築18 年
  • 95.01㎡(建物)
  • 102.46㎡(土地)

エスグランドなら貯金0円OK!家具代もローンOK♪即日内覧はお電話から♪他物件もあわせて紹介頂けます!オプション工事に太陽光パネル、オール電化も一緒にいかがですか?

  • 駐車場有
  • システム
    キッチン
  • 追焚機能
  • 所有権
  • 低層住宅地
  • 南向き
  • 小学校
    800m以内
  • スーパー
    800m以内
株式会社エスグランド

不動産の売買、注文建築も買取もまるっと当社へお任せ♪お客様の”こんな家に住みたい”を一緒に!話しやすいスタッフがお迎え致します。お気軽に相談できるエスグランドへ!!いつでもご連絡お待ちしております♪

その他の情報

外観:314002472929
中古戸建て 空家

フットサルSPA秦野まで約1853m

間取り:314002472929
  • 3,480万円
  • 神奈川県秦野市ひばりケ丘
  • 小田急電鉄小田原線 秦野駅/徒歩20分
  • 4SLDK/築11 年
  • 114.86㎡(建物)
  • 197.00㎡(土地)

セブンイレブン 秦野曽屋東店まで徒歩5分と近場にコンビニがあるのもポイント。様々な使い方が可能な畳コーナー付きの4SLDKです。気になるリビング部分は25帖以上の広さでご家族でゆったり。秦野市で新しい

  • 駐車場有
  • システム
    キッチン
  • 追焚機能
  • 所有権
  • 低層住宅地
  • 南向き
  • 小学校
    800m以内
  • スーパー
    800m以内
スカイガーデン株式会社

経験豊富なスタッフが分かりやすくご案内させて頂きます。住宅ローンをご利用のお客様はローン相談も解決出来ますのでお気軽にご相談下さい。

その他の情報

外観:314002671213
中古戸建て 空家

【近い!】 フットサルSPA秦野まで約818m

間取り:314002671213
  • 4,280万円
  • 神奈川県秦野市松原町
  • 小田急電鉄小田原線 渋沢駅/徒歩4分
  • 6LDK/築40 年
  • 136.76㎡(建物)
  • 531.72㎡(土地)

<選べるe-GIFT10000円分>初来場&アンケート回答でプレゼント

  • 駐車場有
  • システム
    キッチン
  • 追焚機能
  • 所有権
  • 低層住宅地
  • 南向き
  • 小学校
    800m以内
  • スーパー
    800m以内
住宅情報館株式会社 秦野店

秦野エリア、近隣エリアの新築・中古一戸建・マンション・土地の購入・売却~注文建築・リフォームまで、住まいの事なら「住宅情報館」にお任せ下さい。

その他の情報

外観:314002638875
中古戸建て 空家

フットサルSPA秦野まで約1027m

間取り:314002638875
  • 2,199万円
  • 神奈川県秦野市新町
  • 小田急電鉄小田原線 秦野駅/バス 5分/富士見橋 徒歩5分
  • 3LDK/築30 年
  • 108.70㎡(建物)
  • 117.00㎡(土地)
  • 駐車場有
  • システム
    キッチン
  • 追焚機能
  • 所有権
  • 低層住宅地
  • 南向き
  • 小学校
    800m以内
  • スーパー
    800m以内
株式会社クリップ クリップハウジング

平塚市を中心に西湘エリア全体の物件をご紹介させて頂きます!!ホームページに掲載できない未公開物件も多数取り揃えておりますのでお気軽にお問い合わせください。

その他の情報

外観:314002647030
中古戸建て

フットサルSPA秦野まで約1321m

間取り:314002647030
  • 2,780万円
  • 神奈川県秦野市緑町
  • 小田急電鉄小田原線 秦野駅/バス 8分/富士見町入口 徒歩7分
  • 4SLDK/築18 年
  • 125.86㎡(建物)
  • 126.58㎡(土地)

小田急小田原線「秦野」駅バス8分「富士見町入口」停歩7分!ロフト付きの4SLDK!タンス置や納戸があり、収納が充実しております!

  • 駐車場有
  • システム
    キッチン
  • 追焚機能
  • 所有権
  • 低層住宅地
  • 南向き
  • 小学校
    800m以内
  • スーパー
    800m以内
株式会社クリップ クリップハウジング

平塚市を中心に西湘エリア全体の物件をご紹介させて頂きます!!ホームページに掲載できない未公開物件も多数取り揃えておりますのでお気軽にお問い合わせください。

その他の情報

外観:314002591692
中古戸建て 空家

フットサルSPA秦野まで約1210m

間取り:314002591692
  • 1,680万円
  • 神奈川県秦野市曲松1丁目
  • 小田急電鉄小田原線 渋沢駅/徒歩5分
  • 4DK/築39 年
  • 93.26㎡(建物)
  • 137.09㎡(土地)

■秦野市渋沢エリア■緑豊かな環境に囲まれた2階建て中古一戸建て。徒歩圏内にスーパーやコンビニ、銀行が揃い、子育てに安心な公園も近接。駐車場完備で家族の快適な暮らしを支えます。

  • 駐車場有
  • システム
    キッチン
  • 追焚機能
  • 所有権
  • 低層住宅地
  • 南向き
  • 小学校
    800m以内
  • スーパー
    800m以内
株式会社Mスタイルプランニング

お住まい探しの期待と不安に寄り添い、お客様の良き相談相手となれるよう精一杯ご案内いたします。皆様からご相談いただける日を社員一同楽しみにお待ちしております。

その他の情報

外観:314002479803
中古戸建て 空家

フットサルSPA秦野まで約1313m

間取り:314002479803
  • 2,100万円
  • 神奈川県秦野市春日町
  • 小田急電鉄小田原線 渋沢駅/徒歩12分
  • 4LDK/築29 年
  • 141.14㎡(建物)
  • 168.02㎡(土地)
  • 駐車場有
  • システム
    キッチン
  • 追焚機能
  • 所有権
  • 低層住宅地
  • 南向き
  • 小学校
    800m以内
  • スーパー
    800m以内
スカイガーデン株式会社

経験豊富なスタッフが分かりやすくご案内させて頂きます。住宅ローンをご利用のお客様はローン相談も解決出来ますのでお気軽にご相談下さい。

その他の情報

外観:314002562291
中古戸建て 空家

フットサルSPA秦野まで約1215m

間取り:314002562291
  • 1,680万円
  • 神奈川県秦野市曲松1丁目
  • 小田急電鉄小田原線 渋沢駅/徒歩6分
  • 4DK/築39 年
  • 93.26㎡(建物)
  • 137.09㎡(土地)

南側道路に面す、整形地、平坦地に立地です。2面採光、通風良好、南面バルコニー、南庭付です。床下収納付でスッキリ暮らせます。浴室に窓付でバスタイムを快適に過ごせます。

  • 駐車場有
  • システム
    キッチン
  • 追焚機能
  • 所有権
  • 低層住宅地
  • 南向き
  • 小学校
    800m以内
  • スーパー
    800m以内
住宅情報館株式会社 秦野店

秦野エリア、近隣エリアの新築・中古一戸建・マンション・土地の購入・売却~注文建築・リフォームまで、住まいの事なら「住宅情報館」にお任せ下さい。

その他の情報

NO IMAGE
中古戸建て 空家

【近い!】 フットサルSPA秦野まで約946m

間取り:314002634875
  • 1,580万円
  • 神奈川県秦野市渋沢2丁目
  • 小田急電鉄小田原線 渋沢駅/徒歩15分
  • 4DK/築31 年
  • 83.03㎡(建物)
  • 121.13㎡(土地)

●小田急線「渋沢」駅 徒歩15分●駐車スペース2台分あり!(車種による)●リフォームで内装が新しく変わります♪●風通しや日当たりも快適な環境です♪

  • 駐車場有
  • システム
    キッチン
  • 追焚機能
  • 所有権
  • 低層住宅地
  • 南向き
  • 小学校
    800m以内
  • スーパー
    800m以内
株式会社クリップ クリップハウジング

平塚市を中心に西湘エリア全体の物件をご紹介させて頂きます!!ホームページに掲載できない未公開物件も多数取り揃えておりますのでお気軽にお問い合わせください。

その他の情報

外観:314002575829
中古戸建て 空家

フットサルSPA秦野まで約1027m

間取り:314002575829
  • 2,199万円
  • 神奈川県秦野市新町
  • 小田急電鉄小田原線 秦野駅/徒歩27分
  • 3LDK/築30 年
  • 108.70㎡(建物)
  • 117.00㎡(土地)

駐車する場所は何台あっても嬉しいですね、ここは駐車3台可です。内外装リフォーム済みなので、新しくなった住まいで生活を始めることができます。利便性に優れ、家族で暮らすにもピッタリな3LDKです。不動産

  • 駐車場有
  • システム
    キッチン
  • 追焚機能
  • 所有権
  • 低層住宅地
  • 南向き
  • 小学校
    800m以内
  • スーパー
    800m以内
スカイガーデン株式会社

経験豊富なスタッフが分かりやすくご案内させて頂きます。住宅ローンをご利用のお客様はローン相談も解決出来ますのでお気軽にご相談下さい。

その他の情報

外観:314002358024
中古戸建て 空家

フットサルSPA秦野まで約1609m

間取り:314002358024
  • 1,348万円
  • 神奈川県秦野市千村1丁目
  • 小田急電鉄小田原線 渋沢駅/徒歩10分
  • 4DK/築41 年
  • 100.52㎡(建物)
  • 172.00㎡(土地)

渋沢駅から徒歩10分でとても便利。高台、バルコニー、庭付。サンルームがあるのが魅力。浴室に窓付でバスタイムを快適に過ごせます。

  • 駐車場有
  • システム
    キッチン
  • 追焚機能
  • 所有権
  • 低層住宅地
  • 南向き
  • 小学校
    800m以内
  • スーパー
    800m以内
住宅情報館株式会社 秦野店

秦野エリア、近隣エリアの新築・中古一戸建・マンション・土地の購入・売却~注文建築・リフォームまで、住まいの事なら「住宅情報館」にお任せ下さい。

その他の情報

外観:314001886371
中古戸建て 空家

フットサルSPA秦野まで約1613m

間取り:314001886371
  • 1,348万円
  • 神奈川県秦野市千村1丁目
  • 小田急電鉄小田原線 渋沢駅/徒歩10分
  • 4DK/築41 年
  • 100.52㎡(建物)
  • 172.00㎡(土地)

■小田急小田原線渋沢駅から徒歩10分 ■南向きで日当たり良好 ■閑静な住宅街で落ち着いた生活をしたい方向け ■和室洋室あり ■地下車庫あり

  • 駐車場有
  • システム
    キッチン
  • 追焚機能
  • 所有権
  • 低層住宅地
  • 南向き
  • 小学校
    800m以内
  • スーパー
    800m以内
株式会社Mスタイルプランニング

お住まい探しの期待と不安に寄り添い、お客様の良き相談相手となれるよう精一杯ご案内いたします。皆様からご相談いただける日を社員一同楽しみにお待ちしております。

その他の情報

NO IMAGE
中古戸建て 空家

フットサルSPA秦野まで約1890m

間取り:314002634488
  • 2,360万円
  • 神奈川県秦野市沼代新町
  • 小田急電鉄小田原線 渋沢駅/徒歩13分
  • 6DK/築43 年
  • 128.07㎡(建物)
  • 302.80㎡(土地)

●小田急線「渋沢」駅 徒歩13分●主要採光面が南西向きで、昼から夕方の日当たりが良好です!●閑静な住宅地は、周囲の騒音も少なく、落ち着いた雰囲気です♪

  • 駐車場有
  • システム
    キッチン
  • 追焚機能
  • 所有権
  • 低層住宅地
  • 南向き
  • 小学校
    800m以内
  • スーパー
    800m以内
株式会社クリップ クリップハウジング

平塚市を中心に西湘エリア全体の物件をご紹介させて頂きます!!ホームページに掲載できない未公開物件も多数取り揃えておりますのでお気軽にお問い合わせください。

その他の情報

外観:314002542839
中古戸建て 空家

フットサルSPA秦野まで約1180m

間取り:314002542839
  • 1,680万円
  • 神奈川県秦野市曲松1丁目
  • 小田急電鉄小田原線 渋沢駅/徒歩6分
  • 4DK/築39 年
  • 93.26㎡(建物)
  • 137.09㎡(土地)

奥様方の間でニーズの高い勝手口がついています。生活の中心となるリビングは南に面しております。TVインターフォン付きの物件です。中古戸建てながら、室内はとてもきれいです。秦野市に位置する小田急小田原線渋

  • 駐車場有
  • システム
    キッチン
  • 追焚機能
  • 所有権
  • 低層住宅地
  • 南向き
  • 小学校
    800m以内
  • スーパー
    800m以内
スカイガーデン株式会社

経験豊富なスタッフが分かりやすくご案内させて頂きます。住宅ローンをご利用のお客様はローン相談も解決出来ますのでお気軽にご相談下さい。

その他の情報

NO IMAGE
中古戸建て 空家

【近い!】 フットサルSPA秦野まで約958m

間取り:314002603348
  • 1,580万円
  • 神奈川県秦野市渋沢2丁目
  • 小田急電鉄小田原線 渋沢駅/徒歩15分
  • 4DK/築31 年
  • 83.03㎡(建物)
  • 121.13㎡(土地)

一続きでも、個別にでも、リビングと和室を思い通りに活用できる間取りです。駅まで徒歩15分の場所に立地しています。お料理好きには嬉しいダイニングキッチンのある間取りになっております。快適な生活はお住まい

  • 駐車場有
  • システム
    キッチン
  • 追焚機能
  • 所有権
  • 低層住宅地
  • 南向き
  • 小学校
    800m以内
  • スーパー
    800m以内
スカイガーデン株式会社

経験豊富なスタッフが分かりやすくご案内させて頂きます。住宅ローンをご利用のお客様はローン相談も解決出来ますのでお気軽にご相談下さい。

その他の情報

1ページ目(2ページ中) 次へ
この条件で新着メールを受取る
この検索条件を保存する

秦野市の物件も見てみませんか?

現在のページで希望の物件が見つからなければエリアから探してみてもいいかもしれません。

秦野市の物件を見る

※フットサルSPA秦野までの直線距離を表示しています。道路距離ではありませんのでご了承ください。

追加が完了しました。

現在00件保存されています。(最大5件)

保存した条件一覧を見る

現在00件保存されています。

残り00件追加することができます。

お気に入り物件一覧を見る

間隔を空けてお試しください。

問合せが未完了の物件

条件を変更
チェックした物件をまとめて 資料請求(無料) お気に入りに追加