サザンビーチちがさき(茅ヶ崎市)近くの中古住宅・中古一戸建ての購入情報

サザンビーチちがさき(茅ヶ崎市)近くの中古住宅・中古一戸建ての購入情報をご覧いただけます。

80

↓ チェックした物件をまとめてお問い合わせ

外観:314002637898
中古戸建て

サザンビーチちがさきまで約1861m

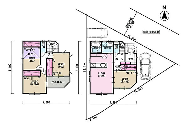
間取り:314002637898
  • 4,280万円
  • 神奈川県茅ヶ崎市柳島2丁目
  • 東海道本線 茅ケ崎駅/バス 10分/浜見平団地 徒歩7分
  • 3LDK/築4 年
  • 94.76㎡(建物)
  • 140.78㎡(土地)

■茅ヶ崎の閑静な住宅街■緑豊かな公園が近く、子どもたちの遊び場に最適。カウンターキッチンと床暖房で家族の温もりを感じる空間を実現。スーパーやドラッグストアも徒歩圏内で、毎日の暮らしに便利な住環境です。

  • 駐車場有
  • システム
    キッチン
  • 追焚機能
  • 所有権
  • 低層住宅地
  • 南向き
  • 小学校
    800m以内
  • スーパー
    800m以内
株式会社Mスタイルプランニング

お住まい探しの期待と不安に寄り添い、お客様の良き相談相手となれるよう精一杯ご案内いたします。皆様からご相談いただける日を社員一同楽しみにお待ちしております。

その他の情報

外観:314002711359
中古戸建て 空家

【近い!】 サザンビーチちがさきまで約451m

間取り:314002711359
  • 4,580万円
  • 神奈川県茅ヶ崎市中海岸3丁目
  • 東海道本線 茅ケ崎駅/バス 7分/サザン通り中央 徒歩2分
  • 2SLDK/築3 年
  • 58.54㎡(建物)
  • 54.08㎡(土地)

【令和5年築!サザンビーチ徒歩3分!空家につき即内覧できます!】ワイドバルコニー・ルーフバルコニーのあるオール電化住宅!

  • 駐車場有
  • システム
    キッチン
  • 追焚機能
  • 所有権
  • 低層住宅地
  • 南向き
  • 小学校
    800m以内
  • スーパー
    800m以内
アメニティハウス株式会社 湘南台店

湘南、県央エリアで物件の購入・売却の事ならお気軽にお問い合わせ下さい。経験豊富なスタップがお客様に合ったご提案をさせていただきます。

その他の情報

外観:314002728768
中古戸建て 空家

サザンビーチちがさきまで約1863m

間取り:314002728768
  • 4,280万円
  • 神奈川県茅ヶ崎市柳島2丁目
  • 相模線 北茅ケ崎駅/徒歩57分
  • 3LDK/築4 年
  • 94.76㎡(建物)
  • 140.78㎡(土地)

豊富な物件情報と“街”のご紹介◎ 我々だからこその‥ご提案とおもてなし♪ 心から「よかった」と思える住まい、安心のおとりつぎ。 朝日土地建物藤沢支店でご来店をお待ちしております!

  • 駐車場有
  • システム
    キッチン
  • 追焚機能
  • 所有権
  • 低層住宅地
  • 南向き
  • 小学校
    800m以内
  • スーパー
    800m以内
朝日土地建物株式会社 藤沢支店

当社には、湘南エリアでトップクラスの情報と実績がありますので必ずお客様の夢を実現させることができると確信しております。バザール会場では、自由に物件情報の閲覧ができますので、是非一度ご来店下さい。

その他の情報

外観:314002710121
中古戸建て 空家

サザンビーチちがさきまで約1864m

間取り:314002710121
  • 4,280万円
  • 神奈川県茅ヶ崎市柳島2丁目
  • 東海道本線 茅ケ崎駅/バス 10分/浜見平団地 徒歩7分
  • 3LDK/築4 年
  • 94.76㎡(建物)
  • 140.78㎡(土地)

JR東海道本線「茅ヶ崎」駅 バス10分「浜見平団地」停歩7分★南向き 日当たり良好★ソーラーパネル設置 床暖房あり★カースペース広々3台分完備

  • 駐車場有
  • システム
    キッチン
  • 追焚機能
  • 所有権
  • 低層住宅地
  • 南向き
  • 小学校
    800m以内
  • スーパー
    800m以内
株式会社クリップ クリップハウジング

平塚市を中心に西湘エリア全体の物件をご紹介させて頂きます!!ホームページに掲載できない未公開物件も多数取り揃えておりますのでお気軽にお問い合わせください。

その他の情報

外観:314002682594
中古戸建て 空家

サザンビーチちがさきまで約1872m

間取り:314002682594
  • 4,280万円
  • 神奈川県茅ヶ崎市柳島2丁目
  • 東海道本線 茅ケ崎駅/バス 10分/浜見平団地 徒歩7分
  • 3LDK/築4 年
  • 94.76㎡(建物)
  • 140.78㎡(土地)

選べるe-GIFT15000円分>店舗初来場&アンケート回答でプレゼント

  • 駐車場有
  • システム
    キッチン
  • 追焚機能
  • 所有権
  • 低層住宅地
  • 南向き
  • 小学校
    800m以内
  • スーパー
    800m以内
住宅情報館株式会社 平塚店

平塚エリア、近隣エリアの新築・中古一戸建・マンション・土地の購入・売却~注文建築・リフォームまで、住まいの事なら「住宅情報館」にお任せ下さい。

その他の情報

外観:314002732772
中古戸建て 空家

サザンビーチちがさきまで約1217m

間取り:314002732772
  • 3,980万円
  • 神奈川県茅ヶ崎市十間坂2丁目
  • 東海道本線 茅ケ崎駅/徒歩19分
  • 2SLDK/築7 年
  • 88.60㎡(建物)
  • 85.44㎡(土地)

【2020年築で建物綺麗です!全室収納・8帖のロフト付で収納豊富な間取!】リビング勾配天井で解放感あります!人気の茅ヶ崎駅利用可能!

  • 駐車場有
  • システム
    キッチン
  • 追焚機能
  • 所有権
  • 低層住宅地
  • 南向き
  • 小学校
    800m以内
  • スーパー
    800m以内
アメニティハウス株式会社 湘南台店

湘南、県央エリアで物件の購入・売却の事ならお気軽にお問い合わせ下さい。経験豊富なスタップがお客様に合ったご提案をさせていただきます。

その他の情報

外観:314002665288
中古戸建て 空家
間取り:314002665288
  • 4,280万円
  • 神奈川県茅ヶ崎市柳島2丁目
  • 東海道本線 茅ケ崎駅/バス 10分/浜見平団地 徒歩7分
  • 3LDK/築4 年
  • 94.76㎡(建物)
  • 140.78㎡(土地)

~LDK約18帖のゆとりある空間に床暖房や食洗機付きキッチンを採用~ ソーラーパネル付き、駐車3台可能なゆとりの住まいです♪

  • 駐車場有
  • システム
    キッチン
  • 追焚機能
  • 所有権
  • 低層住宅地
  • 南向き
  • 小学校
    800m以内
  • スーパー
    800m以内
株式会社令和地所

私たち令和地所は、お客様に寄り添うことを第一に営業しております。物件情報はもちろん、収入、貯蓄、月々の住宅ローン支払い可能額など、経験豊富なスタッフがお客様に合わせた適切なアドバイスをさせて頂きます。

その他の情報

外観:314002717143
中古戸建て 空家
間取り:314002717143
  • 4,580万円
  • 神奈川県茅ヶ崎市中海岸3丁目
  • 東海道本線 茅ケ崎駅/徒歩17分
  • 2SLDK/築3 年
  • 58.54㎡(建物)
  • 54.08㎡(土地)

~この街が好きだから~ この街と共にお客様に選ばれて続けてご成約7万件達成!!お客さまに心から「住んでよかった」と実感して頂けるよう良質な住まいを皆さまにお届けします!

  • 駐車場有
  • システム
    キッチン
  • 追焚機能
  • 所有権
  • 低層住宅地
  • 南向き
  • 小学校
    800m以内
  • スーパー
    800m以内
朝日土地建物株式会社 戸塚支店

当店は、戸塚駅東口徒歩5分の不動産会社です。横浜市戸塚区、栄区、泉区、港南区を中心に戸建て・土地・マンション等の物件を取り扱っています。無料駐車場、キッズスペースございます。ご来店お待ちしております!

その他の情報

外観:314002688294
中古戸建て

サザンビーチちがさきまで約1220m

間取り:314002688294
  • 3,980万円
  • 神奈川県茅ヶ崎市十間坂2丁目
  • 東海道本線 茅ケ崎駅/徒歩17分
  • 2SLDK/築7 年
  • 88.60㎡(建物)
  • 85.44㎡(土地)

■築5年!地元工務店のデザイナーズハウス! ■リビング吹抜け施工で開放的! ■茅ヶ崎駅まで徒歩約17分! 【梅田小学校・梅田中学校】

  • 駐車場有
  • システム
    キッチン
  • 追焚機能
  • 所有権
  • 低層住宅地
  • 南向き
  • 小学校
    800m以内
  • スーパー
    800m以内
株式会社フォーシーズンズランド 平塚店

その他の情報

外観:314002733229
中古戸建て 空家
間取り:314002733229
  • 3,980万円
  • 神奈川県茅ヶ崎市十間坂2丁目
  • 東海道本線 茅ケ崎駅/徒歩17分
  • 2SLDK/築7 年
  • 88.60㎡(建物)
  • 85.44㎡(土地)

2階リビング×勾配天井で開放感良好!~ 東南向き日当たり良好・ビルトイン車庫付き☆ 設備充実で茅ヶ崎駅徒歩17分の好立地です♪

  • 駐車場有
  • システム
    キッチン
  • 追焚機能
  • 所有権
  • 低層住宅地
  • 南向き
  • 小学校
    800m以内
  • スーパー
    800m以内
株式会社令和地所

私たち令和地所は、お客様に寄り添うことを第一に営業しております。物件情報はもちろん、収入、貯蓄、月々の住宅ローン支払い可能額など、経験豊富なスタッフがお客様に合わせた適切なアドバイスをさせて頂きます。

その他の情報

外観:314002622018
中古戸建て 空家

サザンビーチちがさきまで約1216m

間取り:314002622018
  • 3,980万円
  • 神奈川県茅ヶ崎市十間坂2丁目
  • 東海道本線 茅ケ崎駅/徒歩17分
  • 2SLDK/築7 年
  • 88.60㎡(建物)
  • 85.44㎡(土地)
  • 駐車場有
  • システム
    キッチン
  • 追焚機能
  • 所有権
  • 低層住宅地
  • 南向き
  • 小学校
    800m以内
  • スーパー
    800m以内
スカイガーデン株式会社 藤沢店

不動産売買とリフォーム工事を得意とする会社です。中古物件のお取引をお客様のご希望に合わせたリフォーム工事をする事でオリジナルのマイホームが誕生いたします。湘南地域ならではの雰囲気の工事が得意です!

その他の情報

外観:314002632224
中古戸建て 空家

サザンビーチちがさきまで約1418m

間取り:314002632224
  • 3,690万円
  • 神奈川県茅ヶ崎市柳島1丁目
  • 相模線 茅ケ崎駅/バス 7分/団地中央 徒歩6分
  • 4LDK/築20 年
  • 97.09㎡(建物)
  • 123.01㎡(土地)

●JR東海道本線「茅ヶ崎」駅 バス7分●生活利便施設周辺多数あり♪●カースペース2台分あり!●全居室南向きにつき陽当たり良好♪

  • 駐車場有
  • システム
    キッチン
  • 追焚機能
  • 所有権
  • 低層住宅地
  • 南向き
  • 小学校
    800m以内
  • スーパー
    800m以内
株式会社クリップ クリップハウジング

平塚市を中心に西湘エリア全体の物件をご紹介させて頂きます!!ホームページに掲載できない未公開物件も多数取り揃えておりますのでお気軽にお問い合わせください。

その他の情報

NO IMAGE
中古戸建て 空家

【近い!】 サザンビーチちがさきまで約450m

間取り:314002729925
  • 4,580万円
  • 神奈川県茅ヶ崎市中海岸3丁目
  • 東海道本線 茅ケ崎駅/バス 7分/サザン通り中央 徒歩2分
  • 2SLDK/築3 年
  • 58.54㎡(建物)
  • 54.08㎡(土地)

カウンターキッチンを中心に広がる開放的な間取りは、子どもたちの成長を見守りながら家事もスムーズ。徒歩圏内に公園やコンビニ、ドラッグストアが揃い、日々の暮らしに便利さと安心感をプラスします。

  • 駐車場有
  • システム
    キッチン
  • 追焚機能
  • 所有権
  • 低層住宅地
  • 南向き
  • 小学校
    800m以内
  • スーパー
    800m以内
株式会社Mスタイルプランニング

お住まい探しの期待と不安に寄り添い、お客様の良き相談相手となれるよう精一杯ご案内いたします。皆様からご相談いただける日を社員一同楽しみにお待ちしております。

その他の情報

外観:314002705162
中古戸建て 空家

サザンビーチちがさきまで約1729m

間取り:314002705162
  • 2,980万円
  • 神奈川県茅ヶ崎市柳島2丁目
  • 東海道本線 平塚駅/バス 13分/浜見平団地 徒歩6分
  • 3SLDK/築14 年
  • 77.62㎡(建物)
  • 100.00㎡(土地)

湘南の海を身近に感じる住宅。カースペース並列2台、無垢床や全室ハイドア仕様で開放感のある室内。主寝室は将来2部屋に分割可能な広さ。収納も充実し、学校や生活施設も徒歩圏の暮らしやすい住環境です

  • 駐車場有
  • システム
    キッチン
  • 追焚機能
  • 所有権
  • 低層住宅地
  • 南向き
  • 小学校
    800m以内
  • スーパー
    800m以内
株式会社クリップ クリップハウジング

平塚市を中心に西湘エリア全体の物件をご紹介させて頂きます!!ホームページに掲載できない未公開物件も多数取り揃えておりますのでお気軽にお問い合わせください。

その他の情報

外観:314002710198
中古戸建て 空家
間取り:314002710198
  • 4,580万円
  • 神奈川県茅ヶ崎市中海岸3丁目
  • 東海道本線 茅ケ崎駅/バス 7分/サザン通り中央 徒歩2分
  • 2LDK/築3 年
  • 58.54㎡(建物)
  • 54.08㎡(土地)

~サザンビーチ徒歩3分×ワイドバルコニー×オール電化~

  • 駐車場有
  • システム
    キッチン
  • 追焚機能
  • 所有権
  • 低層住宅地
  • 南向き
  • 小学校
    800m以内
  • スーパー
    800m以内
株式会社令和地所

私たち令和地所は、お客様に寄り添うことを第一に営業しております。物件情報はもちろん、収入、貯蓄、月々の住宅ローン支払い可能額など、経験豊富なスタッフがお客様に合わせた適切なアドバイスをさせて頂きます。

その他の情報

外観:314002714381
中古戸建て 空家

サザンビーチちがさきまで約1863m

間取り:314002714381
  • 4,280万円
  • 神奈川県茅ヶ崎市柳島2丁目
  • 東海道本線 茅ケ崎駅/バス 10分/浜見平団地 徒歩8分
  • 3LDK/築4 年
  • 94.76㎡(建物)
  • 140.78㎡(土地)
  • 駐車場有
  • システム
    キッチン
  • 追焚機能
  • 所有権
  • 低層住宅地
  • 南向き
  • 小学校
    800m以内
  • スーパー
    800m以内
スカイガーデン株式会社 藤沢店

不動産売買とリフォーム工事を得意とする会社です。中古物件のお取引をお客様のご希望に合わせたリフォーム工事をする事でオリジナルのマイホームが誕生いたします。湘南地域ならではの雰囲気の工事が得意です!

その他の情報

外観:314002708911
中古戸建て 空家
間取り:314002708911
  • 4,580万円
  • 神奈川県茅ヶ崎市中海岸3丁目
  • 東海道本線 茅ケ崎駅/徒歩16分
  • 2SLDK/築3 年
  • 58.54㎡(建物)
  • 54.08㎡(土地)

海側エリア・サザンビーチまで徒歩3分・3階建て・オール電化住宅・ルーフバルコニー付き◇◇

  • 駐車場有
  • システム
    キッチン
  • 追焚機能
  • 所有権
  • 低層住宅地
  • 南向き
  • 小学校
    800m以内
  • スーパー
    800m以内
K’s company株式会社

住宅ローンに強い不動産会社!住宅ローンのプロがお客様に合ったローンの組み立てをし理想のお住まい探しのお手伝いさせて頂きます!他社で断られた等、住宅ローンでお困りの方もお気軽にお問合せ下さい!

その他の情報

外観:314002706225
中古戸建て 空家

【近い!】 サザンビーチちがさきまで約451m

間取り:314002706225
  • 4,580万円
  • 神奈川県茅ヶ崎市中海岸3丁目
  • 東海道本線 茅ケ崎駅/バス 7分/サザン通り中央 徒歩2分
  • 2SLDK/築3 年
  • 58.54㎡(建物)
  • 54.08㎡(土地)

JR東海道本線「茅ヶ崎」駅 バス7分「サザン通り中央」停歩2分★サザンビーチ徒歩3分★令和5年築の築浅中古戸建★ワイドバルコニー★陽当たり良好

  • 駐車場有
  • システム
    キッチン
  • 追焚機能
  • 所有権
  • 低層住宅地
  • 南向き
  • 小学校
    800m以内
  • スーパー
    800m以内
株式会社クリップ クリップハウジング

平塚市を中心に西湘エリア全体の物件をご紹介させて頂きます!!ホームページに掲載できない未公開物件も多数取り揃えておりますのでお気軽にお問い合わせください。

その他の情報

外観:314002607114
中古戸建て 空家
間取り:314002607114
  • 4,280万円
  • 神奈川県茅ヶ崎市柳島2丁目
  • 東海道本線 茅ケ崎駅/バス 10分/浜見平団地 徒歩7分
  • 3LDK/築4 年
  • 94.76㎡(建物)
  • 140.78㎡(土地)

2階の主寝室は広々約11帖のゆとりある広さ、床暖房付きで冬も快適にお過ごし頂けます。 南向きで日当たり良好。 カースペースは3台駐車可能で、来客にも便利です。

  • 駐車場有
  • システム
    キッチン
  • 追焚機能
  • 所有権
  • 低層住宅地
  • 南向き
  • 小学校
    800m以内
  • スーパー
    800m以内
株式会社フォーシーズンズランド 藤沢店

藤沢・湘南エリアの不動産ならフォーシーズンズランドにお任せください。茅ヶ崎市・藤沢市・寒川町の不動産を中心に幅広い情報をご提供致します。住宅ローン・不動産の税金・相続等のご相談もお受けいたします。

その他の情報

外観:314002730438
中古戸建て 空家

【近い!】 サザンビーチちがさきまで約451m

間取り:314002730438
  • 4,580万円
  • 神奈川県茅ヶ崎市中海岸3丁目
  • 東海道本線 茅ケ崎駅/徒歩16分
  • 2SLDK/築3 年
  • 58.54㎡(建物)
  • 54.08㎡(土地)

ホームプランナーでは他社とは違う購入諸経費プランをご提案致します。詳しくはホームページをご覧ください。

  • 駐車場有
  • システム
    キッチン
  • 追焚機能
  • 所有権
  • 低層住宅地
  • 南向き
  • 小学校
    800m以内
  • スーパー
    800m以内
株式会社ホームプランナー

住まい探しからメンテンスまで、おうちの悩みサーポート致します。リフォーム会社から創業した弊社ならではのご提案させていただきます。湘南エリアの物件情報満載の当社ホームページを是非御覧ください。

その他の情報

NO IMAGE
中古戸建て 空家
間取り:314002720691
  • 4,580万円
  • 神奈川県茅ヶ崎市中海岸3丁目
  • 東海道本線 茅ケ崎駅/バス 7分/サザン通り中央 徒歩2分
  • 2LDK/築3 年
  • 58.54㎡(建物)
  • 54.08㎡(土地)

令和5年築。セキスイハイム施工。日当たり良好な2LDK。ワイドバルコニーとルーフバルコニー付き。

  • 駐車場有
  • システム
    キッチン
  • 追焚機能
  • 所有権
  • 低層住宅地
  • 南向き
  • 小学校
    800m以内
  • スーパー
    800m以内
センチュリー21アース住販

その他の情報

外観:314002712237
中古戸建て 空家

【近い!】 サザンビーチちがさきまで約451m

間取り:314002712237
  • 4,580万円
  • 神奈川県茅ヶ崎市中海岸3丁目
  • 東海道本線 茅ケ崎駅/バス 7分/サザン通り中央 徒歩2分
  • 2SLDK/築3 年
  • 58.54㎡(建物)
  • 54.08㎡(土地)

当社ならキャッシュバックあり 令和5年の築浅なので室内きれい セキスハイム施工 オール電化の物件 茅ヶ崎小・第一中学区 開放感のあるルーフバルコニー&ワイドバルコニー付 サザンビーチ徒歩圏内

  • 駐車場有
  • システム
    キッチン
  • 追焚機能
  • 所有権
  • 低層住宅地
  • 南向き
  • 小学校
    800m以内
  • スーパー
    800m以内
株式会社リビングボイス

【仲介手数料最大0円!】当社なら新築一戸建の95%が仲介手数料0円★中古戸建・中古マンション・売地も割引対象物件あり★値引き交渉もお任せ★ぜひ当社HPをご覧下さい!「リビングボイス」で検索を♪

その他の情報

外観:314002711641
中古戸建て 空家

【近い!】 サザンビーチちがさきまで約451m

間取り:314002711641
  • 4,580万円
  • 神奈川県茅ヶ崎市中海岸3丁目
  • 東海道本線 茅ケ崎駅/徒歩17分
  • 2SLDK/築3 年
  • 58.54㎡(建物)
  • 54.08㎡(土地)
  • 駐車場有
  • システム
    キッチン
  • 追焚機能
  • 所有権
  • 低層住宅地
  • 南向き
  • 小学校
    800m以内
  • スーパー
    800m以内
スカイガーデン株式会社 藤沢店

不動産売買とリフォーム工事を得意とする会社です。中古物件のお取引をお客様のご希望に合わせたリフォーム工事をする事でオリジナルのマイホームが誕生いたします。湘南地域ならではの雰囲気の工事が得意です!

その他の情報

外観:314002704238
中古戸建て 空家
間取り:314002704238
  • 4,580万円
  • 神奈川県茅ヶ崎市中海岸3丁目
  • 東海道本線 茅ケ崎駅/徒歩16分
  • 2LDK/築3 年
  • 58.54㎡(建物)
  • 54.08㎡(土地)

茅ヶ崎市の海側人気エリア『中海岸』。 サザンビーチにも駅にも近い資産価値◎

  • 駐車場有
  • システム
    キッチン
  • 追焚機能
  • 所有権
  • 低層住宅地
  • 南向き
  • 小学校
    800m以内
  • スーパー
    800m以内
株式会社フォーシーズンズランド茅ヶ崎本店

茅ヶ崎・湘南エリアの不動産ならフォーシーズンズランドにお任せください。茅ヶ崎市・藤沢市・寒川町の不動産を中心に幅広い情報をご提供致します。住宅ローン・不動産の税金・相続等のご相談もお受けいたします。

その他の情報

外観:314002700969
中古戸建て 空家

サザンビーチちがさきまで約1194m

間取り:314002700969
  • 3,780万円
  • 神奈川県茅ヶ崎市柳島海岸
  • 相模線 茅ケ崎駅/バス 7分/団地中央 徒歩5分
  • 3LDK/築24 年
  • 89.91㎡(建物)
  • 100.15㎡(土地)

即日内覧可!好条件で住まい探しに寄り添う♪安心の実績で応援【エスグランド】

  • 駐車場有
  • システム
    キッチン
  • 追焚機能
  • 所有権
  • 低層住宅地
  • 南向き
  • 小学校
    800m以内
  • スーパー
    800m以内
株式会社エスグランド

不動産の売買、注文建築も買取もまるっと当社へお任せ♪お客様の”こんな家に住みたい”を一緒に!話しやすいスタッフがお迎え致します。お気軽に相談できるエスグランドへ!!いつでもご連絡お待ちしております♪

その他の情報

外観:314002630443
中古戸建て 空家
間取り:314002630443
  • 3,780万円
  • 神奈川県茅ヶ崎市柳島海岸
  • 東海道本線 茅ケ崎駅/バス 7分/団地中央 徒歩5分
  • 3LDK/築24 年
  • 89.91㎡(建物)
  • 100.15㎡(土地)

■南向きの明るいリビングと使い勝手の良いカウンターキッチンが家族の時間を彩ります。徒歩圏内にスーパーやコンビニ、学校、公園が揃い、子育てに安心の環境。駐車場完備でお出かけも快適です。

  • 駐車場有
  • システム
    キッチン
  • 追焚機能
  • 所有権
  • 低層住宅地
  • 南向き
  • 小学校
    800m以内
  • スーパー
    800m以内
株式会社Mスタイルプランニング

お住まい探しの期待と不安に寄り添い、お客様の良き相談相手となれるよう精一杯ご案内いたします。皆様からご相談いただける日を社員一同楽しみにお待ちしております。

その他の情報

外観:314002547137
中古戸建て 空家
間取り:314002547137
  • 3,780万円
  • 神奈川県茅ヶ崎市柳島海岸
  • 東海道本線 茅ケ崎駅/徒歩32分
  • 3LDK/築24 年
  • 89.91㎡(建物)
  • 100.15㎡(土地)

2003年築・全洋室の3LDK・お車1台分・海側エリア◇リフォーム済住戸♪東西南の三方が抜けていて開放感有◇BRANCH茅ヶ崎まで300mで便利☆

  • 駐車場有
  • システム
    キッチン
  • 追焚機能
  • 所有権
  • 低層住宅地
  • 南向き
  • 小学校
    800m以内
  • スーパー
    800m以内
K’s company株式会社

住宅ローンに強い不動産会社!住宅ローンのプロがお客様に合ったローンの組み立てをし理想のお住まい探しのお手伝いさせて頂きます!他社で断られた等、住宅ローンでお困りの方もお気軽にお問合せ下さい!

その他の情報

外観:314002687177
中古戸建て
間取り:314002687177
  • 4,200万円
  • 神奈川県茅ヶ崎市浜之郷
  • 東海道本線 茅ケ崎駅/徒歩16分
  • 2SLDK/築13 年
  • 95.22㎡(建物)
  • 100.18㎡(土地)

《ミサワホーム施工の注文住宅》室内大変お綺麗です☆梅田小・中学校☆徒歩10分圏内に生活利便施設多数あり!床暖房・ミストサウナなど充実の設備仕様を完備◎【ご内見可能~まずはお問い合わせ下さい♪】

  • 駐車場有
  • システム
    キッチン
  • 追焚機能
  • 所有権
  • 低層住宅地
  • 南向き
  • 小学校
    800m以内
  • スーパー
    800m以内
株式会社フォーシーズンズランド茅ヶ崎本店

茅ヶ崎・湘南エリアの不動産ならフォーシーズンズランドにお任せください。茅ヶ崎市・藤沢市・寒川町の不動産を中心に幅広い情報をご提供致します。住宅ローン・不動産の税金・相続等のご相談もお受けいたします。

その他の情報

外観:314002688215
中古戸建て 空家
間取り:314002688215
  • 3,380万円
  • 神奈川県茅ヶ崎市松尾
  • 湘南新宿ライン高海 茅ケ崎駅/バス 7分/松尾 徒歩3分
  • 3SLDK/築14 年
  • 93.56㎡(建物)
  • 81.74㎡(土地)

海近の立地。外壁塗装・屋根ベランダ防水・水回り交換ほか室内リフォーム済で全居室収納+駐車1台。周辺環境も整い、住み心地の良さを実感できる中古戸建です。

  • 駐車場有
  • システム
    キッチン
  • 追焚機能
  • 所有権
  • 低層住宅地
  • 南向き
  • 小学校
    800m以内
  • スーパー
    800m以内
株式会社フォーシーズンズランド茅ヶ崎本店

茅ヶ崎・湘南エリアの不動産ならフォーシーズンズランドにお任せください。茅ヶ崎市・藤沢市・寒川町の不動産を中心に幅広い情報をご提供致します。住宅ローン・不動産の税金・相続等のご相談もお受けいたします。

その他の情報

NO IMAGE
中古戸建て 空家

サザンビーチちがさきまで約1543m

間取り:314002584356
  • 3,380万円
  • 神奈川県茅ヶ崎市松尾
  • 東海道本線 茅ケ崎駅/バス 7分/松尾(神奈川県) 徒歩3分
  • 3SLDK/築14 年
  • 93.56㎡(建物)
  • 81.74㎡(土地)

ホームプランナーでは他社とは違う購入諸経費プランをご提案致します。詳しくはホームページをご覧ください。

  • 駐車場有
  • システム
    キッチン
  • 追焚機能
  • 所有権
  • 低層住宅地
  • 南向き
  • 小学校
    800m以内
  • スーパー
    800m以内
株式会社ホームプランナー

住まい探しからメンテンスまで、おうちの悩みサーポート致します。リフォーム会社から創業した弊社ならではのご提案させていただきます。湘南エリアの物件情報満載の当社ホームページを是非御覧ください。

その他の情報

1ページ目(3ページ中) 次へ
この条件で新着メールを受取る
この検索条件を保存する

茅ヶ崎市の物件も見てみませんか?

現在のページで希望の物件が見つからなければエリアから探してみてもいいかもしれません。

茅ヶ崎市の物件を見る

※サザンビーチちがさきまでの直線距離を表示しています。道路距離ではありませんのでご了承ください。

追加が完了しました。

現在00件保存されています。(最大5件)

保存した条件一覧を見る

現在00件保存されています。

残り00件追加することができます。

お気に入り物件一覧を見る

間隔を空けてお試しください。

問合せが未完了の物件

条件を変更
チェックした物件をまとめて 資料請求(無料) お気に入りに追加