山口市(山口県)の1,000万円以下の中古住宅・中古一戸建ての購入情報

山口市(山口県)の1,000万円以下の物件を集めました。憧れの古民家、憧れのマイホームがお手軽価格で手に入るかも?1,000万円以下の中古住宅・中古一戸建てを探してみましょう。

7

↓ チェックした物件をまとめてお問い合わせ

外観:335000028692
中古戸建て 空家
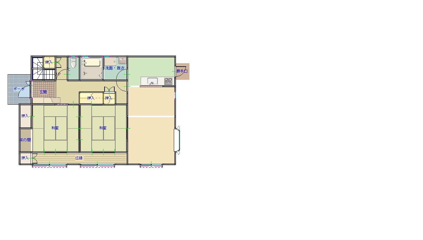
間取り:335000028692
  • 1,000万円
  • 山口県山口市秋穂東日地
  • 山陽本線 大道駅/徒歩77分
  • 5LDK/築29 年
  • 167.20㎡(建物)
  • 1148.70㎡(土地)

家族で住むなら寝室10帖以上の間取りはいかがでしょうか。家族仲良く寝る事もできて魅力的です。こちらは中古の戸建てです。家族におすすめな5LDK。設備も充実しています。冬でも家中があったかいオール電化住

  • 駐車場有
  • システム
    キッチン
  • 追焚機能
  • 所有権
  • 低層住宅地
  • 南向き
  • 小学校
    800m以内
  • スーパー
    800m以内
U2JAPAN株式会社

不動産の事ならU2JAPAN株式会社にお任せください!県内最大級の売り場面積を誇る不動産会社です。売買、金融、保険、リフォーム、相続全てワンストップでご対応いたします。

その他の情報

外観:335000032226
中古戸建て 空家
間取り:335000032226
  • 420万円
  • 山口県山口市吉田
  • 山口線 湯田温泉駅/徒歩37分
  • 4DK/築42 年
  • 73.11㎡(建物)
  • 201.06㎡(土地)

表面利回り13%超 軽量鉄骨の平家で、長く貸せる。 山口市吉田の4DK、安定収益を生む一棟♪

  • 駐車場有
  • システム
    キッチン
  • 追焚機能
  • 所有権
  • 低層住宅地
  • 南向き
  • 小学校
    800m以内
  • スーパー
    800m以内
株式会社TSUKUBITO

“買いたい方と売りたい方を繋ぐ“ことを大切にご紹介をしています。「こんな物件が気になる」「この場所に住みたい」などなど、ご相談も承ります!お客様の物件選びをぜひ当社にお任せくださいませ!

その他の情報

外観:335000031849
中古戸建て 空家
間取り:335000031849
  • 480万円
  • 山口県山口市小郡金堀町
  • 山口線 上郷駅/徒歩20分
  • 3LDK/築51 年
  • 72.87㎡(建物)
  • 310.57㎡(土地)

ファミリーからニーズが高くてご好評を頂いている3LDK物件です。2駅利用OKな物件で行き先に合わせて使い分けることができます。こちらは中古の戸建て物件です。お住まいへのこだわりは十人十色です。当社で

  • 駐車場有
  • システム
    キッチン
  • 追焚機能
  • 所有権
  • 低層住宅地
  • 南向き
  • 小学校
    800m以内
  • スーパー
    800m以内
株式会社TSUKUBITO

“買いたい方と売りたい方を繋ぐ“ことを大切にご紹介をしています。「こんな物件が気になる」「この場所に住みたい」などなど、ご相談も承ります!お客様の物件選びをぜひ当社にお任せくださいませ!

その他の情報

外観:335000029972
中古戸建て 空家
間取り:335000029972
  • 949万円
  • 山口県山口市阿東生雲中
  • 山口線 三谷駅/徒歩80分
  • 5DK/築44 年
  • 175.32㎡(建物)
  • 730.90㎡(土地)

【見学会開催】 ※当日予約OK。ご希望日をお知らせください。 緑に囲まれた静かな環境で、季節を感じながら生活できます。 小学校までは徒歩約12分(950m)と楽々通学。 中学校までは約9.6k

  • 駐車場有
  • システム
    キッチン
  • 追焚機能
  • 所有権
  • 低層住宅地
  • 南向き
  • 小学校
    800m以内
  • スーパー
    800m以内
株式会社カチタス 山口店

当社はニトリと業務・資本提携を結ぶ、東証プライム上場企業です。物件を知り尽くしたプロが中古物件を買い取り、細部までチェックし、自社規格に沿って丁寧にリフォームしているので、ご購入後も安心が続きます。

その他の情報

外観:335000032507
中古戸建て 空家
間取り:335000032507
  • 850万円
  • 山口県山口市大内御堀
  • バス 駅/バス 御堀 徒歩4分
  • 5LDK/築55 年
  • 107.20㎡(建物)
  • 369.02㎡(土地)

落ち着いた住環境♪主要幹線道路へのアクセスが非常に良く、通勤や移動がスムーズ!40帖超の畳スペース!大人数での集まりや二世帯同居にも対応可能な、圧倒的な広さと続き間の柔軟性が最大の魅力☆

  • 駐車場有
  • システム
    キッチン
  • 追焚機能
  • 所有権
  • 低層住宅地
  • 南向き
  • 小学校
    800m以内
  • スーパー
    800m以内
住むテラス ASSET Design株式会社

家づくりの4大要素「予算」「土地」「建築業者」「住宅ローン」に対して、ファイナンシャルプランナーや住宅ローンアドバイザーなどの有資格者からご安心のご説明ができます。

その他の情報

外観:335000031621
中古戸建て 空家
NO IMAGE
  • 995万円
  • 山口県山口市秋穂東
  • 山陽本線 大道駅/徒歩61分
  • 5LDK/築30 年
  • 193.93㎡(建物)
  • 291.06㎡(土地)

\お問合せはエミアス/スローライフをご希望の方、釣り好きの方にお勧めです♪

  • 駐車場有
  • システム
    キッチン
  • 追焚機能
  • 所有権
  • 低層住宅地
  • 南向き
  • 小学校
    800m以内
  • スーパー
    800m以内
株式会社エミアス 山口支店

当社は山口県内4店舗のネットワークを展開しており、幅広いエリアでお客様の不動産探しや相談を適切に親身にサポートいたします。山口支店公式ライン、インスタグラムからもお問合せ可能です♪

その他の情報

外観:335000032512
中古戸建て 空家
NO IMAGE
  • 820万円
  • 山口県山口市小郡新町1丁目
  • 山口線 上郷駅/徒歩9分
  • 2LDK/築54 年
  • 73.11㎡(建物)
  • 145.63㎡(土地)

内装・外装・瓦リフォーム済!JR上郷駅から徒歩10分。近隣には生活利便施設も有り便利な立地です♪

  • 駐車場有
  • システム
    キッチン
  • 追焚機能
  • 所有権
  • 低層住宅地
  • 南向き
  • 小学校
    800m以内
  • スーパー
    800m以内
住むテラス ASSET Design株式会社

家づくりの4大要素「予算」「土地」「建築業者」「住宅ローン」に対して、ファイナンシャルプランナーや住宅ローンアドバイザーなどの有資格者からご安心のご説明ができます。

その他の情報

1ページ目(1ページ中)
この条件で新着メールを受取る
この検索条件を保存する
追加が完了しました。

現在00件保存されています。(最大5件)

保存した条件一覧を見る

現在00件保存されています。

残り00件追加することができます。

お気に入り物件一覧を見る

間隔を空けてお試しください。

問合せが未完了の物件

エリアを変更 条件を変更
チェックした物件をまとめて 資料請求(無料) お気に入りに追加