小田原市城山(神奈川県)の空き家・中古住宅・中古一戸建て・一軒家の購入情報

小田原市城山(神奈川県)の空き家・中古住宅・中古一戸建て・一軒家の購入情報をご覧いただけます。

3

↓ チェックした物件をまとめてお問い合わせ

外観:314002594659
中古戸建て 空家
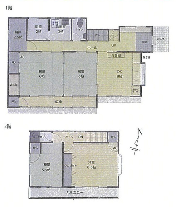
間取り:314002594659
  • 4,300万円
  • 神奈川県小田原市城山1丁目
  • 東海道本線 小田原駅/徒歩8分
  • 4SDK/築34 年
  • 107.47㎡(建物)
  • 365.49㎡(土地)
  • 駐車場有
  • システム
    キッチン
  • 追焚機能
  • 所有権
  • 低層住宅地
  • 南向き
  • 小学校
    800m以内
  • スーパー
    800m以内
株式会社クリップ クリップハウジング

平塚市を中心に西湘エリア全体の物件をご紹介させて頂きます!!ホームページに掲載できない未公開物件も多数取り揃えておりますのでお気軽にお問い合わせください。

その他の情報

NO IMAGE
中古戸建て 空家
間取り:314002674067
  • 4,300万円
  • 神奈川県小田原市城山1丁目
  • 東海道本線 小田原駅/徒歩8分
  • 4SDK/築34 年
  • 107.47㎡(建物)
  • 365.49㎡(土地)

東海道線「小田原」駅約640mの立地です!敷地面積約110坪の広々とした戸建です!家計にやさしい都市ガス利用エリアです!(20時まで電話対応可能)

  • 駐車場有
  • システム
    キッチン
  • 追焚機能
  • 所有権
  • 低層住宅地
  • 南向き
  • 小学校
    800m以内
  • スーパー
    800m以内
アプリコットホーム株式会社

湘南エリアの新築中古土地マンションの売買分譲、アパート駐車場ビルの賃貸管理資産運用等を行います。駐車場も店舗前に完備しております。未公開情報や住宅ローンに自信がありますのでお気軽にご相談ください。

その他の情報

NO IMAGE
中古戸建て 空家
間取り:314002596765
  • 4,300万円
  • 神奈川県小田原市城山1丁目
  • 東海道本線 小田原駅/徒歩8分
  • 4SDK/築34 年
  • 107.47㎡(建物)
  • 365.49㎡(土地)

小田原市城山1丁目 中古戸建:東海道本線小田原駅にも近くて便利。収納力に優れる納戸が設置されております。高台に立地していて地震の被害が少なく安全な場所です。戸建て物件をお探しの方は、便利な価格からな

  • 駐車場有
  • システム
    キッチン
  • 追焚機能
  • 所有権
  • 低層住宅地
  • 南向き
  • 小学校
    800m以内
  • スーパー
    800m以内
スカイガーデン株式会社

経験豊富なスタッフが分かりやすくご案内させて頂きます。住宅ローンをご利用のお客様はローン相談も解決出来ますのでお気軽にご相談下さい。

その他の情報

1ページ目(1ページ中)
この条件で新着メールを受取る
この検索条件を保存する
追加が完了しました。

現在00件保存されています。(最大5件)

保存した条件一覧を見る

現在00件保存されています。

残り00件追加することができます。

お気に入り物件一覧を見る

間隔を空けてお試しください。

問合せが未完了の物件

エリアを変更 条件を変更
チェックした物件をまとめて 資料請求(無料) お気に入りに追加