相模原市緑区(神奈川県)の空き家・中古住宅・中古一戸建て・一軒家の購入情報

相模原市緑区(神奈川県)の空き家・中古住宅・中古一戸建て・一軒家の購入情報をご覧いただけます。

241

↓ チェックした物件をまとめてお問い合わせ

外観:314002368798
中古戸建て 空家
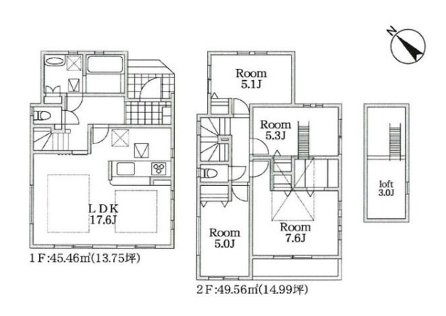
間取り:314002368798
  • 4,590万円
  • 神奈川県相模原市緑区橋本5丁目
  • 相模線 橋本駅/徒歩13分
  • 2SLDK/築2 年
  • 96.54㎡(建物)
  • 90.03㎡(土地)
  • 駐車場有
  • システム
    キッチン
  • 追焚機能
  • 所有権
  • 低層住宅地
  • 南向き
  • 小学校
    800m以内
  • スーパー
    800m以内
株式会社住まいの広場TOWNS

物件公開常時3千件以上!プラス未公開情報で、他社と比べても多くの物件をご紹介可能です。また、FP資格者によるライフプランのご提案が可能です。目指すは顧客満足度No.1、「出会えてよかった」を提供します。

その他の情報

外観:314002355392
中古戸建て 空家
間取り:314002355392
  • 2,995万円
  • 神奈川県相模原市緑区下九沢
  • 横浜線 橋本駅/バス 17分/九沢自治会館前 徒歩3分
  • 4LDK/築2 年
  • 95.02㎡(建物)
  • 84.84㎡(土地)

「橋本駅」よりバス約14分「九沢自治会館前」停歩約3分 旭化成パワーボード37mm使用 オール電化住宅 IHクッキングヒーター カップボード完備 食洗器完備 床暖房完備

  • 駐車場有
  • システム
    キッチン
  • 追焚機能
  • 所有権
  • 低層住宅地
  • 南向き
  • 小学校
    800m以内
  • スーパー
    800m以内
朝日土地建物株式会社 相模原店

朝日土地建物株式会社 相模原店 JR横浜線 相模原駅徒歩3分 地域密着型として、将来性豊かな街、住みやすい街として、暮らしやすい街として、都心、横浜に、アクセスもよく、そんな街に住んでみませんか。

その他の情報

外観:314002453262
中古戸建て
間取り:314002453262
  • 3,080万円
  • 神奈川県相模原市緑区町屋2丁目
  • 京王電鉄相模原線 橋本駅/バス 11分/東原宿 徒歩12分
  • 4LDK/築8 年
  • 95.58㎡(建物)
  • 120.32㎡(土地)

~平成30年築の中古戸建~ 室内とてもきれいにお使いです! 1階の和室は将来も見据えた使いやすい間取りです。 南側道路に接道しているので陽当たり◎

  • 駐車場有
  • システム
    キッチン
  • 追焚機能
  • 所有権
  • 低層住宅地
  • 南向き
  • 小学校
    800m以内
  • スーパー
    800m以内
朝日土地建物株式会社 橋本支店 営業1課

創業40周年、地域密着として特化した経験豊富なスタッフがご対応させて頂きます。地元だからこその強みを生かしたご提案を致しますので、お気軽にお問い合わせください。

その他の情報

外観:314002499279
中古戸建て 空家
間取り:314002499279
  • 4,180万円
  • 神奈川県相模原市緑区相原6丁目
  • 横浜線 相原駅/バス 6分/相原十字路 徒歩2分
  • 3LDK/築5 年
  • 96.05㎡(建物)
  • 122.92㎡(土地)

令和3年築・太陽光パネル搭載住宅!カースペースは並列3台可能です!クロス張替・クリーニング済ですので、すぐにご入居いただけます!

  • 駐車場有
  • システム
    キッチン
  • 追焚機能
  • 所有権
  • 低層住宅地
  • 南向き
  • 小学校
    800m以内
  • スーパー
    800m以内
株式会社クリップ クリップハウジング 八王子支店

【売主物件多数有り】クリップハウジングでは八王子市・多摩エリアを中心に、新築・中古戸建、土地、マンションなど、豊富な物件情報を取り扱っております。お気軽にご相談ください!

その他の情報

外観:314002435290
中古戸建て 空家
間取り:314002435290
  • 4,180万円
  • 神奈川県相模原市緑区相原6丁目
  • 横浜線 相原駅/徒歩23分
  • 3LDK/築5 年
  • 96.05㎡(建物)
  • 122.92㎡(土地)
  • 駐車場有
  • システム
    キッチン
  • 追焚機能
  • 所有権
  • 低層住宅地
  • 南向き
  • 小学校
    800m以内
  • スーパー
    800m以内
株式会社住まいの広場TOWNS

物件公開常時3千件以上!プラス未公開情報で、他社と比べても多くの物件をご紹介可能です。また、FP資格者によるライフプランのご提案が可能です。目指すは顧客満足度No.1、「出会えてよかった」を提供します。

その他の情報

外観:314002355391
中古戸建て 空家
間取り:314002355391
  • 2,835万円
  • 神奈川県相模原市緑区下九沢
  • 横浜線 橋本駅/バス 17分/九沢自治会館前 徒歩3分
  • 4LDK/築2 年
  • 92.74㎡(建物)
  • 85.61㎡(土地)

◆即日見学可能! ◆オール電化住宅! ◆冬場に嬉しいリビング床暖房設置!!

  • 駐車場有
  • システム
    キッチン
  • 追焚機能
  • 所有権
  • 低層住宅地
  • 南向き
  • 小学校
    800m以内
  • スーパー
    800m以内
朝日土地建物株式会社 相模原店

朝日土地建物株式会社 相模原店 JR横浜線 相模原駅徒歩3分 地域密着型として、将来性豊かな街、住みやすい街として、暮らしやすい街として、都心、横浜に、アクセスもよく、そんな街に住んでみませんか。

その他の情報

外観:314002549860
中古戸建て 空家
間取り:314002549860
  • 4,480万円
  • 神奈川県相模原市緑区二本松3丁目
  • 横浜線 橋本駅/バス 9分/森の上 徒歩6分
  • 4LDK/築8 年
  • 96.05㎡(建物)
  • 120.16㎡(土地)

2025年11月リフォーム完成!カースペースは出し入れの快適な並列2台!前面道路幅は6m!

  • 駐車場有
  • システム
    キッチン
  • 追焚機能
  • 所有権
  • 低層住宅地
  • 南向き
  • 小学校
    800m以内
  • スーパー
    800m以内
株式会社クリップ クリップハウジング 八王子支店

【売主物件多数有り】クリップハウジングでは八王子市・多摩エリアを中心に、新築・中古戸建、土地、マンションなど、豊富な物件情報を取り扱っております。お気軽にご相談ください!

その他の情報

外観:314002413424
中古戸建て 空家
間取り:314002413424
  • 2,995万円
  • 神奈川県相模原市緑区下九沢
  • 横浜線 橋本駅/バス 14分/久沢自治会館前 徒歩3分
  • 4LDK/築2 年
  • 95.02㎡(建物)
  • 84.84㎡(土地)

駐車スペースあり(車種による) オール電化住宅 食洗機・浄水器一体型システムキッチン 浴室乾燥機付きセミオートバス オールペアガラス 玄関ディンプルキーダブルロック 床暖房完備 ロフト収納付き

  • 駐車場有
  • システム
    キッチン
  • 追焚機能
  • 所有権
  • 低層住宅地
  • 南向き
  • 小学校
    800m以内
  • スーパー
    800m以内
株式会社 東宝ハウス町田

新宿、渋谷から30分のマイホーム探しをお手伝いします。町田を中心に小田急、横浜、田園都市線と幅広く取り扱っています。是非当社のホームページも是非ご覧ください!

その他の情報

外観:314002508460
中古戸建て
間取り:314002508460
  • 2,990万円
  • 神奈川県相模原市緑区下九沢
  • 横浜線 橋本駅/バス 18分/塚場 徒歩2分
  • 4LDK/築7 年
  • 99.98㎡(建物)
  • 100.10㎡(土地)

■京王相模原線・JR横浜線・JR相模線「橋本駅」までバス18分・停歩2分 ■バルコニーは南東向き! ■日当たり良好 ■バス停まで徒歩2分の為、駅へのアクセスも便利です 是非一度、お問い合わせください

  • 駐車場有
  • システム
    キッチン
  • 追焚機能
  • 所有権
  • 低層住宅地
  • 南向き
  • 小学校
    800m以内
  • スーパー
    800m以内
朝日土地建物株式会社 八王子支店

八王子市・日野市・多摩市の不動産は 朝日土地建物八王子店にお任せください!創業40周年の安心と信頼。豊富な物件情報が自慢です!WEB未公開物件も多数!お気軽にお問い合わせください。

その他の情報

外観:314002363957
中古戸建て 空家
間取り:314002363957
  • 4,590万円
  • 神奈川県相模原市緑区二本松4丁目
  • 横浜線 相原駅/徒歩25分
  • 4LDK/築2 年
  • 98.53㎡(建物)
  • 120.01㎡(土地)

全20棟の大型分譲地です♪全棟駐車場2台付き♪ファミリー世帯に人気の住みやすい住環境です♪

  • 駐車場有
  • システム
    キッチン
  • 追焚機能
  • 所有権
  • 低層住宅地
  • 南向き
  • 小学校
    800m以内
  • スーパー
    800m以内
株式会社Mスタイルプランニング

お住まい探しの期待と不安に寄り添い、お客様の良き相談相手となれるよう精一杯ご案内いたします。皆様からご相談いただける日を社員一同楽しみにお待ちしております。

その他の情報

外観:314002295001
中古戸建て
間取り:314002295001
  • 4,590万円
  • 神奈川県相模原市緑区二本松4丁目
  • 京王電鉄相模原線 橋本駅/バス 15分/二本松 徒歩4分
  • 4LDK/築2 年
  • 98.53㎡(建物)
  • 120.01㎡(土地)

落ち着いた住環境に全20区画の開発分譲地のご紹介です。 お買い物も便利な好立地。 ◎都市ガス

  • 駐車場有
  • システム
    キッチン
  • 追焚機能
  • 所有権
  • 低層住宅地
  • 南向き
  • 小学校
    800m以内
  • スーパー
    800m以内
朝日土地建物株式会社 橋本支店 営業2課

その他の情報

外観:314002441928
中古戸建て 空家
間取り:314002441928
  • 2,835万円
  • 神奈川県相模原市緑区下九沢
  • 横浜線 橋本駅/バス 14分/九沢自治会館前 徒歩3分
  • 4LDK/築2 年
  • 92.74㎡(建物)
  • 85.61㎡(土地)

オール電化の新築3棟!ゆとりの4LDK省エネ住宅、ロフト付きです!

  • 駐車場有
  • システム
    キッチン
  • 追焚機能
  • 所有権
  • 低層住宅地
  • 南向き
  • 小学校
    800m以内
  • スーパー
    800m以内
株式会社クリップ クリップハウジング 八王子支店

【売主物件多数有り】クリップハウジングでは八王子市・多摩エリアを中心に、新築・中古戸建、土地、マンションなど、豊富な物件情報を取り扱っております。お気軽にご相談ください!

その他の情報

NO IMAGE
中古戸建て 空家
間取り:314002549476
  • 4,480万円
  • 神奈川県相模原市緑区二本松3丁目
  • 横浜線 相原駅/徒歩30分
  • 4LDK/築8 年
  • 96.05㎡(建物)
  • 120.16㎡(土地)
  • 駐車場有
  • システム
    キッチン
  • 追焚機能
  • 所有権
  • 低層住宅地
  • 南向き
  • 小学校
    800m以内
  • スーパー
    800m以内
朝日土地建物株式会社 相模原店

朝日土地建物株式会社 相模原店 JR横浜線 相模原駅徒歩3分 地域密着型として、将来性豊かな街、住みやすい街として、暮らしやすい街として、都心、横浜に、アクセスもよく、そんな街に住んでみませんか。

その他の情報

外観:314002512515
中古戸建て 空家
間取り:314002512515
  • 2,995万円
  • 神奈川県相模原市緑区下九沢
  • 横浜線 橋本駅/バス 14分/九沢自治会館前 徒歩3分
  • 4LDK/築2 年
  • 95.02㎡(建物)
  • 84.00㎡(土地)

くらしを楽しむ世の中を、もっと。~ME不動産神奈川~陽当たり良好 安心安全なオール電化住宅 床暖房付きのあったかリビング ゆとりの4LDK省エネ住宅ロフト付き 自然豊かな住環境

  • 駐車場有
  • システム
    キッチン
  • 追焚機能
  • 所有権
  • 低層住宅地
  • 南向き
  • 小学校
    800m以内
  • スーパー
    800m以内
ME不動産神奈川株式会社

首都圏に広がるME Group2020年ご成約件数1878件の実績。他に建設・住宅設備・保険・IT等「くらし」をテーマに事業を展開。

その他の情報

外観:314002441772
中古戸建て 空家
間取り:314002441772
  • 2,995万円
  • 神奈川県相模原市緑区下九沢
  • 横浜線 橋本駅/バス 14分/九沢自治会館前 徒歩3分
  • 4LDK/築2 年
  • 95.02㎡(建物)
  • 84.84㎡(土地)

ゆとりの4LDK・省エネタイプのオール電化住宅です!完成いたしましたのですぐにご内見可能です!

  • 駐車場有
  • システム
    キッチン
  • 追焚機能
  • 所有権
  • 低層住宅地
  • 南向き
  • 小学校
    800m以内
  • スーパー
    800m以内
株式会社クリップ クリップハウジング 八王子支店

【売主物件多数有り】クリップハウジングでは八王子市・多摩エリアを中心に、新築・中古戸建、土地、マンションなど、豊富な物件情報を取り扱っております。お気軽にご相談ください!

その他の情報

外観:314002412641
中古戸建て 空家
間取り:314002412641
  • 2,995万円
  • 神奈川県相模原市緑区下九沢
  • 横浜線 橋本駅/バス 14分/九沢自治会館前 徒歩3分
  • 4LDK/築2 年
  • 95.02㎡(建物)
  • 84.00㎡(土地)

暮らしと住まいに価値をPLUSするーエムイーPLUS町田ー陽当たり良好 安心安全なオール電化住宅 床暖房付きのあったかリビング ゆとりの4LDK省エネ住宅ロフト付き 自然豊かな住環境

  • 駐車場有
  • システム
    キッチン
  • 追焚機能
  • 所有権
  • 低層住宅地
  • 南向き
  • 小学校
    800m以内
  • スーパー
    800m以内
MEgroup エムイーPLUS町田株式会社

駐車場完備!小さなお子様も退屈しないよう、キッズスペースをご用意しています。無料送迎サービスで、ご自宅から店舗まで快適にお越しいただけます。取引件数が豊富なエムイーPLUS町田にぜひお任せください!

その他の情報

外観:314002076800
中古戸建て 空家
間取り:314002076800
  • 4,590万円
  • 神奈川県相模原市緑区橋本5丁目
  • 横浜線 橋本駅/徒歩13分
  • 2SLDK/築2 年
  • 96.54㎡(建物)
  • 90.03㎡(土地)

◆橋本駅徒歩約13分の立地。 ◆屋上バルコニーのある邸宅。 ◆全室6帖以上あり部屋割りに困りません。 ◆家計に優しい都市ガス! ◆建物完成済みの為、年内のご入居が可能!

  • 駐車場有
  • システム
    キッチン
  • 追焚機能
  • 所有権
  • 低層住宅地
  • 南向き
  • 小学校
    800m以内
  • スーパー
    800m以内
朝日土地建物株式会社 相模原店

朝日土地建物株式会社 相模原店 JR横浜線 相模原駅徒歩3分 地域密着型として、将来性豊かな街、住みやすい街として、暮らしやすい街として、都心、横浜に、アクセスもよく、そんな街に住んでみませんか。

その他の情報

NO IMAGE
中古戸建て
間取り:314002462867
  • 3,270万円
  • 神奈川県相模原市緑区下九沢
  • 京王電鉄相模原線 橋本駅/徒歩38分
  • 3LDK/築2 年
  • 100.19㎡(建物)
  • 100.65㎡(土地)

人気のオーナーチェンジ物件!不動産投資をご検討の方はぜひお問い合わせください♪

  • 駐車場有
  • システム
    キッチン
  • 追焚機能
  • 所有権
  • 低層住宅地
  • 南向き
  • 小学校
    800m以内
  • スーパー
    800m以内
株式会社住まいの広場TOWNS

物件公開常時3千件以上!プラス未公開情報で、他社と比べても多くの物件をご紹介可能です。また、FP資格者によるライフプランのご提案が可能です。目指すは顧客満足度No.1、「出会えてよかった」を提供します。

その他の情報

外観:314002538588
中古戸建て 空家
間取り:314002538588
  • 5,380万円
  • 神奈川県相模原市緑区東橋本4丁目
  • 相模線 橋本駅/徒歩17分
  • 3LDK/築2 年
  • 86.86㎡(建物)
  • 109.06㎡(土地)
  • 駐車場有
  • システム
    キッチン
  • 追焚機能
  • 所有権
  • 低層住宅地
  • 南向き
  • 小学校
    800m以内
  • スーパー
    800m以内
株式会社住まいの広場TOWNS

物件公開常時3千件以上!プラス未公開情報で、他社と比べても多くの物件をご紹介可能です。また、FP資格者によるライフプランのご提案が可能です。目指すは顧客満足度No.1、「出会えてよかった」を提供します。

その他の情報

外観:314002441824
中古戸建て
間取り:314002441824
  • 3,980万円
  • 神奈川県相模原市緑区下九沢
  • 相模線 南橋本駅/徒歩18分
  • 4LDK/築7 年
  • 115.32㎡(建物)
  • 100.27㎡(土地)

リニアモーターカー新駅ができる期待のエリア!現在売主様居住中ですので、ご内見の際には事前のご予約をお願いいたします。

  • 駐車場有
  • システム
    キッチン
  • 追焚機能
  • 所有権
  • 低層住宅地
  • 南向き
  • 小学校
    800m以内
  • スーパー
    800m以内
株式会社クリップ クリップハウジング 八王子支店

【売主物件多数有り】クリップハウジングでは八王子市・多摩エリアを中心に、新築・中古戸建、土地、マンションなど、豊富な物件情報を取り扱っております。お気軽にご相談ください!

その他の情報

外観:314002341219
中古戸建て
間取り:314002341219
  • 3,980万円
  • 神奈川県相模原市緑区下九沢
  • 相模線 南橋本駅/徒歩18分
  • 4LDK/築7 年
  • 115.32㎡(建物)
  • 100.27㎡(土地)
  • 駐車場有
  • システム
    キッチン
  • 追焚機能
  • 所有権
  • 低層住宅地
  • 南向き
  • 小学校
    800m以内
  • スーパー
    800m以内
株式会社住まいの広場TOWNS

物件公開常時3千件以上!プラス未公開情報で、他社と比べても多くの物件をご紹介可能です。また、FP資格者によるライフプランのご提案が可能です。目指すは顧客満足度No.1、「出会えてよかった」を提供します。

その他の情報

外観:314002404344
中古戸建て 空家
間取り:314002404344
  • 2,480万円
  • 神奈川県相模原市緑区城山1丁目
  • 相模線 橋本駅/徒歩73分
  • 4LDK/築2 年
  • 95.58㎡(建物)
  • 126.31㎡(土地)
  • 駐車場有
  • システム
    キッチン
  • 追焚機能
  • 所有権
  • 低層住宅地
  • 南向き
  • 小学校
    800m以内
  • スーパー
    800m以内
株式会社住まいの広場TOWNS

物件公開常時3千件以上!プラス未公開情報で、他社と比べても多くの物件をご紹介可能です。また、FP資格者によるライフプランのご提案が可能です。目指すは顧客満足度No.1、「出会えてよかった」を提供します。

その他の情報

外観:314002413106
中古戸建て 空家
間取り:314002413106
  • 2,835万円
  • 神奈川県相模原市緑区下九沢
  • 横浜線 橋本駅/バス 14分/久沢自治会館前 徒歩3分
  • 4LDK/築2 年
  • 92.74㎡(建物)
  • 85.61㎡(土地)

駐車スペースあり(車種による) オール電化住宅 食洗機・浄水器一体型システムキッチン 浴室乾燥機付きセミオートバス オールペアガラス 玄関ディンプルキーダブルロック 床暖房完備 ロフト収納付き

  • 駐車場有
  • システム
    キッチン
  • 追焚機能
  • 所有権
  • 低層住宅地
  • 南向き
  • 小学校
    800m以内
  • スーパー
    800m以内
株式会社 東宝ハウス町田

新宿、渋谷から30分のマイホーム探しをお手伝いします。町田を中心に小田急、横浜、田園都市線と幅広く取り扱っています。是非当社のホームページも是非ご覧ください!

その他の情報

外観:314002070138
中古戸建て 空家
間取り:314002070138
  • 3,180万円
  • 神奈川県相模原市緑区西橋本4丁目
  • 京王電鉄相模原線 橋本駅/徒歩25分
  • 3LDK/築17 年
  • 88.60㎡(建物)
  • 100.29㎡(土地)
  • 駐車場有
  • システム
    キッチン
  • 追焚機能
  • 所有権
  • 低層住宅地
  • 南向き
  • 小学校
    800m以内
  • スーパー
    800m以内
株式会社住まいの広場TOWNS

物件公開常時3千件以上!プラス未公開情報で、他社と比べても多くの物件をご紹介可能です。また、FP資格者によるライフプランのご提案が可能です。目指すは顧客満足度No.1、「出会えてよかった」を提供します。

その他の情報

外観:314002431917
中古戸建て
間取り:314002431917
  • 3,000万円
  • 神奈川県相模原市緑区上九沢
  • 横浜線 橋本駅/バス 11分/上九沢 徒歩3分
  • 4LDK/築2 年
  • 100.82㎡(建物)
  • 105.33㎡(土地)

☆想定利回り6.2%のオーナーチェンジ物件・月額想定家賃収入155 000円・年間想定家賃収入1 860 000円☆

  • 駐車場有
  • システム
    キッチン
  • 追焚機能
  • 所有権
  • 低層住宅地
  • 南向き
  • 小学校
    800m以内
  • スーパー
    800m以内
株式会社アートハウジング

地域密着型ならではの地域の物件に精通、親切丁寧な接客を心がけております。相模原市内の物件の事ならアートハウジングにお任せ下さい。

その他の情報

NO IMAGE
中古戸建て 空家
間取り:314002553179
  • 2,995万円
  • 神奈川県相模原市緑区下九沢
  • 横浜線 橋本駅/バス 14分/九沢自治会館前 徒歩3分
  • 4LDK/築2 年
  • 95.02㎡(建物)
  • 84.84㎡(土地)

完成済に付き内覧可能!安心のオール電化住宅。ゆとりの4LDKで省エネ住宅ロフト付き。

  • 駐車場有
  • システム
    キッチン
  • 追焚機能
  • 所有権
  • 低層住宅地
  • 南向き
  • 小学校
    800m以内
  • スーパー
    800m以内
センチュリー21アース住販

横浜市・鎌倉市・湘南エリアの不動産をお探しならセンチュリー21アース住販へ。インターネット未公開の物件もご用意しています。横須賀線、東戸塚駅から徒歩2分の明るい店舗です。駐車場完備しております。

その他の情報

外観:314002530164
中古戸建て 空家
間取り:314002530164
  • 2,995万円
  • 神奈川県相模原市緑区下九沢
  • 横浜線 橋本駅/バス 14分/九沢自治会館前 徒歩3分
  • 4LDK/築2 年
  • 95.02㎡(建物)
  • 84.84㎡(土地)

未入居戸建☆冬場も足元ぽかぽかの床暖房付き!火を使わないことで住宅の安全性が高くなるオール電化住宅!家事の時短に便利な食洗機付きキッチン♪完成済みなので内見随時可能です!

  • 駐車場有
  • システム
    キッチン
  • 追焚機能
  • 所有権
  • 低層住宅地
  • 南向き
  • 小学校
    800m以内
  • スーパー
    800m以内
株式会社アートハウジング

地域密着型ならではの地域の物件に精通、親切丁寧な接客を心がけております。相模原市内の物件の事ならアートハウジングにお任せ下さい。

その他の情報

外観:314002442010
中古戸建て 空家
間取り:314002442010
  • 4,590万円
  • 神奈川県相模原市緑区橋本5丁目
  • 横浜線 橋本駅/徒歩13分
  • 2SLDK/築2 年
  • 96.54㎡(建物)
  • 90.03㎡(土地)

《JR横浜線「橋本」駅徒歩13分!》〇建物完成済につきいつでもご内覧可能です!〇広々としたスカイバルコニーのある住まい♪○カースペースあり

  • 駐車場有
  • システム
    キッチン
  • 追焚機能
  • 所有権
  • 低層住宅地
  • 南向き
  • 小学校
    800m以内
  • スーパー
    800m以内
株式会社クリップ クリップハウジング 八王子支店

【売主物件多数有り】クリップハウジングでは八王子市・多摩エリアを中心に、新築・中古戸建、土地、マンションなど、豊富な物件情報を取り扱っております。お気軽にご相談ください!

その他の情報

外観:314002362163
中古戸建て 空家
間取り:314002362163
  • 4,590万円
  • 神奈川県相模原市緑区橋本5丁目
  • 横浜線 橋本駅/徒歩13分
  • 2SLDK/築2 年
  • 96.54㎡(建物)
  • 90.03㎡(土地)

自宅に居ながら非日常的を味わえる屋上付です♪ 完成済みの為、実際にご覧ください♪

  • 駐車場有
  • システム
    キッチン
  • 追焚機能
  • 所有権
  • 低層住宅地
  • 南向き
  • 小学校
    800m以内
  • スーパー
    800m以内
朝日土地建物株式会社 町田本社営業5課

町田・相模原・多摩・小田急沿線・横浜線沿線の不動産はお任せ下さい。総勢40名の営業マンが皆様のお力になります。

その他の情報

外観:314002354683
中古戸建て
間取り:314002354683
  • 2,990万円
  • 神奈川県相模原市緑区下九沢
  • 京王電鉄相模原線 橋本駅/バス 12分/六地蔵 徒歩3分
  • 3LDK/築10 年
  • 106.91㎡(建物)
  • 110.84㎡(土地)

~平成28年建築の築浅住宅~ 3路線利用可能「橋本駅」へアクセス良好!陽当たりも良好です♪ 都市ガス、外壁屋根リフォーム済

  • 駐車場有
  • システム
    キッチン
  • 追焚機能
  • 所有権
  • 低層住宅地
  • 南向き
  • 小学校
    800m以内
  • スーパー
    800m以内
朝日土地建物株式会社 橋本支店 営業1課

創業40周年、地域密着として特化した経験豊富なスタッフがご対応させて頂きます。地元だからこその強みを生かしたご提案を致しますので、お気軽にお問い合わせください。

その他の情報

1ページ目(9ページ中) 次へ
この条件で新着メールを受取る
この検索条件を保存する
追加が完了しました。

現在00件保存されています。(最大5件)

保存した条件一覧を見る

現在00件保存されています。

残り00件追加することができます。

お気に入り物件一覧を見る

間隔を空けてお試しください。

問合せが未完了の物件

エリアを変更 条件を変更
チェックした物件をまとめて 資料請求(無料) お気に入りに追加