銚子市(千葉県)の3LDKの中古住宅・中古一戸建ての購入情報

銚子市(千葉県)の3LDK、3SLDKの物件を集めました。家族が増えても対応可能な広々空間。夫婦と子供の部屋も確保できる4人家族にピッタリな物件です。

1

↓ チェックした物件をまとめてお問い合わせ

外観:312001223923
中古戸建て 空家
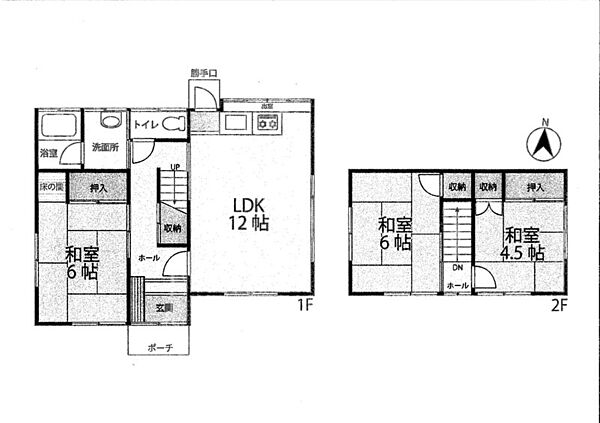
間取り:312001223923
  • 95万円
  • 千葉県銚子市小畑新町
  • 銚子電気鉄道 西海鹿島駅/徒歩11分
  • 3LDK/築46 年
  • 72.03㎡(建物)
  • 259.96㎡(土地)
  • 駐車場有
  • システム
    キッチン
  • 追焚機能
  • 所有権
  • 低層住宅地
  • 南向き
  • 小学校
    800m以内
  • スーパー
    800m以内
株式会社リノバ 本店

空き家を買いたい方はこちら https://akiya-ya.net 空き家を売りたい方はこちら https://akiyacow.jp お空き家の購入・売却をご検討の方は私たちにお任せください!

その他の情報

1ページ目(1ページ中)
この条件で新着メールを受取る
この検索条件を保存する
追加が完了しました。

現在00件保存されています。(最大5件)

保存した条件一覧を見る

現在00件保存されています。

残り00件追加することができます。

お気に入り物件一覧を見る

間隔を空けてお試しください。

問合せが未完了の物件

エリアを変更 条件を変更
チェックした物件をまとめて 資料請求(無料) お気に入りに追加