明戸駅(埼玉県)周辺の2,000万円以下の中古住宅・中古一戸建ての購入情報

明戸駅(埼玉県)周辺の2,000万円以下の空き家・中古住宅・中古一戸建て・一軒家の購入情報をご覧いただけます。

2

↓ チェックした物件をまとめてお問い合わせ

外観:311002254531
中古戸建て 空家

明戸駅まで約3320m

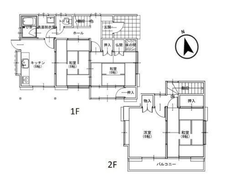
間取り:311002254531
  • 1,399万円
  • 埼玉県熊谷市拾六間
  • 秩父鉄道本線 明戸駅 4.8km
  • 4DK/築39 年
  • 76.17㎡(建物)
  • 165.66㎡(土地)

\陽光降りそそぐ明るいお家/南西側道路に接道し陽当たり良好■駐車2台可 ▽閑静な住宅地 ▽全室南向きの間取り ▽周辺買い物施設充実で生活便利

  • 駐車場有
  • システム
    キッチン
  • 追焚機能
  • 所有権
  • 低層住宅地
  • 南向き
  • 小学校
    800m以内
  • スーパー
    800m以内
でざいん不動産株式会社

「不動産取引を通じてお客様の楽しい暮らしをデザインします」お客様の声に丁寧に耳を傾けて親切・丁寧に対応致します。また、20年以上の不動産キャリアで培った知識と経験を活かした多角的なサポートも強みです。

その他の情報

外観:311002144905
中古戸建て 空家

【近い!】 明戸駅まで約606m

間取り:311002144905
  • 1,280万円
  • 埼玉県深谷市長在家
  • 秩父鉄道本線 明戸駅 徒歩9分
  • 6SLDK/築32 年
  • 125.35㎡(建物)
  • 135.00㎡(土地)

■積水ハウス様施工の軽量鉄骨造住宅♪2025年内外装リフォーム済み! ■全居室6帖以上!全室2面採光で日当たり良好♪ ■約3帖の納戸付きで収納場所に困りませんね!

  • 駐車場有
  • システム
    キッチン
  • 追焚機能
  • 所有権
  • 低層住宅地
  • 南向き
  • 小学校
    800m以内
  • スーパー
    800m以内
株式会社DAIKICHI不動産

DAIKICHI不動産は、「家を売りたい」「買いたい」というご要望だけでなく、住まいに関するあらゆるお悩みに寄り添い、お客様と一緒に解決策を考えます。まずはお気軽にご相談ください。

その他の情報

1ページ目(1ページ中)
この条件で新着メールを受取る
この検索条件を保存する

※明戸駅までの直線距離を表示しています。道路距離ではありませんのでご了承ください。

追加が完了しました。

現在00件保存されています。(最大5件)

保存した条件一覧を見る

現在00件保存されています。

残り00件追加することができます。

お気に入り物件一覧を見る

間隔を空けてお試しください。

問合せが未完了の物件

駅を変更 条件を変更
チェックした物件をまとめて 資料請求(無料) お気に入りに追加